RESERVIERT! Wohnen in der Natur – Ihr Familienzuhause am Rand der Fischbeker Heide
720.000 €
Kaufpreis
234,87 m²
Wohnfläche
121,36 m²
Nutzfläche
5
Zimmer
immobilien.de Nr.: 9419640
Objektnummer: HH4131_2
Kaufpreis
| Kaufpreis | 720.000 € |
| Maklerprovision | 3,5 % inkl. gesetzl. MwSt. vom erzielten Kaufpreis |
| Stellplatz Garage Kaufpreis | 0 € |
Wohnfläche, Grundstück & Bausubstanz
| Wohnfläche | 234,87 m² |
| Nutzfläche | 121,36 m² |
| Grundstücksfläche | 1.325 m² |
| Zimmer | 5 |
| Baujahr | 1972 |
| Verfügbar ab | Sofort |
| Zustand | Teil Vollrenovierungsbed |
Energie
| Energieausweistyp | Bedarfsausweis |
| Ausstellungsdatum | 25. 09. 2025 |
| Gültig bis | 2035-09-24 |
| Baujahr (laut Energieausweis) | 1972 |
| Energieeffizienzklasse | F |
| Endenergiebedarf | 167.38 |
| Heizungsart | Zentralheizung |
| Wesentlicher Energieträger | Gas |
| Energieträger/Befeuerung | Gas |
Beschreibung der Immobilie
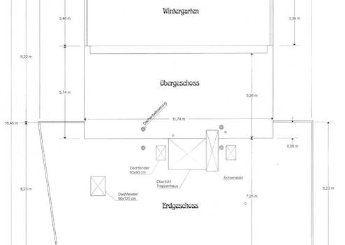
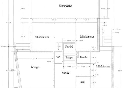
Das massive Wohnhaus wurde Anfang der siebziger Jahre in Split-Level-Bauweise errichtet. Der Grundriss gestaltet sich mit großzügigen Räumen auf vier versetzten Ebenen. Raumbreite Fensterfronten öffnen sich zum Garten und der Wintergarten im Obergeschoss ermöglicht einen Rundblick über das idyllische Grundstück.
Auf der Ebene des Gartengeschosses befindet sich das geräumige Wohnzimmer, an welches sich die offene Küche anschließt. Vier weitere Zimmer verteilen sich auf drei Ebenen und können bei Bedarf wieder in sechs Zimmer unterteilt werden, wie es der ursprüngliche Grundriss vorsah. Es gibt zwei Bäder, sowohl mit Dusche als auch mit Badewanne und eine Gästetoilette. Die knalligen Farben der Fliesen spiegeln den Zeitgeist wider.
Im Kellergeschoss liegen Wirtschafts- und Lagerraum. Der zusätzliche große Hobbyraum ist als Spiele-, Sport- oder Musikzimmer hervorragend nutzbar. Unter Wohnzimmer und Küche befindet sich ein Kriechkeller. Neben dem einladenden Eingangsbereich liegt mit direktem Zugang die Doppelgarage.
Das Haus wurde seinerzeit sehr individuell und wertig errichtet und ausgestattet. Es befindet sich heute noch in einem guten, jedoch renovierungsbedürftigen Zustand. Die Gasheizung von Viessmann wurde 2015 installiert. Die Mehrzahl der Fenster sind inzwischen erneuert und 3-fach verglast. Eine Alarmanlage ist vorhanden.
Einzigartig sind die ruhige Lage am Ende einer Sackgasse und das herrliche, nicht einsehbare Grundstück. Für eine luftige Gestaltung kann dieses noch von dem einen oder anderen Gewächs befreit werden.
Als Besonderheit sei erwähnt, dass man über einen privaten Weg - zum Grundstück gehörend - den angrenzenden Wald erreicht.
Das Haus ist frei und geräumt. Gern lade ich Sie zur Besichtigung ein und freue mich, Sie kennenzulernen.
Auf der Ebene des Gartengeschosses befindet sich das geräumige Wohnzimmer, an welches sich die offene Küche anschließt. Vier weitere Zimmer verteilen sich auf drei Ebenen und können bei Bedarf wieder in sechs Zimmer unterteilt werden, wie es der ursprüngliche Grundriss vorsah. Es gibt zwei Bäder, sowohl mit Dusche als auch mit Badewanne und eine Gästetoilette. Die knalligen Farben der Fliesen spiegeln den Zeitgeist wider.
Im Kellergeschoss liegen Wirtschafts- und Lagerraum. Der zusätzliche große Hobbyraum ist als Spiele-, Sport- oder Musikzimmer hervorragend nutzbar. Unter Wohnzimmer und Küche befindet sich ein Kriechkeller. Neben dem einladenden Eingangsbereich liegt mit direktem Zugang die Doppelgarage.
Das Haus wurde seinerzeit sehr individuell und wertig errichtet und ausgestattet. Es befindet sich heute noch in einem guten, jedoch renovierungsbedürftigen Zustand. Die Gasheizung von Viessmann wurde 2015 installiert. Die Mehrzahl der Fenster sind inzwischen erneuert und 3-fach verglast. Eine Alarmanlage ist vorhanden.
Einzigartig sind die ruhige Lage am Ende einer Sackgasse und das herrliche, nicht einsehbare Grundstück. Für eine luftige Gestaltung kann dieses noch von dem einen oder anderen Gewächs befreit werden.
Als Besonderheit sei erwähnt, dass man über einen privaten Weg - zum Grundstück gehörend - den angrenzenden Wald erreicht.
Das Haus ist frei und geräumt. Gern lade ich Sie zur Besichtigung ein und freue mich, Sie kennenzulernen.
Ausstattungsmerkmale
| Küche | Einbauküche |
| Bad | 2 |
| Garten | |
| Terrassen | 1 |
| Garage/Stellplätze | 2 |
| Keller |
Karte wird geladen...
Objektstandort
21149 Hamburg Neugraben-Fischbek
- Hamburg
Lage & Infrastruktur
Objektstandort
21149 Hamburg Neugraben-Fischbek
- Hamburg
Neugraben-Fischbek ist ein Stadtteil im Bezirk Harburg. Das Wohnumfeld zeichnet sich durch eine ruhige, grüne Lage mit gleichzeitig guter Anbindung an die Hamburger Innenstadt aus.
Besonders hervorzuheben ist die Nähe zum Naturschutzgebiet Fischbeker Heide und zum Hamburger Forst, die vielfältige Möglichkeiten für Erholung, Sport und Freizeit bieten. Spaziergänge, Radfahren und Ausflüge in die Natur sind direkt vor der Haustür möglich.
Neugraben-Fischbek verbindet damit urbanes Wohnen mit naturnahem Lebensgefühl und zählt zu den attraktiven Wohnlagen im Süden Hamburgs.
Besonders hervorzuheben ist die Nähe zum Naturschutzgebiet Fischbeker Heide und zum Hamburger Forst, die vielfältige Möglichkeiten für Erholung, Sport und Freizeit bieten. Spaziergänge, Radfahren und Ausflüge in die Natur sind direkt vor der Haustür möglich.
Neugraben-Fischbek verbindet damit urbanes Wohnen mit naturnahem Lebensgefühl und zählt zu den attraktiven Wohnlagen im Süden Hamburgs.
Kontaktanfrage senden
Über den Anbieter
YOVENTI Berlin GmbH
Davoser Str. 2B
14199 Berlin
Kontakt
| Telefon | 00491724909939 |
| Mobil | 00491724909939 |
| Fax | 004940287866929 |
| Website | www.yoventi.de |
Ansprechpartner/in
Frau Steffi Steffen-Kriegisch
Weitere Angebote des Anbieters
24
Familienfreundliche und komfortable 5-Zi-Wohnung mit ...
Wohnung
21107 Hamburg
Diese schöne und hochwertig ausgestattete 5-Zimmer-Wohnung entstand als eines der letzten wegweisenden Bauprojekte der Internationalen Bauausstellung (IBA), die in Hamburg-Wilhelmsburg von 2006 bis 2013 stattfand und ...
880.000 €
Kaufpreis
126 m²
Wohnfläche
5
Zimmer
16
St. Peter-Ording-Bad: Meerblick.Balkon.Tiefgarage ...
Wohnung
25826 Sankt Peter-Ording / Bad Sankt Peter
Meerblick, Sonne und perfekte Lage: Diese ansprechend ausgestattete Ferienwohnung in SPO-Bad begeistert mit Südwestbalkon, Aufzug und Tiefgaragenstellplatz und bietet ideale Voraussetzungen für die Ferienvermietung – ...
325.000 €
Kaufpreis
42,82 m²
Wohnfläche
1,5
Zimmer
0
Gute Rendite! Vermietete Wohnung mit Grünblick in ...
Wohnung
10115 Berlin
*** Wir bitten um Verständnis, dass wir im Internet keine Innenbilder von vermieteten Wohnungen veröffentlichen. Gern senden wir Ihnen auf Anfrage ein Exposé mit Innenaufnahmen zu. Bitte geben Sie dabei auch Ihre ...
880.000 €
Kaufpreis
134,74 m²
Wohnfläche
5
Zimmer
7
Kleines Mehrfamilienhaus mit 3 Einheiten, nahe dem ...
Zinshaus Renditeobjekt
14943 Luckenwalde
In zentraler Lage von Luckenwalde, fußläufig zum Bahnhof und in der Nähe der Fläming Therme liegt dieses Gebäude straßenbegleitend an der Heinrich-Zille-Str. Das Gebäude ist 1896 errichtet worden. Das Grundstück ist ...
285.000 €
Kaufpreis
195,7 m²
Wohnfläche
keine Angabe
Zimmer
7
SPO-Bad - Sonniges Baugrundstück mit positivem ...
Grundstück
25826 Sankt Peter-Ording
In begehrter Lage von St. Peter-Ording – im beliebten Ortsteil Bad – befindet sich dieses attraktive Baugrundstück in Sackgassenlage mit idealer Südausrichtung. Hier verbinden sich sonnige Lichtverhältnisse, angenehme ...
1.650.000 €
Kaufpreis
2.106 m²
Grundstücksfläche