Großzügige Doppelhaushälfte
160.000 €
Kaufpreis
188 m²
Wohnfläche
10
Zimmer
immobilien.de Nr.: 9417571
Objektnummer: FALC-BeTa-77269
Kaufpreis
| Kaufpreis | 160.000 € |
| Maklerprovision | 3,57 % inkl. MwSt vom not. Kaufpreis |
Wohnfläche, Grundstück & Bausubstanz
| Wohnfläche | 188 m² |
| Grundstücksfläche | 980 m² |
| Zimmer | 10 |
| Baujahr | 1820 |
| Verfügbar ab | keine Angabe |
Energie
| Energieausweistyp | Bedarfsausweis |
| Ausstellungsdatum | 25. 11. 2025 |
| Gültig bis | 25.11.2035 |
| Energieeffizienzklasse | H |
| Endenergiebedarf | 294.9 |
| Wesentlicher Energieträger | Öl |
| Energieträger/Befeuerung | Öl |
Beschreibung der Immobilie
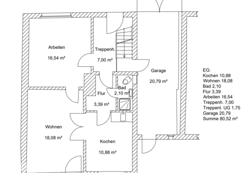
Beim Betreten dieses charmanten ca. 200 Jahre alten Hauses werden Sie von einem einladenden Flur empfangen, der den Zugang zu den Räumen des Erdgeschosses bietet und über ein Treppe die Obergeschosse erschließt. Im Erdgeschoss befinden sich drei Räume und ein kleines Bad, so dass diese als eigenständige Wohnung genutzt oder auch als Büro oder Gästezimmer mit den Räumen der Obergeschosse gemeinsam genutzt werden können. Das großzügige Wohn- oder Gästezimmer, das mit seinen großen Fenstern viel Tageslicht bietet, verfügt darüber hinaus über eine eigene Terrassentür mit direktem Zugang in den zugehörigen Garten. Der angrenzende Raum verfügt über Anschlüsse für eine Küchenzeile und bietet ausreichend Platz für einen Essplatz.
Das kleine Bad ist mit WC, Waschbecken und Dusche vollständig ausgestattet. Dadurch sind die Räume im Erdgeschoss auch unabhängig von den oberen Etagen gut nutzbar. Über eine stilvolle Treppe gelangen Sie in das Obergeschoss, wo sich zwei größere Wohnräume mit Loggia und Gartenzugang über einen Treppenabgang, eine großzügige Essküche, ein geräumiges Bad und ein Hauswirtschaftsraum befinden.
Das Badezimmer im Obergeschoss ist mit einer Badewanne, einer zusätzlichen Dusche, zwei Waschbecken und Bidet, sowie einer eigenen Fußbodenheizung ausgestattet, so dass der Aufenthalt hier an eine private Wellness Oase erinnert. Die Loggia, die von einem der Wohnräume aus zugänglich ist, bietet einen herrlichen Blick auf den gepflegten Garten, der mit seiner großzügigen Fläche von ca. 980 m² zum Entspannen, Spielen oder Feiern einlädt.
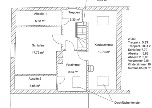
Im Dachgeschoss finden Sie drei weitere Räume, die ideal als Schlaf- und Kinderzimmer oder als Hobbyräume genutzt werden können. Die Dachschrägen verleihen diesen Räumen einen besonderen Charme.
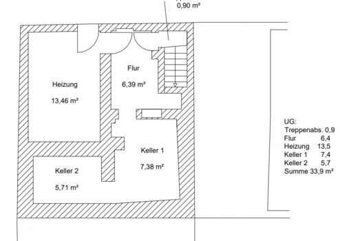
Der Keller des Hauses bietet zusätzlichen Stauraum und beherbergt die Heizungsanlage. Ein weiterer Pluspunkt ist die Garage, die direkt vom Haus aus zugänglich ist und idealen Stellplatz für Fahrräder, Werkzeug oder Gartenmöbel bietet. Auch Sie verfügt über einen direkten Zugang zum Garten.
Dieses Haus vereint historischen Charme mit praktischen Annehmlichkeiten und bietet eine ideale Grundlage für Familien, die ein geräumiges und vielseitig nutzbares Zuhause suchen.
Das kleine Bad ist mit WC, Waschbecken und Dusche vollständig ausgestattet. Dadurch sind die Räume im Erdgeschoss auch unabhängig von den oberen Etagen gut nutzbar. Über eine stilvolle Treppe gelangen Sie in das Obergeschoss, wo sich zwei größere Wohnräume mit Loggia und Gartenzugang über einen Treppenabgang, eine großzügige Essküche, ein geräumiges Bad und ein Hauswirtschaftsraum befinden.
Das Badezimmer im Obergeschoss ist mit einer Badewanne, einer zusätzlichen Dusche, zwei Waschbecken und Bidet, sowie einer eigenen Fußbodenheizung ausgestattet, so dass der Aufenthalt hier an eine private Wellness Oase erinnert. Die Loggia, die von einem der Wohnräume aus zugänglich ist, bietet einen herrlichen Blick auf den gepflegten Garten, der mit seiner großzügigen Fläche von ca. 980 m² zum Entspannen, Spielen oder Feiern einlädt.
Im Dachgeschoss finden Sie drei weitere Räume, die ideal als Schlaf- und Kinderzimmer oder als Hobbyräume genutzt werden können. Die Dachschrägen verleihen diesen Räumen einen besonderen Charme.
Der Keller des Hauses bietet zusätzlichen Stauraum und beherbergt die Heizungsanlage. Ein weiterer Pluspunkt ist die Garage, die direkt vom Haus aus zugänglich ist und idealen Stellplatz für Fahrräder, Werkzeug oder Gartenmöbel bietet. Auch Sie verfügt über einen direkten Zugang zum Garten.
Dieses Haus vereint historischen Charme mit praktischen Annehmlichkeiten und bietet eine ideale Grundlage für Familien, die ein geräumiges und vielseitig nutzbares Zuhause suchen.
Ausstattungsmerkmale
| Anzahl der Etagen im Haus | 3 |
| Bad | 2 |
| Bad | Dusche, Wanne, Fenster |
| Boden | Fliesen, Teppich, Laminat, Dielen, Kunststoff |
| Balkone | 1 |
| Garten | |
| Keller |
- Wohnfläche: 188 m²
- Anzahl der Zimmer: 10
- Baujahr: ca. 1820
- Energieeffizienzklasse: H
- Balkon (Loggia) vorhanden
- Keller vorhanden
- Garten vorhanden
- Gäste-WC vorhanden
- Heizung: Öl-Zentralheizung
- Fenster: Doppelverglast
- Badezimmer: Zwei Badezimmer mit Badewanne und Dusche
- Küche: Separate Küche vorhanden
- Treppen: Holztreppen
- Außenbereich: Großer Garten mit Baumbestand
- Zusätzliche Räume: Abstellräume im Dachgeschoss
- Lage: Ruhige Wohngegend mit guter Anbindung an öffentliche Verkehrsmittel
- Anzahl der Zimmer: 10
- Baujahr: ca. 1820
- Energieeffizienzklasse: H
- Balkon (Loggia) vorhanden
- Keller vorhanden
- Garten vorhanden
- Gäste-WC vorhanden
- Heizung: Öl-Zentralheizung
- Fenster: Doppelverglast
- Badezimmer: Zwei Badezimmer mit Badewanne und Dusche
- Küche: Separate Küche vorhanden
- Treppen: Holztreppen
- Außenbereich: Großer Garten mit Baumbestand
- Zusätzliche Räume: Abstellräume im Dachgeschoss
- Lage: Ruhige Wohngegend mit guter Anbindung an öffentliche Verkehrsmittel
Sonstige Informationen
Die Objektbeschreibung beruht ganz oder zum Teil auf Angaben des Eigentümers, der Text wurde teilweise mit Unterstützung künstlicher Intelligenz bearbeitet und überprüft. Für die Richtigkeit oder Vollständigkeit übernehmen wir keine Gewähr.
Beim ausgewiesenen Preis handelt es sich um den Angebotspreis, der sich durch Verhandlungen auch verändern kann. Bei diesem Objekt ist nicht vorgesehen, dass der Käufer mit uns eine eigenständige Provisionsvereinbarung trifft, sofern dieser als Verbraucher (§ 14 BGB) zu qualifizieren ist. Der Verkauf erfolgt nur an denjenigen, der sich bereit erklärt, einen Teil der vom Verkäufer zugesagten Provision zu übernehmen. Dieser Anteil beträgt in diesem Fall 3,57 % inkl. MwSt. vom Kaufpreis und ist nach Abschluss des Kaufvertrages zur Zahlung fällig.
Vereinbaren Sie noch heute einen unverbindlichen Besichtigungstermin und überzeugen Sie sich selbst! Terminvorschläge an: heilbronn@falcimmo.de. Da wir die Termine für Besichtigungen mit größter Sorgfalt planen, bitten wir Sie um Verständnis dafür, dass Termine ausschließlich in schriftlicher Form per E-Mail vereinbart werden können. Um fair und gerecht gegenüber jedem unserer Interessenten zu werden, ist dies unumgänglich. Wir freuen uns über Ihre Kontaktaufnahme! Geben Sie bitte immer die vollständige ADRESSE und RUFNUMMER an!
Ihr Ansprechpartner: Benjamin Tahric, Benjamin.tahric@falcimmo.de
Sie denken selbst über die Veräußerung Ihrer Immobilie nach oder möchten einfach nur wissen, was diese wert ist? Bei uns erhalten Sie kostenlos eine professionelle Wertermittlung! Gehen Sie hierzu auf: www.falcimmo.de/Das-ist-meine-Immobilie-wert.htm oder kontaktieren Sie uns.
Beim ausgewiesenen Preis handelt es sich um den Angebotspreis, der sich durch Verhandlungen auch verändern kann. Bei diesem Objekt ist nicht vorgesehen, dass der Käufer mit uns eine eigenständige Provisionsvereinbarung trifft, sofern dieser als Verbraucher (§ 14 BGB) zu qualifizieren ist. Der Verkauf erfolgt nur an denjenigen, der sich bereit erklärt, einen Teil der vom Verkäufer zugesagten Provision zu übernehmen. Dieser Anteil beträgt in diesem Fall 3,57 % inkl. MwSt. vom Kaufpreis und ist nach Abschluss des Kaufvertrages zur Zahlung fällig.
Vereinbaren Sie noch heute einen unverbindlichen Besichtigungstermin und überzeugen Sie sich selbst! Terminvorschläge an: heilbronn@falcimmo.de. Da wir die Termine für Besichtigungen mit größter Sorgfalt planen, bitten wir Sie um Verständnis dafür, dass Termine ausschließlich in schriftlicher Form per E-Mail vereinbart werden können. Um fair und gerecht gegenüber jedem unserer Interessenten zu werden, ist dies unumgänglich. Wir freuen uns über Ihre Kontaktaufnahme! Geben Sie bitte immer die vollständige ADRESSE und RUFNUMMER an!
Ihr Ansprechpartner: Benjamin Tahric, Benjamin.tahric@falcimmo.de
Sie denken selbst über die Veräußerung Ihrer Immobilie nach oder möchten einfach nur wissen, was diese wert ist? Bei uns erhalten Sie kostenlos eine professionelle Wertermittlung! Gehen Sie hierzu auf: www.falcimmo.de/Das-ist-meine-Immobilie-wert.htm oder kontaktieren Sie uns.
Karte wird geladen...
Objektstandort
57299 Burbach
Lage & Infrastruktur
Objektstandort
57299 Burbach
Die Immobilie befindet sich in einer ruhigen und familienfreundlichen Umgebung in Burbach, ideal für Familien mit Kindern. Die Nähe zu wichtigen Einrichtungen macht diesen Standort besonders attraktiv.
In unmittelbarer Nähe befindet sich die Grundschule Holzhausen, die in wenigen Minuten zu Fuß erreichbar ist. Auch der DRK-Kindergarten ist nur einen kurzen Spaziergang entfernt, was den Alltag für Familien mit kleinen Kindern erleichtert. Für die Freizeitgestaltung der Kleinen gibt es gleich zwei Spielplätze in der Nähe, die zum Spielen und Toben einladen.
Die Anbindung an den öffentlichen Nahverkehr ist hervorragend. Mehrere Bushaltestellen, darunter "Holzhausen Ort" und "Holzhausen Schule", sind bequem zu Fuß erreichbar. Der Bahnhof Holzhausen (Siegen) bietet zudem eine gute Verbindung für Pendler.
Für den täglichen Bedarf ist der Supermarkt Nahkauf nur einen Katzensprung entfernt. Auch das kulinarische Angebot lässt keine Wünsche offen: Das Restaurant "Fiester Hannes" und "Da Mimmo" bieten eine Auswahl an Speisen für jeden Geschmack. Am oberen Ende der Straße befindet sich die Imbisstube „Harput“.
Die medizinische Versorgung ist durch die nahegelegene Praxis von Dr. Jozsef Marton sichergestellt. Sportbegeisterte finden in der Turnhalle in der Nähe eine Möglichkeit, sich fit zu halten.
Die Autobahnanbindung ist ebenfalls günstig, was die individuelle Mobilität erleichtert. Der nächste Flughafen, der Flughafen Köln/Bonn, ist in etwa einer Stunde mit dem Auto erreichbar.
Die Umgebung zeichnet sich durch eine hohe Eigentümerquote und eine geringe Leerstandsrate aus, was auf eine stabile und attraktive Wohngegend hinweist. Die durchschnittliche Kaltmiete ist moderat, was den Standort auch aus finanzieller Sicht interessant macht
In unmittelbarer Nähe befindet sich die Grundschule Holzhausen, die in wenigen Minuten zu Fuß erreichbar ist. Auch der DRK-Kindergarten ist nur einen kurzen Spaziergang entfernt, was den Alltag für Familien mit kleinen Kindern erleichtert. Für die Freizeitgestaltung der Kleinen gibt es gleich zwei Spielplätze in der Nähe, die zum Spielen und Toben einladen.
Die Anbindung an den öffentlichen Nahverkehr ist hervorragend. Mehrere Bushaltestellen, darunter "Holzhausen Ort" und "Holzhausen Schule", sind bequem zu Fuß erreichbar. Der Bahnhof Holzhausen (Siegen) bietet zudem eine gute Verbindung für Pendler.
Für den täglichen Bedarf ist der Supermarkt Nahkauf nur einen Katzensprung entfernt. Auch das kulinarische Angebot lässt keine Wünsche offen: Das Restaurant "Fiester Hannes" und "Da Mimmo" bieten eine Auswahl an Speisen für jeden Geschmack. Am oberen Ende der Straße befindet sich die Imbisstube „Harput“.
Die medizinische Versorgung ist durch die nahegelegene Praxis von Dr. Jozsef Marton sichergestellt. Sportbegeisterte finden in der Turnhalle in der Nähe eine Möglichkeit, sich fit zu halten.
Die Autobahnanbindung ist ebenfalls günstig, was die individuelle Mobilität erleichtert. Der nächste Flughafen, der Flughafen Köln/Bonn, ist in etwa einer Stunde mit dem Auto erreichbar.
Die Umgebung zeichnet sich durch eine hohe Eigentümerquote und eine geringe Leerstandsrate aus, was auf eine stabile und attraktive Wohngegend hinweist. Die durchschnittliche Kaltmiete ist moderat, was den Standort auch aus finanzieller Sicht interessant macht
Kontaktanfrage senden
Über den Anbieter
FALC Immobilien GmbH & Co. KG
Humperdickstr. 3
53773 Hennef (Sieg)
Kontakt
| Telefon | +49 800 - 646 0 646 |
| Mobil | +49 160 8728739 |
| Fax | +49 2242 9010319 |
| Website | www.falcimmo.de |
Ansprechpartner/in
Herr Benjamin Tahric
Weitere Angebote des Anbieters
19
Exklusives Penthouse mit Meerweitblick und großer ...
Wohnung
07600 Palma
Dieses hochwertige Penthouse vereint modernen Wohnkomfort, eine stilvolle Ausstattung und einen beeindruckenden Meerweitblick in attraktiver Lage von Arenal / Playa de Palma. Die Wohnung verfügt über eine Gesamtfläche ...
485.000 €
Kaufpreis
69 m²
Wohnfläche
2
Zimmer
16
Wohnen mit Stil: Lichtdurchflutete 5-Zimmer-Wohnung ...
Wohnung
51109 Köln
Diese großzügige und lichtdurchflutete Wohnung überzeugt durch eine durchdachte Raumaufteilung, hochwertige Ausstattung und ein Wohnambiente, das Komfort und Funktionalität perfekt vereint. Auf ca. 146 m² Wohnfläche ...
499.000 €
Kaufpreis
146 m²
Wohnfläche
5
Zimmer
6
Perfekt für Singles & Paare – Rückzug mit Stellplatz
Wohnung
40595 Düsseldorf
Diese charmante Wohnung in Düsseldorf begeistert mit einer hellen, freundlichen Ausstrahlung und einem modernen, hervorragend geschnittenen Grundriss. Großzügige Fenster schenken den Räumen eine angenehme Leichtigkeit ...
299.000 €
Kaufpreis
65,9 m²
Wohnfläche
2
Zimmer
14
Attraktives Ladenlokal in erstklassiger Innenstadtlage
Einzelhandel
41747 Viersen
Im Herzen der Stadt – beste Innenstadtlage Das in 1-A-Lage gelegene Ladenlokal bietet optimale Voraussetzungen für verschiedenste Nutzungskonzepte. Ob Innenstadtbüro, Einzelhandel (z. B. Fashionstore oder Reformhaus) ...
2.500 €
Kaltmiete
526,63 m²
Gesamtfläche
16
Erstbezug nach Sanierung!!!
Wohnung
56170 Bendorf
Diese im Jahr 2024 kernsanierte Wohnung im Dachgeschoss bietet auf einer Wohnfläche von ca. 106 m² optimalen Raum für Paare oder die kleine Familie. Insgesamt stehen Ihnen ein weitläufiges und lichtdurchflutetes ...
1.000 €
Kaltmiete
106 m²
Wohnfläche
4
Zimmer