Große 4,5-Zi-Wohnung mit 2 Bädern & Küche - 140qm - ERSTBEZUG - 2 KALTMIETEN GESCHENKT

700 €
Kaltmiete (netto)
140 m²
Wohnfläche
4
Zimmer
immobilien.de Nr.: 9417355 Objektnummer: 385319

Preise & Kosten

Kaltmiete (netto) 700 €
Nebenkosten 100 €
Heizkosten 100 €
Kaution 1.400 €

Größe & Zustand

Wohnfläche 140 m²
Zimmer 4
Baujahr 1895
Verfügbar ab nach Absprache
Zustand Teil Vollsaniert

Energie

Heizungsart Zentralheizung
Energieträger/Befeuerung Gas

Objektbeschreibung

!! ERSTE ZWEI KALTMIETEN GESCHENKT !!

Bei dieser Wohnung zahlen Sie nach Einzug zwei Monate lang nur die Betriebskostenvorauszahlung - erst ab dem dritten Monat wird die volle Miete fällig!

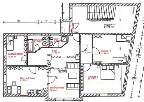
Diese 140qm große Wohnung bietet 4,5 Zimmer, 2 Badezimmer (einmal mit Badewanne & WC, Gästebadezimmer mit Dusche & WC) und ein separates Küchenzimmer mit Einbauküche. Außerdem gibt es direkt neben der Wohnung einen kleinen Abstellraum mit Waschmaschinenanschluss. Die Wohnung wurde letztes Jahr komplett saniert und steht jetzt zum sofortigen Erstbezug zur Verfügung.

Das Gebäude ist das ehemalige Rathaus von Zwickau-Niederplanitz, es wurde in 2018 kernsaniert. Es verfügt über eine neue Gaszentralheizung sowie Innenwanddämmung in allen Wohnungen.

Die Wohnung ist perfekt geeignet für eine große Familie mit Kindern oder mehreren Generationen unter einem Dach!

Die Kaltmiete beträgt 700€, Nebenkostenvorauszahlung 200€, Gesamtmiete 900€.

Objektzustand: Erstbezug nach Sanierung

Ausstattung

Inserat befindet sich im Stockwerk 1
 
Küche Einbauküche
Bad 2
Bad Wanne
Boden Fliesen, Laminat
Vollbad, Einbauküche, Gäste-WC, Laminat, Fliesen

Bemerkungen:
Laminat, hochwertige Fliesen und Armaturen in den Badezimmern, geräumige Küche mit Einbauküche mit E-Geräten, doppelverglaste Fenster im gesamten Haus.

Sonstige Informationen

Heizungsart: Zentralheizung
Energieträger: Gas

Das Haus wird von der ed Verwaltungsgesellschaft mbH aus Zwickau verwaltet.
Interessenten dürfen sich auch gerne direkt an den Hausverwalter

Hr. Joachim Dietz
Tel.: 0375 27 56 631
mobil: 01520 1737248
info(at)edvgmbh.com

wenden.

ohne-makler (OM) ist weder Anbieter noch Vermittler der Immobilie. OM betreibt eine Plattform für Immobilieneigentümer, die unter anderem die gleichzeitige Veröffentlichung einzelner Inserate auf mehreren Immobilienportalen ermöglicht. Die Inhalte dieser Inserate werden ausschließlich von Dritten verantwortet. Für die Richtigkeit, Vollständigkeit oder Rechtmäßigkeit der Angaben übernimmt OM keine Haftung. Hinweise auf mögliche Rechtsverstöße können jederzeit gemeldet werden und werden nach Prüfung umgehend bearbeitet.

Objektstandort

Wilhelm-Stolle-Platz 1
08062 Zwickau - Sachsen

Lage des Objektes

Das Haus liegt im ruhigen Stadtteil Zwickau-Niederplanitz. Direkt vor der Haustür befindet sich die Bushaltestelle Wilhelm-Stolle-Platz, von hier sind es nur 10min zum Hauptbahnhof Zwickau. Die Tram-Haltestelle befindet sich nur wenige Gehminuten entfernt. Der Bedarf des täglichen Lebens mit Supermarkt, Apotheke, Hausarzt, Schulen ist in wenigen Gehminuten erreichbar.
Infrastruktur (im Umkreis von 5 km):
Apotheke, Lebensmittel-Discount, Allgemeinmediziner, Kindergarten, Grundschule, Hauptschule, Realschule, Gymnasium, Öffentliche Verkehrsmittel

Anbieter kontaktieren

Anbieter

OM PropTech GmbH
Humboldtstraße 25a
21509 Glinde

Kontakt

Telefon 0170 3297508
Fax -
Website www.ohne-makler.net

Ansprechpartner/in

Angebot von F. Ahmad
Weitere Anbieterdaten