Provisionsfrei, sofort einziehen, hochwertige 3 Zimmerwohnung zu verkaufen
289.900 €
Kaufpreis
86 m²
Wohnfläche
3
Zimmer
immobilien.de Nr.: 9410775
Objektnummer: 419827
Preise & Kosten
| Kaufpreis | 289.900 € |
| Nebenkosten | keine Angabe |
| Hausgeld | 450 € |
| Maklerprovision | keine Provision, courtagefrei |
| Stellplatz Tiefgarage Kaufpreis | 15.000 € |
Größe & Zustand
| Wohnfläche | 86 m² |
| Zimmer | 3 |
| Baujahr | 1974 |
| Verfügbar ab | sofort |
| Zustand | Teil Vollsaniert |
Energie
| Energieausweistyp | Verbrauch |
| Energieeffizienzklasse | D |
| Energieverbrauchkennwert | 117 kWh/(m²*a) |
| Heizungsart | Zentralheizung |
| Energieträger/Befeuerung | Fernwärme |
Objektbeschreibung
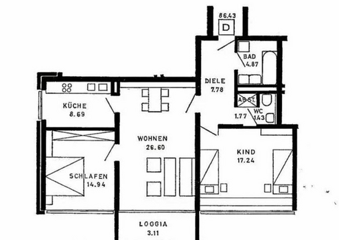
Diese attraktive 3-Zimmer-Etagenwohnung befindet sich im 5. Obergeschoss eines gepflegten Mehrfamilienhauses in Neu-Ulm Ludwigsfeld und überzeugt durch ihre helle Wohnatmosphäre sowie einen durchdachten Grundriss.
Dank der Süd-West-Ausrichtung und der großzügigen Fensterflächen werden alle Räume mit viel Tageslicht versorgt.
Der Wohnbereich bietet ausreichend Platz für einen Wohn- und Essbereich und verfügt über einen direkten Zugang zum Balkon, von dem aus sich ein weiter Blick über die Umgebung eröffnet. Die Küche ist funktional angeordnet und bietet vielfältige Gestaltungsmöglichkeiten.
Zwei gut geschnittene Schlafzimmer ermöglichen eine flexible Nutzung. Das zweite Schlafzimmer kann bei Bedarf durch eine Trennwand in zwei kleinere Räume aufgeteilt werden, sodass optional eine 4-Zimmer-Wohnung realisierbar ist.
Das innenliegende Badezimmer ist mit einer Badewanne und einem Waschbecken ausgestattet. Ein separates WC sorgt für zusätzlichen Komfort. Waschmaschinen- und Trockneranschlüsse befinden sich ebenfalls im Badezimmer.
Ein eigener Kellerraum runden das Angebot ab. Die Wohnung ist bezugsfrei und eignet sich sowohl für Eigennutzer als auch für Kapitalanleger.
Objektzustand: Erstbezug nach Sanierung
Dank der Süd-West-Ausrichtung und der großzügigen Fensterflächen werden alle Räume mit viel Tageslicht versorgt.
Der Wohnbereich bietet ausreichend Platz für einen Wohn- und Essbereich und verfügt über einen direkten Zugang zum Balkon, von dem aus sich ein weiter Blick über die Umgebung eröffnet. Die Küche ist funktional angeordnet und bietet vielfältige Gestaltungsmöglichkeiten.
Zwei gut geschnittene Schlafzimmer ermöglichen eine flexible Nutzung. Das zweite Schlafzimmer kann bei Bedarf durch eine Trennwand in zwei kleinere Räume aufgeteilt werden, sodass optional eine 4-Zimmer-Wohnung realisierbar ist.
Das innenliegende Badezimmer ist mit einer Badewanne und einem Waschbecken ausgestattet. Ein separates WC sorgt für zusätzlichen Komfort. Waschmaschinen- und Trockneranschlüsse befinden sich ebenfalls im Badezimmer.
Ein eigener Kellerraum runden das Angebot ab. Die Wohnung ist bezugsfrei und eignet sich sowohl für Eigennutzer als auch für Kapitalanleger.
Objektzustand: Erstbezug nach Sanierung
Ausstattung
| Anzahl der Etagen im Haus | 1 |
| Bad | 1 |
| Balkone | 1 |
| Terrassen | 0 |
| Fahrstuhl | |
| Keller |
Balkon, Keller, Fahrstuhl, Gäste-WC
Bemerkungen:
3-Zimmer-Wohnung mit ca. 86,4 m² Wohnfläche
5. Obergeschoss in einem Mehrfamilienhaus mit Personenaufzug
Süd-West-Ausrichtung
- Balkon mit Weitblick
- Großzügige Fensterflächen für helle Räume
- Zwei Schlafzimmer (optional 4 Zimmer möglich)
- Badezimmer mit Badewanne
- Separates WC
- Waschmaschinen- und Trockneranschluss im Bad
- Zentralheizung mit Fernwärme
- Eigener Kellerraum
- Tiefgaragenstellplatz optional für 15.000 Euro
- Stufenloser Zugang zum Gebäude
- Beheiztes Schwimmbad auf dem Dach zur gemeinschaftlichen Nutzung
Bemerkungen:
3-Zimmer-Wohnung mit ca. 86,4 m² Wohnfläche
5. Obergeschoss in einem Mehrfamilienhaus mit Personenaufzug
Süd-West-Ausrichtung
- Balkon mit Weitblick
- Großzügige Fensterflächen für helle Räume
- Zwei Schlafzimmer (optional 4 Zimmer möglich)
- Badezimmer mit Badewanne
- Separates WC
- Waschmaschinen- und Trockneranschluss im Bad
- Zentralheizung mit Fernwärme
- Eigener Kellerraum
- Tiefgaragenstellplatz optional für 15.000 Euro
- Stufenloser Zugang zum Gebäude
- Beheiztes Schwimmbad auf dem Dach zur gemeinschaftlichen Nutzung
Sonstige Informationen
Heizungsart: Zentralheizung
Energieträger: Fernwärme
Die Wohnung ist kurzfristig bezugsfrei.
Das monatliche Hausgeld beträgt derzeit ca. 450 €.
Die Wohnung wird ohne Möbel übergeben, dient nur zu Vorstellung da.
Makleranfragen nicht erwünscht. Nach § 7 UWG sind unaufgeforderte Kontaktaufnahmen durch Makler ohne ausdrückliche Einwilligung des Empfängers verboten!
ohne-makler (OM) ist weder Anbieter noch Vermittler der Immobilie. OM betreibt eine Plattform für Immobilieneigentümer, die unter anderem die gleichzeitige Veröffentlichung einzelner Inserate auf mehreren Immobilienportalen ermöglicht. Die Inhalte dieser Inserate werden ausschließlich von Dritten verantwortet. Für die Richtigkeit, Vollständigkeit oder Rechtmäßigkeit der Angaben übernimmt OM keine Haftung. Hinweise auf mögliche Rechtsverstöße können jederzeit gemeldet werden und werden nach Prüfung umgehend bearbeitet.
Energieträger: Fernwärme
Die Wohnung ist kurzfristig bezugsfrei.
Das monatliche Hausgeld beträgt derzeit ca. 450 €.
Die Wohnung wird ohne Möbel übergeben, dient nur zu Vorstellung da.
Makleranfragen nicht erwünscht. Nach § 7 UWG sind unaufgeforderte Kontaktaufnahmen durch Makler ohne ausdrückliche Einwilligung des Empfängers verboten!
ohne-makler (OM) ist weder Anbieter noch Vermittler der Immobilie. OM betreibt eine Plattform für Immobilieneigentümer, die unter anderem die gleichzeitige Veröffentlichung einzelner Inserate auf mehreren Immobilienportalen ermöglicht. Die Inhalte dieser Inserate werden ausschließlich von Dritten verantwortet. Für die Richtigkeit, Vollständigkeit oder Rechtmäßigkeit der Angaben übernimmt OM keine Haftung. Hinweise auf mögliche Rechtsverstöße können jederzeit gemeldet werden und werden nach Prüfung umgehend bearbeitet.
Lage des Objektes
Die Immobilie befindet sich in der Breslauerstraße 18 in 89231 Neu-Ulm, einer ruhigen und gut angebundenen Wohnlage mit gewachsener Infrastruktur. Einkaufsmöglichkeiten, Schulen, Kindergärten, Ärzte sowie weitere Einrichtungen des täglichen Bedarfs sind in kurzer Entfernung erreichbar.
Eine sehr gute Anbindung an den öffentlichen Nahverkehr ermöglicht eine schnelle Erreichbarkeit der Neu-Ulmer und Ulmer Innenstadt. Zudem besteht eine gute Verkehrsanbindung an die umliegenden Bundesstraßen und Autobahnen, was die Lage auch für Pendler attraktiv macht.
Grün- und Erholungsflächen in der Umgebung bieten zusätzliche Freizeit- und Erholungsmöglichkeiten und tragen zu einer hohen Wohnqualität bei.
Infrastruktur (im Umkreis von 5 km):
Apotheke, Lebensmittel-Discount, Allgemeinmediziner, Kindergarten, Grundschule, Hauptschule, Realschule, Gymnasium, Gesamtschule, Öffentliche Verkehrsmittel
Eine sehr gute Anbindung an den öffentlichen Nahverkehr ermöglicht eine schnelle Erreichbarkeit der Neu-Ulmer und Ulmer Innenstadt. Zudem besteht eine gute Verkehrsanbindung an die umliegenden Bundesstraßen und Autobahnen, was die Lage auch für Pendler attraktiv macht.
Grün- und Erholungsflächen in der Umgebung bieten zusätzliche Freizeit- und Erholungsmöglichkeiten und tragen zu einer hohen Wohnqualität bei.
Infrastruktur (im Umkreis von 5 km):
Apotheke, Lebensmittel-Discount, Allgemeinmediziner, Kindergarten, Grundschule, Hauptschule, Realschule, Gymnasium, Gesamtschule, Öffentliche Verkehrsmittel
