Zwei Etagen, ein großes Familienkapitel – vielseitiges Mehrfamilienhaus - jetzt erleben
2.260.000 €
Kaufpreis
271 m²
Wohnfläche
12
Zimmer
immobilien.de Nr.: 9410275
Objektnummer: 1000-153
Kaufpreis
| Kaufpreis | 2.260.000 € |
| Stellplatz Freiplatz Kaufpreis | 0 € |
| Stellplatz Garage Kaufpreis | 0 € |
Wohnfläche, Grundstück & Bausubstanz
| Wohnfläche | 271 m² |
| Grundstücksfläche | 942 m² |
| Zimmer | 12 |
| Baujahr | 1976 |
| Verfügbar ab | keine Angabe |
Energie
| Energieausweistyp | Verbrauch |
| Gültig bis | 2034-11-23 |
| Baujahr (laut Energieausweis) | 1976 |
| Energieeffizienzklasse | G |
| Energieverbrauchkennwert | 202.99 kWh/(m²*a) |
| Heizungsart | Zentralheizung |
| Wesentlicher Energieträger | Oel |
| Energieträger/Befeuerung | Öl |
Beschreibung der Immobilie
Ein Zuhause fürs Leben.
In einer der schönsten und familienfreundlichsten Wohnlagen im Münchner Westen liegt dieses besondere Mehrfamilienhaus – ein Ort, der weit mehr ist als nur eine Immobilie: Es ist ein echtes Zuhause für Familien, die Nähe und Zusammenhalt schätzen.
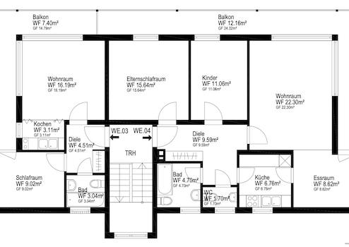
Das Haus bietet aktuell vier Wohneinheiten auf zwei Etagen – mit klar gegliederten, warm wirkenden Grundrissen, die sich bei Bedarf zu zwei großzügigen Familienwohnungen verbinden lassen. Ideal für Familien, die das Leben unter einem Dach gestalten wollen: Eltern im Erdgeschoss mit direktem Zugang zum Garten, die nächste Generation im Obergeschoss mit eigenem Rückzugsbereich – gemeinsam leben, aber mit ausreichend Freiraum.
Das Herzstück: der große Garten.
Ein Ort für Kinderlachen, Grillabende, Rückzug in die Natur – und all das direkt vor der eigenen Tür. Diese grüne Oase schafft Lebensqualität, die man nicht kaufen, sondern nur erleben kann.
Und auch an die praktischen Dinge des Alltags ist gedacht:
Drei Garagen und drei Stellplätze – bequem parken, kein Suchen.
Durchgehender Balkon zur West- und Südseite – ein Ort für Kaffee am Morgen, Sonnenuntergänge am Abend.
Ein großzügiger Kellerbereich mit Abstellräumen, Wasch- und Trockenraum sowie zwei Hobbyräumen – ideal für Homeoffice, Spielzimmer oder kreative Projekte.
Dieses Haus erzählt eine Geschichte von Zusammenhalt, Vertrauen und Heimatgefühl.
Ein ruhiges Grundstück in gewachsener Nachbarschaft, Raum für mehrere Generationen, eine Umgebung, in der Kinder sicher aufwachsen und Familien langfristig Wurzeln schlagen können.
Wer ein Haus sucht, in dem man ankommt, bleibt und lebt, findet hier weit mehr als vier Wände – er findet ein echtes Zuhause mit Herz.
In einer der schönsten und familienfreundlichsten Wohnlagen im Münchner Westen liegt dieses besondere Mehrfamilienhaus – ein Ort, der weit mehr ist als nur eine Immobilie: Es ist ein echtes Zuhause für Familien, die Nähe und Zusammenhalt schätzen.
Das Haus bietet aktuell vier Wohneinheiten auf zwei Etagen – mit klar gegliederten, warm wirkenden Grundrissen, die sich bei Bedarf zu zwei großzügigen Familienwohnungen verbinden lassen. Ideal für Familien, die das Leben unter einem Dach gestalten wollen: Eltern im Erdgeschoss mit direktem Zugang zum Garten, die nächste Generation im Obergeschoss mit eigenem Rückzugsbereich – gemeinsam leben, aber mit ausreichend Freiraum.
Das Herzstück: der große Garten.
Ein Ort für Kinderlachen, Grillabende, Rückzug in die Natur – und all das direkt vor der eigenen Tür. Diese grüne Oase schafft Lebensqualität, die man nicht kaufen, sondern nur erleben kann.
Und auch an die praktischen Dinge des Alltags ist gedacht:
Drei Garagen und drei Stellplätze – bequem parken, kein Suchen.
Durchgehender Balkon zur West- und Südseite – ein Ort für Kaffee am Morgen, Sonnenuntergänge am Abend.
Ein großzügiger Kellerbereich mit Abstellräumen, Wasch- und Trockenraum sowie zwei Hobbyräumen – ideal für Homeoffice, Spielzimmer oder kreative Projekte.
Dieses Haus erzählt eine Geschichte von Zusammenhalt, Vertrauen und Heimatgefühl.
Ein ruhiges Grundstück in gewachsener Nachbarschaft, Raum für mehrere Generationen, eine Umgebung, in der Kinder sicher aufwachsen und Familien langfristig Wurzeln schlagen können.
Wer ein Haus sucht, in dem man ankommt, bleibt und lebt, findet hier weit mehr als vier Wände – er findet ein echtes Zuhause mit Herz.
Ausstattungsmerkmale
| Bad | 6 |
| Garage/Stellplätze | 3 |
Ausstattung & Highlights – ideal für Familien und Mehrgenerationenkonzept
• Wohnfläche ca. 271 m² · Grundstück ca. 942 m²
Großzügige Flächen, die Familien heute selten finden – ideal, um gemeinsam zu leben und jedem dennoch seinen eigenen Bereich zu ermöglichen.
• Vier Wohneinheiten – perfekt für Mehrgenerationen oder zwei große Familien
Ob Eltern im Erdgeschoss und Kinder im Obergeschoss, zwei verbundene Familienbereiche oder Wohnen + Arbeiten: Die flexible Struktur lässt sich leicht an unterschiedliche Lebensphasen anpassen.
Eine Einheit ist zurzeit vermietet, die übrigen Wohnungen können bei Bedarf frei übergeben werden.
• 12 Zimmer · 6 Schlafzimmer · 4 Bäder
Ausreichend Raum für große Familien, Homeoffice, Gästezimmer oder Spiel- und Rückzugsräume – komfortabel und vielseitig.
• Helle, freundliche Räume dank großer Fensterflächen
Die Einheiten wirken offen, lebendig und einladend – ein Wohngefühl, das Familien sofort anspricht.
• Bodenbeläge: Parkett, Laminat und Teppich
Gepflegt und nutzbar – gleichzeitig bietet die bestehende Ausstattung die Chance, mit wenigen Handgriffen eigene Wohnideen umzusetzen.
• Drei Garagen und drei Außenstellplätze
Entspannter Familienalltag: sichere Stellplätze für mehrere Fahrzeuge, Fahrräder oder Kindertransport – ein echter Vorteil in dieser Lage.
• Gepflegter Gesamtzustand mit Entwicklungspotenzial
Das Haus ist solide und gut bewirtschaftet. Einige Ausstattungsdetails – insbesondere die Bäder – entsprechen noch dem Baujahr und eröffnen hervorragende Möglichkeiten für Modernisierung nach eigenen Vorstellungen.
• Moderne Heiztechnik (Öl-Heizung)
Der Heizkessel wurde erst 2024 erneuert – ein Pluspunkt für Effizienz, Zukunftssicherheit und geringere Betriebskosten.
• Großer, weitläufiger Garten
Ein Paradies für Kinder und Erwachsene: Spielen, Gärtnern, Entspannen – die großzügige Grünfläche schafft ein wertvolles, ruhiges Umfeld für das Familienleben.
• Attraktive Lage in Gräfelfing
Ruhig, sicher, familienfreundlich – mit hervorragender Anbindung an Schulen, Einkaufsmöglichkeiten, ÖPNV und Freizeitangebote. Eine Lage, die langfristige Stabilität und hohe Lebensqualität vereint.
• Wohnfläche ca. 271 m² · Grundstück ca. 942 m²
Großzügige Flächen, die Familien heute selten finden – ideal, um gemeinsam zu leben und jedem dennoch seinen eigenen Bereich zu ermöglichen.
• Vier Wohneinheiten – perfekt für Mehrgenerationen oder zwei große Familien
Ob Eltern im Erdgeschoss und Kinder im Obergeschoss, zwei verbundene Familienbereiche oder Wohnen + Arbeiten: Die flexible Struktur lässt sich leicht an unterschiedliche Lebensphasen anpassen.
Eine Einheit ist zurzeit vermietet, die übrigen Wohnungen können bei Bedarf frei übergeben werden.
• 12 Zimmer · 6 Schlafzimmer · 4 Bäder
Ausreichend Raum für große Familien, Homeoffice, Gästezimmer oder Spiel- und Rückzugsräume – komfortabel und vielseitig.
• Helle, freundliche Räume dank großer Fensterflächen
Die Einheiten wirken offen, lebendig und einladend – ein Wohngefühl, das Familien sofort anspricht.
• Bodenbeläge: Parkett, Laminat und Teppich
Gepflegt und nutzbar – gleichzeitig bietet die bestehende Ausstattung die Chance, mit wenigen Handgriffen eigene Wohnideen umzusetzen.
• Drei Garagen und drei Außenstellplätze
Entspannter Familienalltag: sichere Stellplätze für mehrere Fahrzeuge, Fahrräder oder Kindertransport – ein echter Vorteil in dieser Lage.
• Gepflegter Gesamtzustand mit Entwicklungspotenzial
Das Haus ist solide und gut bewirtschaftet. Einige Ausstattungsdetails – insbesondere die Bäder – entsprechen noch dem Baujahr und eröffnen hervorragende Möglichkeiten für Modernisierung nach eigenen Vorstellungen.
• Moderne Heiztechnik (Öl-Heizung)
Der Heizkessel wurde erst 2024 erneuert – ein Pluspunkt für Effizienz, Zukunftssicherheit und geringere Betriebskosten.
• Großer, weitläufiger Garten
Ein Paradies für Kinder und Erwachsene: Spielen, Gärtnern, Entspannen – die großzügige Grünfläche schafft ein wertvolles, ruhiges Umfeld für das Familienleben.
• Attraktive Lage in Gräfelfing
Ruhig, sicher, familienfreundlich – mit hervorragender Anbindung an Schulen, Einkaufsmöglichkeiten, ÖPNV und Freizeitangebote. Eine Lage, die langfristige Stabilität und hohe Lebensqualität vereint.
Sonstige Informationen
Rechtlicher Hinweis:
Maklercourtage: Ohne zusätzliche Käuferprovision.
Der Makler hat nur mit dem Verkäufer einen Makler-Vertrag abgeschlossen. Gemäß § 656d BGB ist seitens des Verkäufers beabsichtigt, dass der Verkäufer eine Provision in Höhe von maximal 3,57 %, inkl. MwSt., auf den Käufer abwälzt. Zur Abwälzung muss der Käufer sein Einverständnis erklären und stellt eine gesonderte Position im künftigen notariellen Kaufvertrag dar.
Wir haben die Wohnfläche durch Ansicht der Pläne über einen spezialisierten, externen Anbieter Wohnflächenberechnung überprüfen lassen. Wir übernehmen keine Haftung für Angaben Dritter. Ebenso haben wir die Flächen zur Gartennutzung und Grundstücksgröße nicht überprüft, bzw. nachgemessen.
Die Angaben zum Baujahr konnten wir nicht eindeutig ermitteln. Auf Grundlage der vorliegenden Bauunterlagen gehen wir davon aus, dass das Gebäude im Jahr 1976 errichtet wurde; der Schlussabnahmeschein datiert aus dem Jahr 1977. Darüber hinaus übernehmen wir die Angaben aus dem aktuellen Energieausweis.
Da wir Objektangaben nicht selbst ermitteln, sondern diese von Dritten, wie Bauträgern, Architekten sowie Eigentümern stammen, übernehmen wir hierfür keine Haftung. Wir übernehmen keine Haftung für die Vollständigkeit, Richtigkeit und Aktualität dieser Angaben.
Dieses Exposé ist nur für Sie persönlich bestimmt. Eine Weitergabe an Dritte ist an unsere ausdrückliche Zustimmung gebunden. Alle Gespräche sind über unser Büro zu führen. Bei Zuwiderhandlungen behalten wir uns Schadensersatzansprüche vor. Ein Zwischenverkauf ist nicht ausgeschlossen. Diese Immobilie wird im Exklusivvertrag durch unser Haus angeboten.
Die Grunderwerbssteuer, Notar- und Grundbuchkosten sind vom Käufer zu tragen.
In unseren Angeboten wird aus Gründen der besseren Lesbarkeit das generische Maskulinum verwendet.
Exposé Stand: 29.12.2025 - Änderungen vorbehalten
Maklercourtage: Ohne zusätzliche Käuferprovision.
Der Makler hat nur mit dem Verkäufer einen Makler-Vertrag abgeschlossen. Gemäß § 656d BGB ist seitens des Verkäufers beabsichtigt, dass der Verkäufer eine Provision in Höhe von maximal 3,57 %, inkl. MwSt., auf den Käufer abwälzt. Zur Abwälzung muss der Käufer sein Einverständnis erklären und stellt eine gesonderte Position im künftigen notariellen Kaufvertrag dar.
Wir haben die Wohnfläche durch Ansicht der Pläne über einen spezialisierten, externen Anbieter Wohnflächenberechnung überprüfen lassen. Wir übernehmen keine Haftung für Angaben Dritter. Ebenso haben wir die Flächen zur Gartennutzung und Grundstücksgröße nicht überprüft, bzw. nachgemessen.
Die Angaben zum Baujahr konnten wir nicht eindeutig ermitteln. Auf Grundlage der vorliegenden Bauunterlagen gehen wir davon aus, dass das Gebäude im Jahr 1976 errichtet wurde; der Schlussabnahmeschein datiert aus dem Jahr 1977. Darüber hinaus übernehmen wir die Angaben aus dem aktuellen Energieausweis.
Da wir Objektangaben nicht selbst ermitteln, sondern diese von Dritten, wie Bauträgern, Architekten sowie Eigentümern stammen, übernehmen wir hierfür keine Haftung. Wir übernehmen keine Haftung für die Vollständigkeit, Richtigkeit und Aktualität dieser Angaben.
Dieses Exposé ist nur für Sie persönlich bestimmt. Eine Weitergabe an Dritte ist an unsere ausdrückliche Zustimmung gebunden. Alle Gespräche sind über unser Büro zu führen. Bei Zuwiderhandlungen behalten wir uns Schadensersatzansprüche vor. Ein Zwischenverkauf ist nicht ausgeschlossen. Diese Immobilie wird im Exklusivvertrag durch unser Haus angeboten.
Die Grunderwerbssteuer, Notar- und Grundbuchkosten sind vom Käufer zu tragen.
In unseren Angeboten wird aus Gründen der besseren Lesbarkeit das generische Maskulinum verwendet.
Exposé Stand: 29.12.2025 - Änderungen vorbehalten
Karte wird geladen...
Objektstandort
82166 Gräfelfing
- Bayern
Lage & Infrastruktur
Objektstandort
82166 Gräfelfing
- Bayern
Lage – Familienfreundlich, naturnah und bestens angebunden
Dieses Mehrfamilienhaus liegt in einer der beliebtesten Wohngegenden Gräfelfings – ruhig, gewachsen und ideal für Familien, die ein sicheres Umfeld mit kurzen Wegen schätzen. Der lebendige Ortskern ist nur wenige Minuten entfernt und bietet alles, was den Alltag angenehm macht: Supermärkte wie EDEKA, REWE und Landsmann, Bäckereien, Apotheken, Ärzte sowie charmante lokale Geschäfte.
Besonders für Familien ist die Nähe zu Bildungs- und Betreuungsangeboten ein großer Pluspunkt:
- Grundschule Gräfelfing
- Grundschule Lochham
- Kurt-Huber-Gymnasium Gräfelfing
- mehrere Kindergärten und Kitas in der direkten Umgebung
Damit sind sichere Wege und kurze Fahrtzeiten garantiert – ein echtes Qualitätsmerkmal im Familienalltag.
Auch die Anbindung kann überzeugen:
- Die S-Bahn-Linie S6 (Station Gräfelfing) ermöglicht eine schnelle Verbindung in die Münchner Innenstadt sowie Richtung Starnberg und Tutzing.
- Die Buslinien 268, 259 und 267 sorgen für flexible Mobilität innerhalb der Region und binden zuverlässig an Einkaufsmöglichkeiten, Nachbarorten sowie den S- und U-Bahnhof an.
- Mit dem Auto erreicht man über die A96 und den Mittleren Ring zügig die City – gleichzeitig beginnt das ruhige, grüne Würmtal praktisch vor der Haustür.
Für Freizeit und Erholung bietet die Umgebung einen hohen Wohlfühlfaktor: Spazierwege entlang des Würmparks, weite Grünflächen und die typischen gewachsenen Gärten des Würmtals verleihen dem Quartier eine entschleunigte, familienfreundliche Atmosphäre.
Diese Lage vereint alles, was Familien heute suchen: Natur, Sicherheit, kurze Wege und eine Infrastruktur, die den Alltag mühelos macht – eingebettet in eine der wertstabilsten Regionen des Münchner Westens.
Dieses Mehrfamilienhaus liegt in einer der beliebtesten Wohngegenden Gräfelfings – ruhig, gewachsen und ideal für Familien, die ein sicheres Umfeld mit kurzen Wegen schätzen. Der lebendige Ortskern ist nur wenige Minuten entfernt und bietet alles, was den Alltag angenehm macht: Supermärkte wie EDEKA, REWE und Landsmann, Bäckereien, Apotheken, Ärzte sowie charmante lokale Geschäfte.
Besonders für Familien ist die Nähe zu Bildungs- und Betreuungsangeboten ein großer Pluspunkt:
- Grundschule Gräfelfing
- Grundschule Lochham
- Kurt-Huber-Gymnasium Gräfelfing
- mehrere Kindergärten und Kitas in der direkten Umgebung
Damit sind sichere Wege und kurze Fahrtzeiten garantiert – ein echtes Qualitätsmerkmal im Familienalltag.
Auch die Anbindung kann überzeugen:
- Die S-Bahn-Linie S6 (Station Gräfelfing) ermöglicht eine schnelle Verbindung in die Münchner Innenstadt sowie Richtung Starnberg und Tutzing.
- Die Buslinien 268, 259 und 267 sorgen für flexible Mobilität innerhalb der Region und binden zuverlässig an Einkaufsmöglichkeiten, Nachbarorten sowie den S- und U-Bahnhof an.
- Mit dem Auto erreicht man über die A96 und den Mittleren Ring zügig die City – gleichzeitig beginnt das ruhige, grüne Würmtal praktisch vor der Haustür.
Für Freizeit und Erholung bietet die Umgebung einen hohen Wohlfühlfaktor: Spazierwege entlang des Würmparks, weite Grünflächen und die typischen gewachsenen Gärten des Würmtals verleihen dem Quartier eine entschleunigte, familienfreundliche Atmosphäre.
Diese Lage vereint alles, was Familien heute suchen: Natur, Sicherheit, kurze Wege und eine Infrastruktur, die den Alltag mühelos macht – eingebettet in eine der wertstabilsten Regionen des Münchner Westens.
Kontaktanfrage senden
Über den Anbieter
Baldur Immobilien GmbH | RE/MAX Prime
Semmelweisstr. 8
82152 Planegg
Kontakt
| Telefon | 004989904204681 |
| Mobil | 004915257858765 |
| Website | www.remax-prime.de |
Ansprechpartner/in
Frau Kristina Kühn
Weitere Angebote des Anbieters
6
Single-Apartment im 8. Obergeschoss – Wohnen mit ...
Wohnung
81925 München
Dieses 1-Zimmer-Apartment im 8. Obergeschoss vereint Urbanität, Weitblick und Rückzugsort auf ideale Weise – perfekt für Singles, die das Münchner Stadtleben genießen und gleichzeitig ihren eigenen Ruhepol schätzen. ...
750 €
Kaltmiete
33 m²
Wohnfläche
1
Zimmer
8
Bezugsfreies Appartement mit Balkon und TG-Stellplatz- ...
Wohnung
83026 Rosenheim
Die Wohnung überzeugt durch einen durchdachten Grundriss, solide Ausstattung und praktische Details für den Alltag. Ein Balkon in Süd-Ost-Ausrichtung lädt zum Sonnenstart in den Tag ein – die Balkontüre ist beidseitig ...
215.000 €
Kaufpreis
38,82 m²
Wohnfläche
1
Zimmer
13
Nacktes Haus sucht kreative Liebe! 480 m² Garten & ...
Haus
85521 Ottobrunn / Riemerling
Manche nennen es eine Baustelle. Wir nennen es: Maximale gestalterische Freiheit bei minimaler Wandbelastung. Willkommen in Riemerling, wo das Eichhörnchen noch persönlich grüßt und die Münchner Schickeria gerade weit ...
200.000 €
Kaufpreis
58 m²
Wohnfläche
1
Zimmer
30
Hier beginnt Ihr Familienglück – ein Zuhause für Liebe ...
Haus
81477 München / Solln
Stilvolles Familienleben in Sollns bester Lage – großzügige Architektur trifft bleibende Werte In einer der begehrtesten und zugleich angenehm ruhigen Wohnlagen von München-Solln erwartet Sie ein Einfamilienhaus, das ...
2.280.000 €
Kaufpreis
293 m²
Wohnfläche
8
Zimmer
7
Provisionsfrei für Käufer: Duplex-Tiefgaragenstellplatz ...
Parken
80802 München
Im exklusiven Münchner Stadtteil Schwabing, in der Ungererstraße, erwartet Sie eine ideale Lösung für Ihre tägliche Parkplatzsituation: Ein oberer Duplex-Tiefgaragenstellplatz in einem gepflegten, großdimensionierten ...
22.850 €
Kaufpreis
keine Angabe
Wohnfläche
keine Angabe
Zimmer