🤝 "Zwei Generationen, ein Zuhause - Das moderne Zweifamilienhaus-Konzept."
639.055 €
Kaufpreis
189 m²
Wohnfläche
6
Zimmer
immobilien.de Nr.: 9409978
Objektnummer: JW-Stemmler-ZFH-WD-189-04
Preise & Kosten
| Kaufpreis | 639.055 € |
| Nebenkosten | keine Angabe |
Größe & Zustand
| Wohnfläche | 189 m² |
| Grundstücksfläche | 870 m² |
| Zimmer | 6 |
| Baujahr | 2027 |
| VerfĂĽgbar ab | keine Angabe |
| Zustand | Projektiert |
Energie
| Energietyp | KfW-40 |
| Heizungsart | Zentralheizung |
Objektbeschreibung
Der Hausentwurf zum Zweifamilienhaus CITY 190 HOME&GENERATION bietet aufgrund der großen Fensterelemente und Terrassentüren, die im Wohnbereich übereck angelegt sind, ein lichterfülltes Wohnambiente in beiden Wohnungen. Die Architektur ist die Interpretation einer modernen Stadtvilla. Durch mögliche Anbauteile, wie Übereckerker, Erker oder eine Haustürüberdachung, kann der Hausentwurf individualisiert werden.
Ausstattung
| Anzahl der Etagen im Haus | 2 |
| Bad | 2 |
| Boden | Fliesen |
| Terrassen | 1 |
| Keller |
Das Streif City Haus wird im Standard KFW 40 PLUS ausgefĂĽhrt. GrundstĂĽck inkl. Innenausstattung aus dem STREIF-Programm in der Ausbaustufe FF+ inklusive Fundamentplatte.
■Rohbau (geschlossene Gebäudehülle) mit Fenstern, Haustür1 inkl. Dacheindeckung
â– AuĂźenfassade inkl. AuĂźenputz, vor Ort komplett fertiggestellt
â– Komplette Blechner-/Spenglerarbeiten
■lnnen-/Außenwände wärme- und schallgedämmt und mit Gipsfaserplatten geschlossen
â– Geschosstreppe (auĂźer Bungalow)
■Decken wärme- und schallgedämmt und mit Gipskartonbau platten geschlossen
■Elektroinstallation, einschließlich erforderlichem Zählerschrank und Inbetriebnahme
â– Heizungsanlage inkl. Inbetriebnahme
■Innenfensterbänke Kunststeinbänke (Gussmarmorbänke) inkl. Einbau
â– Estrich
■Sanitärräume mit Wand- und Bodenfliesen
■Sanitärräume mit Sanitärobjekten
â– 6,23 kWP Photovoltaikanlage und 7,7 kWh Speicher
Die Innentüren sowie Wand-, Decken- und Bodenbeläge der übrigen Räume sind Eigenleistungen des Bauherren.
STREIF Frischluft-Wärmepumpen-Technologie - inklusive
- Heizen mit frischer AuĂźenluft
- Kein Gasanschluss, kein Ă–l- oder Pelletlagerraum
- Keine Heizkörper
- Wärmetauscher mit bis zu 85% Wärmerückgewinnung
Die dargestellten Bilder können Sonderausstattungen beinhalten, die nicht im Preis enthalten sind!
zzgl. OrtĂĽblicher Baunebenkosten
Selbstverständlich können wir Ihr Haus auch schlüsselfertig / bezugsfertig errichten.
■Bodenbeläge, Sockel leisten verlegt
â– Maler- und Tapezierarbeiten
â– InnentĂĽren inkl. Einbau
■Rohbau (geschlossene Gebäudehülle) mit Fenstern, Haustür1 inkl. Dacheindeckung
â– AuĂźenfassade inkl. AuĂźenputz, vor Ort komplett fertiggestellt
â– Komplette Blechner-/Spenglerarbeiten
■lnnen-/Außenwände wärme- und schallgedämmt und mit Gipsfaserplatten geschlossen
â– Geschosstreppe (auĂźer Bungalow)
■Decken wärme- und schallgedämmt und mit Gipskartonbau platten geschlossen
■Elektroinstallation, einschließlich erforderlichem Zählerschrank und Inbetriebnahme
â– Heizungsanlage inkl. Inbetriebnahme
■Innenfensterbänke Kunststeinbänke (Gussmarmorbänke) inkl. Einbau
â– Estrich
■Sanitärräume mit Wand- und Bodenfliesen
■Sanitärräume mit Sanitärobjekten
â– 6,23 kWP Photovoltaikanlage und 7,7 kWh Speicher
Die Innentüren sowie Wand-, Decken- und Bodenbeläge der übrigen Räume sind Eigenleistungen des Bauherren.
STREIF Frischluft-Wärmepumpen-Technologie - inklusive
- Heizen mit frischer AuĂźenluft
- Kein Gasanschluss, kein Ă–l- oder Pelletlagerraum
- Keine Heizkörper
- Wärmetauscher mit bis zu 85% Wärmerückgewinnung
Die dargestellten Bilder können Sonderausstattungen beinhalten, die nicht im Preis enthalten sind!
zzgl. OrtĂĽblicher Baunebenkosten
Selbstverständlich können wir Ihr Haus auch schlüsselfertig / bezugsfertig errichten.
■Bodenbeläge, Sockel leisten verlegt
â– Maler- und Tapezierarbeiten
â– InnentĂĽren inkl. Einbau
Sonstige Informationen
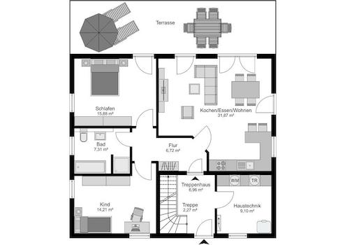
Bilder können evtl. Anbauteile, Carports, Balkone, Gauben, Dachausführungen usw. zeigen, die nicht
im Grundriss abgebildet und nicht im Angebotspreis enthalten sind. Abgebildet ist der Basis
Grundriss ohne Anbauteile. Änderungen und Irrtümer vorbehalten.
im Grundriss abgebildet und nicht im Angebotspreis enthalten sind. Abgebildet ist der Basis
Grundriss ohne Anbauteile. Änderungen und Irrtümer vorbehalten.
Lage des Objektes
Hier verwirklichen Sie Ihre Wohnträume - auf einem soliden Fundament! Der ausgewiesene Preis beinhaltet das Grundstück, zuzüglich der Baunebenkosten, deren Höhe durch Lage und Größe beeinflusst wird.
Ihr GrundstĂĽck wartet bereits auf Ihre Ideen! Wir unterstĂĽtzen Sie gerne dabei, Ihr Traumhaus optimal darauf zu planen und zu realisieren.
Ihr GrundstĂĽck wartet bereits auf Ihre Ideen! Wir unterstĂĽtzen Sie gerne dabei, Ihr Traumhaus optimal darauf zu planen und zu realisieren.
Anbieter kontaktieren
Kontakt
| Telefon | +49 (0) 65 51.12-00 |
| Mobil | +49 171 2225255 |
| Website | www.streif.de |
