Ihr neues Eigenheim mit Eigenleistungen von STREIF Haus

555.600 €
Kaufpreis
117 m²
Wohnfläche
117 m²
Nutzfläche
4
Zimmer
immobilien.de Nr.: 9409948 Objektnummer: JW- 2025-_062_FA_Bannewitz-1
Streif Haus
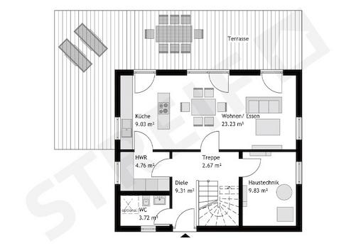
Grundriss Erdgeschoss
Grundriss Dachgeschoss
Streif Haus Familie
Küche mit Holzboden
Bad DG
Gäste WC
Schlafzimmer mint
Frank Strobel
Musterhaus Dresden
Musterhaus Seite
streif-auszeichnung-crefozert
Faires Preis Leistung
Fairste Kundenberatung
Fairste Produktleistung
Fairster Anbieter
Fairster Fertighaus Anbieter
Fairster Kundenservice
QR-Code

Preise & Kosten

Kaufpreis 555.600 €
Nebenkosten keine Angabe

Größe & Zustand

Wohnfläche 117 m²
Nutzfläche 117 m²
Grundstücksfläche 921 m²
Zimmer 4
Baujahr 2027
Verfügbar ab keine Angabe
Zustand Projektiert

Energie

Energietyp KfW-40
Energieträger/Befeuerung Luft-Wärme-Pumpe

Objektbeschreibung

Der offen gestaltete Wohn-/Ess- und Kochbereich ist
lichtdurchflutet. Ein praktischer Hauswirtschaftsraum ist direkt neben der Küche platziert.
Komplettiert wird das Raumangebot im Erdgeschoss mit einem Gäste-WC, das optional
auch als Duschbad ausgeführt werden kann, einer Diele und einem Haustechnikraum.
Im Dachgeschoss des Hauses sind zwei schöne Kinderzimmer, ein Elternschlafzimmer, ein
Flur und ein Familienbad untergebracht. Die Netto-Raumfläche beträgt 117,65 m².
Objektart: Einfamilienhaus, 1,5-geschossig

Dachform: Satteldach
Kniestock: 0,75 m
Hausmaße: 9,33 x 8,08 m
Netto-Raumfläche: 117,65 m²

Ausstattung

Anzahl der Etagen im Haus 2
 
Küche Offene Küche
Bad 1
Bad Dusche, Wanne, Fenster
Das Streif City Haus wird im Standard KFW 40 PLUS ausgeführt. KfW Effizienshaus inkl. Haustechnik aus dem STREIF-Programm in der Ausbaustufe FF+ inklusive einer gedämmten Fundamentplatte.

■ Rohbau (geschlossene Gebäudehülle) mit Fenstern, Haustür, Dacheindeckung
■ Außenfassade inkl. Außenputz, vor Ort komplett fertiggestellt
■ Komplette Blechner-/Spenglerarbeiten
■ lnnen-/Außenwände wärme- und schallgedämmt und mit Gipsfaserplatten geschlossen
■ Geschosstreppe (außer Bungalow)
■ Decken wärme- und schallgedämmt und mit Gipskarton Bauplatten geschlossen
■ Elektroinstallation, einschließlich erforderlichem Zählerschrank und Inbetriebnahme
■ Heizungsanlage inkl. Inbetriebnahme
■ Innenfensterbänke Kunststeinbänke (Gussmarmorbänke) inkl. Einbau
■ Estrich
■ Sanitärräume mit Wand- und Bodenfliesen
■ Sanitärräume mit Sanitärobjekten
■ 6,23 kWp Photovoltaikanlage und 7,7 kWh Speicher

Die Innentüren sowie Wand-, Decken- und Bodenbeläge der übrigen Räume sind Eigenleistungen des Bauherren.

STREIF Frischluft-Wärmepumpen-Technologie - inklusive
- Heizen mit frischer Außenluft
- Kein Gasanschluss, kein Öl- oder Pelletlagerraum
- Keine Heizkörper
- Wärmetauscher mit bis zu 85% Wärmerückgewinnung

Die dargestellten Bilder können Sonderausstattungen beinhalten, die nicht im Preis enthalten sind!

zzgl. Ortüblicher Baunebenkosten

Selbstverständlich können wir Ihr Haus auch schlüsselfertig / bezugsfertig errichten.
■ Bodenbeläge, Sockelleisten verlegt
■ Maler- und Tapezierarbeiten
■ Innentüren inkl. Einbau

Sonstige Informationen

Sie brauchen einen kompetenten und verlässlichen Baupartner? Wir stehen Ihnen von Anfang an zur Seite und begleiten Sie auf dem Weg in Ihr Eigenheim.

Mit großem Engagement, Persönlichkeit und der Fachfirma STREIF mit immensen Bau-Know-how, die seit 1929 auf über 90.000 realisierte Wohnträume zurückblicken kann.

Jedes Haus von STREIF wird individuell als Energiesparhaus geplant und gebaut. Eine nachhaltige, ökologische und wohngesunde Bauweise, eine zertifizierte Ausführungsqualität und eine kurze Bauzeit, dafür stehen wir.

Gerne beraten wir Sie nach Vereinbarung im Musterhaus Dresden Schönefeld oder ganz unkompliziert bei Ihnen zu Hause und erstellen Ihnen ein Angebot mit einer realistisch ermittelten Aufstellung der Gesamt-Investition.

Wir freuen uns auf Ihren Anruf / Nachricht!

Ihr STREIF Fachberater
Frank Strobel

E-Mail: frank.strobel@streif.de

Mobil: 0172 - 9374300





Hinweis:

Vorverkauf und Irrtümer vorbehalten. Bilder können Sonderbauteile darstellen, die im Preis nicht enthalten sind und abweichend von textlichen Inhalten sein.

zzgl. Baunebenkosten.

Der Grundstückserwerb stellt keine STREIF Leistung dar.

Hinweis zu den gesetzlichen Pflichtangaben gemäß der EnEV 2016: Bei dem hier angebotenen Haus handelt es sich um ein Neubauprojekt.

Wir weisen darauf hin, dass zu diesem projektierten Haus noch kein Energieausweis vorliegt. Der Energieausweis wird Ihnen spätestens im Rahmen der Erstellung des Objektes ausgehändigt

Objektstandort

01728 Bannewitz

Lage des Objektes

Bannewitz ist eine Gemeinde im Landkreis Dresden in Sachsen, die sich etwa 10 Kilometer südlich von der sächsischen Landeshauptstadt Dresden befindet. Die Gemeinde liegt malerisch am Fuße des Erzgebirges und ist von einer reizvollen Landschaft mit Wäldern, Wiesen und Feldern umgeben, die zahlreiche Möglichkeiten für Freizeitaktivitäten im Freien bieten, wie Wandern und Radfahren.

Die Anbindung an das Verkehrsnetz ist sehr gut. Bannewitz ist über die Bundesstraße B173 erreichbar, die eine direkte Verbindung nach Dresden und in die umliegenden Regionen bietet. Zudem gibt es eine gute Anbindung an den öffentlichen Nahverkehr, was die Erreichbarkeit der Stadt und der Umgebung erleichtert.

Bannewitz selbst hat eine ruhige, ländliche Atmosphäre und bietet eine Vielzahl von Wohnmöglichkeiten, die besonders für Familien attraktiv sind. Die Gemeinde verfügt über grundlegende Infrastrukturangebote wie Einkaufsmöglichkeiten, Schulen und medizinische Einrichtungen. Zudem gibt es in der Umgebung zahlreiche Freizeitmöglichkeiten, darunter Sportvereine und kulturelle Veranstaltungen.

Insgesamt bietet Bannewitz eine gelungene Kombination aus ländlicher Idylle, guter Erreichbarkeit zur Stadt Dresden und einem freundlichen Gemeinschaftsleben, was es zu einem attraktiven Wohnort macht.

Anbieter kontaktieren

Anbieter

STREIF Haus GmbH
Josef-Streif-Straße 1
54595 Weinsheim

Kontakt

Ansprechpartner/in

Herr Frank Strobel
Weitere Anbieterdaten