Viel Platz – Familien-Reihenendhaus mit Sanierungsfahrplan auf Eckgrundstück in Pulheim
506.000 €
Kaufpreis
152,5 m²
Wohnfläche
6
Zimmer
immobilien.de Nr.: 9409227
Objektnummer: FALC-LyNe-77028
Kaufpreis
| Kaufpreis | 506.000 € |
| Maklerprovision | 2,98 % vom notariell vereinbarten Kaufpreis |
Wohnfläche, Grundstück & Bausubstanz
| Wohnfläche | 152,5 m² |
| Grundstücksfläche | 468 m² |
| Zimmer | 6 |
| Baujahr | 1961 |
| Letzte Modernisierung | 2005 |
| Verfügbar ab | sofort |
| Zustand | Teil Vollrenovierungsbed |
Energie
| Energieausweistyp | Bedarfsausweis |
| Ausstellungsdatum | 17. 12. 2025 |
| Gültig bis | 16.12.2035 |
| Energieeffizienzklasse | H |
| Endenergiebedarf | 279.5 |
| Wesentlicher Energieträger | Öl |
| Energieträger/Befeuerung | Öl |
Beschreibung der Immobilie
Familienfreundliches Reihenendhaus auf traumhaftem Eckgrundstück in Pulheim
Auf einem **sehr schön gelegenen Eckgrundstück mit ca. 450 m² Grundstücksfläche** befindet sich dieses großzügige Reihenendhaus, das mit viel Platz, durchdachter Raumaufteilung und einem hohen Maß an Wohnkomfort überzeugt.
Das Haus verfügt über insgesamt 6 Zimmer zzgl. eines Ankleide- oder kleinen Bürozimmers, verteilt auf zwei Wohnetagen. Die Wohnfläche beträgt ca. 152,5 m², ergänzt durch einen vollwertigen Keller mit ca. 70 m² Nutzfläche.
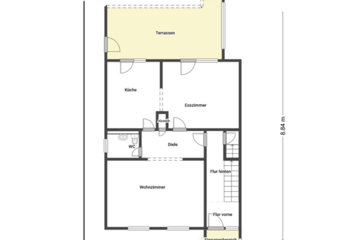
Im Erdgeschoss empfängt Sie ein offenes, großzügiges Wohnkonzept:
Die Küche und das Esszimmer gehen fließend ineinander über und bieten einen direkten Zugang zur großen Terrasse und dem weitläufigen Garten – ideal für Familienleben und gesellige Stunden im Freien. Das Wohnzimmer liegt gegenüber, ist ebenfalls offen und sehr großzügig gestaltet. Abgerundet wird diese Ebene durch einen Abstellraum sowie ein Badezimmer.
Das Obergeschoss bietet vier gut geschnittene Zimmer sowie ein zusätzliches kleines Zugangszimmer, das sich ideal als Ankleide oder Homeoffice eignet. Ein weiteres Badezimmer sowie ein Balkon mit Zugang vom Schlafzimmer sorgen für zusätzlichen Komfort.
Der großzügige Keller bietet nicht nur viel Stauraum, sondern auch einen direkten Treppenaufgang in den Garten, was ihn besonders funktional macht.
Garage & Stellmöglichkeiten
Zur Immobilie gehört **eine Garage**, die zusätzlichen Komfort bietet und Ihr Fahrzeug sicher und witterungsgeschützt unterbringt. Weitere Abstell- oder Nutzmöglichkeiten lassen sich hier ebenfalls realisieren.
Energie & Zukunftsperspektive
Für die Immobilie liegt ein individueller Sanierungsfahrplan vor, der eine energetische Optimierung von derzeit ca. 310 kWh/(m²a) auf ca. 55 kWh/(m²a) ermöglicht.
Der Sanierungsplan wird nach Besichtigung an interessierte Käufer ausgehändigt. Dadurch profitieren Sie nicht nur von einer nachhaltigen Wertsteigerung, sondern auch von attraktiven staatlichen Förderungen, die für einzelne Maßnahmen bis zu 15 Jahre in Anspruch genommen werden können.
Fazit:
Dieses Haus ist ideal für **Familien, die viel Platz, ein großes Grundstück und eine ruhige, attraktive Lage** schätzen und gleichzeitig die Möglichkeit suchen, ihr neues Zuhause **zukunftssicher und energieeffizient** zu gestalten.
Auf einem **sehr schön gelegenen Eckgrundstück mit ca. 450 m² Grundstücksfläche** befindet sich dieses großzügige Reihenendhaus, das mit viel Platz, durchdachter Raumaufteilung und einem hohen Maß an Wohnkomfort überzeugt.
Das Haus verfügt über insgesamt 6 Zimmer zzgl. eines Ankleide- oder kleinen Bürozimmers, verteilt auf zwei Wohnetagen. Die Wohnfläche beträgt ca. 152,5 m², ergänzt durch einen vollwertigen Keller mit ca. 70 m² Nutzfläche.
Im Erdgeschoss empfängt Sie ein offenes, großzügiges Wohnkonzept:
Die Küche und das Esszimmer gehen fließend ineinander über und bieten einen direkten Zugang zur großen Terrasse und dem weitläufigen Garten – ideal für Familienleben und gesellige Stunden im Freien. Das Wohnzimmer liegt gegenüber, ist ebenfalls offen und sehr großzügig gestaltet. Abgerundet wird diese Ebene durch einen Abstellraum sowie ein Badezimmer.
Das Obergeschoss bietet vier gut geschnittene Zimmer sowie ein zusätzliches kleines Zugangszimmer, das sich ideal als Ankleide oder Homeoffice eignet. Ein weiteres Badezimmer sowie ein Balkon mit Zugang vom Schlafzimmer sorgen für zusätzlichen Komfort.
Der großzügige Keller bietet nicht nur viel Stauraum, sondern auch einen direkten Treppenaufgang in den Garten, was ihn besonders funktional macht.
Garage & Stellmöglichkeiten
Zur Immobilie gehört **eine Garage**, die zusätzlichen Komfort bietet und Ihr Fahrzeug sicher und witterungsgeschützt unterbringt. Weitere Abstell- oder Nutzmöglichkeiten lassen sich hier ebenfalls realisieren.
Energie & Zukunftsperspektive
Für die Immobilie liegt ein individueller Sanierungsfahrplan vor, der eine energetische Optimierung von derzeit ca. 310 kWh/(m²a) auf ca. 55 kWh/(m²a) ermöglicht.
Der Sanierungsplan wird nach Besichtigung an interessierte Käufer ausgehändigt. Dadurch profitieren Sie nicht nur von einer nachhaltigen Wertsteigerung, sondern auch von attraktiven staatlichen Förderungen, die für einzelne Maßnahmen bis zu 15 Jahre in Anspruch genommen werden können.
Fazit:
Dieses Haus ist ideal für **Familien, die viel Platz, ein großes Grundstück und eine ruhige, attraktive Lage** schätzen und gleichzeitig die Möglichkeit suchen, ihr neues Zuhause **zukunftssicher und energieeffizient** zu gestalten.
Ausstattungsmerkmale
| Anzahl der Etagen im Haus | 2 |
| Bad | 2 |
| Bad | Dusche |
| Boden | Fliesen |
| Balkone | 1 |
| Garten | |
| Terrassen | 1 |
| Keller |
- Einfamilienhaus, Baujahr 1960/1961
- Wohnfläche ca. 152,5 m²
- 5 Zimmer mit angrenzendem zusätzlichem Raum sowie einem kleineren Zimmer im OG
- überdachte Terrasse mit Balkon vorhanden
- Garten vorhanden
- Keller vorhanden
- Garage vorhanden
- Fenstertüren und Fenster aus Holz mit Isolierverglasung (Fenster teilweise Baujahr 1998, teilweise 1980er Jahre mit Glaseinsätzen lt. Prägung aus dem Jahr 2000, teilweise erneuerte Fenster aus dem Jahr 2006), Fensterbänke innen aus Naturstein, außen keramisch
- Rollläden nur im Erdgeschoss aus Kunststoff und mit elektrischem Antrieb vorhanden
- Hauseingangstür aus Holz (Baujahr 2000), Seitenteil mit Glasbausteinen
Gebäudekonstruktion:
- Massivbau
- Satteldach, flach geneigt ohne Drempel - Holzdach ohne Dachgauben, harte Bedachung, Dachsteine
- Wärmedämmung Dach: Zwischensparrendämmung (teilweise durchhängend) und auf der obersten Geschossdecke vorhanden
- Dachrinnen und Regenfallrohre aus Zinkblech
- Geschossdecken aus Beton
- Innenwände massiv, vermutlich aus Bimsstein und Kalksandstein
- Außenwände massiv, vermutlich Hohlblockstein, an den Außenseiten mit nur geringer Innendämmung
- Ölzentralheizung von Wolf, vermutlich Niedertemperatur (Edelstahlrohr zum Kamin), Baujahr 2005
- kellergeschweißter Stahltank aus dem Jahr 1973 mit rd. 5.000 Liter Fassungsvermögen
- vereinzelt Stahlrippenheizkörper, überwiegend Universalheizkörper mit Thermostatventilen, Handtuchheizkörper im Bad
- Warmwasservorratsbehälter von ARTIG für eine zentrale Versorgung über die Heizung, Fassungsvermögen 160 Liter, Baujahr 2005
- Wohnfläche ca. 152,5 m²
- 5 Zimmer mit angrenzendem zusätzlichem Raum sowie einem kleineren Zimmer im OG
- überdachte Terrasse mit Balkon vorhanden
- Garten vorhanden
- Keller vorhanden
- Garage vorhanden
- Fenstertüren und Fenster aus Holz mit Isolierverglasung (Fenster teilweise Baujahr 1998, teilweise 1980er Jahre mit Glaseinsätzen lt. Prägung aus dem Jahr 2000, teilweise erneuerte Fenster aus dem Jahr 2006), Fensterbänke innen aus Naturstein, außen keramisch
- Rollläden nur im Erdgeschoss aus Kunststoff und mit elektrischem Antrieb vorhanden
- Hauseingangstür aus Holz (Baujahr 2000), Seitenteil mit Glasbausteinen
Gebäudekonstruktion:
- Massivbau
- Satteldach, flach geneigt ohne Drempel - Holzdach ohne Dachgauben, harte Bedachung, Dachsteine
- Wärmedämmung Dach: Zwischensparrendämmung (teilweise durchhängend) und auf der obersten Geschossdecke vorhanden
- Dachrinnen und Regenfallrohre aus Zinkblech
- Geschossdecken aus Beton
- Innenwände massiv, vermutlich aus Bimsstein und Kalksandstein
- Außenwände massiv, vermutlich Hohlblockstein, an den Außenseiten mit nur geringer Innendämmung
- Ölzentralheizung von Wolf, vermutlich Niedertemperatur (Edelstahlrohr zum Kamin), Baujahr 2005
- kellergeschweißter Stahltank aus dem Jahr 1973 mit rd. 5.000 Liter Fassungsvermögen
- vereinzelt Stahlrippenheizkörper, überwiegend Universalheizkörper mit Thermostatventilen, Handtuchheizkörper im Bad
- Warmwasservorratsbehälter von ARTIG für eine zentrale Versorgung über die Heizung, Fassungsvermögen 160 Liter, Baujahr 2005
Sonstige Informationen
Geben Sie bei der Kontaktaufnahme bitte immer die vollständige Adresse und Rufnummer an - vielen Dank!
Werte gemäß Gebäudeenergiegesetz (vormals: EnEV):
Energieausweistyp: Bedarfsausweis
gültig bis: 16.12.2035
Baujahr des Hauses: 1961
Baujahr der Heizung: 2005
Hauptenergieträger: Öl
Energiekennwert: 279,5 kWh/(m²*a)
Energieeffizienzklasse: H
Die Objektbeschreibung beruht ganz oder zum Teil auf Angaben des Eigentümers. Für die Richtigkeit oder Vollständigkeit übernehmen wir keine Gewähr.
Bitte beachten Sie, dass die Bilder teilweise digital gestaged sind.
Werte gemäß Gebäudeenergiegesetz (vormals: EnEV):
Energieausweistyp: Bedarfsausweis
gültig bis: 16.12.2035
Baujahr des Hauses: 1961
Baujahr der Heizung: 2005
Hauptenergieträger: Öl
Energiekennwert: 279,5 kWh/(m²*a)
Energieeffizienzklasse: H
Die Objektbeschreibung beruht ganz oder zum Teil auf Angaben des Eigentümers. Für die Richtigkeit oder Vollständigkeit übernehmen wir keine Gewähr.
Bitte beachten Sie, dass die Bilder teilweise digital gestaged sind.
Karte wird geladen...
Objektstandort
50259 Pulheim
- Nordrhein-Westfalen
Lage & Infrastruktur
Objektstandort
50259 Pulheim
- Nordrhein-Westfalen
Lagebeschreibung:
Die Immobilie befindet sich in der Stadt Pulheim, im Rhein-Erft-Kreis, einer beliebten Wohnlage im direkten Einzugsgebiet der Metropole Köln. Pulheim verbindet eine ruhige, familienfreundliche Atmosphäre mit einer sehr guten verkehrlichen Anbindung und einer hervorragend ausgebauten Infrastruktur.
Die Pulheimer Stadtmitte ist in ca. 1,5 km erreichbar und bietet vielfältige Einkaufsmöglichkeiten, Cafés, Restaurants sowie alle Einrichtungen des täglichen Bedarfs. Die Kölner Innenstadt liegt nur ca. 15 km entfernt, Düsseldorf erreichen Sie in etwa 30 km. Der Flughafen Köln/Bonn ist ebenfalls in ca. 30 km gut erreichbar.
Verkehrstechnisch ist der Standort hervorragend angebunden:
Der Autobahnanschluss A57 (Köln – Neuss / Düsseldorf) sowie die A1 mit Anschlussstellen Worringen und Bocklemünd in Richtung Koblenz bzw. Dortmund sind jeweils in ca. 6 km erreichbar.
Der Bahnhof Pulheim befindet sich in ca. 2 km Entfernung und bietet eine schnelle Anbindung an den regionalen Bahnverkehr. Eine Bushaltestelle ist fußläufig in ca. 500 m erreichbar. Ein Spielplatz in direkter Nähe unterstreicht den familienfreundlichen Charakter der Lage.
Die Infrastruktur des täglichen Bedarfs ist vollständig vorhanden: Schulen, Kindergärten, Ärzte, Apotheken, Banken, Tankstellen, vielfältige Einkaufsmöglichkeiten sowie Restaurants befinden sich im näheren Umfeld. Krankenhäuser sind in den nahegelegenen Städten Dormagen und Frechen gut erreichbar.
Grundstücksbeschreibung:
Das Reihenendhaus liegt auf einem ruhigen Grundstück mit einem nach Südwesten ausgerichteten Garten, der optimale Sonnenverhältnisse bis in die Abendstunden bietet.
Das Grundstück befindet sich am Ende eines Fußweges, der von einer öffentlichen Erschließungsanlage ausgeht. Die angrenzende Wohnstraße (Iltisweg) ist eine ruhige Anliegerstraße. Das Haus selbst ist nicht unmittelbar mit Fahrzeugen anfahrbar, was zu einer besonders ruhigen und sicheren Wohnatmosphäre beiträgt.
Durch die Pacht einer Teilfläche des Flurstücks Nr. 2900 von der Stadt Pulheim besteht eine zusätzliche fußläufige Anbindung an den Fuchspfad, wodurch sich ein weiterer komfortabler Zugang ergibt.
Das separate Garagengrundstück grenzt über einen Vorplatz direkt an den öffentlichen Verkehrsraum (Iltisweg) und gewährleistet eine bequeme Zufahrt sowie eine sichere Abstellmöglichkeit für Ihr Fahrzeug.
Die Immobilie befindet sich in der Stadt Pulheim, im Rhein-Erft-Kreis, einer beliebten Wohnlage im direkten Einzugsgebiet der Metropole Köln. Pulheim verbindet eine ruhige, familienfreundliche Atmosphäre mit einer sehr guten verkehrlichen Anbindung und einer hervorragend ausgebauten Infrastruktur.
Die Pulheimer Stadtmitte ist in ca. 1,5 km erreichbar und bietet vielfältige Einkaufsmöglichkeiten, Cafés, Restaurants sowie alle Einrichtungen des täglichen Bedarfs. Die Kölner Innenstadt liegt nur ca. 15 km entfernt, Düsseldorf erreichen Sie in etwa 30 km. Der Flughafen Köln/Bonn ist ebenfalls in ca. 30 km gut erreichbar.
Verkehrstechnisch ist der Standort hervorragend angebunden:
Der Autobahnanschluss A57 (Köln – Neuss / Düsseldorf) sowie die A1 mit Anschlussstellen Worringen und Bocklemünd in Richtung Koblenz bzw. Dortmund sind jeweils in ca. 6 km erreichbar.
Der Bahnhof Pulheim befindet sich in ca. 2 km Entfernung und bietet eine schnelle Anbindung an den regionalen Bahnverkehr. Eine Bushaltestelle ist fußläufig in ca. 500 m erreichbar. Ein Spielplatz in direkter Nähe unterstreicht den familienfreundlichen Charakter der Lage.
Die Infrastruktur des täglichen Bedarfs ist vollständig vorhanden: Schulen, Kindergärten, Ärzte, Apotheken, Banken, Tankstellen, vielfältige Einkaufsmöglichkeiten sowie Restaurants befinden sich im näheren Umfeld. Krankenhäuser sind in den nahegelegenen Städten Dormagen und Frechen gut erreichbar.
Grundstücksbeschreibung:
Das Reihenendhaus liegt auf einem ruhigen Grundstück mit einem nach Südwesten ausgerichteten Garten, der optimale Sonnenverhältnisse bis in die Abendstunden bietet.
Das Grundstück befindet sich am Ende eines Fußweges, der von einer öffentlichen Erschließungsanlage ausgeht. Die angrenzende Wohnstraße (Iltisweg) ist eine ruhige Anliegerstraße. Das Haus selbst ist nicht unmittelbar mit Fahrzeugen anfahrbar, was zu einer besonders ruhigen und sicheren Wohnatmosphäre beiträgt.
Durch die Pacht einer Teilfläche des Flurstücks Nr. 2900 von der Stadt Pulheim besteht eine zusätzliche fußläufige Anbindung an den Fuchspfad, wodurch sich ein weiterer komfortabler Zugang ergibt.
Das separate Garagengrundstück grenzt über einen Vorplatz direkt an den öffentlichen Verkehrsraum (Iltisweg) und gewährleistet eine bequeme Zufahrt sowie eine sichere Abstellmöglichkeit für Ihr Fahrzeug.
Kontaktanfrage senden
Über den Anbieter
FALC Immobilien GmbH & Co. KG
Humperdickstr. 3
53773 Hennef (Sieg)
Kontakt
| Telefon | +49 2238 468 68 0 |
| Mobil | +49 151 42266465 |
| Fax | +49 2242 9010319 |
| Website | www.falcimmo.de |
Ansprechpartner/in
Frau Lydia Neukirchen
Weitere Angebote des Anbieters
12
Bungalows-Projekt mit Solarium, Pool ab 05/2027 in San ...
Haus
30730 San Javier
Diese stilvollen Neubauvillen verbinden modernes Design mit mediterranem Lebensgefühl und befinden sich in attraktiver Lage an der sonnigen Costa Cálida. Die kleine Wohnanlage umfasst insgesamt 14 hochwertige Villen, ...
258.900 €
Kaufpreis
74,64 m²
Wohnfläche
3
Zimmer
25
Optimal für die junge Familie !!
Haus
76228 Karlsruhe
Die hier angebotene Doppelhaushälfte , in zweiter Reihe liegend, wurde 2011 gebaut und bietet auf einem Grundstück von 235 m², eine Wohnfläche von ca. 121 m² verteilt auf drei Etagen. Im Erdgeschoss befinden sich der ...
540.000 €
Kaufpreis
120,58 m²
Wohnfläche
5
Zimmer
12
Modernes Wohnen in Nottuln/Appelhülsen - Neubau-/ ...
Wohnung
48301 Nottuln
Diese moderne Neubauwohnung befindet sich im Obergeschoss eines hochwertig errichteten Mehrfamilienhauses im hinteren Grundstücksbereich, in der Steverstraße 17 in Nottuln/Appelhülsen. Das Gebäude wurde als Neubau im ...
290.299 €
Kaufpreis
62,43 m²
Wohnfläche
2
Zimmer
10
Modernes Wohnen in Nottuln/Appelhülsen - Neubau-/ ...
Wohnung
48301 Nottuln
Diese besondere Neubauwohnung befindet sich im Dachgeschoss eines hochwertig errichteten Mehrfamilienhauses im hinteren Grundstücksbereich, in der Steverstraße 17 in Nottuln/Appelhülsen. Das Gebäude wurde als Neubau im ...
452.224 €
Kaufpreis
99,39 m²
Wohnfläche
3
Zimmer
12
Modernes Wohnen in Nottuln/Appelhülsen - Neubau-/ ...
Wohnung
48301 Nottuln
Diese moderne Neubauwohnung befindet sich im Obergeschoss eines hochwertig errichteten Mehrfamilienhauses im hinteren Grundstücksbereich, in der Steverstraße 17 in Nottuln/Appelhülsen. Das Gebäude wurde als Neubau im ...
286.021 €
Kaufpreis
61,51 m²
Wohnfläche
2
Zimmer