Leere Leinwand für Ihr neues Zuhause – Doppelhaushälfte in Schrobenhausen
380.000 €
Kaufpreis
165 m²
Wohnfläche
6
Zimmer
immobilien.de Nr.: 9409074
Objektnummer: ts104
Kaufpreis
| Kaufpreis | 380.000 € |
| Maklerprovision | 3,57 % |
| Stellplatz Garage Kaufpreis | 0 € |
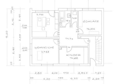
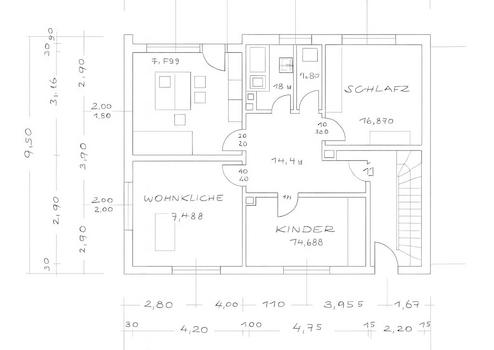
Wohnfläche, Grundstück & Bausubstanz
| Wohnfläche | 165 m² |
| Grundstücksfläche | 583 m² |
| Zimmer | 6 |
| Baujahr | 1971 |
| Verfügbar ab | sofort |
| Zustand | Teil Vollrenovierungsbed |
Energie
| Energieausweistyp | Verbrauch |
| Gültig bis | 2035-11-30 |
| Baujahr (laut Energieausweis) | 1971 |
| Energieeffizienzklasse | D |
| Energieverbrauchkennwert | 107.10 kWh/(m²*a) |
| Wesentlicher Energieträger | Oel |
Beschreibung der Immobilie
Willkommen zu Ihrem neuen Zuhause in Schrobenhausen! Diese Doppelhaushälfte aus dem Jahr 1971 bietet auf zwei Etagen rund 165 m² Wohnfläche und zahlreiche Möglichkeiten zur individuellen Gestaltung. Das Haus ist renovierungsbedürftig – ideal für alle, die ein persönliches Projekt suchen und ihren eigenen Stil verwirklichen möchten.
Auf dem großzügigen Grundstück mit ca. 583 m² erwarten Sie viel Platz für Gartenideen, Freizeitaktivitäten und entspannte Stunden im Freien. Eine Terrasse, ein Balkon sowie eine praktische Doppelgarage runden das Angebot ab.
Im Inneren stehen sechs flexibel nutzbare Zimmer zur Verfügung. Die einfache Ausstattung mit unterschiedlichen Bodenbelägen bietet eine solide Basis für Modernisierungen ganz nach Ihren Vorstellungen.
Das Objekt eignet sich besonders für Familien, Paare oder handwerklich begabte Käufer, die ihre Wohnträume realisieren möchten. Da das Haus sofort verfügbar ist, können Sie direkt mit der Planung beginnen.
Nutzen Sie diese Gelegenheit, ein Haus mit Potenzial in einer begehrten Lage Schrobenhausens nach Ihren Wünschen zu gestalten. Kontaktieren Sie uns gerne für weitere Informationen oder einen Besichtigungstermin!
Auf dem großzügigen Grundstück mit ca. 583 m² erwarten Sie viel Platz für Gartenideen, Freizeitaktivitäten und entspannte Stunden im Freien. Eine Terrasse, ein Balkon sowie eine praktische Doppelgarage runden das Angebot ab.
Im Inneren stehen sechs flexibel nutzbare Zimmer zur Verfügung. Die einfache Ausstattung mit unterschiedlichen Bodenbelägen bietet eine solide Basis für Modernisierungen ganz nach Ihren Vorstellungen.
Das Objekt eignet sich besonders für Familien, Paare oder handwerklich begabte Käufer, die ihre Wohnträume realisieren möchten. Da das Haus sofort verfügbar ist, können Sie direkt mit der Planung beginnen.
Nutzen Sie diese Gelegenheit, ein Haus mit Potenzial in einer begehrten Lage Schrobenhausens nach Ihren Wünschen zu gestalten. Kontaktieren Sie uns gerne für weitere Informationen oder einen Besichtigungstermin!
Ausstattungsmerkmale
| Anzahl der Etagen im Haus | 2 |
| Boden | Fliesen, Teppich, Estrich, Doppelboden |
| Garten | |
| Terrassen | 1 |
| Garage/Stellplätze | 2 |
| Keller |
- Fliesen- und Teppichboden
- Estrich- und Betonboden
- Doppelboden
- Terrasse und Balkon vorhanden
- Doppelgarage
- Garten mit schöner Süd-West Ausrichtung
Die Wohnfläche von ca. 165 m² verteilt sich auf 6 Zimmer zzgl. zwei Badezimmer, sowie zwei Küchenräume. Der Charakter des Hauses ist noch erkennbar, doch es ist offensichtlich, dass hier Hand angelegt werden muss, um aus dieser Immobilie wieder ein echtes Schmuckstück zu zaubern.
- Estrich- und Betonboden
- Doppelboden
- Terrasse und Balkon vorhanden
- Doppelgarage
- Garten mit schöner Süd-West Ausrichtung
Die Wohnfläche von ca. 165 m² verteilt sich auf 6 Zimmer zzgl. zwei Badezimmer, sowie zwei Küchenräume. Der Charakter des Hauses ist noch erkennbar, doch es ist offensichtlich, dass hier Hand angelegt werden muss, um aus dieser Immobilie wieder ein echtes Schmuckstück zu zaubern.
Sonstige Informationen
Für einen persönlichen Besichtigungstermin stehen wir Ihnen gerne zur Verfügung.
Bitte bedenken Sie, dass Ihnen nur eine persönliche Besichtigung einen umfassenden Eindruck zu unserem Objekt vermitteln kann.
Bitte bedenken Sie, dass Ihnen nur eine persönliche Besichtigung einen umfassenden Eindruck zu unserem Objekt vermitteln kann.
Karte wird geladen...
Objektstandort
86529 Schrobenhausen
Lage & Infrastruktur
Objektstandort
86529 Schrobenhausen
Diese charmante Doppelhaushälfte befindet sich in einer ruhigen und familienfreundlichen Wohngegend von Schrobenhausen. Die malerische Kleinstadt in Oberbayern zeichnet sich durch ihre idyllische Lage und ihre Nähe zur Natur aus. Umgeben von attraktiven Landschaften, bietet die Stadt eine hohe Lebensqualität und zahlreiche Freizeitmöglichkeiten.
Schrobenhausen ist bekannt für seine historische Altstadt mit gut erhaltenen Bauten und einem vielfältigen kulturellen Angebot. Die hervorragende Verkehrsanbindung ermöglicht es Ihnen, die umliegenden Städte bequem zu erreichen. In der näheren Umgebung finden Sie sämtliche Einrichtungen des täglichen Bedarfs, einschließlich Einkaufszentren, Schulen und medizinischer Versorgung.
Diese Lage eignet sich hervorragend für Familien sowie für Berufspendler, die eine ruhige Wohnatmosphäre schätzen und gleichzeitig von den Annehmlichkeiten einer gut erschlossenen Infrastruktur profitieren möchten.
Schrobenhausen ist bekannt für seine historische Altstadt mit gut erhaltenen Bauten und einem vielfältigen kulturellen Angebot. Die hervorragende Verkehrsanbindung ermöglicht es Ihnen, die umliegenden Städte bequem zu erreichen. In der näheren Umgebung finden Sie sämtliche Einrichtungen des täglichen Bedarfs, einschließlich Einkaufszentren, Schulen und medizinischer Versorgung.
Diese Lage eignet sich hervorragend für Familien sowie für Berufspendler, die eine ruhige Wohnatmosphäre schätzen und gleichzeitig von den Annehmlichkeiten einer gut erschlossenen Infrastruktur profitieren möchten.
Kontaktanfrage senden
Kontakt
| Telefon | 004916099621888 |
| Mobil | 004916099621888 |
| Website | www.immo8.de |
Ansprechpartner/in
Herr Rainer Hora
Weitere Angebote des Anbieters
7
Kleines Wohnglück - ideal für Singles -
Wohnung
86529 Schrobenhausen / Mühlried
Diese attraktive 2-Zimmer-Wohnung im Erstbezug befindet sich in einer ruhigen Wohnsiedlung in Mühlried. Herzstück der Wohnung ist der offen gestaltete Wohn- und Essbereich mit integrierter Küche. Von hier aus gelangen ...
675 €
Kaltmiete
46,5 m²
Wohnfläche
2
Zimmer
9
Komfortables Wohnen - Erstbezug -
Wohnung
86529 Schrobenhausen / Mühlried
Diese neugebaute 3 Zimmer-Wohnung überzeugt durch eine gelungene Kombination aus zeitgemäßem Wohnkomfort, gehobener Ausstattung und einer ruhigen, angenehmen Lage. Ideal für Personen, die Wert auf Qualität und ein ...
980 €
Kaltmiete
70 m²
Wohnfläche
3
Zimmer
7
Repräsentative Büro- oder Ladenfläche in zentraler ...
Büro / Praxen
86551 Aichach
Zur Vermietung steht eine exklusive Büro- oder Ladeneinheit im Zentrum von Aichach. Die gepflegte Gewerbefläche überzeugt mit einer praktikablen Ausstattungsqualität und ist bezugsbereit nach Vereinbarung. Entdecken ...
800 €
Kaltmiete
80 m²
Gesamtfläche
6
Modernes Wohnen mit nostalgischem Flair
Wohnung
86529 Schrobenhausen
Diese charmante 2-Zimmer-Dachgeschosswohnung vereint modernen Wohnkomfort mit dem besonderen Flair sichtbarer Holzbalken. Im Zuge einer umfassenden Kernsanierung im Jahr 2020 wurde die Wohnung mit viel Liebe zum Detail ...
810 €
Kaltmiete
72,7 m²
Wohnfläche
2
Zimmer
18
Exklusives Wohnerlebnis - Einfamilienhaus mit ...
Haus
86529 Schrobenhausen
Exklusives und hochwertig ausgestattetes Einfamilienhaus in einer der begehrtesten Wohnlagen von Schrobenhausen. Absolut ruhig gelegen auf einem ca. 724 m² großen, sonnigen Grundstück. Dieses Einfamilienhaus lässt ...
1.060.000 €
Kaufpreis
215 m²
Wohnfläche
6
Zimmer