Großzügiges Familienhaus in Hüttigweiler
405.657 €
Kaufpreis
154,45 m²
Wohnfläche
5
Zimmer
immobilien.de Nr.: 9406134
Objektnummer: 251090005PW05-260105
Kaufpreis
| Kaufpreis | 405.657 € |
| Stellplatz Garage Kaufpreis | 9.000 € |
Wohnfläche, Grundstück & Bausubstanz
| Wohnfläche | 154,45 m² |
| Grundstücksfläche | 2.700 m² |
| Zimmer | 5 |
| Baujahr | 2026 |
| Verfügbar ab | nach Vereinbarung |
| Zustand | Erstbezug |
Energie
| Energieausweistyp | Verbrauch |
| Baujahr (laut Energieausweis) | 2026 |
| Energieeffizienzklasse | A+ |
| Energietyp | Niedrigenergie, Neubaustandard, KfW-55 |
| Energieverbrauchkennwert | 43.00 kWh/(m²*a) |
| Heizungsart | Zentralheizung |
| Wesentlicher Energieträger | Strom |
| Energieträger/Befeuerung | Luft-Wärme-Pumpe |
Beschreibung der Immobilie
Das großzügige Haus mit Satteldach punktet mit einem gut durchdachten Grundriss. Der offen gestaltete Wohn-/Ess- und Kochbereich ist lichtdurchflutet. Ein praktischer Hauswirtschaftsraum ist direkt neben der Küche platziert. Komplettiert wird das Raumangebot im Erdgeschoss mit einem Gäste-WC, das optional auch als Duschbad ausgeführt werden kann, einer Diele und einem Haustechnikraum.
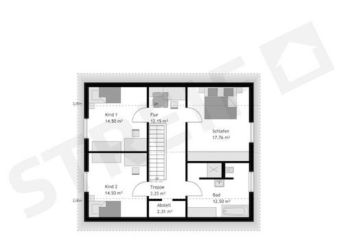
Im Dachgeschoss des Hauses sind zwei schöne Kinderzimmer, ein Elternschlafzimmer, ein Flur und ein Familienbad untergebracht. Die Lage der Treppe und des Haustechnikraumes sind fixiert.
Objektart: Einfamilienhaus, 1,5-geschossig
Dachform: Satteldach
Kniestock: 1,25m
Im Dachgeschoss des Hauses sind zwei schöne Kinderzimmer, ein Elternschlafzimmer, ein Flur und ein Familienbad untergebracht. Die Lage der Treppe und des Haustechnikraumes sind fixiert.
Objektart: Einfamilienhaus, 1,5-geschossig
Dachform: Satteldach
Kniestock: 1,25m
Ausstattungsmerkmale
| Anzahl der Etagen im Haus | 2 |
| Küche | Offene Küche |
| Bad | 1 |
| Bad | Dusche, Wanne, Fenster |
| Boden | Fliesen, Stein, Teppich, Parkett, Fertigparkett, Laminat, Dielen, Kunststoff, Linoleum, Marmor, Granit |
| Terrassen | 1 |
| Barrierefrei | |
| Garage/Stellplätze | 1 |
Unser Platzwunder begeistert durch ein ganz besonderes Extra, eine DESIGNKÜCHE von NOBILIA ist passend zum Grundriss bereits im besonders günstigen Aktionspreis enthalten.
Und selbstverständlich bekommen Sie von uns Ihr Haus fastfertig+
Das bedeutet, die komplette Technik und die Bäder inklusive der Montage der Sanitärobjekte sind von uns fertiggestellt.
Sie kümmern sich lediglich noch um die Malerarbeiten, die Bodenbeläge (außer Bäder) und die Innentüren.
Und wenn Sie wollen, können Sie diese Arbeiten stufenweise zu fairen Preisen auch noch bei uns beauftragen.
Fordern Sie uns, ich stehe unter 0160/7038141 oder thomas.heitz@streif zu Ihrer Verfügung.
Ich freue mich auf Sie !
Thomas Heitz
Und selbstverständlich bekommen Sie von uns Ihr Haus fastfertig+
Das bedeutet, die komplette Technik und die Bäder inklusive der Montage der Sanitärobjekte sind von uns fertiggestellt.
Sie kümmern sich lediglich noch um die Malerarbeiten, die Bodenbeläge (außer Bäder) und die Innentüren.
Und wenn Sie wollen, können Sie diese Arbeiten stufenweise zu fairen Preisen auch noch bei uns beauftragen.
Fordern Sie uns, ich stehe unter 0160/7038141 oder thomas.heitz@streif zu Ihrer Verfügung.
Ich freue mich auf Sie !
Thomas Heitz
Sonstige Informationen
Modernstes Heizsystem !
Heizen, Lüften und Warmwasser mit einem System
- STREIF-Luft-Luft-Wärmepumpen-Technologe (Basissystem), mit bis zu 85 Prozent Wärmerückgewinnung
- Integrierte Be- und Entlüftungsanlage
- Separate Trinkwasserwärmepumpe mit 300 L Warmwasserspeicher
- G4-Frischluftfilter zur Reduzierung von Staub und Pollen
Vorteile:
- Keine störenden Heizkörper
- Keine fossilen Brennstoffe wie Öl und Gas
- Kein Gasanschluss, kein Öl- oder Pelletslager
- Keine Erdbohrung
Thomas Heitz 0160 7038141 oder thomas.heitz@streif.de
Heizen, Lüften und Warmwasser mit einem System
- STREIF-Luft-Luft-Wärmepumpen-Technologe (Basissystem), mit bis zu 85 Prozent Wärmerückgewinnung
- Integrierte Be- und Entlüftungsanlage
- Separate Trinkwasserwärmepumpe mit 300 L Warmwasserspeicher
- G4-Frischluftfilter zur Reduzierung von Staub und Pollen
Vorteile:
- Keine störenden Heizkörper
- Keine fossilen Brennstoffe wie Öl und Gas
- Kein Gasanschluss, kein Öl- oder Pelletslager
- Keine Erdbohrung
Thomas Heitz 0160 7038141 oder thomas.heitz@streif.de
Karte wird geladen...
Objektstandort
66557 Illingen
Lage & Infrastruktur
Objektstandort
66557 Illingen
Das Grundstück in Westausrichtung mit uneingeschränkter Fernsicht liegt in ruhiger Wohnlage von Hüttigweiler.
Das Haus ist auf einem realen Baugrundstück geplant oder auf einem Grundstück in einer Planungsphase. Das Grundstück erwerben Sie über den beauftragten Immobilienmakler direkt vom Eigentümer. Der Preis des Grundstücks ist im Angebotspreis bereits eingerechnet.
Bitte haben Sie Verständnis dafür, dass wir ohne ein persönliches Gespräch keine Grundstücksdaten weiterleiten können.
Gern sind wir bei der Wahl Ihres Traumgrundstückes behilflich!
Natürlich können wir ihren Haustraum auch auf einem anderen Grundstück realisieren, lassen Sie sich dazu in einem unverbindlichen Gespräch zu Ihrem Bauvorhaben beraten.
Thomas Heitz 0160/7038141 oder thomas.heitz@streif.de
Das Haus ist auf einem realen Baugrundstück geplant oder auf einem Grundstück in einer Planungsphase. Das Grundstück erwerben Sie über den beauftragten Immobilienmakler direkt vom Eigentümer. Der Preis des Grundstücks ist im Angebotspreis bereits eingerechnet.
Bitte haben Sie Verständnis dafür, dass wir ohne ein persönliches Gespräch keine Grundstücksdaten weiterleiten können.
Gern sind wir bei der Wahl Ihres Traumgrundstückes behilflich!
Natürlich können wir ihren Haustraum auch auf einem anderen Grundstück realisieren, lassen Sie sich dazu in einem unverbindlichen Gespräch zu Ihrem Bauvorhaben beraten.
Thomas Heitz 0160/7038141 oder thomas.heitz@streif.de
Kontaktanfrage senden
Über den Anbieter
STREIF Haus GmbH
Josef-Streif-Straße 1
54595 Weinsheim
Kontakt
| Telefon | +49 681 70947955 |
| Mobil | +49 160 7038141 |
| Website | www.streif.de |
Ansprechpartner/in
Herr Thomas Heitz
Weitere Angebote des Anbieters
20
Sehr schöne Stadtvilla in erstklassiger Lage von St. ...
Haus
66386 St. Ingbert
Viel Platz und von Licht erfüllte Räume bietet diese traumhafte Stadtvilla. Im Erdgeschoss bildet der offen gestaltete Wohn-, Ess- und Kochbereich mit 49 m² das Herzstück des Hauses. Der gesamte Wohnbereich wird von ...
608.000 €
Kaufpreis
186 m²
Wohnfläche
5
Zimmer
30
STREIF baut Euer perfektes Zuhause
Haus
76707 Hambrücken
Das zweieinhalbgeschossige Mehrfamilienhaus mit zwei Wohnungen überzeugt mit einer klassisch eleganten Architektur mit Satteldach und zwei behaglichen Terrassen. Der Hausentwurf kann mit Stahlbalkonen an der ...
1.293.936 €
Kaufpreis
358 m²
Wohnfläche
18
Zimmer
30
STREIF baut Euer perfektes Zuhause
Haus
76707 Hambrücken
Das zweigeschossige Mehrfamilienhaus mit zwei Wohnungen überzeugt mit einer klassisch eleganten Architektur mit Walmdach und zwei behaglichen Terrassen. Der Hausentwurf kann mit Stahlbalkonen an der Gartenseite ...
1.139.664 €
Kaufpreis
301 m²
Wohnfläche
18
Zimmer
30
STREIF baut Euer perfektes Zuhause
Haus
76707 Hambrücken
Das zweigeschossige Mehrfamilienhaus mit zwei Wohnungen überzeugt mit einer klassisch eleganten Architektur mit Walmdach und einer behaglichen Terrasse. Der Hausentwurf kann mit einem Carport und einer darüberliegenden ...
828.414 €
Kaufpreis
186 m²
Wohnfläche
10
Zimmer
17
STREIF baut Euer perfektes Zuhause
Haus
76707 Hambrücken
STREIF-Villa 4: Exklusives Wohnen mit Flachdach, zwei Erkern, Galerie und Dachterrasse Der Entwurf der exklusiven STREIF-Villa 4 bietet seinen Bewohnern zahlreiche luxuriöse Merkmale, darunter eine zweigeschossige ...
950.650 €
Kaufpreis
210 m²
Wohnfläche
8
Zimmer