Denkmalgeschützter Altbau mit Charakter: Hohe Decken, viel Licht, stilvoll möbliert
2.490 €
Warmmiete
80 m²
Wohnfläche
3
Zimmer
immobilien.de Nr.: 9400203
Objektnummer: 417774
Preise & Kosten
| Warmmiete | 2.490 € |
| Nebenkosten | keine Angabe |
Größe & Zustand
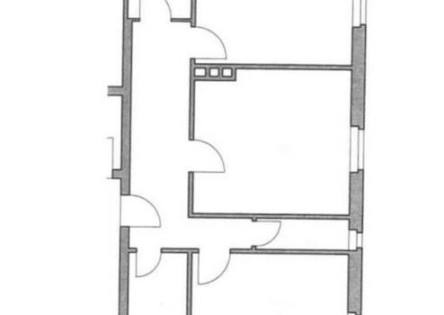
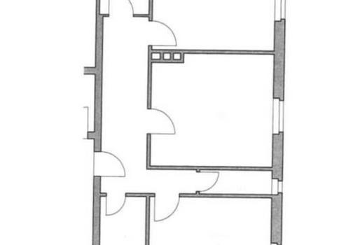
| Wohnfläche | 80 m² |
| Zimmer | 3 |
| Baujahr | 1927 |
| Verfügbar ab | 15.01.2026 |
| Zustand | Teil Vollsaniert |
Energie
| Heizungsart | Etagenheizung |
| Energieträger/Befeuerung | Gas |
Objektbeschreibung
360°-Rundgang: https://www.ohne-makler.net/panorama/417774/
Willkommen in einem Zuhause, das Ruhe, Stil und Substanz vereint.
Diese vollmöblierte, denkmalgeschützte Altbauwohnung verbindet historischen Charakter mit zeitgemäßem Wohnkomfort – ideal für Expats, Projektaufenthalte oder beruflich bedingtes Wohnen auf Zeit.
Die großzügige Wohnung ist für bis zu zwei Personen ausgelegt und überzeugt durch ihre helle, ruhige Atmosphäre. Hohe Decken, klassische Kastenfenster und Fischgrätenparkett verleihen der Wohnung eine besondere Eleganz. Die geschmackvolle Einrichtung im skandinavischen Stil – mit viel Holz, klaren Linien und warmen Erdtönen – schafft ein wohnliches, hochwertiges Ambiente.
Dank der Süd-West-Ausrichtung im 2. Obergeschoss ist die Wohnung den ganzen Tag bis in die Abendstunden lichtdurchflutet. Die Immobilie wurde aufwendig und mit viel Liebe zum Detail renoviert; es handelt sich um einen Erstbezug – alles ist neu, hochwertig und sorgfältig ausgewählt.
Der offen gestaltete Wohn- und Essbereich lädt nach einem Arbeitstag zum Entspannen ein. Ein komfortables Sofa, moderne Unterhaltungselektronik sorgen für entspannte Abende. Der Essbereich bietet Platz für bis zu vier Personen und eignet sich sowohl für gemeinsame Mahlzeiten als auch für informelle Meetings.
Die voll ausgestattete Küche ermöglicht ein komfortables Kochen im Alltag. Hochwertiges Geschirr, Besteck und Kochutensilien sind vorhanden. Eine Senseo-Kaffeemaschine bietet verschiedene Kaffeespezialitäten – von Espresso bis Flat White. Fehlende Utensilien stellen wir auf Wunsch gerne ergänzend zur Verfügung. Auch hier steht ein eigener Essplatz zur Verfügung.
Das Schlafzimmer ist bewusst ruhig gestaltet und bietet optimale Voraussetzungen für erholsamen Schlaf. Ausgestattet mit einer hochwertigen Matratze, angenehmer Bettwäsche und einem weiteren TV-Gerät entsteht ein Rückzugsort, der Komfort und Funktionalität vereint.
Ergänzt wird die Wohnung durch ein separates, kompaktes Homeoffice. Ein Schreibtisch, eine hochwertige Leuchte sowie ein String-Sideboard bieten ideale Bedingungen für konzentriertes Arbeiten im Homeoffice oder für hybride Arbeitstage.
---English version---
Welcome to a home that combines calm, style, and substance.
This fully furnished historical apartment blends timeless architectural character with modern living comfort—ideal for expats, project stays, or professional temporary living.
Designed for up to two people, the apartment offers a bright, quiet atmosphere. High ceilings, traditional casement windows, and original herringbone parquet flooring create an elegant and distinctive living experience. The Scandinavian-inspired interior, featuring natural wood, clean lines, and warm earth tones, provides a refined yet cozy ambiance.
Thanks to its southwest-facing orientation on the 2nd floor, the apartment is flooded with natural light throughout the day and into the evening. The property has been extensively renovated with great attention to detail and is a first-time occupancy.
The living and dining area invites you to unwind after work. A comfortable sofa and modern entertainment equipment ensure relaxing evenings, while the dining area comfortably seats up to four people and is suitable for both private dinners and informal meetings.
The fully equipped kitchen supports everyday cooking with ease. High-quality dishes, cutlery, cookware, and a Senseo coffee machine—offering everything from espresso to flat white—are provided.
The bedroom is designed as a calm retreat, featuring a high-quality mattress, premium bedding, and an additional TV—ensuring restful nights and maximum comfort.
A separate, compact home office completes the apartment. With a desk, high-quality lighting, and a String shelving system, it offers ideal conditions for focused remote or hybrid work.
Objektzustand: Erstbezug nach Sanierung
Willkommen in einem Zuhause, das Ruhe, Stil und Substanz vereint.
Diese vollmöblierte, denkmalgeschützte Altbauwohnung verbindet historischen Charakter mit zeitgemäßem Wohnkomfort – ideal für Expats, Projektaufenthalte oder beruflich bedingtes Wohnen auf Zeit.
Die großzügige Wohnung ist für bis zu zwei Personen ausgelegt und überzeugt durch ihre helle, ruhige Atmosphäre. Hohe Decken, klassische Kastenfenster und Fischgrätenparkett verleihen der Wohnung eine besondere Eleganz. Die geschmackvolle Einrichtung im skandinavischen Stil – mit viel Holz, klaren Linien und warmen Erdtönen – schafft ein wohnliches, hochwertiges Ambiente.
Dank der Süd-West-Ausrichtung im 2. Obergeschoss ist die Wohnung den ganzen Tag bis in die Abendstunden lichtdurchflutet. Die Immobilie wurde aufwendig und mit viel Liebe zum Detail renoviert; es handelt sich um einen Erstbezug – alles ist neu, hochwertig und sorgfältig ausgewählt.
Der offen gestaltete Wohn- und Essbereich lädt nach einem Arbeitstag zum Entspannen ein. Ein komfortables Sofa, moderne Unterhaltungselektronik sorgen für entspannte Abende. Der Essbereich bietet Platz für bis zu vier Personen und eignet sich sowohl für gemeinsame Mahlzeiten als auch für informelle Meetings.
Die voll ausgestattete Küche ermöglicht ein komfortables Kochen im Alltag. Hochwertiges Geschirr, Besteck und Kochutensilien sind vorhanden. Eine Senseo-Kaffeemaschine bietet verschiedene Kaffeespezialitäten – von Espresso bis Flat White. Fehlende Utensilien stellen wir auf Wunsch gerne ergänzend zur Verfügung. Auch hier steht ein eigener Essplatz zur Verfügung.
Das Schlafzimmer ist bewusst ruhig gestaltet und bietet optimale Voraussetzungen für erholsamen Schlaf. Ausgestattet mit einer hochwertigen Matratze, angenehmer Bettwäsche und einem weiteren TV-Gerät entsteht ein Rückzugsort, der Komfort und Funktionalität vereint.
Ergänzt wird die Wohnung durch ein separates, kompaktes Homeoffice. Ein Schreibtisch, eine hochwertige Leuchte sowie ein String-Sideboard bieten ideale Bedingungen für konzentriertes Arbeiten im Homeoffice oder für hybride Arbeitstage.
---English version---
Welcome to a home that combines calm, style, and substance.
This fully furnished historical apartment blends timeless architectural character with modern living comfort—ideal for expats, project stays, or professional temporary living.
Designed for up to two people, the apartment offers a bright, quiet atmosphere. High ceilings, traditional casement windows, and original herringbone parquet flooring create an elegant and distinctive living experience. The Scandinavian-inspired interior, featuring natural wood, clean lines, and warm earth tones, provides a refined yet cozy ambiance.
Thanks to its southwest-facing orientation on the 2nd floor, the apartment is flooded with natural light throughout the day and into the evening. The property has been extensively renovated with great attention to detail and is a first-time occupancy.
The living and dining area invites you to unwind after work. A comfortable sofa and modern entertainment equipment ensure relaxing evenings, while the dining area comfortably seats up to four people and is suitable for both private dinners and informal meetings.
The fully equipped kitchen supports everyday cooking with ease. High-quality dishes, cutlery, cookware, and a Senseo coffee machine—offering everything from espresso to flat white—are provided.
The bedroom is designed as a calm retreat, featuring a high-quality mattress, premium bedding, and an additional TV—ensuring restful nights and maximum comfort.
A separate, compact home office completes the apartment. With a desk, high-quality lighting, and a String shelving system, it offers ideal conditions for focused remote or hybrid work.
Objektzustand: Erstbezug nach Sanierung
Ausstattung
| Anzahl der Etagen im Haus | 4 |
| Inserat befindet sich im Stockwerk | 2 |
| Küche | Einbauküche |
| Bad | Dusche |
Duschbad, Einbauküche, Gäste-WC
Bemerkungen:
Die Wohnung ist vollmöbliert und vollständig ausgestattet und bietet alles, was für komfortables Wohnen auf Zeit erforderlich ist – ideal für Expats und berufliche Aufenthalte.
Hochwertige Bettwäsche (inkl. Wechselsets), Handtücher sowie Bademäntel sind vorhanden und ermöglichen einen sofortigen Einzug ohne zusätzlichen Organisationsaufwand.
Die Küche ist komplett ausgestattet mit Geschirr, Gläsern und Weingläsern, Besteck, Töpfen und Pfannen sowie Toaster, Wasserkocher/Teekocher und Kaffeemaschine – ideal für den täglichen Gebrauch ebenso wie für Gäste.
Für Unterhaltung und Entspannung sorgen Fernsehgeräte, sowie eine Stereo-/Soundanlage und eine Internet-Flatrate 50 Mbit/s (auf Wunsch mehr möglich). Stilvolle Dekorationen, Vasen, Coffee-Table-Books und ausgewählte Kunstwerke unterstreichen den skandinavischen Einrichtungsstil und schaffen eine warme, wohnliche Atmosphäre.
Kurz gesagt: Die Wohnung ist bezugsfertig ausgestattet – ankommen, einziehen und sich sofort zuhause fühlen.
---english veriosn---
The apartment is fully furnished and comprehensively equipped, offering everything required for comfortable temporary living—ideal for expats and professional stays.
High-quality bed linen (including spare sets), towels, and bathrobes are provided, allowing for an immediate move-in with no additional organization needed.
The kitchen is fully equipped with dishes, glassware and wine glasses, cutlery, pots and pans, as well as a toaster, kettle/tea maker, and coffee machine—perfect for everyday use as well as hosting guests.
For entertainment and relaxation, the apartment features television sets and a stereo/sound system, and a 50 Mbit/s flat-rate Internet connection (higher speeds available on request) Thoughtfully selected decorative elements, vases, coffee-table books, and curated artwork enhance the Scandinavian interior design and create a warm, welcoming atmosphere.
In short: the apartment is move-in ready—arrive, settle in, and feel at home immediately.
Bemerkungen:
Die Wohnung ist vollmöbliert und vollständig ausgestattet und bietet alles, was für komfortables Wohnen auf Zeit erforderlich ist – ideal für Expats und berufliche Aufenthalte.
Hochwertige Bettwäsche (inkl. Wechselsets), Handtücher sowie Bademäntel sind vorhanden und ermöglichen einen sofortigen Einzug ohne zusätzlichen Organisationsaufwand.
Die Küche ist komplett ausgestattet mit Geschirr, Gläsern und Weingläsern, Besteck, Töpfen und Pfannen sowie Toaster, Wasserkocher/Teekocher und Kaffeemaschine – ideal für den täglichen Gebrauch ebenso wie für Gäste.
Für Unterhaltung und Entspannung sorgen Fernsehgeräte, sowie eine Stereo-/Soundanlage und eine Internet-Flatrate 50 Mbit/s (auf Wunsch mehr möglich). Stilvolle Dekorationen, Vasen, Coffee-Table-Books und ausgewählte Kunstwerke unterstreichen den skandinavischen Einrichtungsstil und schaffen eine warme, wohnliche Atmosphäre.
Kurz gesagt: Die Wohnung ist bezugsfertig ausgestattet – ankommen, einziehen und sich sofort zuhause fühlen.
---english veriosn---
The apartment is fully furnished and comprehensively equipped, offering everything required for comfortable temporary living—ideal for expats and professional stays.
High-quality bed linen (including spare sets), towels, and bathrobes are provided, allowing for an immediate move-in with no additional organization needed.
The kitchen is fully equipped with dishes, glassware and wine glasses, cutlery, pots and pans, as well as a toaster, kettle/tea maker, and coffee machine—perfect for everyday use as well as hosting guests.
For entertainment and relaxation, the apartment features television sets and a stereo/sound system, and a 50 Mbit/s flat-rate Internet connection (higher speeds available on request) Thoughtfully selected decorative elements, vases, coffee-table books, and curated artwork enhance the Scandinavian interior design and create a warm, welcoming atmosphere.
In short: the apartment is move-in ready—arrive, settle in, and feel at home immediately.
Sonstige Informationen
Heizungsart: Etagenheizung
Energieträger: Gas
Energieausweis nicht vorhanden
Schreiben Sie mir gerne und ich schicke Ihnen einen Link zur Videotour auf YouTube (leider kann ich im Inserat keinen Link angeben).
Feel free to write to me and I will send you a link to the video tour on YouTube (unfortunately, I cannot include a link in the ad).
Makleranfragen nicht erwünscht. Nach § 7 UWG sind unaufgeforderte Kontaktaufnahmen durch Makler ohne ausdrückliche Einwilligung des Empfängers verboten!
ohne-makler (OM) ist weder Anbieter noch Vermittler der Immobilie. OM betreibt eine Plattform für Immobilieneigentümer, die unter anderem die gleichzeitige Veröffentlichung einzelner Inserate auf mehreren Immobilienportalen ermöglicht. Die Inhalte dieser Inserate werden ausschließlich von Dritten verantwortet. Für die Richtigkeit, Vollständigkeit oder Rechtmäßigkeit der Angaben übernimmt OM keine Haftung. Hinweise auf mögliche Rechtsverstöße können jederzeit gemeldet werden und werden nach Prüfung umgehend bearbeitet.
Energieträger: Gas
Energieausweis nicht vorhanden
Schreiben Sie mir gerne und ich schicke Ihnen einen Link zur Videotour auf YouTube (leider kann ich im Inserat keinen Link angeben).
Feel free to write to me and I will send you a link to the video tour on YouTube (unfortunately, I cannot include a link in the ad).
Makleranfragen nicht erwünscht. Nach § 7 UWG sind unaufgeforderte Kontaktaufnahmen durch Makler ohne ausdrückliche Einwilligung des Empfängers verboten!
ohne-makler (OM) ist weder Anbieter noch Vermittler der Immobilie. OM betreibt eine Plattform für Immobilieneigentümer, die unter anderem die gleichzeitige Veröffentlichung einzelner Inserate auf mehreren Immobilienportalen ermöglicht. Die Inhalte dieser Inserate werden ausschließlich von Dritten verantwortet. Für die Richtigkeit, Vollständigkeit oder Rechtmäßigkeit der Angaben übernimmt OM keine Haftung. Hinweise auf mögliche Rechtsverstöße können jederzeit gemeldet werden und werden nach Prüfung umgehend bearbeitet.
Lage des Objektes
Die Wohnung befindet sich in der Schedelstraße 11, 80687 München (Laim) – zentral gelegen und zugleich ruhig in einer gewachsenen Wohngegend westlich der Innenstadt. Ideal für Expats und Berufstätige, die kurze Wege zu Arbeit, Freizeit und Innenstadt schätzen, ohne im direkten Trubel zu wohnen.
Die Trambahn ist in wenigen Gehminuten erreichbar und bringt Sie in ca. 5 Stationen zu zentralen Business-Standorten sowie zu internationalen Arbeitgebern wie Salesforce, Google, Apple und Meta (Facebook).
Über die nahegelegene S-Bahn-Station Friedenheimer Brücke erreichen Sie:
•München Hauptbahnhof in ca. 5–6 Minuten
•Karlsplatz (Stachus) in ca. 7–8 Minuten
•die Innenstadt in ca. 10–12 Minuten
Auch beliebte Freizeit- und Genuss-Hotspots befinden sich in direkter Nähe:
•Hirschgarten (größter Biergarten der Welt): ca. 5–7 Minuten
•Nymphenburger Schlosspark: ca. 8–10 Minuten
•Zahlreiche sehr gut bewertete Cafés und Restaurants, fußläufig oder in wenigen Minuten mit Tram erreichbar
Einkaufsmöglichkeiten, Bäckereien und alles für den täglichen Bedarf befinden sich ebenfalls in unmittelbarer Umgebung.
Kurz gesagt: eine ruhige Wohnlage mit hervorragender Anbindung, schnellen Wegen zu Business, Gastronomie und Erholung – ideal für komfortables Wohnen auf Zeit.
---English Version---
The apartment is located at Schedelstraße 11, 80687 Munich (Laim)—centrally situated yet pleasantly quiet in a well-established residential area west of the city center. It is ideal for expats and professionals who value short commuting times to work, leisure, and downtown while avoiding the hustle and bustle of inner-city living.
The tram stop is just a few minutes’ walk away and takes you to key business locations and international employers such as Salesforce, Google, Apple, and Meta (Facebook) in approximately five stops.
Via the nearby S-Bahn station Friedenheimer Brücke, you can reach:
- Munich Central Station (Hauptbahnhof) in approx. 5–6 minutes
- Karlsplatz (Stachus) in approx. 7–8 minutes
- Munich city center in approx. 10–12 minutes
Popular leisure and dining destinations are also close by:
- Hirschgarten (the world’s largest beer garden): approx. 5–7 minutes
- Nymphenburg Palace Park: approx. 8–10 minutes
- Numerous highly rated cafés and restaurants, within walking distance or just a few minutes away by tram
Supermarkets, bakeries, and all daily necessities are conveniently located nearby.
In short: a quiet residential location with excellent transport connections and quick access to business, dining, and recreation—ideal for comfortable living on a temporary basis.
Infrastruktur (im Umkreis von 5 km):
Apotheke, Lebensmittel-Discount, Allgemeinmediziner, Kindergarten, Grundschule, Hauptschule, Realschule, Gymnasium, Gesamtschule, Öffentliche Verkehrsmittel
Die Trambahn ist in wenigen Gehminuten erreichbar und bringt Sie in ca. 5 Stationen zu zentralen Business-Standorten sowie zu internationalen Arbeitgebern wie Salesforce, Google, Apple und Meta (Facebook).
Über die nahegelegene S-Bahn-Station Friedenheimer Brücke erreichen Sie:
•München Hauptbahnhof in ca. 5–6 Minuten
•Karlsplatz (Stachus) in ca. 7–8 Minuten
•die Innenstadt in ca. 10–12 Minuten
Auch beliebte Freizeit- und Genuss-Hotspots befinden sich in direkter Nähe:
•Hirschgarten (größter Biergarten der Welt): ca. 5–7 Minuten
•Nymphenburger Schlosspark: ca. 8–10 Minuten
•Zahlreiche sehr gut bewertete Cafés und Restaurants, fußläufig oder in wenigen Minuten mit Tram erreichbar
Einkaufsmöglichkeiten, Bäckereien und alles für den täglichen Bedarf befinden sich ebenfalls in unmittelbarer Umgebung.
Kurz gesagt: eine ruhige Wohnlage mit hervorragender Anbindung, schnellen Wegen zu Business, Gastronomie und Erholung – ideal für komfortables Wohnen auf Zeit.
---English Version---
The apartment is located at Schedelstraße 11, 80687 Munich (Laim)—centrally situated yet pleasantly quiet in a well-established residential area west of the city center. It is ideal for expats and professionals who value short commuting times to work, leisure, and downtown while avoiding the hustle and bustle of inner-city living.
The tram stop is just a few minutes’ walk away and takes you to key business locations and international employers such as Salesforce, Google, Apple, and Meta (Facebook) in approximately five stops.
Via the nearby S-Bahn station Friedenheimer Brücke, you can reach:
- Munich Central Station (Hauptbahnhof) in approx. 5–6 minutes
- Karlsplatz (Stachus) in approx. 7–8 minutes
- Munich city center in approx. 10–12 minutes
Popular leisure and dining destinations are also close by:
- Hirschgarten (the world’s largest beer garden): approx. 5–7 minutes
- Nymphenburg Palace Park: approx. 8–10 minutes
- Numerous highly rated cafés and restaurants, within walking distance or just a few minutes away by tram
Supermarkets, bakeries, and all daily necessities are conveniently located nearby.
In short: a quiet residential location with excellent transport connections and quick access to business, dining, and recreation—ideal for comfortable living on a temporary basis.
Infrastruktur (im Umkreis von 5 km):
Apotheke, Lebensmittel-Discount, Allgemeinmediziner, Kindergarten, Grundschule, Hauptschule, Realschule, Gymnasium, Gesamtschule, Öffentliche Verkehrsmittel
