Ruhe mit Blick über Felder: Exklusives wohngesundes Plusenergie-Doppelhaus, S-Bahn fußläufig
2.675 €
Kaltmiete (netto)
158 m²
Wohnfläche
6
Zimmer
immobilien.de Nr.: 9399643
Objektnummer: 394498
Mietpreis & Nebenkosten
| Kaltmiete (netto) | 2.675 € |
| Nebenkosten | Keine Angabe |
| Kaution | 8.025 € |
Wohnfläche, Grundstück & Bausubstanz
| Wohnfläche | 158 m² |
| Grundstücksfläche | 380 m² |
| Zimmer | 6 |
| Baujahr | 2026 |
| Verfügbar ab | 01.05.2026 |
| Zustand | Erstbezug |
Energie
| Energieausweistyp | Bedarfsausweis |
| Energieeffizienzklasse | A+ |
| Endenergiebedarf | 2 |
| Heizungsart | Fußbodenheizung |
| Energieträger/Befeuerung | Solar |
Beschreibung der Immobilie
Nur noch eine Doppelhaushälfte verfügbar: In idyllischer und ruhiger Randlage von Leipzig-Rückmarsdorf entstehen aktuell zwei hochwertige Doppelhaushälften mit modernster Energietechnik und nachhaltigem Konzept in Holzständerbauweise. Hier verbinden sich Komfort, Design und Umweltbewusstsein zu einem außergewöhnlichen Wohngefühl – ideal für Familien die Wert auf Raum, Ruhe und Zukunftssicherheit legen. Und dank fußläufiger S-Bahn-Anbindung trotzdem alle Vorteile der Leipziger Innenstadt genießen möchten.
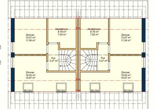
Die noch freie Doppelhaushälfte bietet ca. 158 m² Wohnfläche auf drei Etagen und steht auf einem ca. 380 m² großen Grundstück mit sonnigem Garten. Der durchdachte Grundriss mit 6 Zimmern schafft Platz für Familie, Arbeiten im Homeoffice und Gäste.
Im Erdgeschoss erwarten Sie ein offener Wohn- und Essbereich, ein Badezimmer sowie ein geräumiger Hauswirtschaftsraum. Eine 4 m breite Hebeschiebetür lässt Garten und Terrasse Teil Ihres lichtdurchfluteten Wohnzimmers werden. Eine voll ausgestattete hochwertige Einbauküche rundet das Angebot ab. Im Obergeschoss befinden sich drei helle Zimmer und ein modernes voll ausgestattetes Tageslichtbad. Das ausgebaute Dachgeschoss bietet zwei zusätzliche Zimmer mit Weitblick bis zum City-Hochhaus als Wahrzeichen von Leipzig. Ein praktischer großer Abstellraum und ein zusätzlicher Spitzboden mit Auszugstreppe sorgen für wertvollen Stauraum.
Im Außenbereich stehen Ihnen zwei PKW-Stellplätze sowie eine Wallbox mit 11 kW Ladeleistung für Ihr Elektrofahrzeug zur Verfügung.
Die Doppelhaushälften werden nach dem „Qualitätssiegel Nachhaltiges Gebäude Plus“ zertifiziert und erreichen die Energieeffizienzklasse A+. Herzstück des Energiekonzepts als Plusenergiehaus ist jeweils eine leistungsstarke Photovoltaikanlage mit Batteriespeicher, kombiniert mit einer modernen Luft/Wasser-Wärmepumpe. Damit decken Sie zwischen ca. 65% und 85% Ihres gesamten Strombedarfs über das Jahr selbst – einschließlich Heizen, Kühlen, Haushalt und Laden Ihres E-Autos.
Die Nutzung des Stroms aus der Photovoltaikanlage, welche ca. 11.000 kWh pro Jahr erzeugt ist in der Miete enthalten. Bei einem angenommenen Eigenverbrauch von z.B. 70 % und Stromkosten von 35 Ct/kWh ergibt sich ein finanzieller Vorteil von ca. 2.900,- EUR pro Jahr.*
Wird dies berücksichtigt, entspricht Ihre Warmmiete nur etwa der Höhe der Kaltmiete. Das ist ein wesentlicher Vorteil eines Plusenergiehauses, welches über das Jahr gesehen mehr Energie erzeugt als es selbst benötigt.
Die Nebenkosten Strom, Wasser/Abwasser und Müll rechnen die Versorger direkt mit Ihnen ab. Dort können Sie mit einer Größenordnung von ca. 80,- EUR pro Monat kalkulieren. Für die Nebenkosten wie Grundsteuer, Haftpflicht, Wohngebäudeversicherung und Wartungen wird eine monatliche Vorauszahlung von 160,- EUR mit der Miete erhoben und jährlich abgerechnet.
Im Mietvertrag wird auch eine Indexmietregelung enthalten sein. Die Miete kann demnach künftig im Rahmen der Entwicklung des vom Statistischen Bundesamtes ermittelten Verbraucherpreises (VPI) angepasst werden.
Die verbleibende Haushälfte befindet sich aktuell in der finalen Bauphase und steht Ihnen ab April 2026 zum Erstbezug direkt vom privaten Eigentümer provisionsfrei zur Verfügung. Bei Interesse freue ich mich über Ihre Kontaktaufnahme mit einer kurzen persönlichen Vorstellung. Lassen Sie sich dieses besondere Mietangebot nicht entgehen – hier beginnt Ihr neues Kapitel voller nachhaltiger Lebensqualität.
*Abhängig von Sonnenstunden, individuellem Verbrauchsverhalten und gewähltem Stromanbieter sind diese angenommen Werte als Richtschnur für die Abschätzung einer realistischen Größenordnung zu verstehen. Besonders gut lässt sich der Solarstrom z.B. durch das regelmäßige Laden eines E-Fahrzeuges ausnutzen.
Die noch freie Doppelhaushälfte bietet ca. 158 m² Wohnfläche auf drei Etagen und steht auf einem ca. 380 m² großen Grundstück mit sonnigem Garten. Der durchdachte Grundriss mit 6 Zimmern schafft Platz für Familie, Arbeiten im Homeoffice und Gäste.
Im Erdgeschoss erwarten Sie ein offener Wohn- und Essbereich, ein Badezimmer sowie ein geräumiger Hauswirtschaftsraum. Eine 4 m breite Hebeschiebetür lässt Garten und Terrasse Teil Ihres lichtdurchfluteten Wohnzimmers werden. Eine voll ausgestattete hochwertige Einbauküche rundet das Angebot ab. Im Obergeschoss befinden sich drei helle Zimmer und ein modernes voll ausgestattetes Tageslichtbad. Das ausgebaute Dachgeschoss bietet zwei zusätzliche Zimmer mit Weitblick bis zum City-Hochhaus als Wahrzeichen von Leipzig. Ein praktischer großer Abstellraum und ein zusätzlicher Spitzboden mit Auszugstreppe sorgen für wertvollen Stauraum.
Im Außenbereich stehen Ihnen zwei PKW-Stellplätze sowie eine Wallbox mit 11 kW Ladeleistung für Ihr Elektrofahrzeug zur Verfügung.
Die Doppelhaushälften werden nach dem „Qualitätssiegel Nachhaltiges Gebäude Plus“ zertifiziert und erreichen die Energieeffizienzklasse A+. Herzstück des Energiekonzepts als Plusenergiehaus ist jeweils eine leistungsstarke Photovoltaikanlage mit Batteriespeicher, kombiniert mit einer modernen Luft/Wasser-Wärmepumpe. Damit decken Sie zwischen ca. 65% und 85% Ihres gesamten Strombedarfs über das Jahr selbst – einschließlich Heizen, Kühlen, Haushalt und Laden Ihres E-Autos.
Die Nutzung des Stroms aus der Photovoltaikanlage, welche ca. 11.000 kWh pro Jahr erzeugt ist in der Miete enthalten. Bei einem angenommenen Eigenverbrauch von z.B. 70 % und Stromkosten von 35 Ct/kWh ergibt sich ein finanzieller Vorteil von ca. 2.900,- EUR pro Jahr.*
Wird dies berücksichtigt, entspricht Ihre Warmmiete nur etwa der Höhe der Kaltmiete. Das ist ein wesentlicher Vorteil eines Plusenergiehauses, welches über das Jahr gesehen mehr Energie erzeugt als es selbst benötigt.
Die Nebenkosten Strom, Wasser/Abwasser und Müll rechnen die Versorger direkt mit Ihnen ab. Dort können Sie mit einer Größenordnung von ca. 80,- EUR pro Monat kalkulieren. Für die Nebenkosten wie Grundsteuer, Haftpflicht, Wohngebäudeversicherung und Wartungen wird eine monatliche Vorauszahlung von 160,- EUR mit der Miete erhoben und jährlich abgerechnet.
Im Mietvertrag wird auch eine Indexmietregelung enthalten sein. Die Miete kann demnach künftig im Rahmen der Entwicklung des vom Statistischen Bundesamtes ermittelten Verbraucherpreises (VPI) angepasst werden.
Die verbleibende Haushälfte befindet sich aktuell in der finalen Bauphase und steht Ihnen ab April 2026 zum Erstbezug direkt vom privaten Eigentümer provisionsfrei zur Verfügung. Bei Interesse freue ich mich über Ihre Kontaktaufnahme mit einer kurzen persönlichen Vorstellung. Lassen Sie sich dieses besondere Mietangebot nicht entgehen – hier beginnt Ihr neues Kapitel voller nachhaltiger Lebensqualität.
*Abhängig von Sonnenstunden, individuellem Verbrauchsverhalten und gewähltem Stromanbieter sind diese angenommen Werte als Richtschnur für die Abschätzung einer realistischen Größenordnung zu verstehen. Besonders gut lässt sich der Solarstrom z.B. durch das regelmäßige Laden eines E-Fahrzeuges ausnutzen.
Ausstattungsmerkmale
| Anzahl der Etagen im Haus | 3 |
| Küche | Einbauküche |
| Bad | 2 |
| Bad | Dusche, Wanne |
| Boden | Fliesen, Laminat |
| Balkone | 0 |
| Garten | |
| Terrassen | 1 |
Terrasse, Garten, Vollbad, Duschbad, Einbauküche, Gäste-WC, Laminat, Fliesen
Bemerkungen:
Die Doppelhaushälfte überzeugt mit einer modernen, durchdachten Ausstattung, die Komfort, Design und Nachhaltigkeit vereint.
Highlights:
•4 m breite Hebe-Schiebetür im Wohnzimmer mit Übergang zur großen, einladenden Terrasse im individuell gestaltbaren Garten
•Fußbodenheizung in allen Räumen
•Kontrollierte Wohnraumlüftung mit Wärmerückgewinnung
•Luft/Wasser-Wärmepumpe mit Kühlfunktion im Sommer
•10,8 kWp Photovoltaikanlage mit 9,6 kWh Batteriespeicher
•hochwertige Einbauküche mit Markengeräten von Siemens
•Elektrische Aluminium-Rollläden für Komfort und Sicherheit
•Netzwerkverkabelung in allen Räumen
•250 MBit/s DSL-Anschluss im Haus anliegend
•Feinsteinzeug in naturgetreuer Parkettoptik im gesamten Erdgeschoss
•Hochwertiger Laminatboden in den Obergeschossen
•bodentiefe Südfenster für lichtdurchflutete Räume
•Wandaufbau aus 85 % nachwachsenden Rohstoffen mit natureplus-Gütesiegel
•zertifiziert gesundes Wohnraumklima (QNG Plus)
•Spitzboden mit praktischer Auszugstreppe – ideal als zusätzlicher Stauraum
•Parkmöglichkeiten: 2 Stellplätze unmittelbar am Haus (im Mietpreis enthalten)
•11 kW-Wallbox mit Solarstrombezug (im Mietpreis enthalten)
Bemerkungen:
Die Doppelhaushälfte überzeugt mit einer modernen, durchdachten Ausstattung, die Komfort, Design und Nachhaltigkeit vereint.
Highlights:
•4 m breite Hebe-Schiebetür im Wohnzimmer mit Übergang zur großen, einladenden Terrasse im individuell gestaltbaren Garten
•Fußbodenheizung in allen Räumen
•Kontrollierte Wohnraumlüftung mit Wärmerückgewinnung
•Luft/Wasser-Wärmepumpe mit Kühlfunktion im Sommer
•10,8 kWp Photovoltaikanlage mit 9,6 kWh Batteriespeicher
•hochwertige Einbauküche mit Markengeräten von Siemens
•Elektrische Aluminium-Rollläden für Komfort und Sicherheit
•Netzwerkverkabelung in allen Räumen
•250 MBit/s DSL-Anschluss im Haus anliegend
•Feinsteinzeug in naturgetreuer Parkettoptik im gesamten Erdgeschoss
•Hochwertiger Laminatboden in den Obergeschossen
•bodentiefe Südfenster für lichtdurchflutete Räume
•Wandaufbau aus 85 % nachwachsenden Rohstoffen mit natureplus-Gütesiegel
•zertifiziert gesundes Wohnraumklima (QNG Plus)
•Spitzboden mit praktischer Auszugstreppe – ideal als zusätzlicher Stauraum
•Parkmöglichkeiten: 2 Stellplätze unmittelbar am Haus (im Mietpreis enthalten)
•11 kW-Wallbox mit Solarstrombezug (im Mietpreis enthalten)
Sonstige Informationen
Heizungsart: Fußbodenheizung
Energieträger: Solar
ohne-makler (OM) ist weder Anbieter noch Vermittler der Immobilie. OM betreibt eine Plattform für Immobilieneigentümer, die unter anderem die gleichzeitige Veröffentlichung einzelner Inserate auf mehreren Immobilienportalen ermöglicht. Die Inhalte dieser Inserate werden ausschließlich von Dritten verantwortet. Für die Richtigkeit, Vollständigkeit oder Rechtmäßigkeit der Angaben übernimmt OM keine Haftung. Hinweise auf mögliche Rechtsverstöße können jederzeit gemeldet werden und werden nach Prüfung umgehend bearbeitet.
Energieträger: Solar
ohne-makler (OM) ist weder Anbieter noch Vermittler der Immobilie. OM betreibt eine Plattform für Immobilieneigentümer, die unter anderem die gleichzeitige Veröffentlichung einzelner Inserate auf mehreren Immobilienportalen ermöglicht. Die Inhalte dieser Inserate werden ausschließlich von Dritten verantwortet. Für die Richtigkeit, Vollständigkeit oder Rechtmäßigkeit der Angaben übernimmt OM keine Haftung. Hinweise auf mögliche Rechtsverstöße können jederzeit gemeldet werden und werden nach Prüfung umgehend bearbeitet.
Karte wird geladen...
Objektstandort
An der Vogelweide 66
04178 Leipzig
- Sachsen
Lage & Infrastruktur
Objektstandort
An der Vogelweide 66
04178 Leipzig
- Sachsen
Die Doppelhaushälfte liegt in einer besonders ruhigen, ländlich geprägten Umgebung am Rand von Leipzig-Rückmarsdorf. Gleichzeitig ist der Hauptbahnhof nur eine 12-minütige Fahrt mit der S6 entfernt. Im Süden grenzt das Grundstück mit seinem Garten direkt an offene Felder und bietet einen herrlich weiten, ungestörten Blick ins Grüne. Auf der Nordseite verläuft eine kleine asphaltierte Straße in einer 30er-Zone des Wohngebiets – ideal für Familien mit Kindern und beliebt bei Spaziergängern. Das Umfeld ist geprägt von einer über Jahrzehnte gewachsenen Bebauung mit Einfamilienhäusern und gepflegten Gärten. In den letzten Jahren wurden nahezu alle freien Flächen durch Neubauten ergänzt, was die hohe Wohnqualität der Lage unterstreicht.
Rückmarsdorf ist ein charmanter Stadtteil – ruhig, grün und gleichzeitig hervorragend angebunden. Hier genießen Sie die Vorzüge naturnahen Wohnens, ohne auf die Nähe zur Leipziger Innenstadt verzichten zu müssen. Familien schätzen die Sicherheit, die gute Nachbarschaft und das vielfältige Freizeitangebot. Berufspendler profitieren von der schnellen Anbindung via S-Bahn, Bus und Autobahn. Alle wichtigen Einrichtungen des täglichen Bedarfs – von Supermärkten und Bäckereien über Ärzte und Apotheken bis hin zu Schulen und Kindergärten – sind bequem erreichbar.
Wer Wert auf ein ausgeglichenes, nachhaltiges Lebensumfeld bei idealer Anbindung legt, findet hier den perfekten Ort zum Ankommen.
Anbindungen:
•Fußläufig: großer Spielplatz (3 Min), Einkaufszentrum „LöwenCenter“ (12 Min), Saale-Leipzig-Kanal, ehemalige Kiesgrube Rückmarsdorf
•Fahrrad: Kita, Grundschule, Arztpraxen, Wald Bienitz (5 Min), Kulkwitzer See (16 Min), Musikalische Komödie (18 Min), Neues Rathaus (29 Min)
•ÖPNV: S-Bahnhof Rückmarsdorf (11 Min zu Fuß +12 Min bis Leipzig Hbf, +39 Min bis Naumburg); Bus-Linien: 62, 130, 131, N3, X5
•Auto: A9 (8 Min), A38 (14 Min), Leipzig Hbf (14 Min)
Infrastruktur (im Umkreis von 5 km):
Apotheke, Lebensmittel-Discount, Allgemeinmediziner, Kindergarten, Grundschule, Hauptschule, Realschule, Gymnasium, Gesamtschule, Öffentliche Verkehrsmittel
Rückmarsdorf ist ein charmanter Stadtteil – ruhig, grün und gleichzeitig hervorragend angebunden. Hier genießen Sie die Vorzüge naturnahen Wohnens, ohne auf die Nähe zur Leipziger Innenstadt verzichten zu müssen. Familien schätzen die Sicherheit, die gute Nachbarschaft und das vielfältige Freizeitangebot. Berufspendler profitieren von der schnellen Anbindung via S-Bahn, Bus und Autobahn. Alle wichtigen Einrichtungen des täglichen Bedarfs – von Supermärkten und Bäckereien über Ärzte und Apotheken bis hin zu Schulen und Kindergärten – sind bequem erreichbar.
Wer Wert auf ein ausgeglichenes, nachhaltiges Lebensumfeld bei idealer Anbindung legt, findet hier den perfekten Ort zum Ankommen.
Anbindungen:
•Fußläufig: großer Spielplatz (3 Min), Einkaufszentrum „LöwenCenter“ (12 Min), Saale-Leipzig-Kanal, ehemalige Kiesgrube Rückmarsdorf
•Fahrrad: Kita, Grundschule, Arztpraxen, Wald Bienitz (5 Min), Kulkwitzer See (16 Min), Musikalische Komödie (18 Min), Neues Rathaus (29 Min)
•ÖPNV: S-Bahnhof Rückmarsdorf (11 Min zu Fuß +12 Min bis Leipzig Hbf, +39 Min bis Naumburg); Bus-Linien: 62, 130, 131, N3, X5
•Auto: A9 (8 Min), A38 (14 Min), Leipzig Hbf (14 Min)
Infrastruktur (im Umkreis von 5 km):
Apotheke, Lebensmittel-Discount, Allgemeinmediziner, Kindergarten, Grundschule, Hauptschule, Realschule, Gymnasium, Gesamtschule, Öffentliche Verkehrsmittel
Kontaktanfrage senden
Über den Anbieter
OM PropTech GmbH
Humboldtstraße 25a
21509 Glinde
Kontakt
| Telefon | - |
| Fax | - |
| Website | www.ohne-makler.net |
Ansprechpartner/in
Privat von R. Rech
Weitere Angebote des Anbieters
35
Große 3 Zimmer Wohnung mit EBK,2 Bäder, Klimaanlage ...
Wohnung
60388 Frankfurt am Main
Willkommen in Ihrem neuen Zuhause! Diese hochwertige Dachgeschosswohnung in einem modernen 3-Familienhaus (Erstbezug 03/2020) bietet ein stilvolles und zugleich komfortables Zuhause auf rund 110 m² Wohnfläche (ca. ...
1.850 €
Kaltmiete (netto)
110 m²
Wohnfläche
3
Zimmer
10
Großzügiges 10-Zimmer Haus in Rostock-Brinckmansdorf / ...
Haus
18055 Rostock
Dieses exklusive (KfW70-)Einfamilienhaus mit Einliegerwohnung mit ca. 312 m² Wohnfläche und einem 1.885 m² großen Grundstück befindet sich in bester Lage von Rostock-Brinckmansdorf. Das Haus verfügt über 10 Zimmer und ...
875.000 €
Kaufpreis
315 m²
Wohnfläche
10
Zimmer
15
Gehobene 3.5 Zimmer Wohnung mit Weitblick
Wohnung
74206 Bad Wimpfen
Es handelt sich um eine Dachgeschosswohnung in einem 3‑Familien‑Haus, das 2018 gebaut wurde. Der Energiebedarf ist sehr niedrig, die Nebenkosten liegen im Schnitt bei etwa 190 € im Monat, und da es keine Hausverwaltung ...
1.490 €
Kaltmiete (netto)
115 m²
Wohnfläche
3
Zimmer
37
Schönes Haus Regensburg Reinhausen, kein Makler, 789 ...
Haus
93059 Regensburg
keine Maklerprovision, bitte keine Anfragen durch Makler, wegen Rückfragen und Besichtigung Telefonnummer 0174 311 78 62, verkauft wird ein Reiheneckhaus, Preis 789.000,-€ zusätzlich verkauft wird ein Tiefgaragenstellpl ...
789.000 €
Kaufpreis
139,14 m²
Wohnfläche
4
Zimmer
6
Attraktive großzügige 4-Zimmer Wohnung im Herzen von ...
Wohnung
74321 Bietigheim-Bissingen
Attraktive, großzügige 3-Zimmer-Wohnung mit 147 m², hohen Decken, Kamin & 3 Balkonen – Erstbezug nach Sanierung Diese außergewöhnlich großzügige und hochwertig sanierte 3-Zimmer-Wohnung in Bietigheim-Bissingen ...
2.200 €
Kaltmiete (netto)
147 m²
Wohnfläche
4
Zimmer