Ihr Traumhaus zum Familienglück mit Grundstück in begehrter Lage
995.000 €
Kaufpreis
165 m²
Wohnfläche
6
Zimmer
immobilien.de Nr.: 9398216
Objektnummer: WW50-005
Preise & Kosten
| Kaufpreis | 995.000 € |
| Nebenkosten | keine Angabe |
Größe & Zustand
| Wohnfläche | 165 m² |
| Grundstücksfläche | 710 m² |
| Zimmer | 6 |
| Verfügbar ab | keine Angabe |
| Zustand | Projektiert |
Energie
| Energietyp | KfW-40 |
Objektbeschreibung
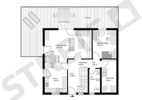
Willkommen in Ihrem zukünftigen Traumhaus in Reit im Winkl! Dieses individuell geplante Einfamilienhaus überzeugt durch seine durchdachte Architektur und großzügige Raumaufteilung. Mit 6 Zimmern und einer Wohnfläche von 165 m² auf einem 710 m² großen Grundstück bietet dieses Haus ausreichend Platz für Ihre Familie und Ihre persönlichen Wünsche. Die zwei Etagen sind ideal, um sowohl Rückzugsorte als auch gemeinsame Familienräume zu schaffen. Die Beratung vor dem Bau sorgt dafür, dass Ihre Vorstellungen und Wünsche genau erfasst werden, sodass Ihr Traumhaus genau nach Ihren Vorstellungen realisiert werden kann. Wir verwenden das bewährte STREIF-Konzept, das Ihnen eine schnelle und reibungslose Umsetzung innerhalb weniger Monate garantiert.
Das Projekt wird in der Ausbaustufe FastFertigPlus erstellt, was bedeutet, dass Sie bei der Gestaltung aktiv mitarbeiten können, während die haustechnischen Gewerke von erfahrenen Fachbetrieben durchgeführt werden. Damit erhalten Sie nicht nur ein hochwertiges Zuhause, sondern auch die Möglichkeit, Kosten zu sparen.
Der Preis für das Haus City beginnt bei 344.375 EUR, was Ihnen ein ausgezeichnetes Preis-Leistungs-Verhältnis bietet.
Das Projekt wird in der Ausbaustufe FastFertigPlus erstellt, was bedeutet, dass Sie bei der Gestaltung aktiv mitarbeiten können, während die haustechnischen Gewerke von erfahrenen Fachbetrieben durchgeführt werden. Damit erhalten Sie nicht nur ein hochwertiges Zuhause, sondern auch die Möglichkeit, Kosten zu sparen.
Der Preis für das Haus City beginnt bei 344.375 EUR, was Ihnen ein ausgezeichnetes Preis-Leistungs-Verhältnis bietet.
Ausstattung
| Anzahl der Etagen im Haus | 2 |
| Bad | 1 |
Das Einfamilienhaus im KFW40 Standard ist energieeffizient und nachhaltig konzipiert. Es verfügt über eine Sanitär-Grundausstattung und bietet Raum für individuelle Gestaltungsmöglichkeiten. Die Auswahl zwischen verschiedenen Dachformen, wie Walmdach, Flachdach oder klassischem Satteldach, gibt Ihnen die Freiheit, das äußere Erscheinungsbild ganz nach Ihrem Geschmack zu gestalten. Bei STREIF setzen wir auf hochwertige Materialien und moderne Bauweise, um Ihnen ein Zuhause zu schaffen, das sowohl funktional als auch ästhetisch ansprechend ist.
Sonstige Informationen
Sie haben die Wahl zwischen vier verschiedenen Ausbaustufen, um Ihr Traumhaus nach Ihren Bedürfnissen zu gestalten. Die Ausbaustufe 3 - FastFertigPlus, die in diesem Projekt realisiert wird, beinhaltet die Sanitär-Grundausstattung und ermöglicht es Ihnen, aktiv am Bauprozess teilzunehmen. Sie können Eigenleistungen in Form einer Muskelhypothek einbringen, um Kosten zu sparen und Ihre finanziellen Möglichkeiten zu optimieren. Unsere Dienstleistungen umfassen eine ausführliche Beratung, maßgeschneiderte Planung und die Übergabe Ihres Hauses in der von Ihnen gewünschten Ausbaustufe, sei es schlüsselfertig oder in einer anderen Variante.
Lage des Objektes
Das Haus befindet sich in einem ruhigen Wohngebiet in Reit im Winkl, das für seine malerische Landschaft und hervorragende Lebensqualität bekannt ist. Die Umgebung bietet zahlreiche Freizeitmöglichkeiten, wie Wandern, Skifahren und Radfahren, und ist ideal für Familien und Naturliebhaber. Die gute Anbindung an die Infrastruktur, mit Einkaufsmöglichkeiten, Schulen und Ärzten in der Nähe, macht diesen Standort besonders attraktiv.
Anbieter kontaktieren
Kontakt
| Telefon | +49 8641 6973232 |
| Mobil | +49 151 51595431 |
| Website | www.streif.de |
