Wohn(t)raum über 2 Etagen mit Dachterrasse, Balkon, 2 Einstellplätzen, Einbau Wärmepumpe 2026
499.000 €
Kaufpreis
158 m²
Wohnfläche
5
Zimmer
immobilien.de Nr.: 9392772
Objektnummer: FALC-IRo-79392
Preise & Kosten
| Kaufpreis | 499.000 € |
| Nebenkosten | keine Angabe |
| Heizkosten enthalten | Ja |
| Hausgeld | 723 € |
| Maklerprovision | 3,00 % |
Größe & Zustand
| Wohnfläche | 158 m² |
| Zimmer | 5 |
| Baujahr | 1993 |
| Letzte Modernisierung | 2026 |
| Verfügbar ab | nach Vereinbarung |
| Zustand | Modernisiert |
Energie
| Energieausweistyp | Verbrauch |
| Ausstellungsdatum | 14. 01. 2019 |
| Gültig bis | 14.01.2029 |
| Energieeffizienzklasse | D |
| Energieverbrauchkennwert | 124 kWh/(m²*a) |
| Heizungsart | Zentralheizung |
| Wesentlicher Energieträger | Gas |
| Energieträger/Befeuerung | Gas |
Objektbeschreibung
Iris Rohde von FALC Immobilien Hildesheim freut sich, Ihnen diese Maisonette-Eigentumswohnung anbieten zu dürfen:
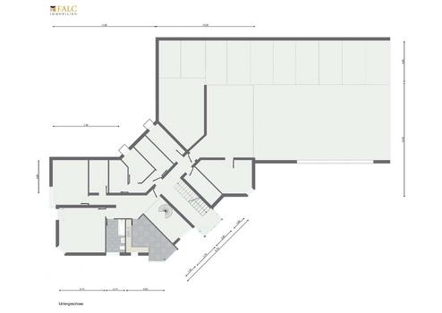
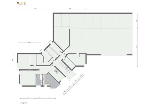
Dieses außergewöhnliche Apartment mit 5 Zimmern auf 2 Ebenen (2. und 3. OG) mit einer Wohnfläche von ca. 158 m² bietet ein komfortables und stilvolles Wohnerlebnis. Erbaut im Jahr 1993, besticht die Immobilie durch ihre durchdachte Raumaufteilung und hochwertige Ausstattung. Ein besonderes Highlight ist die großzügige, nicht einsehbare Dachterrasse (ca. 26 m²), die zusätzlichen Raum für Erholung und Entspannung bietet. Genießen Sie hier Ihren Feierabend in absoluter Ruhe und dennoch zentraler Lage in Hildesheim!
Auch energetisch kann diese Eigentumswohnung punkten: Im Jahr 2026 ist der Einbau einer neuen Heizungsanlage (Wärmepumpe) geplant, welche den Energiekennwert dieser Immobilie deutlich verbessern wird (die Angaben im vorliegenden Energieausweis beziehen sich auf die aktuelle Heizungsanlage). Nähere Informationen zur neu geplanten Heizung erhalten Sie gerne über uns.
... und auch die Parkplatzsuche werden Sie sich in Zukunft getrost sparen können, denn diese schöne Eigentumswohnung wird durch zwei Tiefgaragenstellplätze abgerundet, die einen sicheren und bequemen Zugang zu Ihren Fahrzeugen ermöglichen. Eine Wallbox ist ebenfalls vorhanden. Was will man mehr?!
Die Vorauszahlung für die Bewirtschaftung beträgt ab 01.01.2026 monatlich 723,00 EUR (4,57 EUR/qm); hinzu kommt eine Instandhaltungsrücklage von mtl. 175,- EUR, welches ein Hausgeld von monatlich 898,00 EUR ergibt. Hierin sind alle Betriebskosten, die Heizkosten sowie die Servicegebühr für die Hausverwaltung enthalten (beträgt ab 01.01.2026 pro Monat / Wohneinheit 32,73 EUR).
Miteigentumsanteile der Wohnung: 104,89 / 1.000 MEA
Fordern Sie gleich unser Exposé an: HIERIN ERHALTEN SIE WEITERE FOTOS ZUR IMMOBILIE SOWIE DEN ZUGANG ZUR VIRTUELLEN BESICHTIGUNG!
Dieses außergewöhnliche Apartment mit 5 Zimmern auf 2 Ebenen (2. und 3. OG) mit einer Wohnfläche von ca. 158 m² bietet ein komfortables und stilvolles Wohnerlebnis. Erbaut im Jahr 1993, besticht die Immobilie durch ihre durchdachte Raumaufteilung und hochwertige Ausstattung. Ein besonderes Highlight ist die großzügige, nicht einsehbare Dachterrasse (ca. 26 m²), die zusätzlichen Raum für Erholung und Entspannung bietet. Genießen Sie hier Ihren Feierabend in absoluter Ruhe und dennoch zentraler Lage in Hildesheim!
Auch energetisch kann diese Eigentumswohnung punkten: Im Jahr 2026 ist der Einbau einer neuen Heizungsanlage (Wärmepumpe) geplant, welche den Energiekennwert dieser Immobilie deutlich verbessern wird (die Angaben im vorliegenden Energieausweis beziehen sich auf die aktuelle Heizungsanlage). Nähere Informationen zur neu geplanten Heizung erhalten Sie gerne über uns.
... und auch die Parkplatzsuche werden Sie sich in Zukunft getrost sparen können, denn diese schöne Eigentumswohnung wird durch zwei Tiefgaragenstellplätze abgerundet, die einen sicheren und bequemen Zugang zu Ihren Fahrzeugen ermöglichen. Eine Wallbox ist ebenfalls vorhanden. Was will man mehr?!
Die Vorauszahlung für die Bewirtschaftung beträgt ab 01.01.2026 monatlich 723,00 EUR (4,57 EUR/qm); hinzu kommt eine Instandhaltungsrücklage von mtl. 175,- EUR, welches ein Hausgeld von monatlich 898,00 EUR ergibt. Hierin sind alle Betriebskosten, die Heizkosten sowie die Servicegebühr für die Hausverwaltung enthalten (beträgt ab 01.01.2026 pro Monat / Wohneinheit 32,73 EUR).
Miteigentumsanteile der Wohnung: 104,89 / 1.000 MEA
Fordern Sie gleich unser Exposé an: HIERIN ERHALTEN SIE WEITERE FOTOS ZUR IMMOBILIE SOWIE DEN ZUGANG ZUR VIRTUELLEN BESICHTIGUNG!
Ausstattung
| Küche | Einbauküche |
| Bad | 2 |
| Bad | Dusche, Fenster |
| Boden | Fliesen, Parkett |
| Balkone | 1 |
| Terrassen | 1 |
| Keller |
Merkmale auf einen Blick:
-----------------------------------------------------
- Baujahr 1993
- massive Bauweise auf einem Eigentumsgrundstück
- 5-Zimmer-Whg. mit ca. 158 qm Wohnfläche mit großer Dachterrasse + Balkon
- Wärmepumpe beauftragt (Einbau geplant in 2026)
- Kalt- und Warmwasserzähler
- teilweise noch Holzfenster 2-fach-verglast (werden i.d. nächsten Jahren nach und nach erneuert)
- mehrere Fenster wurden bereits getauscht (Kunststoffrahmen).
Hierbei handelt es sich um alle Fenster in den Gauben der oberen Etage, das Fensterelement in
der Küche sowie das Fensterelement im Schlafzimmer.
- Waschmaschinenanschluss im Untergeschoss
- alle Bäder wurden modernisiert im Jahr 2013 + 2019
- Gegensprechanlage
- Elektroinstallation 3-adrig
weitere Ausstattungsmerkmale auf einen Blick:
-----------------------------------------------------------------
- gepflegtes Treppenhaus (ein Aufzug ist nicht vorhanden)
- Dachterrasse Ausrichtung: Süd/West (ca. 26 m²)
- Markise auf der Dachterrasse (manuell)
- großzügiges Wohn-/Esszimmer
- Küche inkl. Einbauküche
- 1 Schlafzimmer mit direkt angrenzendem Balkon
- 2 modernisierte Tageslichtbäder mit ebenerdiger Dusche
- modernisiertes Gäste-WC
- weitere 3 Zimmer
- großzügiger Flur
- 1 Kellerraum
- 2 Tiefgaragenplätze mit Wallbox
- Bodenbeläge: Fliesen + Parkett
- das Parkett wurde im Jahr 2023 abgeschliffen und neu versiegelt
- helle Zimmertüren
- gemeinschaftliche Fahrradabstellmöglichkeit in der Tiefgarage
Die Heizzentrale befindet sich derzeit noch im Keller der Hausnummer 6. Über eine Nahwärmeleitung wird die Wärme in beide Gebäude verteilt. Die neue Heizungsanlage (Wärmepumpe) wird jeweils eine eigene Heizzentrale je Haus vorsehen.
-----------------------------------------------------
- Baujahr 1993
- massive Bauweise auf einem Eigentumsgrundstück
- 5-Zimmer-Whg. mit ca. 158 qm Wohnfläche mit großer Dachterrasse + Balkon
- Wärmepumpe beauftragt (Einbau geplant in 2026)
- Kalt- und Warmwasserzähler
- teilweise noch Holzfenster 2-fach-verglast (werden i.d. nächsten Jahren nach und nach erneuert)
- mehrere Fenster wurden bereits getauscht (Kunststoffrahmen).
Hierbei handelt es sich um alle Fenster in den Gauben der oberen Etage, das Fensterelement in
der Küche sowie das Fensterelement im Schlafzimmer.
- Waschmaschinenanschluss im Untergeschoss
- alle Bäder wurden modernisiert im Jahr 2013 + 2019
- Gegensprechanlage
- Elektroinstallation 3-adrig
weitere Ausstattungsmerkmale auf einen Blick:
-----------------------------------------------------------------
- gepflegtes Treppenhaus (ein Aufzug ist nicht vorhanden)
- Dachterrasse Ausrichtung: Süd/West (ca. 26 m²)
- Markise auf der Dachterrasse (manuell)
- großzügiges Wohn-/Esszimmer
- Küche inkl. Einbauküche
- 1 Schlafzimmer mit direkt angrenzendem Balkon
- 2 modernisierte Tageslichtbäder mit ebenerdiger Dusche
- modernisiertes Gäste-WC
- weitere 3 Zimmer
- großzügiger Flur
- 1 Kellerraum
- 2 Tiefgaragenplätze mit Wallbox
- Bodenbeläge: Fliesen + Parkett
- das Parkett wurde im Jahr 2023 abgeschliffen und neu versiegelt
- helle Zimmertüren
- gemeinschaftliche Fahrradabstellmöglichkeit in der Tiefgarage
Die Heizzentrale befindet sich derzeit noch im Keller der Hausnummer 6. Über eine Nahwärmeleitung wird die Wärme in beide Gebäude verteilt. Die neue Heizungsanlage (Wärmepumpe) wird jeweils eine eigene Heizzentrale je Haus vorsehen.
Sonstige Informationen
Die Objektbeschreibung beruht ganz oder zum Teil auf Angaben des Eigentümers. Für die Richtigkeit oder Vollständigkeit übernehmen wir keine Gewähr.
Die im Exposé ausgewiesene Provision ist der Teil, den der Käufer aufgrund unserer Tätigkeit nach Abschluss des Kaufvertrages zu zahlen hat. Dieser beträgt 3 % inkl. 19 % MWST vom beurkundeten Kaufpreis.
Da wir die Termine für Besichtigungen mit größter Sorgfalt planen, bitten wir Sie um Verständnis dafür, dass Termine ausschließlich per E-Mail vereinbart werden können. Um fair und gerecht gegenüber jedem unserer Interessenten zu werden ist dies unumgänglich. Wir freuen uns über Ihre Kontaktaufnahme! Geben Sie bitte immer die vollständige ADRESSE und RUFNUMMER an!
Ihre Ansprechpartnerin:
Iris Rohde, iris.rohde@falcimmo.de
0162 - 726 74 77
Besuchen Sie uns gerne nach vorheriger Terminvereinbarung in unserem Büro in 31134 Hildesheim, Dammstr. 18. Parkplätze finden Sie auf dem kostenpflichtigen Parkplatz neben dem Museum.
Sie denken selbst über die Veräußerung Ihrer Immobilie nach - oder möchten einfach nur wissen, was diese wert ist? Bei uns erhalten Sie kostenlos eine professionelle Wertermittlung! Gehen Sie hierzu auf: www.falcimmo.de oder kontaktieren Sie uns gerne direkt.
Die im Exposé ausgewiesene Provision ist der Teil, den der Käufer aufgrund unserer Tätigkeit nach Abschluss des Kaufvertrages zu zahlen hat. Dieser beträgt 3 % inkl. 19 % MWST vom beurkundeten Kaufpreis.
Da wir die Termine für Besichtigungen mit größter Sorgfalt planen, bitten wir Sie um Verständnis dafür, dass Termine ausschließlich per E-Mail vereinbart werden können. Um fair und gerecht gegenüber jedem unserer Interessenten zu werden ist dies unumgänglich. Wir freuen uns über Ihre Kontaktaufnahme! Geben Sie bitte immer die vollständige ADRESSE und RUFNUMMER an!
Ihre Ansprechpartnerin:
Iris Rohde, iris.rohde@falcimmo.de
0162 - 726 74 77
Besuchen Sie uns gerne nach vorheriger Terminvereinbarung in unserem Büro in 31134 Hildesheim, Dammstr. 18. Parkplätze finden Sie auf dem kostenpflichtigen Parkplatz neben dem Museum.
Sie denken selbst über die Veräußerung Ihrer Immobilie nach - oder möchten einfach nur wissen, was diese wert ist? Bei uns erhalten Sie kostenlos eine professionelle Wertermittlung! Gehen Sie hierzu auf: www.falcimmo.de oder kontaktieren Sie uns gerne direkt.
Lage des Objektes
Diese Immobilie in Hildesheim bietet eine ideale Lage für ein aktives und vielseitiges Leben. In der unmittelbaren Umgebung finden Sie eine Vielzahl an Annehmlichkeiten, die den Alltag erleichtern und bereichern.
Die Anbindung an den öffentlichen Nahverkehr ist hervorragend, mit mehreren Bushaltestellen in fußläufiger Entfernung. Dies ermöglicht eine bequeme Erreichbarkeit des Stadtzentrums und anderer Stadtteile. Für längere Reisen ist der Flugplatz Hildesheim in etwa 15 Minuten mit dem Auto erreichbar, während die Autobahnauffahrt A 7 ebenfalls in kurzer Fahrzeit zu erreichen ist.
In der Freizeit lädt der nahegelegene Eichendorff-Hain zu entspannten Spaziergängen oder sportlichen Aktivitäten im Freien ein. Zudem bietet der historische Marktplatz, nur einen kurzen Spaziergang entfernt, kulturelle Erlebnisse und eine Vielzahl an gastronomischen Angeboten. Hier können Sie in einem der charmanten Cafés oder Restaurants verweilen und die Atmosphäre genießen.
Für den täglichen Bedarf sind mehrere Supermärkte und Drogerien in der Nähe vorhanden, sodass Einkäufe schnell und unkompliziert erledigt werden können. Auch die Gesundheitsversorgung ist durch nahegelegene Arztpraxen und Apotheken bestens gewährleistet.
Für Fitnessbegeisterte stehen mehrere Fitnessstudios zur Auswahl, darunter das McFit und das Pankra Gym, die beide in wenigen Minuten erreichbar sind. Diese bieten die Möglichkeit, den Tag mit einem intensiven Workout zu beginnen oder zu beenden.
Diese Immobilie vereint die Vorzüge einer zentralen Lage mit der Nähe zu Natur und Freizeitmöglichkeiten, was sie zu einem idealen Wohnort für Menschen mit einem aktiven Lebensstil macht.
Die Anbindung an den öffentlichen Nahverkehr ist hervorragend, mit mehreren Bushaltestellen in fußläufiger Entfernung. Dies ermöglicht eine bequeme Erreichbarkeit des Stadtzentrums und anderer Stadtteile. Für längere Reisen ist der Flugplatz Hildesheim in etwa 15 Minuten mit dem Auto erreichbar, während die Autobahnauffahrt A 7 ebenfalls in kurzer Fahrzeit zu erreichen ist.
In der Freizeit lädt der nahegelegene Eichendorff-Hain zu entspannten Spaziergängen oder sportlichen Aktivitäten im Freien ein. Zudem bietet der historische Marktplatz, nur einen kurzen Spaziergang entfernt, kulturelle Erlebnisse und eine Vielzahl an gastronomischen Angeboten. Hier können Sie in einem der charmanten Cafés oder Restaurants verweilen und die Atmosphäre genießen.
Für den täglichen Bedarf sind mehrere Supermärkte und Drogerien in der Nähe vorhanden, sodass Einkäufe schnell und unkompliziert erledigt werden können. Auch die Gesundheitsversorgung ist durch nahegelegene Arztpraxen und Apotheken bestens gewährleistet.
Für Fitnessbegeisterte stehen mehrere Fitnessstudios zur Auswahl, darunter das McFit und das Pankra Gym, die beide in wenigen Minuten erreichbar sind. Diese bieten die Möglichkeit, den Tag mit einem intensiven Workout zu beginnen oder zu beenden.
Diese Immobilie vereint die Vorzüge einer zentralen Lage mit der Nähe zu Natur und Freizeitmöglichkeiten, was sie zu einem idealen Wohnort für Menschen mit einem aktiven Lebensstil macht.
Anbieter kontaktieren
Anbieter
FALC Immobilien GmbH & Co. KG
Humperdickstr. 3
53773 Hennef (Sieg)
Kontakt
| Telefon | +49 800 6460646 |
| Mobil | +49 162 7267477 |
| Fax | +49 2242 9010319 |
| Website | www.falcimmo.de |
