Wohn- und Geschäftshaus
198.000 €
Kaufpreis
242 m²
Wohnfläche
371 m²
Nutzfläche
immobilien.de Nr.: 9389676
Objektnummer: 1111-3263-AH
Preise & Kosten
| Kaufpreis | 198.000 € |
| Nebenkosten | keine Angabe |
| Maklerprovision | 3,57 % inkl. MwSt |
| Stellplatz Freiplatz Miete} | 0 € |
| Stellplatz Garage Miete | 0 € |
Größe & Zustand
| Wohnfläche | 242 m² |
| Nutzfläche | 371 m² |
| Grundstücksfläche | 557 m² |
| Baujahr | 1954 |
| Verfügbar ab | keine Angabe |
| Zustand | Gepflegt |
Energie
| Energieausweistyp | Bedarfsausweis |
| Gültig bis | 2034-08-01 |
| Baujahr (laut Energieausweis) | 1999 |
| Energieeffizienzklasse | H |
| Endenergiebedarf | 502.00 |
| Wesentlicher Energieträger | Gas |
| Energieträger/Befeuerung | Gas |
Objektbeschreibung
Diese vielseitig nutzbare Immobilie besteht aus einer ehemaligen Gaststätte (Baujahr 1954) mit Fremdenzimmern und separater Wohnung im Obergeschoss. Der Anbau wurde zu weiteren Wohnzwecken 1983 errichtet, insgesamt haben wir eine Wohnfläche von ca. 242 m². Die zwei Häuser stehen auf einem ca. 557 m² großen Grundstück mit
6 Stellplätzen und einer Doppelgarage.
Gewerbefläche ca. 235 m².
Sind aber bereits nach WEG geteilt.
Hier vereinen sich Wohnen und Arbeiten unter einem Dach.
Diese Flexibilität macht die Immobilie besonders attraktiv für Selbstständige, Unternehmer oder als Mehrgenerationenhaus.
6 Stellplätzen und einer Doppelgarage.
Gewerbefläche ca. 235 m².
Sind aber bereits nach WEG geteilt.
Hier vereinen sich Wohnen und Arbeiten unter einem Dach.
Diese Flexibilität macht die Immobilie besonders attraktiv für Selbstständige, Unternehmer oder als Mehrgenerationenhaus.
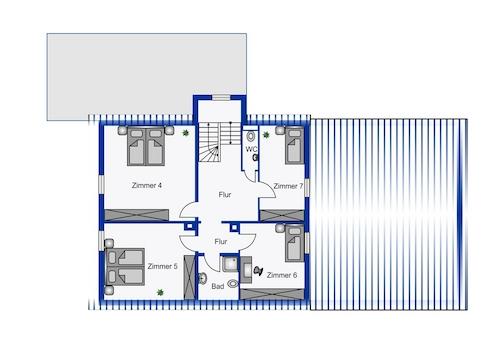
Ausstattung
| Anzahl der Etagen im Haus | 3 |
| Terrassen | 1 |
| Garage/Stellplätze | 1 |
- Doppelgarage
- 6 Stellplätze
- Terrasse
- Einbauküche
- Vollunterkellert
- Fremdenzimmer
- Gaststätte
- 6 Stellplätze
- Terrasse
- Einbauküche
- Vollunterkellert
- Fremdenzimmer
- Gaststätte
Lage des Objektes
Diese Wohn- und Geschäftsimmobilie in Münchweiler an der Rodalb bietet eine ideale Lage für all jene, die Wert auf eine gute Infrastruktur und eine ruhige Umgebung legen.
Die Anbindung an den öffentlichen Nahverkehr ist hervorragend, mit einer Bushaltestelle nur wenige Schritte entfernt und dem Bahnhof Münchweiler (Rodalb) in fußläufiger Entfernung.
Für Autofahrer ist die nächste Autobahnauffahrt in etwa 10 km erreichbar, was eine schnelle Verbindung zu umliegenden Städen ermöglicht.
Die Umgebung der Immobilie bietet zahlreiche Freizeitmöglichkeiten, die zu Spaziergängen und Erholung einladen.
Auch die medizinische Versorgung ist gesichert, mit mehreren Arztpraxen und dem St. Elisabeth-Krankenhaus in der Nähe.
Die Wohnlage ist besonders für Familien attraktiv, da sie eine hohe Eigentümerquote und großzügige Wohnfläche bietet.
Die ruhige und dennoch gut angebundene Lage macht diese Immobilie zu einem idealen Zuhause für alle, die eine harmonische Balance zwischen Stadtleben und Natur suchen.
Die Anbindung an den öffentlichen Nahverkehr ist hervorragend, mit einer Bushaltestelle nur wenige Schritte entfernt und dem Bahnhof Münchweiler (Rodalb) in fußläufiger Entfernung.
Für Autofahrer ist die nächste Autobahnauffahrt in etwa 10 km erreichbar, was eine schnelle Verbindung zu umliegenden Städen ermöglicht.
Die Umgebung der Immobilie bietet zahlreiche Freizeitmöglichkeiten, die zu Spaziergängen und Erholung einladen.
Auch die medizinische Versorgung ist gesichert, mit mehreren Arztpraxen und dem St. Elisabeth-Krankenhaus in der Nähe.
Die Wohnlage ist besonders für Familien attraktiv, da sie eine hohe Eigentümerquote und großzügige Wohnfläche bietet.
Die ruhige und dennoch gut angebundene Lage macht diese Immobilie zu einem idealen Zuhause für alle, die eine harmonische Balance zwischen Stadtleben und Natur suchen.
Anbieter kontaktieren
Anbieter
N.H. Immobilien Vertriebs GmbH Abt. RE/MAX Classic
Rheingönheimer Str.104
67065 Ludwigshafen
Kontakt
| Telefon | 00491743943841 |
| Mobil | 00491743943841 |
| Website | www.remax-classic-lu.de |
