Helle 3,5 Zimmer Wohnung auf zwei Etagen mit Terrasse - PROVISIONSFREI
729.000 €
Kaufpreis
97,52 m²
Wohnfläche
3,5
Zimmer
immobilien.de Nr.: 9388805
Objektnummer: 397145
Kaufpreis
| Kaufpreis | 729.000 € |
| Hausgeld | 410 € |
| Maklerprovision | keine Provision, courtagefrei |
| Stellplatz Tiefgarage Kaufpreis | 25.000 € |
Wohnfläche, Grundstück & Bausubstanz
| Wohnfläche | 97,52 m² |
| Zimmer | 3,5 |
| Baujahr | 2003 |
| Verfügbar ab | sofort |
| Zustand | Gepflegt |
Energie
| Energieausweistyp | Verbrauch |
| Energieeffizienzklasse | C |
| Energieverbrauchkennwert | 96 kWh/(m²*a) |
| Heizungsart | Fußbodenheizung |
| Energieträger/Befeuerung | Gas |
Beschreibung der Immobilie
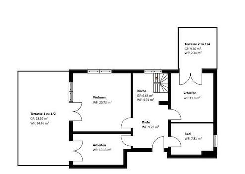
Diese hochwertig ausgestattete 3-Zimmer-Wohnung mit zusätzlichem Hobbyraum befindet sich im Erdgeschoss eines gepflegten Mehrfamilienhauses mit nur sechs Wohneinheiten und bietet ein besonders ruhiges, familienfreundliches Wohnumfeld mit hoher Privatsphäre.
Die Wohnung überzeugt durch eine durchdachte und alltagstaugliche Raumaufteilung, die sich ideal für Paare und Familien eignet. Besonders hervorzuheben sind die sonnige Terrasse mit ca. 30 m², der eigene, abgeschlossene Gartenanteil sowie der großzügige Hobbyraum mit Wohncharakter auf der unteren Ebene, der zusätzliche, flexibel nutzbare Fläche bietet.
Der ca. 30 m² große Hobbyraum (davon werden 50 % in der Wohnfläche berücksichtigt) ist direkt über die offen gestaltete Küche erreichbar und stellt einen echten Mehrwert für Familien dar. Ausgestattet mit Fußbodenheizung und Laminatboden sowie mit Tageslicht durch große Lichtschächte und Fenster, bietet dieser Raum vielseitige Nutzungsmöglichkeiten – beispielsweise als Kinder- oder Jugendzimmer, Homeoffice, Spiel- oder Fitnessraum, Gästezimmer oder ruhiger Rückzugsort.
Die offene Küche mit moderner Einbauküche (neuwertiger Zustand) bildet den kommunikativen Mittelpunkt der Wohnung und ist ideal für das gemeinsame Familienleben. Kurze Wege und die direkte Anbindung an den Hobbyraum schaffen zusätzlichen Komfort im Alltag.
Im gesamten Wohnbereich sorgen bodentiefe Fenster für eine helle, freundliche Atmosphäre und ermöglichen einen direkten Zugang zur Terrasse und in den privaten Garten – ein großer Vorteil für Familien mit Kindern, Haustieren oder für alle, die gerne Zeit im Freien verbringen.
Eine Fußbodenheizung mit Einzelraumsteuerung gewährleistet ein angenehmes und individuell regulierbares Raumklima in allen Wohnräumen. Die elektrischen Jalousien bieten nicht nur optimalen Sonnen- und Sichtschutz, sondern lassen sich komfortabel direkt im Raum oder per Smartphone steuern, was den modernen Wohnkomfort zusätzlich unterstreicht.
Die hochwertige Ausstattung wird durch Echtholzparkett im Erdgeschoss abgerundet, das im Jahr 2019 fachgerecht abgeschliffen und neu versiegelt wurde und dem Wohnbereich eine warme, langlebige Wohnqualität verleiht.
Das Tageslichtbad ist funktional und familiengerecht gestaltet und verfügt über eine Badewanne, eine separate Duschkabine sowie hochwertige Armaturen, wodurch sowohl der schnelle Start in den Alltag als auch entspannte Badezeiten problemlos möglich sind.
Attraktiver Standort mit zusätzlicher Zukunftsperspektive
Die Wohnung liegt in einem bereits gewachsenen, ruhigen Wohnumfeld, das durch die nahe Entwicklung der Kirschgärten gezielt ergänzt wird. Dort entstehen zusätzliche Bildungs- und Betreuungsangebote wie Kitas und eine Grundschule mit Sporthalle, ebenso wie Grün- und Spielflächen, die die Infrastruktur im Stadtteil weiter stärken.
Für Familien bedeutet dies: ruhiges, privates Wohnen heute – kombiniert mit einer langfristig gesicherten, familienfreundlichen Umgebung und kurzen Wegen für Bildung, Betreuung und Freizeit.
Wenn diese Wohnung Ihr Interesse geweckt hat, freuen wir uns über Ihre Nachricht und stellen sie Ihnen gerne persönlich vor.
Die Wohnung überzeugt durch eine durchdachte und alltagstaugliche Raumaufteilung, die sich ideal für Paare und Familien eignet. Besonders hervorzuheben sind die sonnige Terrasse mit ca. 30 m², der eigene, abgeschlossene Gartenanteil sowie der großzügige Hobbyraum mit Wohncharakter auf der unteren Ebene, der zusätzliche, flexibel nutzbare Fläche bietet.
Der ca. 30 m² große Hobbyraum (davon werden 50 % in der Wohnfläche berücksichtigt) ist direkt über die offen gestaltete Küche erreichbar und stellt einen echten Mehrwert für Familien dar. Ausgestattet mit Fußbodenheizung und Laminatboden sowie mit Tageslicht durch große Lichtschächte und Fenster, bietet dieser Raum vielseitige Nutzungsmöglichkeiten – beispielsweise als Kinder- oder Jugendzimmer, Homeoffice, Spiel- oder Fitnessraum, Gästezimmer oder ruhiger Rückzugsort.
Die offene Küche mit moderner Einbauküche (neuwertiger Zustand) bildet den kommunikativen Mittelpunkt der Wohnung und ist ideal für das gemeinsame Familienleben. Kurze Wege und die direkte Anbindung an den Hobbyraum schaffen zusätzlichen Komfort im Alltag.
Im gesamten Wohnbereich sorgen bodentiefe Fenster für eine helle, freundliche Atmosphäre und ermöglichen einen direkten Zugang zur Terrasse und in den privaten Garten – ein großer Vorteil für Familien mit Kindern, Haustieren oder für alle, die gerne Zeit im Freien verbringen.
Eine Fußbodenheizung mit Einzelraumsteuerung gewährleistet ein angenehmes und individuell regulierbares Raumklima in allen Wohnräumen. Die elektrischen Jalousien bieten nicht nur optimalen Sonnen- und Sichtschutz, sondern lassen sich komfortabel direkt im Raum oder per Smartphone steuern, was den modernen Wohnkomfort zusätzlich unterstreicht.
Die hochwertige Ausstattung wird durch Echtholzparkett im Erdgeschoss abgerundet, das im Jahr 2019 fachgerecht abgeschliffen und neu versiegelt wurde und dem Wohnbereich eine warme, langlebige Wohnqualität verleiht.
Das Tageslichtbad ist funktional und familiengerecht gestaltet und verfügt über eine Badewanne, eine separate Duschkabine sowie hochwertige Armaturen, wodurch sowohl der schnelle Start in den Alltag als auch entspannte Badezeiten problemlos möglich sind.
Attraktiver Standort mit zusätzlicher Zukunftsperspektive
Die Wohnung liegt in einem bereits gewachsenen, ruhigen Wohnumfeld, das durch die nahe Entwicklung der Kirschgärten gezielt ergänzt wird. Dort entstehen zusätzliche Bildungs- und Betreuungsangebote wie Kitas und eine Grundschule mit Sporthalle, ebenso wie Grün- und Spielflächen, die die Infrastruktur im Stadtteil weiter stärken.
Für Familien bedeutet dies: ruhiges, privates Wohnen heute – kombiniert mit einer langfristig gesicherten, familienfreundlichen Umgebung und kurzen Wegen für Bildung, Betreuung und Freizeit.
Wenn diese Wohnung Ihr Interesse geweckt hat, freuen wir uns über Ihre Nachricht und stellen sie Ihnen gerne persönlich vor.
Ausstattungsmerkmale
| Anzahl der Etagen im Haus | 2 |
| Inserat befindet sich im Stockwerk | 0 |
| Küche | Einbauküche |
| Bad | 1 |
| Bad | Wanne |
| Boden | Fliesen, Parkett |
| Balkone | 0 |
| Garten | |
| Terrassen | 1 |
Terrasse, Garten, Vollbad, Einbauküche, Parkett, Fliesen
Bemerkungen:
Moderne Einbauküche neuwertig
Fußbodenheizung mit Smart-Home-Steuerung
Elektrische Jalousien für optimalen Komfort und Energieeffizienz mit Smart-Home-Steuerung
Bemerkungen:
Moderne Einbauküche neuwertig
Fußbodenheizung mit Smart-Home-Steuerung
Elektrische Jalousien für optimalen Komfort und Energieeffizienz mit Smart-Home-Steuerung
Sonstige Informationen
Heizungsart: Fußbodenheizung
Energieträger: Gas
Makleranfragen nicht erwünscht. Nach § 7 UWG sind unaufgeforderte Kontaktaufnahmen durch Makler ohne ausdrückliche Einwilligung des Empfängers verboten!
ohne-makler (OM) ist weder Anbieter noch Vermittler der Immobilie. OM betreibt eine Plattform für Immobilieneigentümer, die unter anderem die gleichzeitige Veröffentlichung einzelner Inserate auf mehreren Immobilienportalen ermöglicht. Die Inhalte dieser Inserate werden ausschließlich von Dritten verantwortet. Für die Richtigkeit, Vollständigkeit oder Rechtmäßigkeit der Angaben übernimmt OM keine Haftung. Hinweise auf mögliche Rechtsverstöße können jederzeit gemeldet werden und werden nach Prüfung umgehend bearbeitet.
Energieträger: Gas
Makleranfragen nicht erwünscht. Nach § 7 UWG sind unaufgeforderte Kontaktaufnahmen durch Makler ohne ausdrückliche Einwilligung des Empfängers verboten!
ohne-makler (OM) ist weder Anbieter noch Vermittler der Immobilie. OM betreibt eine Plattform für Immobilieneigentümer, die unter anderem die gleichzeitige Veröffentlichung einzelner Inserate auf mehreren Immobilienportalen ermöglicht. Die Inhalte dieser Inserate werden ausschließlich von Dritten verantwortet. Für die Richtigkeit, Vollständigkeit oder Rechtmäßigkeit der Angaben übernimmt OM keine Haftung. Hinweise auf mögliche Rechtsverstöße können jederzeit gemeldet werden und werden nach Prüfung umgehend bearbeitet.
Karte wird geladen...
Objektstandort
80999 München
- Bayern
Lage & Infrastruktur
Objektstandort
80999 München
- Bayern
Attraktive Lage in München-Untermenzing – familienfreundlich, grün und bestens angebunden
Die Gartenwohnung befindet sich in einem ruhigen Mehrfamilienhaus mit sechs Parteien im begehrten Münchner Stadtteil Untermenzing, der durch seine perfekte Kombination aus naturnahem Wohnen und hervorragender Anbindung an das städtische Leben besticht.
Untermenzing bietet eine ausgezeichnete Infrastruktur: Einkaufsmöglichkeiten für den täglichen Bedarf – von Supermärkten bis hin zu kleineren Fachgeschäften – sind schnell erreichbar. Apotheken, Ärtze, Bäckereien und Cafés befinden sich ebenfalls in unmittelbarer Nähe. Das nahegelegene Einkaufszentrum „EVERS“ bietet eine Vielzahl an Geschäften und Gastronomie, die zusätzlichen Komfort schaffen.
Die Anbindung an den öffentlichen Nahverkehr ist hervorragend: Der S-Bahnhof Allach und eine nahe gelgene Bushaltestelle ist nur wenige Minuten entfernt. Mit der S2 gelangen Sie in etwa 20 Minuten in die Münchner Innenstadt (Marienplatz) oder in rund 15 Minuten zum Hauptbahnhof. Die Bushaltestelle ist ebenfalls in nur 7 Minuten zu Fuß erreichbar. Der Münchener Flughafen ist mit dem Auto in etwa 30 Minuten zu erreichen, und über die nahegelegene A8 besteht eine schnelle Verbindung zum überregionalen Straßennetz.
Besonders für Familien ist Untermenzing attraktiv: Hier finden sich mehrere Kindergärten, Grundschulen und weiterführende Schulen, diese sind ebenfalls gut erreichbar, was Untermenzing zu einem idealen Standort für Familien macht.
Für Freizeit- und Sportbegeisterte gibt es zahlreiche Sportvereine und Spielplätze, die zu Bewegung und geselligem Beisammensein einladen. Die umliegenden Grünflächen bieten zusätzlich Raum für Erholung und besonders beliebt sind die Badeseen in der Umgebung, die zu erfrischenden Badeausflügen und Freizeitaktivitäten in der Natur einladen.
Das charmante Untermenzing bietet somit eine perfekte Mischung aus ruhigem, grünem Wohnen und einer hervorragenden Anbindung an die urbanen Vorzüge Münchens – ideal für Familien, Berufspendler und Naturliebhaber.
Infrastruktur (im Umkreis von 5 km):
Apotheke, Lebensmittel-Discount, Allgemeinmediziner, Kindergarten, Grundschule, Hauptschule, Realschule, Gymnasium, Öffentliche Verkehrsmittel
Die Gartenwohnung befindet sich in einem ruhigen Mehrfamilienhaus mit sechs Parteien im begehrten Münchner Stadtteil Untermenzing, der durch seine perfekte Kombination aus naturnahem Wohnen und hervorragender Anbindung an das städtische Leben besticht.
Untermenzing bietet eine ausgezeichnete Infrastruktur: Einkaufsmöglichkeiten für den täglichen Bedarf – von Supermärkten bis hin zu kleineren Fachgeschäften – sind schnell erreichbar. Apotheken, Ärtze, Bäckereien und Cafés befinden sich ebenfalls in unmittelbarer Nähe. Das nahegelegene Einkaufszentrum „EVERS“ bietet eine Vielzahl an Geschäften und Gastronomie, die zusätzlichen Komfort schaffen.
Die Anbindung an den öffentlichen Nahverkehr ist hervorragend: Der S-Bahnhof Allach und eine nahe gelgene Bushaltestelle ist nur wenige Minuten entfernt. Mit der S2 gelangen Sie in etwa 20 Minuten in die Münchner Innenstadt (Marienplatz) oder in rund 15 Minuten zum Hauptbahnhof. Die Bushaltestelle ist ebenfalls in nur 7 Minuten zu Fuß erreichbar. Der Münchener Flughafen ist mit dem Auto in etwa 30 Minuten zu erreichen, und über die nahegelegene A8 besteht eine schnelle Verbindung zum überregionalen Straßennetz.
Besonders für Familien ist Untermenzing attraktiv: Hier finden sich mehrere Kindergärten, Grundschulen und weiterführende Schulen, diese sind ebenfalls gut erreichbar, was Untermenzing zu einem idealen Standort für Familien macht.
Für Freizeit- und Sportbegeisterte gibt es zahlreiche Sportvereine und Spielplätze, die zu Bewegung und geselligem Beisammensein einladen. Die umliegenden Grünflächen bieten zusätzlich Raum für Erholung und besonders beliebt sind die Badeseen in der Umgebung, die zu erfrischenden Badeausflügen und Freizeitaktivitäten in der Natur einladen.
Das charmante Untermenzing bietet somit eine perfekte Mischung aus ruhigem, grünem Wohnen und einer hervorragenden Anbindung an die urbanen Vorzüge Münchens – ideal für Familien, Berufspendler und Naturliebhaber.
Infrastruktur (im Umkreis von 5 km):
Apotheke, Lebensmittel-Discount, Allgemeinmediziner, Kindergarten, Grundschule, Hauptschule, Realschule, Gymnasium, Öffentliche Verkehrsmittel