Großzügiges Einfamilienhaus in bester Umgebung !
538.000 €
Kaufpreis
176 m²
Wohnfläche
5
Zimmer
immobilien.de Nr.: 9383565
Objektnummer: 251090A008-251219
Kaufpreis
| Kaufpreis | 538.000 € |
| Stellplatz Garage Kaufpreis | 9.000 € |
Wohnfläche, Grundstück & Bausubstanz
| Wohnfläche | 176 m² |
| Grundstücksfläche | 640 m² |
| Zimmer | 5 |
| Baujahr | 2026 |
| Verfügbar ab | nach Vereinbarung |
| Zustand | Erstbezug |
Energie
| Energieausweistyp | Verbrauch |
| Baujahr (laut Energieausweis) | 2026 |
| Energieeffizienzklasse | A+ |
| Energietyp | Niedrigenergie, Neubaustandard, KfW-40 |
| Energieverbrauchkennwert | 33.00 kWh/(m²*a) |
| Heizungsart | Zentralheizung |
| Wesentlicher Energieträger | Strom |
| Energieträger/Befeuerung | Luft-Wärme-Pumpe |
Beschreibung der Immobilie
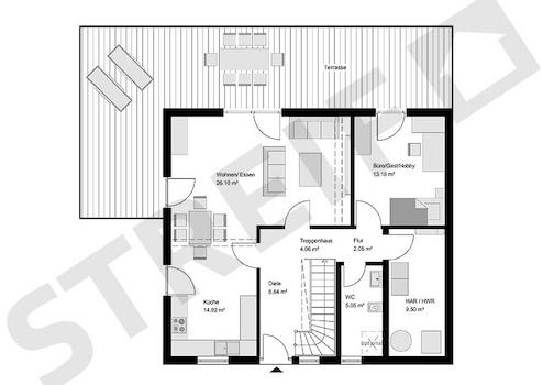
Hier erwartet Sie ein durchdachter Grundriss, der das Leben Ihrer Familie bereichert. Der lichtdurchflutete Wohn-, Ess- und Kochbereich lädt zu gemeinsamen Momenten ein und schafft eine warme Atmosphäre, in der Erinnerungen entstehen.
Praktisch und funktional ist der Hauswirtschaftsraum direkt neben der Küche platziert - so haben Sie alles griffbereit, was Sie für den Alltag benötigen. Das Erdgeschoss bietet zudem ein Gäste-WC, das flexibel auch als Duschbad genutzt werden kann, sowie eine einladende Diele und einen Haustechnikraum, die den Komfort Ihres Zuhauses erhöhen.
Im Dachgeschoss finden Sie zwei wunderschöne Kinderzimmer, die Raum für Spiel und Kreativität bieten, sowie ein gemütliches Elternschlafzimmer, in dem Sie entspannen können. Ein Flur und ein Familienbad runden das Angebot ab und sorgen für eine harmonische Aufteilung.
Die fixierte Lage der Treppe und des Haustechnikraumes sorgt für eine klare Struktur und macht das Wohnen in diesem Haus besonders angenehm. Lassen Sie sich von diesem durchdachten Raumkonzept inspirieren und gestalten Sie Ihr neues Zuhause voller Freude und Geborgenheit!
Thomas Heitz 0160 7038141 oder thomas.heitz@streif.de
Praktisch und funktional ist der Hauswirtschaftsraum direkt neben der Küche platziert - so haben Sie alles griffbereit, was Sie für den Alltag benötigen. Das Erdgeschoss bietet zudem ein Gäste-WC, das flexibel auch als Duschbad genutzt werden kann, sowie eine einladende Diele und einen Haustechnikraum, die den Komfort Ihres Zuhauses erhöhen.
Im Dachgeschoss finden Sie zwei wunderschöne Kinderzimmer, die Raum für Spiel und Kreativität bieten, sowie ein gemütliches Elternschlafzimmer, in dem Sie entspannen können. Ein Flur und ein Familienbad runden das Angebot ab und sorgen für eine harmonische Aufteilung.
Die fixierte Lage der Treppe und des Haustechnikraumes sorgt für eine klare Struktur und macht das Wohnen in diesem Haus besonders angenehm. Lassen Sie sich von diesem durchdachten Raumkonzept inspirieren und gestalten Sie Ihr neues Zuhause voller Freude und Geborgenheit!
Thomas Heitz 0160 7038141 oder thomas.heitz@streif.de
Ausstattungsmerkmale
| Anzahl der Etagen im Haus | 2 |
| Küche | Offene Küche |
| Bad | 1 |
| Bad | Dusche, Wanne, Fenster |
| Boden | Fliesen, Stein, Teppich, Parkett, Fertigparkett, Laminat, Dielen, Kunststoff, Linoleum, Marmor, Granit |
| Terrassen | 1 |
| Barrierefrei | |
| Garage/Stellplätze | 1 |
Erstklassige Materialien warten darauf, Ihr Eigen zu werden. Wir verbauen für Sie ausschließlich Produkte von namhaften Herstellern in bester Qualität. Und das Beste, Sie haben die Möglichkeit, durch Eigenleistung beim Innenausbau die Finanzierungsquote zu verbessern und dadurch eine Finanzierung gestalten zu können, die es Ihnen in Zukunft leicht macht, anstatt Miete in Ihr eigenes Haus zu investieren. Fragen Sie uns einfach nach unseren Möglichkeiten im Finanzierungsbereich.
Das Haus wird in Niedrigenergiebauweise KfW 40 gebaut.
Die niedrigen Heizkosten inklusive Warmwasseraufbereitung erreichen wir durch eine Wärmepumpe in Verbindung mit einer kontrollierten Be-und Entlüftungsanlage mit Wärmerückgewinnung.
Sämtliche für den Innenausbau erforderlichen Materialien in Handwerkerqualität sind im Preis enthalten.
Sie können den Innenausbau teilweise selbst durchführen und dadurch zusätzliches Eigenkapital bilden oder die Arbeiten stufenweise bis zur einzugsfertigen Erstellung bei uns beauftragen.
Die zum Einsatz kommenden Materialien beziehen wir ausschließlich von namhaften Herstellern.
Thomas Heitz 0160 7038141 oder thomas.heitz@streif.de
Das Haus wird in Niedrigenergiebauweise KfW 40 gebaut.
Die niedrigen Heizkosten inklusive Warmwasseraufbereitung erreichen wir durch eine Wärmepumpe in Verbindung mit einer kontrollierten Be-und Entlüftungsanlage mit Wärmerückgewinnung.
Sämtliche für den Innenausbau erforderlichen Materialien in Handwerkerqualität sind im Preis enthalten.
Sie können den Innenausbau teilweise selbst durchführen und dadurch zusätzliches Eigenkapital bilden oder die Arbeiten stufenweise bis zur einzugsfertigen Erstellung bei uns beauftragen.
Die zum Einsatz kommenden Materialien beziehen wir ausschließlich von namhaften Herstellern.
Thomas Heitz 0160 7038141 oder thomas.heitz@streif.de
Sonstige Informationen
Modernstes Heizsystem !
Heizen, Lüften und Warmwasser mit einem System
- STREIF-Luft-Luft-Wärmepumpen-Technologe (Basissystem), mit bis zu 85 Prozent Wärmerückgewinnung
- Integrierte Be- und Entlüftungsanlage
- Separate Trinkwasserwärmepumpe mit 300 L Warmwasserspeicher
- G4-Frischluftfilter zur Reduzierung von Staub und Pollen
Vorteile:
- Keine störenden Heizkörper
- Keine fossilen Brennstoffe wie Öl und Gas
- Kein Gasanschluss, kein Öl- oder Pelletslager
- Keine Erdbohrung
Thomas Heitz 0160 7038141 oder thomas.heitz@streif.de
Heizen, Lüften und Warmwasser mit einem System
- STREIF-Luft-Luft-Wärmepumpen-Technologe (Basissystem), mit bis zu 85 Prozent Wärmerückgewinnung
- Integrierte Be- und Entlüftungsanlage
- Separate Trinkwasserwärmepumpe mit 300 L Warmwasserspeicher
- G4-Frischluftfilter zur Reduzierung von Staub und Pollen
Vorteile:
- Keine störenden Heizkörper
- Keine fossilen Brennstoffe wie Öl und Gas
- Kein Gasanschluss, kein Öl- oder Pelletslager
- Keine Erdbohrung
Thomas Heitz 0160 7038141 oder thomas.heitz@streif.de
Karte wird geladen...
Objektstandort
66793 Saarwellingen
Lage & Infrastruktur
Objektstandort
66793 Saarwellingen
Das Grundstück liegt in sehr guter Wohnlage von Saarwellingen.
Das Haus ist auf einem realen Baugrundstück geplant oder auf einem Grundstück in einer Planungsphase. Das Grundstück erwerben Sie über die beauftragte Immobilienmaklerin direkt vom Eigentümer. Der Preis des Grundstücks ist im Angebotspreis bereits eingerechnet.
Bitte haben Sie Verständnis dafür, dass wir ohne ein persönliches Gespräch keine Grundstücksdaten weiterleiten können.
Gern sind wir bei der Wahl Ihres Traumgrundstückes behilflich!
Natürlich können wir ihren Haustraum auch auf einem anderen Grundstück realisieren, lassen Sie sich dazu in einem unverbindlichen Gespräch zu Ihrem Bauvorhaben beraten.
Thomas Heitz 0160 7038141 oder thomas.heitz@streif.de
Das Haus ist auf einem realen Baugrundstück geplant oder auf einem Grundstück in einer Planungsphase. Das Grundstück erwerben Sie über die beauftragte Immobilienmaklerin direkt vom Eigentümer. Der Preis des Grundstücks ist im Angebotspreis bereits eingerechnet.
Bitte haben Sie Verständnis dafür, dass wir ohne ein persönliches Gespräch keine Grundstücksdaten weiterleiten können.
Gern sind wir bei der Wahl Ihres Traumgrundstückes behilflich!
Natürlich können wir ihren Haustraum auch auf einem anderen Grundstück realisieren, lassen Sie sich dazu in einem unverbindlichen Gespräch zu Ihrem Bauvorhaben beraten.
Thomas Heitz 0160 7038141 oder thomas.heitz@streif.de
Kontaktanfrage senden
Über den Anbieter
STREIF Haus GmbH
Josef-Streif-Straße 1
54595 Weinsheim
Kontakt
| Telefon | +49 681 70947955 |
| Mobil | +49 160 7038141 |
| Website | www.streif.de |
Ansprechpartner/in
Herr Thomas Heitz
Weitere Angebote des Anbieters
8
Streif Effizienzhaus KFW40 +
Haus
63755 Aschaffenburg
Willkommen in Ihrem zukünftigen Traumhaus in Aschaffenburg, einem modernen Doppelhaus, das nach Ihren individuellen Wünschen projektiert wurde. Mit einer großzügigen Wohnfläche von 165 m² und einem durchdachten ...
645.000 €
Kaufpreis
165 m²
Wohnfläche
4
Zimmer
9
Streif Effizienzhaus in bester Lage
Haus
63584 Gründau
Anfragen bitte telefonisch: Frank Kress 017661370032 Objektbeschreibung Das FAMILY in der bietet eine clevere Grundrissgestaltung. Ein fast 40 m² großer, offen gestalteter Wohn-/Ess- und Kochbereich bildet den ...
590.000 €
Kaufpreis
156 m²
Wohnfläche
4
Zimmer
20
Sehr schöne Stadtvilla in erstklassiger Lage von St. ...
Haus
66386 St. Ingbert
Viel Platz und von Licht erfüllte Räume bietet diese traumhafte Stadtvilla. Im Erdgeschoss bildet der offen gestaltete Wohn-, Ess- und Kochbereich mit 49 m² das Herzstück des Hauses. Der gesamte Wohnbereich wird von ...
608.000 €
Kaufpreis
186 m²
Wohnfläche
5
Zimmer
30
STREIF baut Euer perfektes Zuhause
Haus
76707 Hambrücken
Das zweieinhalbgeschossige Mehrfamilienhaus mit zwei Wohnungen überzeugt mit einer klassisch eleganten Architektur mit Satteldach und zwei behaglichen Terrassen. Der Hausentwurf kann mit Stahlbalkonen an der ...
1.293.936 €
Kaufpreis
358 m²
Wohnfläche
18
Zimmer
30
STREIF baut Euer perfektes Zuhause
Haus
76707 Hambrücken
Das zweigeschossige Mehrfamilienhaus mit zwei Wohnungen überzeugt mit einer klassisch eleganten Architektur mit Walmdach und zwei behaglichen Terrassen. Der Hausentwurf kann mit Stahlbalkonen an der Gartenseite ...
1.139.664 €
Kaufpreis
301 m²
Wohnfläche
18
Zimmer