Mehr Platz geht nicht: Top-Objekt für Handwerker mit XXL-Garage und flexiblem Raumangebot
389.000 €
Kaufpreis
154,5 m²
Wohnfläche
6
Zimmer
immobilien.de Nr.: 9361118
Objektnummer: FALC-KeAl-77556
Dateien
Kaufpreis
| Kaufpreis | 389.000 € |
| Maklerprovision | 3,57% inkl. MwSt vom not. Kaufpreis |
Wohnfläche, Grundstück & Bausubstanz
| Wohnfläche | 154,5 m² |
| Gesamtfläche | 234,5 m² |
| Grundstücksfläche | 547 m² |
| Zimmer | 6 |
| Baujahr | 1970 |
| Verfügbar ab | Sofort |
| Zustand | Teil Vollrenovierungsbed |
Energie
| Energieausweistyp | Bedarfsausweis |
| Ausstellungsdatum | 02. 12. 2025 |
| Gültig bis | 01.12.2035 |
| Energieeffizienzklasse | G |
| Endenergiebedarf | 248.9 |
| Heizungsart | Zentralheizung |
| Wesentlicher Energieträger | Gas |
| Energieträger/Befeuerung | Gas |
Beschreibung der Immobilie
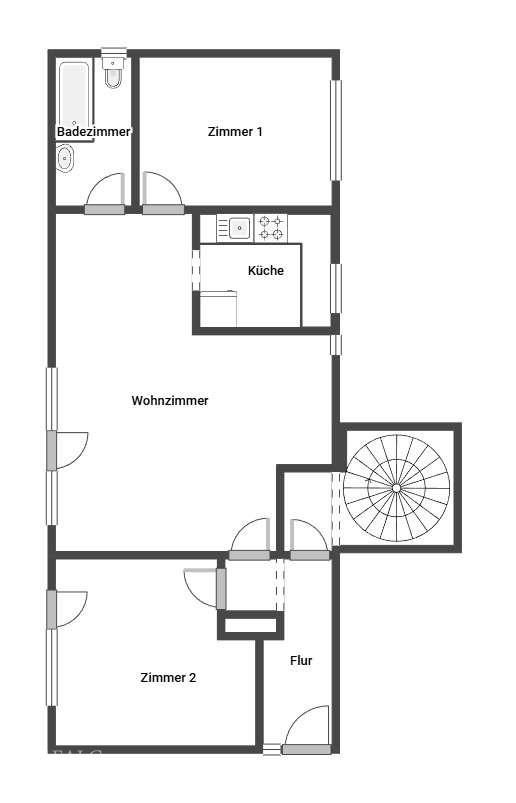
Dieses vielseitige Wohn- und Nutzobjekt erstreckt sich über zwei Etagen und bietet eine großzügige sowie flexible Raumaufteilung, die sich ideal für Familien, Mehrgenerationenwohnen oder die Kombination aus Wohnen und Arbeiten eignet. Im Untergeschoss stehen zwei gut geschnittene Zimmer, eine separate Küche sowie ein Badezimmer zur Verfügung. Dieser Bereich kann hervorragend als Einliegerwohnung, Büro- oder Praxisfläche, Gästebereich oder Jugendzimmer genutzt werden. Zusätzlich bieten große Neben- und Lagerräume vielfältige Nutzungsmöglichkeiten – von Hobby und Werkstatt bis hin zu gewerblichen Aktivitäten. Vom Untergeschoss aus besteht zudem ein direkter Zugang zur großflächigen, teils überdachten Terrasse über der Garage.
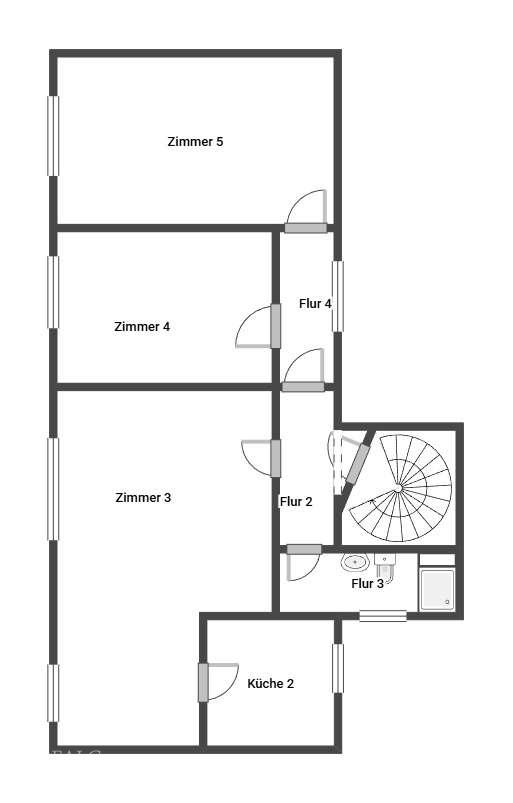
Im Obergeschoss befinden sich drei weitere Zimmer, die sich flexibel als Wohn-, Schlaf- oder Arbeitsräume einrichten lassen. Der helle, großzügige Wohnbereich überzeugt durch seine weiten Fensterflächen und eine freundliche Raumwirkung. Die Terrasse über der Garage umfasst ca. 80 m², bietet einen schönen Ausblick und schafft zusätzlichen Wohnraum im Freien – ideal für entspannte Stunden, Grillabende oder gesellige Runden mit Familie und Freunden.
Besonders attraktiv ist die Immobilie für Handwerker, Kleinunternehmer oder Personen mit hohem Lagerbedarf, da die große Doppelgarage mit einer Fläche von ca. 70 m² optimale Voraussetzungen für umfangreiche Lagermöglichkeiten bietet. Vor der Garage befindet sich zudem ein weitläufiger Hofbereich mit rund 140 m², der zusätzliche Abstell-, Park- und Rangiermöglichkeiten schafft. Damit bietet das Objekt ideale Bedingungen, um Wohnen und Arbeiten clever miteinander zu verbinden.
Die Immobilie verfügt darüber hinaus über praktische Ausstattungsdetails wie eine charmante Wendeltreppe mit Glasbaustein-Lichteinfall, zwei voll ausgestattete Badezimmer, separate Küchen auf beiden Ebenen und großzügige Nutzflächen im Untergeschoss. Ausreichende Parkmöglichkeiten, einschließlich der großen Doppelgarage, runden das Gesamtpaket ab.
Das Objekt befindet sich in einem ruhigen, gewachsenen Wohngebiet mit sehr guter Anbindung an Einkaufsmöglichkeiten, Schulen und öffentliche Verkehrsmittel. Damit vereint diese Immobilie ein komfortables Wohnumfeld mit idealen Voraussetzungen für individuelle Wohn- und Nutzungskonzepte – besonders für Personen, die Wohnen und berufliche Anforderungen an einem Ort verbinden möchten.
Im Obergeschoss befinden sich drei weitere Zimmer, die sich flexibel als Wohn-, Schlaf- oder Arbeitsräume einrichten lassen. Der helle, großzügige Wohnbereich überzeugt durch seine weiten Fensterflächen und eine freundliche Raumwirkung. Die Terrasse über der Garage umfasst ca. 80 m², bietet einen schönen Ausblick und schafft zusätzlichen Wohnraum im Freien – ideal für entspannte Stunden, Grillabende oder gesellige Runden mit Familie und Freunden.
Besonders attraktiv ist die Immobilie für Handwerker, Kleinunternehmer oder Personen mit hohem Lagerbedarf, da die große Doppelgarage mit einer Fläche von ca. 70 m² optimale Voraussetzungen für umfangreiche Lagermöglichkeiten bietet. Vor der Garage befindet sich zudem ein weitläufiger Hofbereich mit rund 140 m², der zusätzliche Abstell-, Park- und Rangiermöglichkeiten schafft. Damit bietet das Objekt ideale Bedingungen, um Wohnen und Arbeiten clever miteinander zu verbinden.
Die Immobilie verfügt darüber hinaus über praktische Ausstattungsdetails wie eine charmante Wendeltreppe mit Glasbaustein-Lichteinfall, zwei voll ausgestattete Badezimmer, separate Küchen auf beiden Ebenen und großzügige Nutzflächen im Untergeschoss. Ausreichende Parkmöglichkeiten, einschließlich der großen Doppelgarage, runden das Gesamtpaket ab.
Das Objekt befindet sich in einem ruhigen, gewachsenen Wohngebiet mit sehr guter Anbindung an Einkaufsmöglichkeiten, Schulen und öffentliche Verkehrsmittel. Damit vereint diese Immobilie ein komfortables Wohnumfeld mit idealen Voraussetzungen für individuelle Wohn- und Nutzungskonzepte – besonders für Personen, die Wohnen und berufliche Anforderungen an einem Ort verbinden möchten.
Ausstattungsmerkmale
| Anzahl der Etagen im Haus | 2 |
| Küche | Einbauküche |
| Bad | 2 |
| Boden | Fliesen, Parkett |
| Balkone | 1 |
| Terrassen | 1 |
| Keller |
Die Immobilie erstreckt sich über zwei Etagen und überzeugt durch eine solide sowie durchdachte Ausstattung, die sowohl Wohnkomfort als auch praktische Nutzungsmöglichkeiten bietet. Im Erdgeschoss ist ein hochwertiger Parkettboden verlegt, der dem Wohnbereich eine warme und elegante Atmosphäre verleiht. Im Obergeschoss wurde strapazierfähiges Laminat eingesetzt, das sich durch seine Pflegeleichtigkeit und moderne Optik auszeichnet. Beide Etagen verfügen über jeweils eine eigene Küche, was die Nutzung als Mehrgenerationenhaus oder die Kombination von Wohnen und Arbeiten besonders flexibel gestaltet.
Die Wärmeversorgung erfolgt über eine erneuerte Gasheizung, die für eine effiziente und zuverlässige Beheizung des gesamten Hauses sorgt. Zusätzlich bietet das Untergeschoss zwei geräumige Kellerräume, die ideal als Lagerflächen, Werkstattbereiche oder als Platz für Hobby und Vorrat genutzt werden können.
Die Bäder sind entsprechend ihrer Lage funktional aufgeteilt: Im Erdgeschoss befindet sich ein Badezimmer mit Badewanne, das sich ideal für entspannte Wellnessmomente eignet, während im Obergeschoss ein weiteres Badezimmer mit Dusche zur Verfügung steht – perfekt für eine schnelle und komfortable tägliche Nutzung.
Vor dem Haus stehen mehrere Stellplätze bereit, die eine bequeme Parklösung für Bewohner und Besucher bieten. Ein besonderes Highlight ist die großzügige, geflieste Doppelgarage mit einer Fläche von etwa 83 m². Sie ist mit Heizung und Wasseranschluss ausgestattet und bietet damit optimale Bedingungen für Handwerker, Fahrzeugliebhaber oder Personen mit großem Lager- oder Arbeitsflächenbedarf. Ein direkter Zugang vom Garagenbereich in den Keller erhöht den Nutzungskomfort zusätzlich und sorgt für kurze Wege im Alltag.
Die angrenzende Hoffläche von rund 140 m² schafft weiteren Raum für Parken, Rangieren oder zusätzliche Außenaktivitäten. Über der Garage befindet sich zudem eine großzügige Terrasse, die als erweiterter Außenwohnraum dient und vielfältige Nutzungsmöglichkeiten – von Entspannung bis hin zu geselligen Abenden – bietet.
Die Wärmeversorgung erfolgt über eine erneuerte Gasheizung, die für eine effiziente und zuverlässige Beheizung des gesamten Hauses sorgt. Zusätzlich bietet das Untergeschoss zwei geräumige Kellerräume, die ideal als Lagerflächen, Werkstattbereiche oder als Platz für Hobby und Vorrat genutzt werden können.
Die Bäder sind entsprechend ihrer Lage funktional aufgeteilt: Im Erdgeschoss befindet sich ein Badezimmer mit Badewanne, das sich ideal für entspannte Wellnessmomente eignet, während im Obergeschoss ein weiteres Badezimmer mit Dusche zur Verfügung steht – perfekt für eine schnelle und komfortable tägliche Nutzung.
Vor dem Haus stehen mehrere Stellplätze bereit, die eine bequeme Parklösung für Bewohner und Besucher bieten. Ein besonderes Highlight ist die großzügige, geflieste Doppelgarage mit einer Fläche von etwa 83 m². Sie ist mit Heizung und Wasseranschluss ausgestattet und bietet damit optimale Bedingungen für Handwerker, Fahrzeugliebhaber oder Personen mit großem Lager- oder Arbeitsflächenbedarf. Ein direkter Zugang vom Garagenbereich in den Keller erhöht den Nutzungskomfort zusätzlich und sorgt für kurze Wege im Alltag.
Die angrenzende Hoffläche von rund 140 m² schafft weiteren Raum für Parken, Rangieren oder zusätzliche Außenaktivitäten. Über der Garage befindet sich zudem eine großzügige Terrasse, die als erweiterter Außenwohnraum dient und vielfältige Nutzungsmöglichkeiten – von Entspannung bis hin zu geselligen Abenden – bietet.
Sonstige Informationen
Sofern Sie auf eine ruhige und doch zentrale Lage, eine beeindruckende Aufteilung und ein gehobenes Umfeld Wert legen, ist dieses Objekt das ideale Angebot für Sie.
Wir bieten Ihnen eine kostenlose 24/7 Hotline (0800-6460646) an. Bei Interesse fordern Sie einfach das Exposé mit einigen weiteren Inhalten an. Dieses wird Ihnen automatisch i. d. R. kurzfristig zugesandt. Bei einem Besichtigungswunsch antworten Sie am besten per Mail auf das Exposé, wir melden uns dann umgehend mit Terminvorschlägen bei Ihnen. Bitte geben Sie immer Ihre vollständigen Kontaktdaten an.
Die Objektbeschreibung beruht ganz oder zum Teil auf Angaben des Eigentümers. Für die Richtigkeit oder Vollständigkeit übernehmen wir keine Gewähr.
Sie wollen Ihre Immobilie ebenfalls professionell vermarkten, rufen Sie uns an, wir stehen Ihnen von Mo. bis So. von 6.00 - 22.00 h persönlich zur Seite, über 200.000 aktive Interessenten warten bereits auf Sie.
Die Inhalte und Bilder dieses Exposés könnten mithilfe von künstlicher Intelligenz (KI) erstellt worden sein.
Wir bieten Ihnen eine kostenlose 24/7 Hotline (0800-6460646) an. Bei Interesse fordern Sie einfach das Exposé mit einigen weiteren Inhalten an. Dieses wird Ihnen automatisch i. d. R. kurzfristig zugesandt. Bei einem Besichtigungswunsch antworten Sie am besten per Mail auf das Exposé, wir melden uns dann umgehend mit Terminvorschlägen bei Ihnen. Bitte geben Sie immer Ihre vollständigen Kontaktdaten an.
Die Objektbeschreibung beruht ganz oder zum Teil auf Angaben des Eigentümers. Für die Richtigkeit oder Vollständigkeit übernehmen wir keine Gewähr.
Sie wollen Ihre Immobilie ebenfalls professionell vermarkten, rufen Sie uns an, wir stehen Ihnen von Mo. bis So. von 6.00 - 22.00 h persönlich zur Seite, über 200.000 aktive Interessenten warten bereits auf Sie.
Die Inhalte und Bilder dieses Exposés könnten mithilfe von künstlicher Intelligenz (KI) erstellt worden sein.
Karte wird geladen...
Objektstandort
53773 Hennef (Sieg)
- Nordrhein-Westfalen
Lage & Infrastruktur
Objektstandort
53773 Hennef (Sieg)
- Nordrhein-Westfalen
Die Immobilie befindet sich in einer ruhigen und dennoch zentralen Lage in Hennef (Sieg). Die Anbindung an den öffentlichen Nahverkehr ist hervorragend, mit mehreren Bushaltestellen in unmittelbarer Nähe, darunter die Haltestelle "Helenenstift" in nur wenigen Gehminuten erreichbar. Der Hennef Bahnhof ist ebenfalls in der Nähe und bietet eine schnelle Verbindung in die umliegenden Städte.
Für den täglichen Bedarf stehen Ihnen mehrere Supermärkte wie Nahkauf und Av Kalinka in fußläufiger Entfernung zur Verfügung. Auch gastronomische Angebote sind reichlich vorhanden, darunter das beliebte Restaurant Primo's und die Bar "Sunset Bar" für entspannte Abende.
Sportbegeisterte kommen hier ebenfalls auf ihre Kosten. Fitnessstudios wie "Körperformen" und diverse Sporthallen sind leicht erreichbar. Zudem bietet die Umgebung zahlreiche Parks, die zu Spaziergängen und Freizeitaktivitäten einladen.
Die Autobahnauffahrt ist in wenigen Minuten erreichbar, was eine schnelle Anbindung an das überregionale Straßennetz ermöglicht. Für Elektrofahrzeuge stehen mehrere E-Ladepunkte in der Nähe zur Verfügung.
Die medizinische Versorgung ist durch nahegelegene Arztpraxen und Kliniken wie das Helios Klinikum Siegburg gewährleistet. Auch für Familien mit Kindern ist die Lage ideal, da es in der Umgebung zahlreiche Spielplätze und Schulen gibt.
Insgesamt bietet die Lage eine perfekte Kombination aus Ruhe und hervorragender Infrastruktur, die sowohl Singles als auch Familien anspricht.
Für den täglichen Bedarf stehen Ihnen mehrere Supermärkte wie Nahkauf und Av Kalinka in fußläufiger Entfernung zur Verfügung. Auch gastronomische Angebote sind reichlich vorhanden, darunter das beliebte Restaurant Primo's und die Bar "Sunset Bar" für entspannte Abende.
Sportbegeisterte kommen hier ebenfalls auf ihre Kosten. Fitnessstudios wie "Körperformen" und diverse Sporthallen sind leicht erreichbar. Zudem bietet die Umgebung zahlreiche Parks, die zu Spaziergängen und Freizeitaktivitäten einladen.
Die Autobahnauffahrt ist in wenigen Minuten erreichbar, was eine schnelle Anbindung an das überregionale Straßennetz ermöglicht. Für Elektrofahrzeuge stehen mehrere E-Ladepunkte in der Nähe zur Verfügung.
Die medizinische Versorgung ist durch nahegelegene Arztpraxen und Kliniken wie das Helios Klinikum Siegburg gewährleistet. Auch für Familien mit Kindern ist die Lage ideal, da es in der Umgebung zahlreiche Spielplätze und Schulen gibt.
Insgesamt bietet die Lage eine perfekte Kombination aus Ruhe und hervorragender Infrastruktur, die sowohl Singles als auch Familien anspricht.
Kontaktanfrage senden
Über den Anbieter
FALC Immobilien GmbH & Co. KG
Humperdickstr. 3
53773 Hennef (Sieg)
Kontakt
| Telefon | 0800 6460646 |
| Mobil | +49 151 26864088 |
| Fax | +49 2242 9010319 |
| Website | www.falcimmo.de |
Ansprechpartner/in
Herr Kevin Alheit