Kapitalanlage - Gesichert in die Zukunft blicken!
225.200 €
Kaufpreis
76 m²
Wohnfläche
3
Zimmer
immobilien.de Nr.: 9351560
Objektnummer: 202179
Preise & Kosten
| Kaufpreis | 225.200 € |
| Nebenkosten | keine Angabe |
| Maklerprovision | 3,57 % (inkl. MwSt.) |
Größe & Zustand
| Wohnfläche | 76 m² |
| Zimmer | 3 |
| Baujahr | 1985 |
| Verfügbar ab | nach Absprache |
| Zustand | Gepflegt |
Energie
| Energieausweistyp | Verbrauch |
| Ausstellungsdatum | 22. 05. 2018 |
| Baujahr (laut Energieausweis) | 1985 |
| Energieeffizienzklasse | E |
| Energieverbrauchkennwert | 154 kWh/(m²*a) |
| Heizungsart | Zentralheizung |
| Wesentlicher Energieträger | Gas |
| Energieträger/Befeuerung | Gas |
Objektbeschreibung
Sie als Investor streben danach Ihr Kapital rentabel und wertbeständig anzulegen... wir haben die perfekte Immobilie Sie.
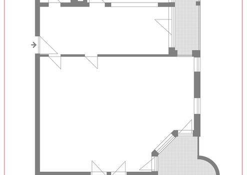
Das Apartment im Erdgeschoss einer sehr gepflegten Wohnanlage punktet mit ausreichend Wohnraum auf ca. 76 qm und einer überdachten Terrasse.
Die Wohnung offeriert ein innenliegendes Duschbad und ein lichtdurchflutetes, überaus großzügig konzipiertes Zimmer mit Zugang zur Terrasse. Ein trendiges, offenes Wohnkonzept bietet vor allem für junge Leute ein ideales Ambiente... hier beginnt ein neuer Lebensabschnitt.
Ein Wasch- und Trockenraum, ein Kellerabteil sowie Einstellplätze für Fahrräder runden das interessante Angebot ab.
Der Kinderspielplatz wird von der gesamten Hausgemeinschaft genutzt.
Ein zuverlässiger Hausmeisterservice nimmt den Bewohnern zeitraubende Pflegeaufgaben ab und trägt Sorge, dass sich die gesamte Wohneinheit stets sehr gepflegt zeigt.
Ein zukunftsorientierter Investor kann diese Offerte nicht ausschlagen!
Weitere Angebote unter www.GARANT-IMMO.de
Das Apartment im Erdgeschoss einer sehr gepflegten Wohnanlage punktet mit ausreichend Wohnraum auf ca. 76 qm und einer überdachten Terrasse.
Die Wohnung offeriert ein innenliegendes Duschbad und ein lichtdurchflutetes, überaus großzügig konzipiertes Zimmer mit Zugang zur Terrasse. Ein trendiges, offenes Wohnkonzept bietet vor allem für junge Leute ein ideales Ambiente... hier beginnt ein neuer Lebensabschnitt.
Ein Wasch- und Trockenraum, ein Kellerabteil sowie Einstellplätze für Fahrräder runden das interessante Angebot ab.
Der Kinderspielplatz wird von der gesamten Hausgemeinschaft genutzt.
Ein zuverlässiger Hausmeisterservice nimmt den Bewohnern zeitraubende Pflegeaufgaben ab und trägt Sorge, dass sich die gesamte Wohneinheit stets sehr gepflegt zeigt.
Ein zukunftsorientierter Investor kann diese Offerte nicht ausschlagen!
Weitere Angebote unter www.GARANT-IMMO.de
Ausstattung
| Anzahl der Etagen im Haus | 5 |
| Bad | 1 |
| Boden | Fliesen |
| Terrassen | 1 |
| Fahrstuhl |
* WC (innenliegend)
* Dusche (innenliegend)
* Fliesen
* Süd-Ost-Terrasse
* Kellerabteil
* Kinderspielplatz
* ebenerdiger Zugang, barrierearm
* Hausmeisterservice
* Dusche (innenliegend)
* Fliesen
* Süd-Ost-Terrasse
* Kellerabteil
* Kinderspielplatz
* ebenerdiger Zugang, barrierearm
* Hausmeisterservice
Sonstige Informationen
Die Immobilie wurde bis vor kurzem gewerblich genutzt. Eine Bestätigung für eine Nutzung sowohl als Wohnraum wie auch als Büro liegt vor.
Lage des Objektes
Hinter Ihrem Investmentobjekt fließt die Rednitz, an der es sich nicht nur im Sommer entspannen lässt. Trotz der idyllischen Lage ist Ihre Immobilie zentral gelegen.
Die nächste Bushaltestelle sowie ein Discounter liegen in direkter Nachbarschaft. Weitere Einkaufmöglichkeiten, kulinarische und kulturelle Angebote bietet das FORUM Stein, das Sie zu Fuß in wenigen Minuten erreichen. Ärzte, Kindergarten und Schulen sind vor Ort.
Die nahe gelegene B14 sorgt für eine zügige Verbindung nach Nürnberg, Fürth und Schwabach.
Die nächste Bushaltestelle sowie ein Discounter liegen in direkter Nachbarschaft. Weitere Einkaufmöglichkeiten, kulinarische und kulturelle Angebote bietet das FORUM Stein, das Sie zu Fuß in wenigen Minuten erreichen. Ärzte, Kindergarten und Schulen sind vor Ort.
Die nahe gelegene B14 sorgt für eine zügige Verbindung nach Nürnberg, Fürth und Schwabach.
