Drei-Parteien-Haus als lukrative Kapitalanlage oder zur Eigennutzung
780.000 €
Kaufpreis
240 m²
Wohnfläche
9
Zimmer
immobilien.de Nr.: 9351545
Objektnummer: 359519
Preise & Kosten
| Kaufpreis | 780.000 € |
| Nebenkosten | keine Angabe |
| Maklerprovision | 3,57 % (inkl. MwSt.) |
Größe & Zustand
| Wohnfläche | 240 m² |
| Grundstücksfläche | 814 m² |
| Zimmer | 9 |
| Baujahr | 1980 |
| Verfügbar ab | nach Vereinbarung |
| Zustand | Teil Vollrenovierungsbed |
Energie
| Energieausweistyp | Verbrauch |
| Ausstellungsdatum | 20. 11. 2025 |
| Baujahr (laut Energieausweis) | 1980 |
| Energieeffizienzklasse | B |
| Energieverbrauchkennwert | 60.56 kWh/(m²*a) |
| Heizungsart | Zentralheizung |
| Wesentlicher Energieträger | Öl |
| Energieträger/Befeuerung | Öl |
Objektbeschreibung
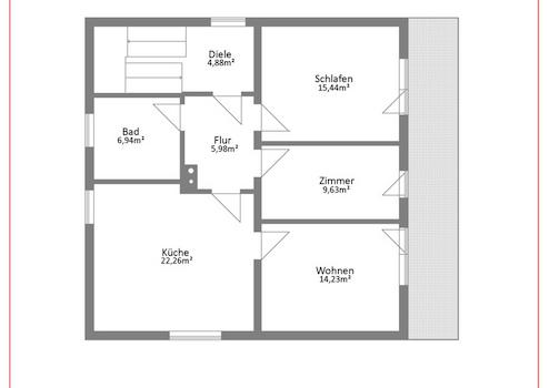
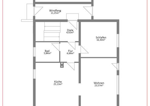
Zum Verkauf steht ein in 1980 in massiver Ziegelbauweise errichtetes Dreifamilienhaus im Ortsteil Leeder der Gemeinde Fuchstal (Landkreis Landsberg am Lech). Das Gebäude erstreckt sich über drei Geschosse und beherbergt drei eigenständige Wohnungen ideal als Kapitalanlage, Mehrgenerationenhaus oder Kombination aus Eigennutzung und Vermietung.
Wohnung 1 (Erdgeschoss): Diese Einheit bedarf einer umfassenden Renovierung, um heutigen Wohnstandards gerecht zu werden. Der Zustand ist solide, jedoch technisch und gestalterisch modernisierungsbedürftig, eine attraktive Gelegenheit für handwerklich Begabte oder Investoren, die eine Wertsteigerung schaffen möchten.
Wohnung 2 (1. Obergeschoss): In gutem, bereits renovierten Zustand, gut vermietet.
Wohnung 3 (2. Obergeschoss): Ebenfalls in gutem, renovierten Zustand, gut vermietet.
Die vermieteten Wohnungen bieten eine stabile, sofortige Einnahmequelle, die dritte Wohnung (Erdgeschoss) könnte nach Sanierung selbst genutzt oder ebenfalls vermietet werden.
Weitere Angebote unter www.GARANT-IMMO.de
Wohnung 1 (Erdgeschoss): Diese Einheit bedarf einer umfassenden Renovierung, um heutigen Wohnstandards gerecht zu werden. Der Zustand ist solide, jedoch technisch und gestalterisch modernisierungsbedürftig, eine attraktive Gelegenheit für handwerklich Begabte oder Investoren, die eine Wertsteigerung schaffen möchten.
Wohnung 2 (1. Obergeschoss): In gutem, bereits renovierten Zustand, gut vermietet.
Wohnung 3 (2. Obergeschoss): Ebenfalls in gutem, renovierten Zustand, gut vermietet.
Die vermieteten Wohnungen bieten eine stabile, sofortige Einnahmequelle, die dritte Wohnung (Erdgeschoss) könnte nach Sanierung selbst genutzt oder ebenfalls vermietet werden.
Weitere Angebote unter www.GARANT-IMMO.de
Ausstattung
| Anzahl der Etagen im Haus | 3 |
| Bad | 4 |
| Boden | Fliesen, Laminat |
| Balkone | 1 |
* drei separate Wohneinheiten
* großer Garten mit gemauertem Unterstand
* Terrasse und Balkon mit Südausrichtung
* großer Garten mit gemauertem Unterstand
* Terrasse und Balkon mit Südausrichtung
Sonstige Informationen
Dank der Aufteilung in drei separate Wohneinheiten ergeben sich vielfältige Nutzungsszenarien:
Kapitalanlage: Zwei vermietete Wohnungen generieren sofortige Mieteinnahmen. Die Erdgeschosswohnung kann saniert und ebenfalls vermietet werden dadurch steigt der Rendite-Spielraum deutlich.
Mehrgenerationenwohnen: Ideal für Familien, die zusammen, aber getrennt wohnen möchten etwa Eltern im Erdgeschoss, Kinder oben.
Eigennutzung & Teilvermietung: Sie könnten im Erdgeschoss selbst wohnen und die oberen beiden Einheiten vermieten so kombinieren Sie Lebensqualität mit Kapitalrendite.
Kapitalanlage: Zwei vermietete Wohnungen generieren sofortige Mieteinnahmen. Die Erdgeschosswohnung kann saniert und ebenfalls vermietet werden dadurch steigt der Rendite-Spielraum deutlich.
Mehrgenerationenwohnen: Ideal für Familien, die zusammen, aber getrennt wohnen möchten etwa Eltern im Erdgeschoss, Kinder oben.
Eigennutzung & Teilvermietung: Sie könnten im Erdgeschoss selbst wohnen und die oberen beiden Einheiten vermieten so kombinieren Sie Lebensqualität mit Kapitalrendite.
Lage des Objektes
Das Haus befindet sich zentral im Ortsteil Leeder der Gemeinde Fuchstal. Leeder ist ein idyllischer, dörflich geprägter Marktort und Teil der Verwaltungsgemeinschaft Fuchstal. Leeder zeichnet sich durch eine ruhige, historische Ortsstruktur aus. Die Gemeinde Fuchstal legt großen Wert auf Innenentwicklung und Nachverdichtung, was in aktuellen Bebauungsplänen dokumentiert ist. Entlang der Haupt- und Nebenstraßen finden sich gepflegte Grünflächen, alte Baumbestände und charakteristische Bauten.
Die Staatsstraße 2055 verbindet Leeder mit der nahegelegenen B17 und die A96 die eine schnelle Verbindung zu umliegenden Städten bietet. Bis Landsberg am Lech sind es ca. 10 Autominuten, bis München ca. 45 Minuten.
Leeder wird auch durch die im Landsberg am Lech liegende Schongau-Bahn (Fuchstalbahn) erschlossen, was Pendlern und Bewohnern den Zugang zu regionalem Bahnverkehr ermöglicht. Weitere Informationen zu Lage und Infrastruktur finden Sie unter: www.fuchstal.de
Die Staatsstraße 2055 verbindet Leeder mit der nahegelegenen B17 und die A96 die eine schnelle Verbindung zu umliegenden Städten bietet. Bis Landsberg am Lech sind es ca. 10 Autominuten, bis München ca. 45 Minuten.
Leeder wird auch durch die im Landsberg am Lech liegende Schongau-Bahn (Fuchstalbahn) erschlossen, was Pendlern und Bewohnern den Zugang zu regionalem Bahnverkehr ermöglicht. Weitere Informationen zu Lage und Infrastruktur finden Sie unter: www.fuchstal.de
Anbieter kontaktieren
Kontakt
| Telefon | 08191/97 02 20 |
| Fax | 08191/97 02 220 |
| Website | www.garant-immo.de |
