Attraktives Grundstück mit der Planung für ein modernes Wohn- und Geschäftshaus
0 €
Kaufpreis
3.500 m²
Wohnfläche
immobilien.de Nr.: 9343677
Objektnummer: FALC-MaKw-77658
Preise & Kosten
| Kaufpreis | Auf Anfrage |
| Nebenkosten | keine Angabe |
Größe & Zustand
| Wohnfläche | 3.500 m² |
| Grundstücksfläche | 4.146 m² |
| Verfügbar ab | keine Angabe |
Objektbeschreibung
Willkommen in der Marina Graf Bismarck - Werden Sie Teil eines modernen Stadtquartiers unter dem Motto: Leben und Arbeiten zwischen Wasser und Wald.
Dieses durchdachte Immobilienprojekt bietet Investoren eine attraktive Gelegenheit für ein zukunftssicheres Engagement. Verkauft wird ein Grundstück mit Marineblick mit der Bauplanung der renommierten Architekten von CHAPMAN TAYLOR inklusive Baugenehmigung.
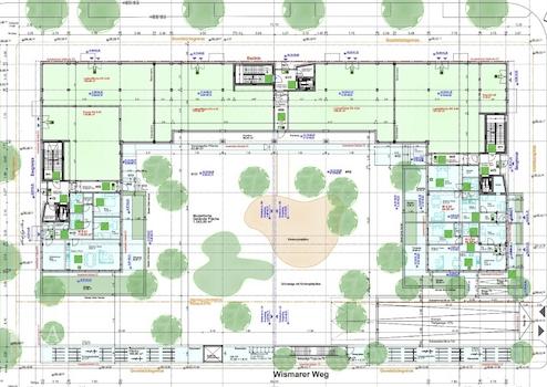
Hier sollen 56 Wohnungen, 4 Gewerbeflächen und 91 Tiefgaragenstellplätze auf vier Stockwerken mit einer Bruttogeschossfläche von ca. 10.500 m² entstehen. Die Vision des Mehrgenerationenwohnens wird durch eine durchdachte Planung begünstigt, die sowohl Penthouses als auch familienfreundliche Wohnungen umfasst. Ebenso sorgen Praxis- und Ladenflächen im Erdgeschoss für eine ideale Nahversorgung.
Die geplante Verwendung von natürlichen Materialien verspricht der zukünftigen Immobilie ein zeitgemäßes und ansprechendes Erscheinungsbild. Die beabsichtigte Kombination warmer Farbtöne mit modernen architektonischen Elementen soll ein harmonisches Gesamtbild schaffen. Der Entwurf für großzügige Balkone bietet nicht nur zusätzlichen Privatraum, sondern erweitert auch die Wohnfläche nach außen.
Durch große Fensterfronten und Dachterrassen soll nicht nur viel Tageslicht in die zukünftigen Wohnbereiche dringen, sondern auch eine ungestörte Aussicht auf die Marina und den Rhein-Herne-Kanal geboten werden.
Ein geplanter Garten sowie ein Kinderspielplatz im Innenhof unterstreichen den wohnlichen Charakter des Projekts und bieten zusätzliche Lebensqualität. Die Planung einer Tiefgarage soll für bequeme und sichere Parkmöglichkeiten sorgen.
Investoren profitieren von der Lage des Grundstücks und den möglichen baulichen Maßnahmen, die auf Langlebigkeit und Nachhaltigkeit abzielen. Dieses Grundstück bietet viel ungenutztes Potenzial und verspricht einen soliden Wertzuwachs durch die Realisierung der geplanten Entwicklungen und die Nachfrage nach qualitativ hochwertigem Wohnraum in begehrter Lage.
Die Genehmigungsplanung samt Brandschutzkonzept liegt bereits vor und kann gern eingesehen werden.
Dieses durchdachte Immobilienprojekt bietet Investoren eine attraktive Gelegenheit für ein zukunftssicheres Engagement. Verkauft wird ein Grundstück mit Marineblick mit der Bauplanung der renommierten Architekten von CHAPMAN TAYLOR inklusive Baugenehmigung.
Hier sollen 56 Wohnungen, 4 Gewerbeflächen und 91 Tiefgaragenstellplätze auf vier Stockwerken mit einer Bruttogeschossfläche von ca. 10.500 m² entstehen. Die Vision des Mehrgenerationenwohnens wird durch eine durchdachte Planung begünstigt, die sowohl Penthouses als auch familienfreundliche Wohnungen umfasst. Ebenso sorgen Praxis- und Ladenflächen im Erdgeschoss für eine ideale Nahversorgung.
Die geplante Verwendung von natürlichen Materialien verspricht der zukünftigen Immobilie ein zeitgemäßes und ansprechendes Erscheinungsbild. Die beabsichtigte Kombination warmer Farbtöne mit modernen architektonischen Elementen soll ein harmonisches Gesamtbild schaffen. Der Entwurf für großzügige Balkone bietet nicht nur zusätzlichen Privatraum, sondern erweitert auch die Wohnfläche nach außen.
Durch große Fensterfronten und Dachterrassen soll nicht nur viel Tageslicht in die zukünftigen Wohnbereiche dringen, sondern auch eine ungestörte Aussicht auf die Marina und den Rhein-Herne-Kanal geboten werden.
Ein geplanter Garten sowie ein Kinderspielplatz im Innenhof unterstreichen den wohnlichen Charakter des Projekts und bieten zusätzliche Lebensqualität. Die Planung einer Tiefgarage soll für bequeme und sichere Parkmöglichkeiten sorgen.
Investoren profitieren von der Lage des Grundstücks und den möglichen baulichen Maßnahmen, die auf Langlebigkeit und Nachhaltigkeit abzielen. Dieses Grundstück bietet viel ungenutztes Potenzial und verspricht einen soliden Wertzuwachs durch die Realisierung der geplanten Entwicklungen und die Nachfrage nach qualitativ hochwertigem Wohnraum in begehrter Lage.
Die Genehmigungsplanung samt Brandschutzkonzept liegt bereits vor und kann gern eingesehen werden.
Ausstattung
| Anzahl der Etagen im Haus | 4 |
| Balkone | 1 |
| Garten | |
| Fahrstuhl | |
| Barrierefrei | |
| Keller |
Folgende Planung liegt bereits beim Bauamt zur Baugenehmigung vor:
• U-förmiger Baukörper
• 3 Hauseingänge
• 56 Wohnungen
• 4 Praxis- und Ladenflächen im Erdgeschoss
• 4 Stockwerke
• 91 Tiefgaragenstellplätze
• ca. 10.500 m² BGF
• ca. 950 m² Gewerbefläche
• ca. 3.500 m² Wohnfläche
• Spielplatz im Innenhof
Das Projekt steht für:
• Leben und Arbeiten zwischen Wasser und Wald
• Mehrgenerationenwohnen
• gehobene Wohnatmosphäre
• ideale Lage mit Ausblick
• U-förmiger Baukörper
• 3 Hauseingänge
• 56 Wohnungen
• 4 Praxis- und Ladenflächen im Erdgeschoss
• 4 Stockwerke
• 91 Tiefgaragenstellplätze
• ca. 10.500 m² BGF
• ca. 950 m² Gewerbefläche
• ca. 3.500 m² Wohnfläche
• Spielplatz im Innenhof
Das Projekt steht für:
• Leben und Arbeiten zwischen Wasser und Wald
• Mehrgenerationenwohnen
• gehobene Wohnatmosphäre
• ideale Lage mit Ausblick
Sonstige Informationen
Bei Interesse kontaktieren Sie uns gern per Mail oder rufen Sie uns an.
Sie erhalten nach Ihrer Anfrage über das Portal das Exposé per E-Mail. Achten Sie dabei bitte auch auf Ihren Spam-Ordner.
Sie erhalten auf Wunsch sämtliche Genehmigungsunterlagen in einer separaten E-Mail.
Die Objektbeschreibung beruht ganz oder zum Teil auf Angaben des Eigentümers. Für die Richtigkeit oder Vollständigkeit übernehmen wir keine Gewähr. Die dargestellten Visualisierungen entsprechen nicht zwingend dem neusten Stand der Genehmigungsplanung und dienen nur der Veranschaulichung.
Sie wollen Ihre Immobilie ebenfalls professionell vermarkten, rufen Sie uns an!
FALC Immobilien
Margarita Kwiring
Mail: remscheid@falcimmo.de
Büro: 02191-5657459
Mobil: 0157- 37853 449
Sie erhalten nach Ihrer Anfrage über das Portal das Exposé per E-Mail. Achten Sie dabei bitte auch auf Ihren Spam-Ordner.
Sie erhalten auf Wunsch sämtliche Genehmigungsunterlagen in einer separaten E-Mail.
Die Objektbeschreibung beruht ganz oder zum Teil auf Angaben des Eigentümers. Für die Richtigkeit oder Vollständigkeit übernehmen wir keine Gewähr. Die dargestellten Visualisierungen entsprechen nicht zwingend dem neusten Stand der Genehmigungsplanung und dienen nur der Veranschaulichung.
Sie wollen Ihre Immobilie ebenfalls professionell vermarkten, rufen Sie uns an!
FALC Immobilien
Margarita Kwiring
Mail: remscheid@falcimmo.de
Büro: 02191-5657459
Mobil: 0157- 37853 449
Lage des Objektes
Dieses Grundstück in Gelsenkirchen überzeugt durch ihre zentrale Lage in einem gefragten neu konzipierten Stadtbereich mit zahlreichen Standortvorteilen. Die exzellente Infrastruktur ermöglicht vielfältige Nutzungsmöglichkeiten.
Bushaltestellen und eine Bahnstation sind fußläufig erreichbar, die Autobahnauffahrt und der Flughafen Düsseldorf sorgen für direkte Verbindungen zu städtischen und überregionalen Zielen – ideal für Pendler und Investoren.
Der Stadtbezirk bietet enormes Potenzial dank geplanter Infrastrukturprojekte. Er kombiniert urbanes Leben mit grünen Erholungsflächen und zeigt anhaltende Bautätigkeit, wie neue Gewerbe- und Wohnprojekte beweisen.
Die nahe gelegene ZOOM Erlebniswelt bietet Freizeitmöglichkeiten. Eine ausgezeichnete Grundversorgung mit Supermärkten und Ärzten fördert die Attraktivität für diverse Mieter.
Die stabile Immobiliennachfrage wird durch die niedrige Leerstandsquote und die familienfreundliche Umgebung unterstrichen. Diese Lage bietet exzellente Investitionschancen und positive Entwicklungsperspektiven
Bushaltestellen und eine Bahnstation sind fußläufig erreichbar, die Autobahnauffahrt und der Flughafen Düsseldorf sorgen für direkte Verbindungen zu städtischen und überregionalen Zielen – ideal für Pendler und Investoren.
Der Stadtbezirk bietet enormes Potenzial dank geplanter Infrastrukturprojekte. Er kombiniert urbanes Leben mit grünen Erholungsflächen und zeigt anhaltende Bautätigkeit, wie neue Gewerbe- und Wohnprojekte beweisen.
Die nahe gelegene ZOOM Erlebniswelt bietet Freizeitmöglichkeiten. Eine ausgezeichnete Grundversorgung mit Supermärkten und Ärzten fördert die Attraktivität für diverse Mieter.
Die stabile Immobiliennachfrage wird durch die niedrige Leerstandsquote und die familienfreundliche Umgebung unterstrichen. Diese Lage bietet exzellente Investitionschancen und positive Entwicklungsperspektiven
Anbieter kontaktieren
Anbieter
FALC Immobilien GmbH & Co. KG
Humperdickstr. 3
53773 Hennef (Sieg)
Kontakt
| Telefon | +49 2191 5657459 |
| Mobil | +49 157 37853449 |
| Fax | +49 2242 9010319 |
| Website | www.falcimmo.de |
