Super helle Wohnung, praktischer Grundriss - ideal zur Eigennutzung oder Kapitalanlage, Moritzplatz
109.000 €
Kaufpreis
56 m²
Wohnfläche
2
Zimmer
immobilien.de Nr.: 9315150
Objektnummer: 7336
Preise & Kosten
| Kaufpreis | 109.000 € |
| Nebenkosten | keine Angabe |
| Hausgeld | 157 € |
| Maklerprovision | 3.57 % |
Größe & Zustand
| Wohnfläche | 56 m² |
| Zimmer | 2 |
| Baujahr | 1970 |
| Verfügbar ab | Absprache |
| Zustand | Gepflegt |
Energie
| Energieausweistyp | Bedarfsausweis |
| Gültig bis | 2029-02-14 |
| Endenergiebedarf | 157.6 |
| Heizungsart | Etagenheizung |
| Energieträger/Befeuerung | Gas |
Objektbeschreibung
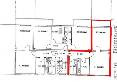
Diese Eigentumswohnung ist gelegen in der 3. Etage eines gepflegten Mehrfamilienhauses, ist sehr schön hell durch Fensterfronten auf beiden Seiten und verfügt über einen praktischen Grundriss. Von der geräumigen Diele aus erreichen Sie das Bad, die Küche und das Wohnzimmer. Von hier aus gelangen Sie in das Schlafzimmer, das über einen Balkon mit schöner Weitsicht verfügt.
Zur Wohnung gehört natürlich auch ein Kellerraum. Auf dem Hof befinden sich Fahrradabstellplätze.
Diese Wohnung in vermietungssicherer Größe und Ausstattung ist sowohl für den Eigennutzer, als auch für den Kapitalanleger geeignet.
Besonderheit: Die Wohnung kann komplett eingerichtet übergeben werden!
Das Hausgeld wird ab ab Jan. 2016 auf monatlich 191,00 EUR inkl. Rücklage angepasst. Heiz- und Warmwasserkosten sind vom Mieter direkt an den selbst ausgesuchten Versorger zu zahlen.
Zur Wohnung gehört natürlich auch ein Kellerraum. Auf dem Hof befinden sich Fahrradabstellplätze.
Diese Wohnung in vermietungssicherer Größe und Ausstattung ist sowohl für den Eigennutzer, als auch für den Kapitalanleger geeignet.
Besonderheit: Die Wohnung kann komplett eingerichtet übergeben werden!
Das Hausgeld wird ab ab Jan. 2016 auf monatlich 191,00 EUR inkl. Rücklage angepasst. Heiz- und Warmwasserkosten sind vom Mieter direkt an den selbst ausgesuchten Versorger zu zahlen.
Ausstattung
| Inserat befindet sich im Stockwerk | 3 |
| Küche | Einbauküche |
| Boden | Fliesen |
| Balkone | 1 |
| Keller |
* modernes Bad mit Wanne, weiße Boden- und Wandfliesen, großes Fenster
* Küche mit Einbauküche
* Schlafzimmer mit 7-türigem, deckenhohen Kleiderschrank
* Fenster mit Doppelverglasung und weißen Kunststoffrahmen
* Wände mit Rauhfaser, weiß gestrichen
* Gasetagenheizung mit Warmwasserversorgung
* Böden: heller Fliesenboden, aktuell mit PVC-Belag
* Balkon/Loggia mit Markise in S-W-Lage mit Weitblick
* 1 Kellerraum
* Fahrradabstellplatz auf dem Hof
* in 2025 Erneuerung der kompletten Klingel-Sprechanlage (Siedle)
* Küche mit Einbauküche
* Schlafzimmer mit 7-türigem, deckenhohen Kleiderschrank
* Fenster mit Doppelverglasung und weißen Kunststoffrahmen
* Wände mit Rauhfaser, weiß gestrichen
* Gasetagenheizung mit Warmwasserversorgung
* Böden: heller Fliesenboden, aktuell mit PVC-Belag
* Balkon/Loggia mit Markise in S-W-Lage mit Weitblick
* 1 Kellerraum
* Fahrradabstellplatz auf dem Hof
* in 2025 Erneuerung der kompletten Klingel-Sprechanlage (Siedle)
Sonstige Informationen
Interesse? Dann freuen wir uns auf Ihre Anfrage über dieses Kontaktformular, damit wir einen Besichtigungstermin abstimmen können.
Unsere Exposés stellen kein vertragliches Angebot dar. Die hier gemachten Angaben beruhen auf Angaben des Eigentümers bzw. der Objektdokumentationen. Wir übernehmen für Abweichungen und Fehlangaben keine Gewähr.
Sie beabsichtigen, Ihre Immobilie zu vermieten oder zu verkaufen? Profitieren Sie von unserer jahrzehntelangen Erfahrung und unseren vorgemerkten Interessenten. Gerne erstellen wir für Sie ein professionelles Vermarktungskonzept, auf Wunsch auch DISKRETIONSVERMARKTUNG!
Sie haben Fragen - sprechen Sie uns gerne an!
Energieausweis: Bedarfsausweis gültig von: 15.02.2019
Endenergiebedarf Wärme: 157.6 kWh/(m²a) inklusive Warmwasser
Wesentliche Energieträger Heizung: Befeuerung Gas
Baujahr: 1956
Unsere Exposés stellen kein vertragliches Angebot dar. Die hier gemachten Angaben beruhen auf Angaben des Eigentümers bzw. der Objektdokumentationen. Wir übernehmen für Abweichungen und Fehlangaben keine Gewähr.
Sie beabsichtigen, Ihre Immobilie zu vermieten oder zu verkaufen? Profitieren Sie von unserer jahrzehntelangen Erfahrung und unseren vorgemerkten Interessenten. Gerne erstellen wir für Sie ein professionelles Vermarktungskonzept, auf Wunsch auch DISKRETIONSVERMARKTUNG!
Sie haben Fragen - sprechen Sie uns gerne an!
Energieausweis: Bedarfsausweis gültig von: 15.02.2019
Endenergiebedarf Wärme: 157.6 kWh/(m²a) inklusive Warmwasser
Wesentliche Energieträger Heizung: Befeuerung Gas
Baujahr: 1956
Lage des Objektes
Die Wohnung ist gelegen am gepflegten Moritzplatz. Von hier aus erledigen Sie fußläufig Ihre Einkäufe und die Straßenbahnhaltestelle liegt in Sichtweite auf der Hülser Str. Der berühmte Mies von der Rohe Business Park liegt nur wenige Fußminuten entfernt.
