Historisches Schulhaus mit einmaligen Flair, modernem Wohnkomfort plus große Werkhalle zum Verkauf!
895.000 €
Kaufpreis
384 m²
Wohnfläche
9
Zimmer
immobilien.de Nr.: 9314912
Objektnummer: 897157
Preise & Kosten
| Kaufpreis | 895.000 € |
| Nebenkosten | keine Angabe |
| Maklerprovision | 2,38 % (inkl. MwSt.) |
Größe & Zustand
| Wohnfläche | 384 m² |
| Grundstücksfläche | 2.600 m² |
| Zimmer | 9 |
| Baujahr | 1925 |
| Verfügbar ab | nach Absprache |
| Zustand | Modernisiert |
Energie
| Energieausweistyp | Bedarfsausweis |
| Ausstellungsdatum | 31. 10. 2025 |
| Baujahr (laut Energieausweis) | 1924 |
| Energieeffizienzklasse | D |
| Endenergiebedarf | 112.65 |
| Heizungsart | Zentralheizung |
| Wesentlicher Energieträger | Pellets |
| Energieträger/Befeuerung | Pellet |
Objektbeschreibung
Dieses außergewöhnliche Anwesen vereint historischen Charme mit modernem Wohnkomfort.
Das ehemalige Schulhaus von Kammern aus dem Jahr ca. 1925 wurde von den jetzigen Eigentümern im Jahr 2004 erworben und seither mit viel Liebe zum Detail saniert, renoviert und modernisiert.
Durch umfangreiche Um- und Ausbauarbeiten, insbesondere im Jahr 2008, entstand aus dem geschichtsträchtigen Gebäude ein stilvolles Zuhause mit großzügigem Raumangebot und zeitgemäßer Technik.
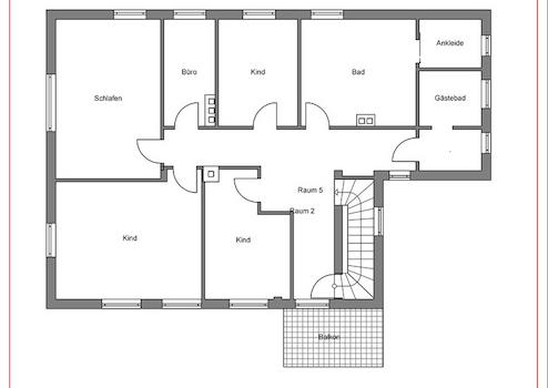
Das Haus bietet auf Erdgeschoss und Obergeschoss eine großzügige Wohnfläche von rund 277 qm.
Im Dachgeschoss, dessen Ausbau 2018 begonnen wurde, konnten nochmals ca. 100 Wohnfläche dazu gewonnen werden, ideal als zusätzlicher Wohn- oder Gästebereich.
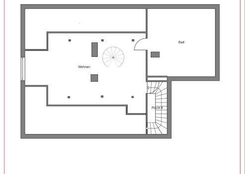
Das Gebäude ist zudem teil unterkellert, indem sich die komplette Heiztechnik, der große Pelletspeicher und ein Lagerraum befindet.
Ein Highlight dieser besonderen Immobilie ist die ehemalige Schulaula, die nun als Vorzimmer dient und mit ihren historischen Rundbögen ein absoluter Hingucker ist. Auch der herrlich offene Wohnbereich mit dem feudalen Salonzimmer, Wohnzimmer und anliegenden Küchen-/Essbereich ist ein wahres Wohnjuwel.
Ein Wintergarten und die ca. 45 qm große Sonnen-Terrasse ergänzen perfekt die großzügigen Wohnflächen.
Das weitläufige Grundstück mit ca. 2.600 qm bietet vielfältige Nutzungsmöglichkeiten ob für Gartenliebhaber, Tierhaltung, Freizeitgestaltung oder künftige Anbauprojekte.
Dieses außergewöhnliche Objekt bietet eine einzigartige Kombination aus Geschichte, Großzügigkeit, zeitgemäßen Wohnfeeling und moderner Energieeffizienz.
Ideal für Familien, Freiberufler oder Liebhaber historischer Gebäude, die Wert auf Raum, Atmosphäre und Nachhaltigkeit legen.
Überzeugen Sie sich am besten selbst von dieser besonderen Gelegenheit und vereinbaren Sie noch heute einen Besichtigungstermin mit uns. Wir freuen uns auf Ihren Anruf bzw. Anfrage.
Ansprechpartnerin Frau Danner A. 0871/43 04 17-15
Weitere Angebote unter www.GARANT-IMMO.de
Das ehemalige Schulhaus von Kammern aus dem Jahr ca. 1925 wurde von den jetzigen Eigentümern im Jahr 2004 erworben und seither mit viel Liebe zum Detail saniert, renoviert und modernisiert.
Durch umfangreiche Um- und Ausbauarbeiten, insbesondere im Jahr 2008, entstand aus dem geschichtsträchtigen Gebäude ein stilvolles Zuhause mit großzügigem Raumangebot und zeitgemäßer Technik.
Das Haus bietet auf Erdgeschoss und Obergeschoss eine großzügige Wohnfläche von rund 277 qm.
Im Dachgeschoss, dessen Ausbau 2018 begonnen wurde, konnten nochmals ca. 100 Wohnfläche dazu gewonnen werden, ideal als zusätzlicher Wohn- oder Gästebereich.
Das Gebäude ist zudem teil unterkellert, indem sich die komplette Heiztechnik, der große Pelletspeicher und ein Lagerraum befindet.
Ein Highlight dieser besonderen Immobilie ist die ehemalige Schulaula, die nun als Vorzimmer dient und mit ihren historischen Rundbögen ein absoluter Hingucker ist. Auch der herrlich offene Wohnbereich mit dem feudalen Salonzimmer, Wohnzimmer und anliegenden Küchen-/Essbereich ist ein wahres Wohnjuwel.
Ein Wintergarten und die ca. 45 qm große Sonnen-Terrasse ergänzen perfekt die großzügigen Wohnflächen.
Das weitläufige Grundstück mit ca. 2.600 qm bietet vielfältige Nutzungsmöglichkeiten ob für Gartenliebhaber, Tierhaltung, Freizeitgestaltung oder künftige Anbauprojekte.
Dieses außergewöhnliche Objekt bietet eine einzigartige Kombination aus Geschichte, Großzügigkeit, zeitgemäßen Wohnfeeling und moderner Energieeffizienz.
Ideal für Familien, Freiberufler oder Liebhaber historischer Gebäude, die Wert auf Raum, Atmosphäre und Nachhaltigkeit legen.
Überzeugen Sie sich am besten selbst von dieser besonderen Gelegenheit und vereinbaren Sie noch heute einen Besichtigungstermin mit uns. Wir freuen uns auf Ihren Anruf bzw. Anfrage.
Ansprechpartnerin Frau Danner A. 0871/43 04 17-15
Weitere Angebote unter www.GARANT-IMMO.de
Ausstattung
| Anzahl der Etagen im Haus | 3 |
| Küche | Einbauküche |
| Bad | 3 |
| Boden | Fliesen, Parkett, Dielen |
| Balkone | 1 |
Ausstattung & Modernisierungen, Sanierungen und Renovierungen:
1998 Austausch der Heizungsrohre mit Kupferrohre
2005 Alle Fenster wurden ausgetauscht in doppelverglaste Kunststofffenster
2006 Austausch der alten Wasserrohre in Edelstahlrohre.
2007 Sanierung der Waschküche und Badezimmer im Erdgeschoss sowie das Gäste-WC
2008 wurde bei der umfassenden Sanierung weitere zahlreiche Maßnahmen umgesetzt, die sowohl den Wohnkomfort als auch die Energieeffizienz deutlich steigern:
- Einbau von Wandheizungen im Wohnzimmer, Esszimmer im
Erdgeschoss sowie in beiden Kinderzimmern
- Renovierung der Original Fichten Holzbodendielen im Wohnzimmer
und Salonzimmer
- Renovierung und Verstärkung der original Holztreppe zum
Obergeschoss
- Teilweise Abhängung von den Wohndecken
- Erneuerung des Dachstuhls und Dach neu eingedeckt
- Komplett Sanierung und Neugestaltung des Hauptbadezimmer im Obergeschoss
- Neue Pelletsheizung (Inbetriebnahme 2008)
- Zwei Warmwasser-Pufferspeicher à 750 Liter
- Pelletslager mit ca. 10.000 T Fassungsvermögen
- Thermische Solaranlage zur Brauchwassererwärmung und
Heizungsunterstützung
- Vollwärmeschutz rund um das komplette Haus für optimale
Energieeffizienz
- Erneuerung der gesamten Elektrik im Haus
- 2010 Verlegung eines neuen Eichenparkettbodens in den
Kinderzimmern
- 2010 Sanierung des Kinderbad inkl. neuer Fußbodenheizung im
Obergeschoss
- 2018 Verlegung eines massiv Eiche Schlossdielenboden in der
Aula mit Fußbodenheizung
- 2024 Neuer Außenfassaden Anstrich
- 2025 Verlegung eines neuen Vinylboden im Küchen-/Essbereich
- 2025 Einbau einer Klimaanlage in beiden Kinderzimmern
- 2025 Neue Sicherheits-Eingangstür mit Print-Schlüsselsystem
Die Auswahl von hochwertigen Materialien und stilvolle Details bei allen Modern-/Renovierungs- und Sanierungsmaßnahmen sorgt dafür das Gebäude den historischen Charakter bewahrt hat und zudem eine hervorragende Energiebilanz aufweist und ein behagliches Wohnklima zu jeder Jahreszeit gegeben ist.
1998 Austausch der Heizungsrohre mit Kupferrohre
2005 Alle Fenster wurden ausgetauscht in doppelverglaste Kunststofffenster
2006 Austausch der alten Wasserrohre in Edelstahlrohre.
2007 Sanierung der Waschküche und Badezimmer im Erdgeschoss sowie das Gäste-WC
2008 wurde bei der umfassenden Sanierung weitere zahlreiche Maßnahmen umgesetzt, die sowohl den Wohnkomfort als auch die Energieeffizienz deutlich steigern:
- Einbau von Wandheizungen im Wohnzimmer, Esszimmer im
Erdgeschoss sowie in beiden Kinderzimmern
- Renovierung der Original Fichten Holzbodendielen im Wohnzimmer
und Salonzimmer
- Renovierung und Verstärkung der original Holztreppe zum
Obergeschoss
- Teilweise Abhängung von den Wohndecken
- Erneuerung des Dachstuhls und Dach neu eingedeckt
- Komplett Sanierung und Neugestaltung des Hauptbadezimmer im Obergeschoss
- Neue Pelletsheizung (Inbetriebnahme 2008)
- Zwei Warmwasser-Pufferspeicher à 750 Liter
- Pelletslager mit ca. 10.000 T Fassungsvermögen
- Thermische Solaranlage zur Brauchwassererwärmung und
Heizungsunterstützung
- Vollwärmeschutz rund um das komplette Haus für optimale
Energieeffizienz
- Erneuerung der gesamten Elektrik im Haus
- 2010 Verlegung eines neuen Eichenparkettbodens in den
Kinderzimmern
- 2010 Sanierung des Kinderbad inkl. neuer Fußbodenheizung im
Obergeschoss
- 2018 Verlegung eines massiv Eiche Schlossdielenboden in der
Aula mit Fußbodenheizung
- 2024 Neuer Außenfassaden Anstrich
- 2025 Verlegung eines neuen Vinylboden im Küchen-/Essbereich
- 2025 Einbau einer Klimaanlage in beiden Kinderzimmern
- 2025 Neue Sicherheits-Eingangstür mit Print-Schlüsselsystem
Die Auswahl von hochwertigen Materialien und stilvolle Details bei allen Modern-/Renovierungs- und Sanierungsmaßnahmen sorgt dafür das Gebäude den historischen Charakter bewahrt hat und zudem eine hervorragende Energiebilanz aufweist und ein behagliches Wohnklima zu jeder Jahreszeit gegeben ist.
Sonstige Informationen
Das Anwesen mit seinem weitläufigen Grundstück von ca. 2.600 qm hat noch einiges an Nebengebäuden und Außenanlagen zu bieten:
- Installation einer neuen effizienten PV Anlage
(14 Pik) mit 13 kWh Stromspeicher, (nicht im Verkaufspreis
mit enthalten)
- Zwei Gartenzisterne a 4.500 l (2008 und 2019)
- Zwei Carports (2010 erstellt)
- Moderne große Werkshalle (ca. 7m x 15m) mit Hebebühne
(2020 erbaut)
- Einbau eines elektrischen Hoftors (2020)
- Installation von einer Wallbox in der Garage (2021)
- Großer, gepflasterter Innenhof
- Gemauerte Garage integriert im gemauertem Gartenhaus
- Große Scheune
- Kleine Scheune
- Zwei kleine Gartenhäuser
- Garage im Aufgangsbereich
- Drei Holzlager
Energieausweis wird gerade neu erstellt und liegt dann bei der Besichtigung vor.
- Installation einer neuen effizienten PV Anlage
(14 Pik) mit 13 kWh Stromspeicher, (nicht im Verkaufspreis
mit enthalten)
- Zwei Gartenzisterne a 4.500 l (2008 und 2019)
- Zwei Carports (2010 erstellt)
- Moderne große Werkshalle (ca. 7m x 15m) mit Hebebühne
(2020 erbaut)
- Einbau eines elektrischen Hoftors (2020)
- Installation von einer Wallbox in der Garage (2021)
- Großer, gepflasterter Innenhof
- Gemauerte Garage integriert im gemauertem Gartenhaus
- Große Scheune
- Kleine Scheune
- Zwei kleine Gartenhäuser
- Garage im Aufgangsbereich
- Drei Holzlager
Energieausweis wird gerade neu erstellt und liegt dann bei der Besichtigung vor.
Lage des Objektes
Dieses großzügige Anwesen liegt mitten in der kleinen, beschaulichen Gemeinde Kammern, ein Ortsteil von Landau an der Isar, ca. 5 km entfernt von der Stadt Landau.
Die ruhige, naturnahe Lage in Kammern verbindet ländliches Wohnen mit guter Erreichbarkeit zur Stadt Landau sowie den umliegenden Gemeinden.
Neben Kindergärten und Kitas gibt es in Landau sämtliche Schulen (von der Grundschule bis zum Gymnasium), Sportzentren, viele Einkaufsmöglichkeiten, Ärzte und ein Klinikum.
Landau hat eine sehr gute Verkehrsanbindung. Die A92 ist nur ca. 3 km vom Stadtzentrum entfernt. So erreicht man über die A92 in ca. 50 Minuten den Münchner Flughafen und in ca. 75 Minuten die Münchner City. Die B20 führt nach Tschechien und nach Salzburg, die Bahnlinie nach München oder nach Passau.
Die ruhige, naturnahe Lage in Kammern verbindet ländliches Wohnen mit guter Erreichbarkeit zur Stadt Landau sowie den umliegenden Gemeinden.
Neben Kindergärten und Kitas gibt es in Landau sämtliche Schulen (von der Grundschule bis zum Gymnasium), Sportzentren, viele Einkaufsmöglichkeiten, Ärzte und ein Klinikum.
Landau hat eine sehr gute Verkehrsanbindung. Die A92 ist nur ca. 3 km vom Stadtzentrum entfernt. So erreicht man über die A92 in ca. 50 Minuten den Münchner Flughafen und in ca. 75 Minuten die Münchner City. Die B20 führt nach Tschechien und nach Salzburg, die Bahnlinie nach München oder nach Passau.
Anbieter kontaktieren
Kontakt
| Telefon | 0871/43 04 17-0 |
| Fax | 0871/43 04 17-20 |
| Website | www.garant-immo.de |
