NEUbau - Erstbezug - 2 Zi Wohnkomfort im EG – plus degressive AfA als Steuervorteil
489.000 €
Kaufpreis
45 m²
Wohnfläche
2
Zimmer
immobilien.de Nr.: 9305321
Objektnummer: 7002
Preise & Kosten
| Kaufpreis | 489.000 € |
| Nebenkosten | keine Angabe |
| Stellplatz Tiefgarage Kaufpreis | 35.000 € |
Größe & Zustand
| Wohnfläche | 45 m² |
| Zimmer | 2 |
| Baujahr | 2025 |
| Verfügbar ab | Sofort |
| Zustand | Erstbezug |
Energie
| Energieausweistyp | Bedarfsausweis |
| Ausstellungsdatum | 14. 10. 2024 |
| Gültig bis | 14.10.2034 |
| Energieeffizienzklasse | A_PLUS |
| Endenergiebedarf | 17.6 |
| Wesentlicher Energieträger | Strom |
| Energieträger/Befeuerung | Elektro |
Objektbeschreibung
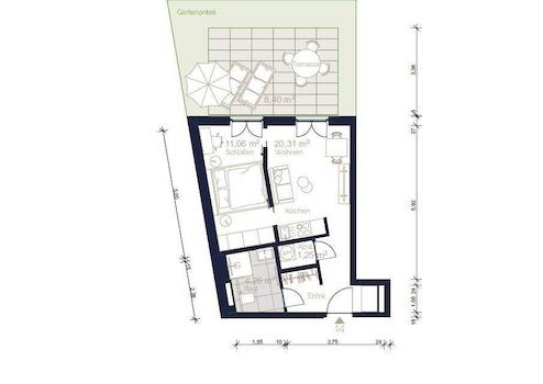
Diese wunderschöne 2-Zimmer-Erdgeschosswohnung im linken Stadthaus von Henry’s Court vereint modernes Design, hochwertige Ausstattung und naturnahes Wohnen in einer der begehrtesten Lagen Münchens. Auf rund 45 m² Wohnfläche bietet sie ein perfekt abgestimmtes Raumkonzept und einen direkten Zugang zu Ihrer privaten Terrasse mit Gartenanteil – ideal, um den Alltag hinter sich zu lassen und die Ruhe zu genießen.
Der helle Wohn- und Essbereich mit integrierter Küche schafft eine offene, freundliche Atmosphäre und öffnet sich über große Fensterflächen zur sonnigen Terrasse hin. Hier entstehen lichtdurchflutete Räume, die Innen- und Außenbereich harmonisch miteinander verbinden.
Das ruhig gelegene Schlafzimmer bietet Rückzug und Komfort, während das hochwertig ausgestattete Badezimmer mit bodengleicher Dusche, Armaturen von Hansgrohe und Sanitärobjekten von VIGOUR überzeugt. Ein Abstellraum und ein Waschmaschinenanschluss ergänzen den durchdachten Grundriss.
Die Ausstattung erfüllt höchste Ansprüche: Eichenparkettböden, Fußbodenheizung, dreifach verglaste Fenster, eine moderne Smart-Home-Steuerung und elektrische Rollläden sorgen für ein stilvolles und komfortables Wohngefühl.
Das innovative Energiekonzept von Henry’s Court setzt auf Zukunft und Nachhaltigkeit: Eine effiziente Luftwärmepumpe in Kombination mit einer Photovoltaikanlage mit Energierückgewinnungssystem sorgt für umweltfreundliche Wärme- und Stromversorgung – ressourcenschonend und kosteneffizient zugleich.
In der ruhigen Lage von München-Solln, direkt am Siemenspark, genießen Sie das Beste aus zwei Welten: die Natur direkt vor der Tür und die Münchner Innenstadt in nur wenigen Minuten erreichbar.
Diese Wohnung bietet urbanes Wohnen mit dem Luxus der eigenen Gartenidylle – ein Zuhause, das Lebensqualität, Stil und Nachhaltigkeit perfekt vereint.
Der helle Wohn- und Essbereich mit integrierter Küche schafft eine offene, freundliche Atmosphäre und öffnet sich über große Fensterflächen zur sonnigen Terrasse hin. Hier entstehen lichtdurchflutete Räume, die Innen- und Außenbereich harmonisch miteinander verbinden.
Das ruhig gelegene Schlafzimmer bietet Rückzug und Komfort, während das hochwertig ausgestattete Badezimmer mit bodengleicher Dusche, Armaturen von Hansgrohe und Sanitärobjekten von VIGOUR überzeugt. Ein Abstellraum und ein Waschmaschinenanschluss ergänzen den durchdachten Grundriss.
Die Ausstattung erfüllt höchste Ansprüche: Eichenparkettböden, Fußbodenheizung, dreifach verglaste Fenster, eine moderne Smart-Home-Steuerung und elektrische Rollläden sorgen für ein stilvolles und komfortables Wohngefühl.
Das innovative Energiekonzept von Henry’s Court setzt auf Zukunft und Nachhaltigkeit: Eine effiziente Luftwärmepumpe in Kombination mit einer Photovoltaikanlage mit Energierückgewinnungssystem sorgt für umweltfreundliche Wärme- und Stromversorgung – ressourcenschonend und kosteneffizient zugleich.
In der ruhigen Lage von München-Solln, direkt am Siemenspark, genießen Sie das Beste aus zwei Welten: die Natur direkt vor der Tür und die Münchner Innenstadt in nur wenigen Minuten erreichbar.
Diese Wohnung bietet urbanes Wohnen mit dem Luxus der eigenen Gartenidylle – ein Zuhause, das Lebensqualität, Stil und Nachhaltigkeit perfekt vereint.
Ausstattung
| Inserat befindet sich im Stockwerk | 0 |
| Küche | Einbauküche |
| Bad | 1 |
| Bad | Dusche |
| Boden | Parkett |
| Balkone | 1 |
| Fahrstuhl | |
| Barrierefrei | |
| Keller |
* Energieeffiziente Bauweise im KfW-55-Standard
* Nachhaltiges Energiekonzept mit Luftwärmepumpe, Photovoltaikanlage und Energierückgewinnung
* Eichenparkettböden, gebürstet und matt geölt
* Fußbodenheizung in allen Räumen
* Bodentiefe, dreifach verglaste Fenster mit elektrischem Sonnenschutz
* Smart-Home-System zur komfortablen Steuerung von Licht, Heizung und Beschattung
* Design-Badezimmer mit bodengleicher Dusche und hochwertigen Armaturen von Hansgrohe
* Sanitärobjekte von VIGOUR, Serie Philippe Starck
* große Südost-Terrasse mit privatem Garten
* Abstellraum mit Waschmaschinenanschluss
* Video-Gegensprechanlage und elektrische Schließanlage
* Tiefgaragenstellplatz mit Vorbereitung für E-Ladestation
* Fahrrad- und Kinderwagenraum im Haus
* Ruhige Lage am Siemenspark mit direktem Zugang zu Grünflächen
* uvm.
* Nachhaltiges Energiekonzept mit Luftwärmepumpe, Photovoltaikanlage und Energierückgewinnung
* Eichenparkettböden, gebürstet und matt geölt
* Fußbodenheizung in allen Räumen
* Bodentiefe, dreifach verglaste Fenster mit elektrischem Sonnenschutz
* Smart-Home-System zur komfortablen Steuerung von Licht, Heizung und Beschattung
* Design-Badezimmer mit bodengleicher Dusche und hochwertigen Armaturen von Hansgrohe
* Sanitärobjekte von VIGOUR, Serie Philippe Starck
* große Südost-Terrasse mit privatem Garten
* Abstellraum mit Waschmaschinenanschluss
* Video-Gegensprechanlage und elektrische Schließanlage
* Tiefgaragenstellplatz mit Vorbereitung für E-Ladestation
* Fahrrad- und Kinderwagenraum im Haus
* Ruhige Lage am Siemenspark mit direktem Zugang zu Grünflächen
* uvm.
Lage des Objektes
Henry’s Court liegt in München-Solln, einem der begehrtesten und traditionsreichsten Stadtteile im Münchner Süden. Hier verbinden sich stilvolles Wohnen, Naturverbundenheit und urbane Lebensqualität auf einzigartige Weise.
Eingebettet in eine ruhige Seitenstraße direkt am Siemenspark genießen Sie die perfekte Balance aus Entspannung und Nähe zur Stadt. Der alte Baumbestand, gepflegte Nachbarschaften und das angrenzende Naturschutzgebiet prägen das grüne Umfeld. Spaziergänge durch die Isarauen, eine Joggingrunde im Forstenrieder Park oder ein Nachmittag im nahen Tierpark Hellabrunn – die Natur beginnt direkt vor der Haustür.
Trotz der idyllischen Umgebung ist die Anbindung hervorragend: Die U-Bahnlinie U3, diverse Busverbindungen sowie die S-Bahn-Haltestellen Solln und Siemenswerke bringen Sie in wenigen Minuten in die Münchner Innenstadt. Über das Autobahnkreuz München-Süd erreichen Sie schnell die A95 Richtung Starnberger See oder die A8 Richtung Alpen.
Im direkten Umfeld finden sich Supermärkte, Bäckereien, Cafés und Restaurants, ebenso wie Kindergärten, Schulen und Sporteinrichtungen. Ob beim Einkaufen, im Park oder im Lieblingsbistro um die Ecke – hier zeigt sich München von seiner entspanntesten Seite.
München-Solln steht für gehobenes Wohnen mit Charakter, eine gewachsene Nachbarschaft und höchste Lebensqualität – und genau das spiegelt Henry’s Court in jeder Facette wieder.
Eingebettet in eine ruhige Seitenstraße direkt am Siemenspark genießen Sie die perfekte Balance aus Entspannung und Nähe zur Stadt. Der alte Baumbestand, gepflegte Nachbarschaften und das angrenzende Naturschutzgebiet prägen das grüne Umfeld. Spaziergänge durch die Isarauen, eine Joggingrunde im Forstenrieder Park oder ein Nachmittag im nahen Tierpark Hellabrunn – die Natur beginnt direkt vor der Haustür.
Trotz der idyllischen Umgebung ist die Anbindung hervorragend: Die U-Bahnlinie U3, diverse Busverbindungen sowie die S-Bahn-Haltestellen Solln und Siemenswerke bringen Sie in wenigen Minuten in die Münchner Innenstadt. Über das Autobahnkreuz München-Süd erreichen Sie schnell die A95 Richtung Starnberger See oder die A8 Richtung Alpen.
Im direkten Umfeld finden sich Supermärkte, Bäckereien, Cafés und Restaurants, ebenso wie Kindergärten, Schulen und Sporteinrichtungen. Ob beim Einkaufen, im Park oder im Lieblingsbistro um die Ecke – hier zeigt sich München von seiner entspanntesten Seite.
München-Solln steht für gehobenes Wohnen mit Charakter, eine gewachsene Nachbarschaft und höchste Lebensqualität – und genau das spiegelt Henry’s Court in jeder Facette wieder.
Anbieter kontaktieren
Anbieter
Zenker & Günsch Immobilien
Schleißheimer Str. 6
85221 Dachau
Kontakt
| Telefon | 08131 / 45 45 28 |
| Fax | 08131 6665655 |
| Website | www.zg-immobilien.de |
