Ruhepol Bad Griesbach oder Kapitalanlage !
70.000 €
Kaufpreis
35 m²
Wohnfläche
1
Zimmer
immobilien.de Nr.: 9305269
Objektnummer: 827049
Preise & Kosten
| Kaufpreis | 70.000 € |
| Nebenkosten | keine Angabe |
| Maklerprovision | 4.284,00 EUR (inkl. MwSt.) |
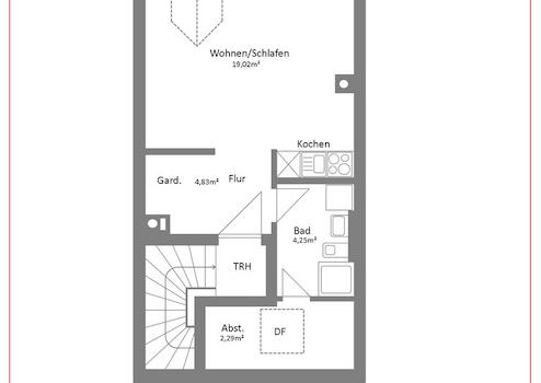
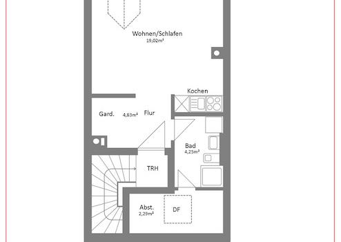
Größe & Zustand
| Wohnfläche | 35 m² |
| Zimmer | 1 |
| Baujahr | 1993 |
| Verfügbar ab | nach Absprache |
| Zustand | Gepflegt |
Energie
| Energieausweistyp | Bedarfsausweis |
| Ausstellungsdatum | 24. 07. 2018 |
| Baujahr (laut Energieausweis) | 1994 |
| Energieeffizienzklasse | D |
| Endenergiebedarf | 110.7 |
| Heizungsart | Fernwärme |
| Wesentlicher Energieträger | Gas |
| Energieträger/Befeuerung | Gas |
Objektbeschreibung
Diese gepflegte Wohnung befindet sich in einer kleinen, sehr ordentlichen Wohnanlage am südlichen Stadtrand von Bad Griesbach.
Die Wohnung eignet sich sowohl als Erstwohnsitz, ist aber auch perfekt als Ferienwohnung oder für Kapitalanleger geeignet. Momentan ist die Wohnung noch vermietet.
Weitere Angebote unter www.GARANT-IMMO.de
Die Wohnung eignet sich sowohl als Erstwohnsitz, ist aber auch perfekt als Ferienwohnung oder für Kapitalanleger geeignet. Momentan ist die Wohnung noch vermietet.
Weitere Angebote unter www.GARANT-IMMO.de
Ausstattung
| Küche | Einbauküche |
| Bad | 1 |
| Boden | Fliesen, Fertigparkett |
* ca. 35 qm Wohnfläche
* Böden: Laminat, Fliesen
* kleine Einbauküche vorhanden
* Bad mit Fenster
* Waschraum im Keller für Waschmaschine und Trockner
* zur Wohnung gehört ein Abstellraum im Keller
und ein Stellplatz in der Tiefgarage
* Böden: Laminat, Fliesen
* kleine Einbauküche vorhanden
* Bad mit Fenster
* Waschraum im Keller für Waschmaschine und Trockner
* zur Wohnung gehört ein Abstellraum im Keller
und ein Stellplatz in der Tiefgarage
Sonstige Informationen
Gesundheit, Golf, Genuss, viel Spaß in Europas Golf-Resort Nr. 1.
Gönnen Sie sich Ihre ganz persönliche Gesundheitszeit in Bad Griesbach. Das kann ein Wellness-Wochenende sein, eine Erholungswoche oder ein klassischer Kuraufenthalt. Hier finden Sie die gesunde Balance zwischen Entspannung und sportlicher Bewegung. Der niederbayerische Gesundheits- und Urlaubsort im schönen Rottal heißt Sie jetzt: Herzlich Willkommen!
Gönnen Sie sich Ihre ganz persönliche Gesundheitszeit in Bad Griesbach. Das kann ein Wellness-Wochenende sein, eine Erholungswoche oder ein klassischer Kuraufenthalt. Hier finden Sie die gesunde Balance zwischen Entspannung und sportlicher Bewegung. Der niederbayerische Gesundheits- und Urlaubsort im schönen Rottal heißt Sie jetzt: Herzlich Willkommen!
Lage des Objektes
Die Wohnung liegt in einem Reihenhaus am Ortsrand von Bad Griesbach, nur ca. 800 m vom Stadtzentrum entfernt.
Alle Geschäfte des täglichen Bedarfs erreichen Sie zu Fuß in 7 min.
Bad Griesbach liegt im niederbayerischen Bäderdreieck. Umgeben von Wäldern, Thermalbädern, Golfplätzen, Wanderwegen, Restaurants sowie einem vielseitigen Angebot an kulturellen Veranstaltungen.
Bad Griesbach ist ein Ort mit einer hohen Lebensqualität.
Der Kurort liegt ca. 25 km südwestlich von Passau, ca. 20 km südlich von Vilshofen an der Donau, ca. 20 km östlich von Pfarrkirchen und etwa zehn Kilometer nördlich von Rotthalmünster.
Bad Griesbach verfügt über eine sehr gute Infrastruktur und einen wunderschönen Stadtplatz. Einkaufsmöglichkeiten sind fußläufig zu erreichen.
Kindergarten, Schulen und Spielplätze machen Bad Griesbach auch für Familien attraktiv.
Der Ausbau der Autobahn A94 garantiert eine direkte Verbindung nach München. Gerade für Pendler und Touristen bedeutet dies eine deutliche Aufwertung der ohnehin schon begehrten Region.
Alle Geschäfte des täglichen Bedarfs erreichen Sie zu Fuß in 7 min.
Bad Griesbach liegt im niederbayerischen Bäderdreieck. Umgeben von Wäldern, Thermalbädern, Golfplätzen, Wanderwegen, Restaurants sowie einem vielseitigen Angebot an kulturellen Veranstaltungen.
Bad Griesbach ist ein Ort mit einer hohen Lebensqualität.
Der Kurort liegt ca. 25 km südwestlich von Passau, ca. 20 km südlich von Vilshofen an der Donau, ca. 20 km östlich von Pfarrkirchen und etwa zehn Kilometer nördlich von Rotthalmünster.
Bad Griesbach verfügt über eine sehr gute Infrastruktur und einen wunderschönen Stadtplatz. Einkaufsmöglichkeiten sind fußläufig zu erreichen.
Kindergarten, Schulen und Spielplätze machen Bad Griesbach auch für Familien attraktiv.
Der Ausbau der Autobahn A94 garantiert eine direkte Verbindung nach München. Gerade für Pendler und Touristen bedeutet dies eine deutliche Aufwertung der ohnehin schon begehrten Region.
Anbieter kontaktieren
Kontakt
| Telefon | 0851/96 67 94-0 |
| Fax | 0851/96 67 94-20 |
| Website | www.garant-immo.de |
