Charmantes, liebevoll saniertes Bauernhaus mit herrlich großem Grundstück, Nähe Landau zu verkaufen
695.000 €
Kaufpreis
225 m²
Wohnfläche
7
Zimmer
immobilien.de Nr.: 9305267
Objektnummer: 897156
Preise & Kosten
| Kaufpreis | 695.000 € |
| Nebenkosten | keine Angabe |
| Maklerprovision | 2,38 % (inkl. MwSt.) |
Größe & Zustand
| Wohnfläche | 225 m² |
| Grundstücksfläche | 2.459 m² |
| Zimmer | 7 |
| Baujahr | 1890 |
| Verfügbar ab | sofort |
| Zustand | Gepflegt |
Energie
| Energieausweistyp | Bedarfsausweis |
| Ausstellungsdatum | 17. 10. 2025 |
| Baujahr (laut Energieausweis) | 1890 |
| Energieeffizienzklasse | F |
| Endenergiebedarf | 187.18 |
| Heizungsart | Zentralheizung |
| Wesentlicher Energieträger | Fernwärme |
| Energieträger/Befeuerung | Fernwärme |
Objektbeschreibung
Dieses außergewöhnlich gepflegte und mit ganz viel Liebe zum Detail sanierte Bauernhaus aus dem Jahr ca. 1890 bietet auf rund 225 qm Wohnfläche ein ganz besonderes Wohnambiente. Hier verbinden sich historische Bausubstanz, mit natürlichen und hochwertigen Materialien und modernem Wohnkomfort zu einem einzigartigen Zuhause mit Charakter.
Das Haus wurde im Laufe der Jahre umfassend renoviert und technisch auf den neuesten Stand gebracht. Echte Holzböden in den Wohnräumen, Fußbodenheizung in den Bädern und im ca. 30 qm großen Wintergarten, ein gemütlicher Kaminofen (Bj. 2018) sowie die Umstellung auf Fernwärme (2007) sorgen für ein angenehmes, energieeffizientes Wohnklima.
Das Anwesen steht auf einem insgesamt ca. 2.459 qm schön eingewachsenen Grundstück, mit einem herrlichen liebevoll gestalteten Garten, mit Gemüsebeeten, Obstgarten mit alten Baumbestand und ein großes Gartenhaus mit integrierter Sauna und Ruheraum sowie einem großen Lagerraum.
Zum Anwesen gehört auch noch eine große Scheune, in dem sich das Holzlager, eine große Werkstatt sowie weiterer Stauraum für Gartengeräte, Maschinen etc. befindet.
Auch eine Garage mit Platz für zwei Autos befindet sich integriert in dem Scheunenkomplex.
Dieses Bauernhaus vereint historischen Charme mit moderner Technik und bietet vielfältige Nutzungsmöglichkeiten. Ob als großzügiges Familienhaus, Mehrgenerationenhaus oder Wohnen und Arbeiten unter einem Dach, hier sind viele Optionen möglich.
Überzeugen Sie sich selbst von dieser wirklich besonderen Immobilie und vereinbaren Sie am besten noch heute mit uns einen Besichtigungstermin. Wir freuen uns auf ihren Anruf.
Ansprechpartnerin: Frau Danner Anna-Elisabeth 0871/30 417-15.
Weitere Angebote unter www.GARANT-IMMO.de
Das Haus wurde im Laufe der Jahre umfassend renoviert und technisch auf den neuesten Stand gebracht. Echte Holzböden in den Wohnräumen, Fußbodenheizung in den Bädern und im ca. 30 qm großen Wintergarten, ein gemütlicher Kaminofen (Bj. 2018) sowie die Umstellung auf Fernwärme (2007) sorgen für ein angenehmes, energieeffizientes Wohnklima.
Das Anwesen steht auf einem insgesamt ca. 2.459 qm schön eingewachsenen Grundstück, mit einem herrlichen liebevoll gestalteten Garten, mit Gemüsebeeten, Obstgarten mit alten Baumbestand und ein großes Gartenhaus mit integrierter Sauna und Ruheraum sowie einem großen Lagerraum.
Zum Anwesen gehört auch noch eine große Scheune, in dem sich das Holzlager, eine große Werkstatt sowie weiterer Stauraum für Gartengeräte, Maschinen etc. befindet.
Auch eine Garage mit Platz für zwei Autos befindet sich integriert in dem Scheunenkomplex.
Dieses Bauernhaus vereint historischen Charme mit moderner Technik und bietet vielfältige Nutzungsmöglichkeiten. Ob als großzügiges Familienhaus, Mehrgenerationenhaus oder Wohnen und Arbeiten unter einem Dach, hier sind viele Optionen möglich.
Überzeugen Sie sich selbst von dieser wirklich besonderen Immobilie und vereinbaren Sie am besten noch heute mit uns einen Besichtigungstermin. Wir freuen uns auf ihren Anruf.
Ansprechpartnerin: Frau Danner Anna-Elisabeth 0871/30 417-15.
Weitere Angebote unter www.GARANT-IMMO.de
Ausstattung
| Anzahl der Etagen im Haus | 2 |
| Bad | 2 |
| Boden | Fliesen, Dielen |
| Balkone | 1 |
Erdgeschoss:
- Großzügig gestalteter Eingangsbereich
- Stilvoller, offener Wohn-, Ess- und Küchenbereich
mit direktem Zugang zum Wintergarten
- Küchenbereich mit hochwertiger Einbauküche
und neuen elktrischen Geräten
- Wohn-, Ess- und Küchenbereich mit hochwertigen
Echtholzboden ausgestattet
- Moderner, neuer Kaminofen im Wohnzimmer
für gemütliche Atmosphäre
- Wintergarten mit Fußbodenheizung und Blick
in den Garten
- Speisekammer
- Gäste-WC
- Badezimmer mit begehbarer Dusche und Fußbodenheizung
- Großer Wirtschaftsraum/Technikraum
- Zugang zur angrenzenden Scheune
- Fußbodenheizung im Wintergarten sowie
in beiden Bädern
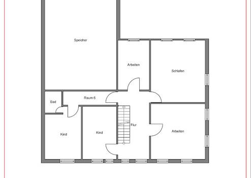
Obergeschoss:
- Großzügiger Dielen/Flurbereich
- Großes Arbeitszimmer
- Elternschlafzimmer
- Zwei weitere Schlafzimmer
- Kleines Kinderzimmer bzw. Hobbyraum.
- Modernes Badezimmer mit Badewanne, Dusche
und WC (Fußbodenheizung)
Direkter Zugang zum Dachboden/Speicher, der bei Bedarf zu weiterem Wohnraum ausgebaut werden kann.
Sanierungen & Modernisierungen seit 1984
Dacherneuerung vom Wohnhaus (2002)
Fernwärmeanschluss (2007)
Sanierung Badezimmer Erdgeschoss (2010)
Lärchenholzböden in den Wohnräumen
Holz-Treppe zum Obergeschoss aus Ahorn
Neue Haustüten (2017)
Küche renoviert und neue Elektrischen Geräte installiert (2018
Neuer energieeffizienter Kaminofen (2018)
Doppelverglaste Holzrahmenfenster (nach und nach erneuert)
Alle Elektrikleitungen nach und nach erneuert
Neuer Sicherungskasten (2024)
- Großzügig gestalteter Eingangsbereich
- Stilvoller, offener Wohn-, Ess- und Küchenbereich
mit direktem Zugang zum Wintergarten
- Küchenbereich mit hochwertiger Einbauküche
und neuen elktrischen Geräten
- Wohn-, Ess- und Küchenbereich mit hochwertigen
Echtholzboden ausgestattet
- Moderner, neuer Kaminofen im Wohnzimmer
für gemütliche Atmosphäre
- Wintergarten mit Fußbodenheizung und Blick
in den Garten
- Speisekammer
- Gäste-WC
- Badezimmer mit begehbarer Dusche und Fußbodenheizung
- Großer Wirtschaftsraum/Technikraum
- Zugang zur angrenzenden Scheune
- Fußbodenheizung im Wintergarten sowie
in beiden Bädern
Obergeschoss:
- Großzügiger Dielen/Flurbereich
- Großes Arbeitszimmer
- Elternschlafzimmer
- Zwei weitere Schlafzimmer
- Kleines Kinderzimmer bzw. Hobbyraum.
- Modernes Badezimmer mit Badewanne, Dusche
und WC (Fußbodenheizung)
Direkter Zugang zum Dachboden/Speicher, der bei Bedarf zu weiterem Wohnraum ausgebaut werden kann.
Sanierungen & Modernisierungen seit 1984
Dacherneuerung vom Wohnhaus (2002)
Fernwärmeanschluss (2007)
Sanierung Badezimmer Erdgeschoss (2010)
Lärchenholzböden in den Wohnräumen
Holz-Treppe zum Obergeschoss aus Ahorn
Neue Haustüten (2017)
Küche renoviert und neue Elektrischen Geräte installiert (2018
Neuer energieeffizienter Kaminofen (2018)
Doppelverglaste Holzrahmenfenster (nach und nach erneuert)
Alle Elektrikleitungen nach und nach erneuert
Neuer Sicherungskasten (2024)
Sonstige Informationen
Nebengebäude & Grundstück:
Zum Anwesen gehört eine große Scheune mit Holzlager und Werkstatt, ideal für Handwerker, Hobbybastler oder die Lagerung von Geräten. 1987 wurde das Stadldach neu eingedeckt.
Das traumhafte Grundstück mit insgesamt ca. 2.490 qm ist liebevoll angelegt und bietet:
Einen großen, schön eingewachsenen Garten mit gepflegtem Rasen, Obstbäumen, Gemüsebeete und Hochbeete.
Ein Gartenhaus mit Sauna, Ruheraum und zusätzlichem Lagerraum für Gartenmöbel, Gartengeräte etc.
Eine herrliche Obstbaumwiese hinter dem Gartenhaus.
Zudem befindet sich eine große Garage integriert in dem Scheunenkomplex.
Zum Anwesen gehört eine große Scheune mit Holzlager und Werkstatt, ideal für Handwerker, Hobbybastler oder die Lagerung von Geräten. 1987 wurde das Stadldach neu eingedeckt.
Das traumhafte Grundstück mit insgesamt ca. 2.490 qm ist liebevoll angelegt und bietet:
Einen großen, schön eingewachsenen Garten mit gepflegtem Rasen, Obstbäumen, Gemüsebeete und Hochbeete.
Ein Gartenhaus mit Sauna, Ruheraum und zusätzlichem Lagerraum für Gartenmöbel, Gartengeräte etc.
Eine herrliche Obstbaumwiese hinter dem Gartenhaus.
Zudem befindet sich eine große Garage integriert in dem Scheunenkomplex.
Lage des Objektes
Das Anwesen befindet sich in Mettenhausen, einem charmanten Ortsteil von Landau an der Isar. Die Umgebung bietet Ruhe, Natur und dennoch eine gute Anbindung an die Stadt Landau sowie an die B20 und die A92 (Richtung München/Deggendorf). Ideal für Familien, Naturliebhaber und alle, die das Landleben mit Komfort genießen möchten.
Anbieter kontaktieren
Kontakt
| Telefon | 0871/43 04 17-0 |
| Fax | 0871/43 04 17-20 |
| Website | www.garant-immo.de |
