Zuhause ankommen: Großzügiges Familienidyll mit Platz für alle Generationen
389.000 €
Kaufpreis
158 m²
Wohnfläche
6
Zimmer
immobilien.de Nr.: 9302182
Objektnummer: 573176
Preise & Kosten
| Kaufpreis | 389.000 € |
| Nebenkosten | keine Angabe |
Größe & Zustand
| Wohnfläche | 158 m² |
| Grundstücksfläche | 552 m² |
| Zimmer | 6 |
| Baujahr | 2001 |
| Verfügbar ab | sofort |
| Zustand | Voll Saniert |
Energie
| Energieausweistyp | Bedarfsausweis |
| Ausstellungsdatum | 15. 11. 2016 |
| Gültig bis | 15.11.2026 |
| Endenergiebedarf | 95.12 |
| Heizungsart | Zentralheizung |
| Wesentlicher Energieträger | Gas |
| Energieträger/Befeuerung | Gas |
Objektbeschreibung
Vielseitiges Wohnhaus mit drei Einheiten in Zwickau-Oberhohndorf
Zum Verkauf steht ein gepflegtes Wohnhaus im Zwickauer Stadtteil Oberhohndorf, das im Jahr 2001 erbaut wurde. Die Immobilie verfügt aktuell über zwei separate Wohneinheiten sowie eine zusätzliche Einliegerwohnung im Dachgeschoss – ideal als Mehrgenerationenhaus oder auch zur Nutzung als großzügiges Einfamilienhaus.
Das Raumkonzept ist flexibel und passt sich unterschiedlichen Wohnbedürfnissen mühelos an:
Im Erdgeschoss befindet sich eine großzügige 3-Raum-Wohnung mit ca. 79 m² Wohnfläche. Sie verfügt über drei Wohnräume, eine Küche, ein Tageslichtbad mit Wanne, ein separates Gäste-WC sowie einen Flur. Vom Wohnbereich aus gelangt man direkt in den Garten.
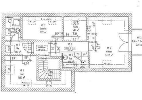
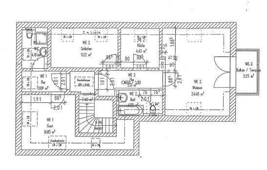
Das Obergeschoss beherbergt eine 2-Raum-Wohnung mit ca. 54 m² sowie eine separate 1-Raum-Einliegerwohnung mit ca. 25 m². Beide Einheiten teilen sich einen sonnigen Süd-Balkon.
Alle Bäder sind Tageslichtbäder und entweder mit Dusche oder Badewanne ausgestattet.
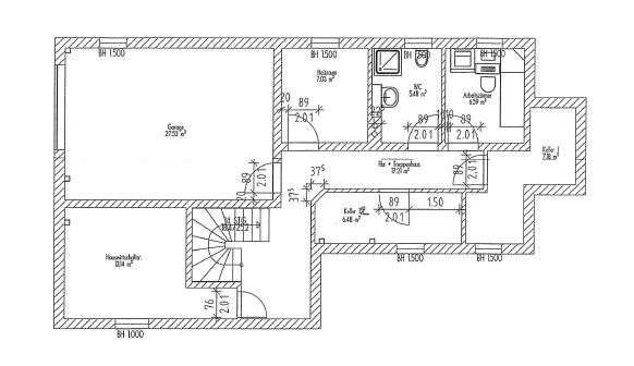
Der Spitzboden unter dem wärmegedämmten Dach ist aktuell nicht ausgebaut und bietet weiteres Potenzial. Das Haus ist voll unterkellert und verfügt über eine integrierte, geräumige Garage mit elektrischem Rolltor. Im Keller befinden sich zudem ein weiteres Duschbad sowie mehrere Hauswirtschafts- und Abstellräume.
Die Wärmeversorgung erfolgt über eine moderne Gas-/Öl-Kombiheizung, die erst 2023 vollständig erneuert wurde. Auch defekte Heizkörper wurden im Zuge dessen ersetzt (Gesamtkosten ca. 20.000 €). Zusätzlich sorgt ein Kachelofen im Erdgeschoss für wohlige Wärme.
Der Außenbereich bietet neben einem Garten mit kleinem Geräteschuppen auch einen massiven Schuppen auf der Straßenseite – ideal für Hobby, Lagerung oder Werkstatt.
Das Haus ist seit dem 01.07.2023 gewerblich vermietet und erzielt eine monatliche Nettokaltmiete von 1.200 €. Die Wände und Böden wurden vom aktuellen Mieter renoviert.
" frisch, engagiert, solide "
Die Künne Immobilien Gruppe ist professioneller Dienstleister der Immobilienbranche und steht Ihnen in den Bereichen Projektentwicklung, Verkauf, Vermietung, Verwaltung und Facility Management zur Verfügung.
Für weitere Informationen und Einblicke besuchen Sie unsere Homepage: www.kuenne-gruppe.de Sie wollen Ihre Immobilie verkaufen? Egal ob Mehrfamilien- oder Einfamilienhaus, Eigentumswohnung, Grundstück oder Neubau- bzw. Bauträgerprojekt. Wir vermitteln kompetent, transparent und zügig Ihre Immobilie, bundesweit.
Zum Verkauf steht ein gepflegtes Wohnhaus im Zwickauer Stadtteil Oberhohndorf, das im Jahr 2001 erbaut wurde. Die Immobilie verfügt aktuell über zwei separate Wohneinheiten sowie eine zusätzliche Einliegerwohnung im Dachgeschoss – ideal als Mehrgenerationenhaus oder auch zur Nutzung als großzügiges Einfamilienhaus.
Das Raumkonzept ist flexibel und passt sich unterschiedlichen Wohnbedürfnissen mühelos an:
Im Erdgeschoss befindet sich eine großzügige 3-Raum-Wohnung mit ca. 79 m² Wohnfläche. Sie verfügt über drei Wohnräume, eine Küche, ein Tageslichtbad mit Wanne, ein separates Gäste-WC sowie einen Flur. Vom Wohnbereich aus gelangt man direkt in den Garten.
Das Obergeschoss beherbergt eine 2-Raum-Wohnung mit ca. 54 m² sowie eine separate 1-Raum-Einliegerwohnung mit ca. 25 m². Beide Einheiten teilen sich einen sonnigen Süd-Balkon.
Alle Bäder sind Tageslichtbäder und entweder mit Dusche oder Badewanne ausgestattet.
Der Spitzboden unter dem wärmegedämmten Dach ist aktuell nicht ausgebaut und bietet weiteres Potenzial. Das Haus ist voll unterkellert und verfügt über eine integrierte, geräumige Garage mit elektrischem Rolltor. Im Keller befinden sich zudem ein weiteres Duschbad sowie mehrere Hauswirtschafts- und Abstellräume.
Die Wärmeversorgung erfolgt über eine moderne Gas-/Öl-Kombiheizung, die erst 2023 vollständig erneuert wurde. Auch defekte Heizkörper wurden im Zuge dessen ersetzt (Gesamtkosten ca. 20.000 €). Zusätzlich sorgt ein Kachelofen im Erdgeschoss für wohlige Wärme.
Der Außenbereich bietet neben einem Garten mit kleinem Geräteschuppen auch einen massiven Schuppen auf der Straßenseite – ideal für Hobby, Lagerung oder Werkstatt.
Das Haus ist seit dem 01.07.2023 gewerblich vermietet und erzielt eine monatliche Nettokaltmiete von 1.200 €. Die Wände und Böden wurden vom aktuellen Mieter renoviert.
" frisch, engagiert, solide "
Die Künne Immobilien Gruppe ist professioneller Dienstleister der Immobilienbranche und steht Ihnen in den Bereichen Projektentwicklung, Verkauf, Vermietung, Verwaltung und Facility Management zur Verfügung.
Für weitere Informationen und Einblicke besuchen Sie unsere Homepage: www.kuenne-gruppe.de Sie wollen Ihre Immobilie verkaufen? Egal ob Mehrfamilien- oder Einfamilienhaus, Eigentumswohnung, Grundstück oder Neubau- bzw. Bauträgerprojekt. Wir vermitteln kompetent, transparent und zügig Ihre Immobilie, bundesweit.
Ausstattung
| Anzahl der Etagen im Haus | 2 |
| Küche | Einbauküche |
| Bad | Dusche, Wanne, Fenster |
| Boden | Fliesen, Teppich |
| Balkone | 1 |
| Garten | |
| Keller |
Lage des Objektes
Zwickau, eine alte westsächsische Handels- und Industriestadt an der Mulde. Mit etwas weniger als 100.000 Einwohnern ist Zwickau heute nach Dresden, Leipzig und Chemnitz die viertgrösste Stadt im Freistaat Sachsen und besonders bekannt durch sein umfangreiches kulturelles Angebot. Berühmt ist Zwickau auch als Standort der Automobil-Industrie. Bis zum östlich gelegenem Chemnitz sind es etwa 35 km und nach Leipzig ca. 80 km. Unweit von Zwickau verlaufen die A4 und die A72.
Anbieter kontaktieren
Anbieter
Marko Künne Immobilien
Käthe-Kollwitz-Str. 58c
04109 Leipzig
Kontakt
| Telefon | 0341 442 9566 |
| Fax | 0341 2253930 |
| Website | www.kuenne-immobilien.de |
