Provisionsfrei - reizvolles Einfamilienhaus mit kleinem Garten!
79.000 €
Kaufpreis
137 m²
Wohnfläche
7
Zimmer
immobilien.de Nr.: 9293111
Objektnummer: FALC-MMa-76004
Preise & Kosten
| Kaufpreis | 79.000 € |
| Nebenkosten | keine Angabe |
Größe & Zustand
| Wohnfläche | 137 m² |
| Grundstücksfläche | 341 m² |
| Zimmer | 7 |
| Baujahr | 1963 |
| Verfügbar ab | nach Vereinbarung |
Energie
| Energieausweistyp | Bedarfsausweis |
| Ausstellungsdatum | 21. 09. 2023 |
| Gültig bis | 20.09.2033 |
| Energieeffizienzklasse | H |
| Endenergiebedarf | 271.91 |
| Wesentlicher Energieträger | Strom |
| Energieträger/Befeuerung | Elektro |
Objektbeschreibung
*** ANGEBOTSVERFAHREN ***
Dieses gemütliche Einfamilienhaus könnte schon bald Ihr Zuhause sein!
Die angebotene Immobilie befindet sich in Mittelstrimmig, einer malerischen Ortschaft im Hunsrück, eingebettet in die Natur und geprägt von einer ländlichen Idylle.
Wir freuen uns, Ihnen dieses Einfamilienhaus, in massiver Bauweise im Jahr 1963 auf einem ca. 341 m² großen Grundstück errichtet, vorstellen zu dürfen.
Das Haus bietet Ihnen auf ca. 137 m² einen harmonischen Wohnraum auf zwei Etagen.
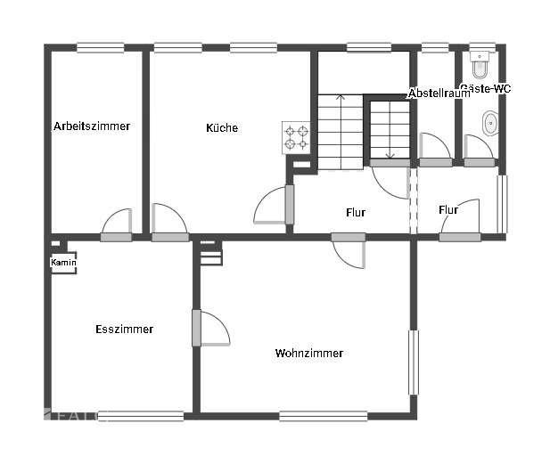
Das Erdgeschoss besticht durch eine durchdachte Aufteilung.
Das helle Wohnzimmer bietet ausreichend Platz für geselliges Beisammensein. Die Fenster garantieren eine ausgezeichnete Belichtung, die die Räume freundlich und einladend wirken lässt. Die Küche lässt Raum für kreative Einrichtungsideen und wird durch einen direkten Zugang zum Esszimmer ergänzt.
Ein zusätzliches Arbeitszimmer, ein kleiner Abstellraum und ein praktisches Gäste-WC vervollständigen das Raumangebot auf dieser Etage.
Ein Stockwerk höher, im Obergeschoss, finden Sie Rückzugsmöglichkeiten für die ganze Familie. Das Schlafzimmer ist großzügig geschnitten und sorgt für eine angenehme Atmosphäre. Drei weitere Zimmer lassen sich hervorragend als Kinder- oder Gästezimmer nutzen. Hier gibt es zudem ein Badezimmer mit Badewanne, das für den entspannten Start in den Tag sorgt.
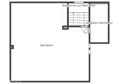
Über eine reizvolle Holztreppe gelangt man zum Dachboden, der bietet zusätzlichen Stauraum.
Abgerundet wird das Angebot durch einen Kellerbereich, der mit zusätzlichen Räumen ein ausgezeichnetes Lagerpotenzial bietet. Hier ist auch Platz für ein Hobbyraum, der individuell genutzt werden kann.
Stellplatz für Ihr Auto und Fahrräder gibt es in der Garage, direkten Zugang hierzu haben Sie vom Keller aus.
Weiteren Stellplatz für zwei Autos bietet der gepflasterte Hof vor dem Haus.
Hinter dem Haus befindet sich der Garten.
Genießen Sie hier sonnige Tage und laue Sommerabende. Der Garten bietet ausreichend Platz für Spiel und Spaß für die ganze Familie. Hier können Sie Ihren eigenen kleinen Gemüse- und Kräutergarten anlegen oder einfach nur die Ruhe und Schönheit der Natur genießen.
Ein solider, gemütlicher Rückzugsort, der jungen Familien den Raum bietet, den sie brauchen, um ihre Zukunft zu gestalten. Diese sanierungsbedürftige Immobilie bietet eine hervorragende Gelegenheit, sich im Eigenheim niederzulassen und es nach den eigenen Vorstellungen zu gestalten um das Familienleben in vollen Zügen zu genießen.
Dieses gemütliche Einfamilienhaus könnte schon bald Ihr Zuhause sein!
Die angebotene Immobilie befindet sich in Mittelstrimmig, einer malerischen Ortschaft im Hunsrück, eingebettet in die Natur und geprägt von einer ländlichen Idylle.
Wir freuen uns, Ihnen dieses Einfamilienhaus, in massiver Bauweise im Jahr 1963 auf einem ca. 341 m² großen Grundstück errichtet, vorstellen zu dürfen.
Das Haus bietet Ihnen auf ca. 137 m² einen harmonischen Wohnraum auf zwei Etagen.
Das Erdgeschoss besticht durch eine durchdachte Aufteilung.
Das helle Wohnzimmer bietet ausreichend Platz für geselliges Beisammensein. Die Fenster garantieren eine ausgezeichnete Belichtung, die die Räume freundlich und einladend wirken lässt. Die Küche lässt Raum für kreative Einrichtungsideen und wird durch einen direkten Zugang zum Esszimmer ergänzt.
Ein zusätzliches Arbeitszimmer, ein kleiner Abstellraum und ein praktisches Gäste-WC vervollständigen das Raumangebot auf dieser Etage.
Ein Stockwerk höher, im Obergeschoss, finden Sie Rückzugsmöglichkeiten für die ganze Familie. Das Schlafzimmer ist großzügig geschnitten und sorgt für eine angenehme Atmosphäre. Drei weitere Zimmer lassen sich hervorragend als Kinder- oder Gästezimmer nutzen. Hier gibt es zudem ein Badezimmer mit Badewanne, das für den entspannten Start in den Tag sorgt.
Über eine reizvolle Holztreppe gelangt man zum Dachboden, der bietet zusätzlichen Stauraum.
Abgerundet wird das Angebot durch einen Kellerbereich, der mit zusätzlichen Räumen ein ausgezeichnetes Lagerpotenzial bietet. Hier ist auch Platz für ein Hobbyraum, der individuell genutzt werden kann.
Stellplatz für Ihr Auto und Fahrräder gibt es in der Garage, direkten Zugang hierzu haben Sie vom Keller aus.
Weiteren Stellplatz für zwei Autos bietet der gepflasterte Hof vor dem Haus.
Hinter dem Haus befindet sich der Garten.
Genießen Sie hier sonnige Tage und laue Sommerabende. Der Garten bietet ausreichend Platz für Spiel und Spaß für die ganze Familie. Hier können Sie Ihren eigenen kleinen Gemüse- und Kräutergarten anlegen oder einfach nur die Ruhe und Schönheit der Natur genießen.
Ein solider, gemütlicher Rückzugsort, der jungen Familien den Raum bietet, den sie brauchen, um ihre Zukunft zu gestalten. Diese sanierungsbedürftige Immobilie bietet eine hervorragende Gelegenheit, sich im Eigenheim niederzulassen und es nach den eigenen Vorstellungen zu gestalten um das Familienleben in vollen Zügen zu genießen.
Ausstattung
| Bad | 1 |
| Bad | Wanne, Fenster |
| Boden | Fliesen, Teppich |
| Keller |
• gute Raumaufteilung
• viel Platz
• flexible Gestaltungsmöglichkeiten
• Garage
• 2 Stellplätze
• sonniger Garten
• reizvolle Natur im schönen Hunsrück
• viel Platz
• flexible Gestaltungsmöglichkeiten
• Garage
• 2 Stellplätze
• sonniger Garten
• reizvolle Natur im schönen Hunsrück
Sonstige Informationen
Sofern Sie viel Wert auf flexible Gestaltungsmöglichkeiten legen, ist dieses Objekt ideal für Sie.
Für den Käufer fällt keine zusätzliche Provision an.
Bei Interesse geben Sie bitte immer Ihre vollständigen Kontaktdaten an.
Die Objektbeschreibung beruht ganz oder zum Teil auf Angaben des Eigentümers. Für die Richtigkeit oder Vollständigkeit übernehmen wir keine Gewähr.
Bei einigen Fotos wurden die Möbel und Dekoration virtuell hinzugefügt.
Werte gemäß EnEV:
- Baujahr des Hauses: 1963
- Hauptenergieträger: Strom
- Endenergieverbrauch: 271,91 kWh/(m²a)
- Energieausweistyp: Bedarf
- Energieeffizienzklasse: H
- Energieausweis gültig bis: 20.09.2033
Für ein unverbindliches Beratungsgespräch oder eine Terminvereinbarung zur Besichtigung stehen wir Ihnen jederzeit gerne zur Verfügung.
Gerne möchten wir Sie zu unserer 360 Grad-Besichtigung einladen, diese finden Sie unter: https://app.immoviewer.com/portal/tour/3105645
Sie möchten Ihre Immobilie ebenfalls professionell vermarkten? Rufen Sie uns an, wir stehen Ihnen gerne persönlich zur Seite.
Gerne stehen wir Ihnen auch mit Vermittlung der für Sie passenden Immobilienfinanzierung über unser Schwester-Unternehmen FALC-Finance zur Verfügung.
Für den Käufer fällt keine zusätzliche Provision an.
Bei Interesse geben Sie bitte immer Ihre vollständigen Kontaktdaten an.
Die Objektbeschreibung beruht ganz oder zum Teil auf Angaben des Eigentümers. Für die Richtigkeit oder Vollständigkeit übernehmen wir keine Gewähr.
Bei einigen Fotos wurden die Möbel und Dekoration virtuell hinzugefügt.
Werte gemäß EnEV:
- Baujahr des Hauses: 1963
- Hauptenergieträger: Strom
- Endenergieverbrauch: 271,91 kWh/(m²a)
- Energieausweistyp: Bedarf
- Energieeffizienzklasse: H
- Energieausweis gültig bis: 20.09.2033
Für ein unverbindliches Beratungsgespräch oder eine Terminvereinbarung zur Besichtigung stehen wir Ihnen jederzeit gerne zur Verfügung.
Gerne möchten wir Sie zu unserer 360 Grad-Besichtigung einladen, diese finden Sie unter: https://app.immoviewer.com/portal/tour/3105645
Sie möchten Ihre Immobilie ebenfalls professionell vermarkten? Rufen Sie uns an, wir stehen Ihnen gerne persönlich zur Seite.
Gerne stehen wir Ihnen auch mit Vermittlung der für Sie passenden Immobilienfinanzierung über unser Schwester-Unternehmen FALC-Finance zur Verfügung.
Lage des Objektes
Mittelstrimmig mit ca. 400 Einwohnern, ist ein idyllischer Ort im wunderschönen Hunsrück und gehört zur Verbandsgemeinde Zell.
Zwischen Wald und zahlreichen Wanderwegen finden Sie hier eine malerische Landschaft des Landkreises Cochem-Zell, die zum Entspannen und Erholen einlädt. Die Region um Mittelstrimmig bietet interessante Sehenswürdigkeiten sowie Veranstaltungen für jeden Geschmack und jede Altersklasse.
Mittelstrimmig ist ca.8 km von der B 421entfernt und bietet somit Pendlern eine gute Verbindung zum Arbeitsplatz. Die überregionalen Bahnhöfe in Bullay, Cochem und Treis-Karden sind in jeweils ca. 20 Minuten zu erreichen. Zum Flughafen Hahn sind es ca. 26 km.
Im Ort befinden sich ein Kindergarten sowie eine Grundschule, weiterführende Schulen gibt es in Treis-Karden, Cochem, Zell und Kastellaun.
Im Nachbarort Blankenrath findet man Geschäfte des täglichen Bedarfs, Banken, Ärzte und eine Apotheke, um die Grundbedürfnisse der Bewohner abzudecken, einen Bäcker gibt es in Mittelstrimmig.
Weitere Geschäfte, Supermärkte, Einzelhandel und Ärzte befinden sich in Kastellaun, Zell sowie in Cochem, hier ist auch das nächstgelegene Krankenhaus.
Auch das vielseitige Sport- und Freizeitangebot der aktiven Ortsvereine in Mittelstrimmig und auf dem Strimmiger Berg tragen zum Wohlfühlen in dem schönen Hunsrückort bei.
Besonders reizvoll ist die Nähe zur malerischen Mosel, die nur wenige Autominuten entfernt ist. Hier können Sie herrliche Spaziergänge entlang der Uferpromenade unternehmen oder mit dem Fahrrad die vielen Radwege erkunden.
Die romantischen Weinorte laden mit ihrem charmanten Flair zu einem Bummel durch die engen Gassen ein. Hier finden Sie eine Vielzahl von kulturellen und gastronomischen Angeboten, die Ihren Aufenthalt an der Mosel zu einem besonderen Erlebnis machen.
Zwischen Wald und zahlreichen Wanderwegen finden Sie hier eine malerische Landschaft des Landkreises Cochem-Zell, die zum Entspannen und Erholen einlädt. Die Region um Mittelstrimmig bietet interessante Sehenswürdigkeiten sowie Veranstaltungen für jeden Geschmack und jede Altersklasse.
Mittelstrimmig ist ca.8 km von der B 421entfernt und bietet somit Pendlern eine gute Verbindung zum Arbeitsplatz. Die überregionalen Bahnhöfe in Bullay, Cochem und Treis-Karden sind in jeweils ca. 20 Minuten zu erreichen. Zum Flughafen Hahn sind es ca. 26 km.
Im Ort befinden sich ein Kindergarten sowie eine Grundschule, weiterführende Schulen gibt es in Treis-Karden, Cochem, Zell und Kastellaun.
Im Nachbarort Blankenrath findet man Geschäfte des täglichen Bedarfs, Banken, Ärzte und eine Apotheke, um die Grundbedürfnisse der Bewohner abzudecken, einen Bäcker gibt es in Mittelstrimmig.
Weitere Geschäfte, Supermärkte, Einzelhandel und Ärzte befinden sich in Kastellaun, Zell sowie in Cochem, hier ist auch das nächstgelegene Krankenhaus.
Auch das vielseitige Sport- und Freizeitangebot der aktiven Ortsvereine in Mittelstrimmig und auf dem Strimmiger Berg tragen zum Wohlfühlen in dem schönen Hunsrückort bei.
Besonders reizvoll ist die Nähe zur malerischen Mosel, die nur wenige Autominuten entfernt ist. Hier können Sie herrliche Spaziergänge entlang der Uferpromenade unternehmen oder mit dem Fahrrad die vielen Radwege erkunden.
Die romantischen Weinorte laden mit ihrem charmanten Flair zu einem Bummel durch die engen Gassen ein. Hier finden Sie eine Vielzahl von kulturellen und gastronomischen Angeboten, die Ihren Aufenthalt an der Mosel zu einem besonderen Erlebnis machen.
Anbieter kontaktieren
Anbieter
FALC Immobilien GmbH & Co. KG
Humperdickstr. 3
53773 Hennef (Sieg)
Kontakt
| Telefon | +49 800 6460646 |
| Mobil | +49 1512 1742351 |
| Fax | +49 2242 9010319 |
| Website | www.falcimmo.de |
