Familienfreundliches Wohnen mit Erdwärme, PV-Option und guter Ausstattung
730.000 €
Kaufpreis
93 m²
Wohnfläche
4
Zimmer
immobilien.de Nr.: 9283110
Objektnummer: 837121
Preise & Kosten
| Kaufpreis | 730.000 € |
| Nebenkosten | keine Angabe |
| Maklerprovision | 3,57 % (inkl. MwSt.) |
Größe & Zustand
| Wohnfläche | 93 m² |
| Grundstücksfläche | 615 m² |
| Zimmer | 4 |
| Baujahr | 2017 |
| Verfügbar ab | nach Absprache |
| Zustand | Gepflegt |
Energie
| Energieausweistyp | Bedarfsausweis |
| Ausstellungsdatum | 04. 07. 2017 |
| Baujahr (laut Energieausweis) | 2017 |
| Energieeffizienzklasse | A+ |
| Endenergiebedarf | 26 |
| Wesentlicher Energieträger | Strom |
| Energieträger/Befeuerung | Elektro |
Objektbeschreibung
Dieses Einfamilienhaus in Wartenberg wurde 2017 errichtet und steht auf einem ca. 615 m² großen Grundstück. Mit rund 93 m² Wohnfläche sowie einem voll ausgebauten Dachgeschoss und einem praktischen Keller bietet es eine durchdachte Raumaufteilung für eine Familie.
Technisch ist das Haus solide aufgestellt: Beheizt wird es über eine effiziente Erdwärmepumpe, die für sehr niedrige Betriebskosten sorgt. Zusätzlich ist eine Vorbereitung für eine Photovoltaikanlage vorhanden, wodurch sich künftig weiteres Energiesparpotenzial erschließen lässt. Eine Drainage unterstützt den Werterhalt der Immobilie.
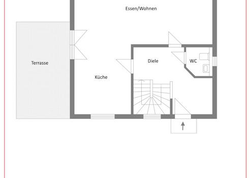
Im Erdgeschoss befinden sich der Eingangsbereich mit Gäste-WC sowie der Wohn- und Essbereich mit offener Küche. Von hier aus gelangt man auf die Terrasse, die den Wohnraum in den Außenbereich erweitert. Eine Treppe verbindet die Etagen und führt sowohl in das Dachgeschoss als auch in den Keller.
Das Dachgeschoss bietet drei Zimmer und ein Badezimmer, die sich flexibel als Schlaf-, Kinder- oder Arbeitszimmer nutzen lassen.
Der Keller ist funktional gegliedert: Neben Technik- und Abstellraum steht ein weiterer Raum zur Verfügung, der sich auch als Hobby- oder Gästezimmer eignet. Ein direkter Zugang in den Garten erhöht die Nutzbarkeit.
Zur Ausstattung gehören moderne Innentüren, eine zeitgemäße Treppe sowie ein Badezimmer im Dachgeschoss und ein Gäste-WC im Erdgeschoss. Insgesamt präsentiert sich das Haus in einem guten, gepflegten Zustand.
Die Lage in Wartenberg überzeugt durch ländlichen Charakter bei gleichzeitig guter Anbindung: Einkaufsmöglichkeiten, Schulen und der Flughafen München sind in kurzer Zeit erreichbar. Damit eignet sich die Immobilie besonders für Familien und Berufspendler, die ein solides Zuhause mit praktischer Ausstattung suchen.
Weitere Angebote unter www.GARANT-IMMO.de
Technisch ist das Haus solide aufgestellt: Beheizt wird es über eine effiziente Erdwärmepumpe, die für sehr niedrige Betriebskosten sorgt. Zusätzlich ist eine Vorbereitung für eine Photovoltaikanlage vorhanden, wodurch sich künftig weiteres Energiesparpotenzial erschließen lässt. Eine Drainage unterstützt den Werterhalt der Immobilie.
Im Erdgeschoss befinden sich der Eingangsbereich mit Gäste-WC sowie der Wohn- und Essbereich mit offener Küche. Von hier aus gelangt man auf die Terrasse, die den Wohnraum in den Außenbereich erweitert. Eine Treppe verbindet die Etagen und führt sowohl in das Dachgeschoss als auch in den Keller.
Das Dachgeschoss bietet drei Zimmer und ein Badezimmer, die sich flexibel als Schlaf-, Kinder- oder Arbeitszimmer nutzen lassen.
Der Keller ist funktional gegliedert: Neben Technik- und Abstellraum steht ein weiterer Raum zur Verfügung, der sich auch als Hobby- oder Gästezimmer eignet. Ein direkter Zugang in den Garten erhöht die Nutzbarkeit.
Zur Ausstattung gehören moderne Innentüren, eine zeitgemäße Treppe sowie ein Badezimmer im Dachgeschoss und ein Gäste-WC im Erdgeschoss. Insgesamt präsentiert sich das Haus in einem guten, gepflegten Zustand.
Die Lage in Wartenberg überzeugt durch ländlichen Charakter bei gleichzeitig guter Anbindung: Einkaufsmöglichkeiten, Schulen und der Flughafen München sind in kurzer Zeit erreichbar. Damit eignet sich die Immobilie besonders für Familien und Berufspendler, die ein solides Zuhause mit praktischer Ausstattung suchen.
Weitere Angebote unter www.GARANT-IMMO.de
Ausstattung
| Küche | Einbauküche |
| Bad | 2 |
| Boden | Fliesen, Laminat |
* Erdwärmeheizung mit Wärmepumpe
* Vorbereitung für Photovoltaikanlage
* Glasfaseranschluss
* Drainage vorhanden
* Hochwertige Elektrik
* Offene Küche
* Moderne Innentüren
* Zeitgemäße Treppe
* Badezimmer im Dachgeschoss
* Gäste-WC im Erdgeschoss
* Terrasse mit Gartenzugang
* Vorbereitung für Photovoltaikanlage
* Glasfaseranschluss
* Drainage vorhanden
* Hochwertige Elektrik
* Offene Küche
* Moderne Innentüren
* Zeitgemäße Treppe
* Badezimmer im Dachgeschoss
* Gäste-WC im Erdgeschoss
* Terrasse mit Gartenzugang
Sonstige Informationen
Ausschluss von Beratungsleistungen:
Hiermit wird festgehalten, dass die Rolle des Immobilienmaklers der GARANT im Rahmen des Verkaufsprozesses dieser Immobilie ausschließlich auf die Vermittlung zwischen dem Eigentümer/Verkäufer und potenziellen Käufern beschränkt ist. Zu keinem Zeitpunkt wurden durch den Immobilienmakler steuerliche oder rechtliche Beratungen bezüglich des Verkaufs der Immobilie oder damit verbundener Vorgänge angeboten, durchgeführt oder impliziert. Potenzielle Käufer werden aufgefordert, alle relevanten Aspekte der Immobilie durch eigene Prüfungen oder durch Beauftragung geeigneter Fachberater zu verifizieren, um sicherzustellen, dass alle Informationen ihren Anforderungen und Erwartungen entsprechen.
Hiermit wird festgehalten, dass die Rolle des Immobilienmaklers der GARANT im Rahmen des Verkaufsprozesses dieser Immobilie ausschließlich auf die Vermittlung zwischen dem Eigentümer/Verkäufer und potenziellen Käufern beschränkt ist. Zu keinem Zeitpunkt wurden durch den Immobilienmakler steuerliche oder rechtliche Beratungen bezüglich des Verkaufs der Immobilie oder damit verbundener Vorgänge angeboten, durchgeführt oder impliziert. Potenzielle Käufer werden aufgefordert, alle relevanten Aspekte der Immobilie durch eigene Prüfungen oder durch Beauftragung geeigneter Fachberater zu verifizieren, um sicherzustellen, dass alle Informationen ihren Anforderungen und Erwartungen entsprechen.
Lage des Objektes
* Gelegen im Landkreis Erding, ca. 45 km
nordöstlich von München
* Gute Verkehrsanbindung über die B388
sowie die Nähe zur A92 (Richtung München-Deggendorf)
* Flughafen München in rund 20 Minuten erreichbar
* Bahnanschluss über die Nachbarorte Moosburg
und Langenbach mit direkter Verbindung nach München
* Attraktive Infrastruktur mit Einkaufsmöglichkeiten,
Restaurants, medizinischer Versorgung und Apotheken
* Vielfältiges Bildungsangebot: Kindergärten, Grund-
und Mittelschule direkt vor Ort, weiterführende Schulen
in Erding und Moosburg
* Breites Freizeit- und Sportangebot, u. a. Sportvereine,
Rad- und Wanderwege sowie kulturelle Veranstaltungen
* Ruhige Wohnlage mit ländlichem Charakter und
gleichzeitig gute Erreichbarkeit der Metropolregion München
nordöstlich von München
* Gute Verkehrsanbindung über die B388
sowie die Nähe zur A92 (Richtung München-Deggendorf)
* Flughafen München in rund 20 Minuten erreichbar
* Bahnanschluss über die Nachbarorte Moosburg
und Langenbach mit direkter Verbindung nach München
* Attraktive Infrastruktur mit Einkaufsmöglichkeiten,
Restaurants, medizinischer Versorgung und Apotheken
* Vielfältiges Bildungsangebot: Kindergärten, Grund-
und Mittelschule direkt vor Ort, weiterführende Schulen
in Erding und Moosburg
* Breites Freizeit- und Sportangebot, u. a. Sportvereine,
Rad- und Wanderwege sowie kulturelle Veranstaltungen
* Ruhige Wohnlage mit ländlichem Charakter und
gleichzeitig gute Erreichbarkeit der Metropolregion München
Anbieter kontaktieren
Kontakt
| Telefon | 0871/43 04 17-0 |
| Fax | 0871/43 04 17-20 |
| Website | www.garant-immo.de |
