Teltow - Bauen im Musikerviertel
833.666 €
Kaufpreis
106 m²
Wohnfläche
6
Zimmer
immobilien.de Nr.: 9279604
Objektnummer: 195970
Preise & Kosten
| Kaufpreis | 833.666 € |
| Nebenkosten | keine Angabe |
Größe & Zustand
| Wohnfläche | 106 m² |
| Grundstücksfläche | 823 m² |
| Zimmer | 6 |
| Baujahr | 2025 |
| Verfügbar ab | keine Angabe |
| Zustand | Projektiert |
Energie
| Energieausweistyp | Bedarfsausweis |
| Endenergiebedarf | 30.00 |
| Wesentlicher Energieträger | Strom |
| Energieträger/Befeuerung | Luft-Wärme-Pumpe |
Objektbeschreibung
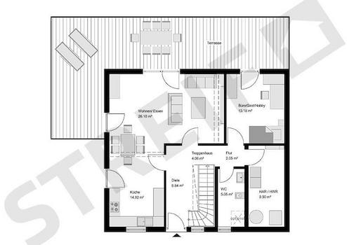
Willkommen in Ihrem neuen Traumhaus in Teltow! Dieses individuell geplante Einfamilienhaus im modernen Stil bietet Ihnen auf 106 m² Wohnfläche und zwei Etagen ausreichend Platz für Ihre Familie. Mit insgesamt sechs Zimmern, einem großzügigen Schlafzimmer, einem Badezimmer sowie einem zusätzlichen Gäste-WC, sind Sie optimal ausgestattet. Das großzügige Grundstück von 823 m² bietet Ihnen zudem viel Raum für kreative Gartengestaltung oder Spielmöglichkeiten für die Kinder. Bei STREIF legen wir großen Wert auf Ihre Wünsche und Vorstellungen, weshalb Sie direkt am Bauprozess teilnehmen können, um Ihr persönliches Wunschhaus zu verwirklichen. Von der ersten Beratung bis zur schlüsselfertigen Übergabe - wir begleiten Sie Schritt für Schritt auf dem Weg zu Ihrem neuen Zuhause.
Ausstattung
| Anzahl der Etagen im Haus | 2 |
| Bad | 1 |
Das Einfamilienhaus überzeugt durch eine gehobene Ausstattung und eine durchdachte Raumaufteilung. Die Verwendung einer umweltfreundlichen Wärmepumpe sorgt für eine effiziente Heizungs- und Warmwasserbereitung, die nicht nur nachhaltig ist, sondern auch Ihre Energiekosten langfristig senkt. Die Ausbaustufe "FastFertigPlus" beinhaltet bereits eine hochwertige Sanitär-Grundausstattung, sodass Sie bei der Erstellung Ihres Hauses mitarbeiten können, während alle haustechnischen Gewerke zuverlässig von Fachbetrieben übernommen werden. Hierbei profitieren Sie von der hohen Qualität und den modernen Standards, für die STREIF bekannt ist.
Sonstige Informationen
Bei STREIF haben Sie die Wahl zwischen vier verschiedenen Ausbaustufen, die es Ihnen ermöglichen, Ihr Traumhaus nach Ihren eigenen Vorstellungen zu gestalten. Die Ausbaustufe 3 - FastFertigPlus - ist ideal für alle, die eine gewisse Eigenleistung einbringen möchten, um Kosten zu sparen. Der Preis für das Haus vom Typ STREIF-City beginnt bei 344.375 EUR. Durch die Kombination aus individueller Planung und hochwertiger Ausführung garantieren wir Ihnen ein Zuhause, das ganz auf Ihre Bedürfnisse zugeschnitten ist.
Lage des Objektes
Das Grundstück liegt in einem ruhigen Wohngebiet in Teltow, das durch eine hervorragende Infrastruktur besticht. Einkaufsmöglichkeiten, Schulen und Kindergärten sind in unmittelbarer Nähe und bieten Ihnen eine hohe Lebensqualität. Zudem sind Freizeitmöglichkeiten wie Sporteinrichtungen, Parks und Wanderwege in der Umgebung vorhanden, die zu einem aktiven Lebensstil anregen. Die gute Anbindung an den öffentlichen Nahverkehr sowie die Nähe zu Berlin machen Teltow zu einem attraktiven Wohnort für Familien und Pendler.
Anbieter kontaktieren
Kontakt
| Telefon | 06551 12 00 |
| Mobil | +49 176 63463836 |
| Website | www.streif.de |
