NATURPARADIES NICHT NUR FÜR LIEBHABER: PROVISIONSFREIES ZWEIFAMILIENHAUS MIT VIELEN EXTRAS IN ENNEPETAL/RADEVORMWALD
489.500 €
Kaufpreis
159,27 m²
Wohnfläche
203,78 m²
Nutzfläche
6
Zimmer
immobilien.de Nr.: 9279587
Objektnummer: HS833
Preise & Kosten
| Kaufpreis | 489.500 € |
| Nebenkosten | keine Angabe |
| Kaufpreis pro m² | 1348,3 € |
Größe & Zustand
| Wohnfläche | 159,27 m² |
| Nutzfläche | 203,78 m² |
| Gesamtfläche | 363,05 m² |
| Grundstücksfläche | 6.071 m² |
| Zimmer | 6 |
| Baujahr | 1899 |
| Letzte Modernisierung | 2024 |
| Verfügbar ab | nach Vereinbarung |
| Zustand | Teil Vollrenovierungsbed |
Energie
| Energieausweistyp | Verbrauch |
| Ausstellungsdatum | 28. 09. 2025 |
| Gültig bis | 2035-09-27 |
| Baujahr (laut Energieausweis) | 1899 |
| Energieeffizienzklasse | F |
| Energieverbrauchkennwert | 176.70 kWh/(m²*a) |
| Heizungsart | Zentralheizung |
| Wesentlicher Energieträger | Fluessiggas |
| Energieträger/Befeuerung | Flüssiggas |
Objektbeschreibung
Das direkt an der Stadtgrenze Ennepetal zu Radevormwald gelegene Zweifamilienhaus wurde um 1899 in einer zweigeschossigen Fachwerkbauweise mit einer Teilunterkellerung auf einem ca. 6.071 m² großen, ebenerdigen Grundstück mit großem Hof, viel Wiese und ein bisschen Wald erbaut. Das Haus hat eine Wohnfläche von ca. 159,27 m², verteilt über zwei Etagen, zzgl. einem großen Speicher und Keller- sowie weiteren Räumen mit insgesamt ca. 203,78 m² Nutzfläche, die Sie zum Teil ausbauen können. Dazu gehört ein Anbau, in dem sich auf der zweiten Geschossebene ein großer Hobbyraum befindet (ca. 113,66 m²), der noch nicht ganz ausgebaut ist, sowie auf der Erdgeschossebene eine Garage mit angrenzenden Kellerräumen und drei weiteren übergroßen Garagen mit elektrisch betriebenen Sektionaltoren (ca. 90,12 m²). Auf dem Grundstück befinden sich außerdem zwei...
...Ein Lang-Exposé mit ausführlichen Angaben, Texten, Bildern und einem Grundriss finden Sie auf www.stennmanns.de.
Die Wohnung im Erdgeschoss mit ca. 82,67 m² Wohnfläche, einer Diele, einem großen Wohn-Esszimmer und einer offenen Küche, einem Badezimmer und einem Hauswirtschaftsraum wird zurzeit von den Hauseigentümern selbst genutzt und nach Vereinbarung frei, wie auch die vermietete Obergeschosswohnung mit ca. 76,60 m² und einem Wohn- und Esszimmer, einem Kinder- und einem Schlafzimmer, Küche, Diele und Bad. In das Wohnhaus wurde in den letzten Jahren einiges investiert und...
...Ein Lang-Exposé mit ausführlichen Angaben, Texten, Bildern und einem Grundriss finden Sie auf www.stennmanns.de.
Weitere Details im Überblick:
- Geschossdecken aus Holzbalkenlagen.
- Außenwände aus Holz-Fachwerk, ausgefacht mit Holblock- und Ziegelsteinen.
- Innenwände Holzfachwerk und Gipsdielen.
- Fassade aus Naturschiefer und Zinkwellblechen.
- Satteldach eingedeckt mit Betondachsteinen.
- Teilunterkellerung mit Gewölbe.
- Kunststoffprofilfenster mit Isolierverglasung aus 1998 und 2024.
- Außenrollladen aus Kunststoff.
- Erneuerte Kupfer- bzw. Kunststoffverrohrung.
- Flüssiggas betriebene Zentralheizung von Vaillant aus 1998.
- Eigener Flüssiggastank mit Wartungsvertrag.
- Warmwasserbereitung zentralen, gasbetriebenen Boiler.
- Internetfernsehanschluss.
- Internet mit SVDSL-Anschluss.
- Wasserversorgung über eigenen Tiefenbrunnen.
- Ein zweiter Brunnen zur Gartenbewässerung.
- Entsorgung über eine Grube mit Speicher und einem Graben.
Sie möchten gerne ländlich Wohnen, mit viel Natur und Grün in Ihrer direkten Umgebung? Dann überzeugen Sie sich bei einer Besichtigung über die Vorteile, welche Ihnen dieses Zweifamilienhaus mit großem Grundstück uns zahlreichen Extras zu bieten hat.
Senden Sie uns einfach Ihre Anfrage per Click auf den Anfrage-Button oder über www.stennmanns.de. Im Anschluss daran erhalten Sie ein ausführliches Exposé. Teilen Sie uns bitte mit, wenn Sie gerne einen Besichtigungstermin vereinbaren möchten. Sie können uns auch telefonisch unter 02195 6899788 erreichen. Das Team von Stennmanns Immobilienvermittlung freut sich auf das Gespräch mit Ihnen.
...Ein Lang-Exposé mit ausführlichen Angaben, Texten, Bildern und einem Grundriss finden Sie auf www.stennmanns.de.
Die Wohnung im Erdgeschoss mit ca. 82,67 m² Wohnfläche, einer Diele, einem großen Wohn-Esszimmer und einer offenen Küche, einem Badezimmer und einem Hauswirtschaftsraum wird zurzeit von den Hauseigentümern selbst genutzt und nach Vereinbarung frei, wie auch die vermietete Obergeschosswohnung mit ca. 76,60 m² und einem Wohn- und Esszimmer, einem Kinder- und einem Schlafzimmer, Küche, Diele und Bad. In das Wohnhaus wurde in den letzten Jahren einiges investiert und...
...Ein Lang-Exposé mit ausführlichen Angaben, Texten, Bildern und einem Grundriss finden Sie auf www.stennmanns.de.
Weitere Details im Überblick:
- Geschossdecken aus Holzbalkenlagen.
- Außenwände aus Holz-Fachwerk, ausgefacht mit Holblock- und Ziegelsteinen.
- Innenwände Holzfachwerk und Gipsdielen.
- Fassade aus Naturschiefer und Zinkwellblechen.
- Satteldach eingedeckt mit Betondachsteinen.
- Teilunterkellerung mit Gewölbe.
- Kunststoffprofilfenster mit Isolierverglasung aus 1998 und 2024.
- Außenrollladen aus Kunststoff.
- Erneuerte Kupfer- bzw. Kunststoffverrohrung.
- Flüssiggas betriebene Zentralheizung von Vaillant aus 1998.
- Eigener Flüssiggastank mit Wartungsvertrag.
- Warmwasserbereitung zentralen, gasbetriebenen Boiler.
- Internetfernsehanschluss.
- Internet mit SVDSL-Anschluss.
- Wasserversorgung über eigenen Tiefenbrunnen.
- Ein zweiter Brunnen zur Gartenbewässerung.
- Entsorgung über eine Grube mit Speicher und einem Graben.
Sie möchten gerne ländlich Wohnen, mit viel Natur und Grün in Ihrer direkten Umgebung? Dann überzeugen Sie sich bei einer Besichtigung über die Vorteile, welche Ihnen dieses Zweifamilienhaus mit großem Grundstück uns zahlreichen Extras zu bieten hat.
Senden Sie uns einfach Ihre Anfrage per Click auf den Anfrage-Button oder über www.stennmanns.de. Im Anschluss daran erhalten Sie ein ausführliches Exposé. Teilen Sie uns bitte mit, wenn Sie gerne einen Besichtigungstermin vereinbaren möchten. Sie können uns auch telefonisch unter 02195 6899788 erreichen. Das Team von Stennmanns Immobilienvermittlung freut sich auf das Gespräch mit Ihnen.
Ausstattung
| Anzahl der Etagen im Haus | 2 |
| Bad | 2 |
| Bad | Fenster, Dusche |
| Boden | Fliesen, Laminat, Dielen |
| Terrassen | 1 |
| Garage/Stellplätze | 5 |
| Dachboden | |
| Keller |
In der Eingangsdiele des Erdgeschosses ist eine schieferfarbene Fliese verlegt. Hier befinden sich u.a. ein praktischer Abstellraum sowie eine Garderobe. Ein offenes Holztreppenhaus führt zum Ober- und bis in das Speichergeschoss. Über eine Verbindungstüre in der Erdgeschosswohnung gelangen Sie in einen großen, offen gestalteten Wohn-, Ess- und Küchenbereich mit naturbehandeltem Fachwerk. Die Böden wurden mit einem Laminat im Buchendekor ausgelegt. Die Decke ist mit einer Holzpaneele und LED-Spots versehen. Das neuwertige Badezimmer verfügt über...
...Ein Lang-Exposé mit ausführlichen Angaben, Texten, Bildern und einem Grundriss finden Sie auf www.stennmanns.de.
Die Wohnung im Obergeschoss ist renovierungsbedürftig, verfügt aber ebenfalls über ein neuwertiges Badezimmer mit Fenster, Dusche, einer hellen Holzdecke mit LED-Spots, einer hellen Wand- und einer schieferfarbenen Bodenverfliesung. Die Küche ist ebenfalls mit einer schieferfarbenen Fliese ausgelegt und verfügt über neuwertige Fenster. Im Schlafzimmer ist ein halbumlaufender Einbauschrank integriert. Das Wohn- und Esszimmer mit offenem Holzfachwerk bietet viel Platz. Von hier haben Sie eine tolle Aussicht über das hintere Grundstück und Wiesen und Baumbestand. Ein großes Kinderzimmer wird zurzeit als...
...Ein Lang-Exposé mit ausführlichen Angaben, Texten, Bildern und einem Grundriss finden Sie auf www.stennmanns.de.
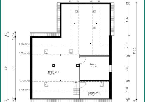
Viel Platz und Stauraum bietet auch ein großer Dachspeicher, erreichbar über das Treppenhaus. Drei Räume inkl. einer Werkstatt mit viel Zubehör und Übergang zu den Garagen bietet der nach hinten ausgerichtete Keller. Der gepflegte Gewölbekeller unter dem Haus ist aus Bruch- und Naturstein gebaut und bietet weitere Nutzungsmöglichkeiten.
...Ein Lang-Exposé mit ausführlichen Angaben, Texten, Bildern und einem Grundriss finden Sie auf www.stennmanns.de.
Die Wohnung im Obergeschoss ist renovierungsbedürftig, verfügt aber ebenfalls über ein neuwertiges Badezimmer mit Fenster, Dusche, einer hellen Holzdecke mit LED-Spots, einer hellen Wand- und einer schieferfarbenen Bodenverfliesung. Die Küche ist ebenfalls mit einer schieferfarbenen Fliese ausgelegt und verfügt über neuwertige Fenster. Im Schlafzimmer ist ein halbumlaufender Einbauschrank integriert. Das Wohn- und Esszimmer mit offenem Holzfachwerk bietet viel Platz. Von hier haben Sie eine tolle Aussicht über das hintere Grundstück und Wiesen und Baumbestand. Ein großes Kinderzimmer wird zurzeit als...
...Ein Lang-Exposé mit ausführlichen Angaben, Texten, Bildern und einem Grundriss finden Sie auf www.stennmanns.de.
Viel Platz und Stauraum bietet auch ein großer Dachspeicher, erreichbar über das Treppenhaus. Drei Räume inkl. einer Werkstatt mit viel Zubehör und Übergang zu den Garagen bietet der nach hinten ausgerichtete Keller. Der gepflegte Gewölbekeller unter dem Haus ist aus Bruch- und Naturstein gebaut und bietet weitere Nutzungsmöglichkeiten.
Sonstige Informationen
Es liegt ein Energieverbrauchsausweis vor.
Dieser ist gültig bis 27.9.2035.
Endenergieverbrauch beträgt 176.70 kwh/(m²*a).
Wesentlicher Energieträger der Heizung ist Flüssiggas.
Das Baujahr des Objekts lt. Energieausweis ist 1899.
Die Energieeffizienzklasse ist F.
Neugierig geworden? Finden Sie doch heraus, ob dieses Landhaus mit zwei abgeschlossenen Wohnungen und viel Zubehör das richtige für Sie ist. Vereinbaren Sie gleich einen Besichtigungstermin über den Anfrage-Button im Immobilienportal oder unter vermittlung@stennmanns.de. Sie können uns auch telefonisch unter 02195 6899788 erreichen. Das Team von Stennmanns steht Ihnen gerne zur Verfügung.
Preisangaben:
Der Kaufpreis des Zweifamilienhaus beträgt EUR 489.500,00 € inkl. mehrerer Pkw-Stellplätze und drei Garagen.
Die monatlichen Grundabgaben betragen monatlich EUR 72,02 (EUR 864,25 p.a.)
Hinweis zur Maklerprovision:
Für den Käufer ist dieses Immobilien-Angebot provisionsfrei.
Verkäufer-Service:
Sie möchten gerne Ihre Immobilie verkaufen, die Vermarktung aber nicht selbst übernehmen, sondern einen erfahrenen Immobilienmakler mit der Vermittlung beauftragen?
Dann würden wir uns über Ihre Kontaktaufnahme unter 02195-6899788 bzw. unter 02191-8900310 oder unter vermittlung@stennmanns.de sehr freuen. Im unverbindlichen Erstgespräch zeigen wir Ihnen gerne den Mehrwert und Ihre Vorteile auf, die Sie mit der Beauftragung von Stennmanns Immobilienvermittlung GmbH erhalten.
Käufer-Service:
Wir unterstützen Sie gerne kostenlos bei Ihrer Finanzierung, bankenneutral und unabhängig, mit den besten Konditionen, die der Finanzmarkt zurzeit zu bieten hat. Ihr Vorteil: Sie erhalten ein individuell auf Ihre persönliche Lebenssituation abgestimmtes Finanzierungskonzept mit besten Konditionen und Betreuung aus einer Hand.
Hatten Sie bereits ein Gespräch mit Ihrer Hausbank und kennen Sie Ihren finanziellen Spielraum bei einer Immobilien-Finanzierung? Ihre Hausbank kann Ihnen nur dieses eine Finanzierungsangebot unterbreiten. Wenn Sie Interesse an einem unabhängigem und bankenneutralen Finanzierungsangebot haben, könnten wir Ihnen auch hier gerne weiterhelfen und einen unverbindlichen Beratungstermin für Sie arrangieren.
Stennmanns Immobilienvermittlung GmbH ist u.a. Kooperationspartner von Lars Denner, Baufinanzierungsberatung in Wuppertal, Kompass Finance KG in Remscheid sowie von Dr. Klein Privatkunden AG mit Niederlassung in Schwelm und Wuppertal.
Wenn Sie auf der Suche nach einer passenden Bau- oder Anschlussfinanzierung sind, haben Sie mit unseren Kooperationspartnern den idealen Finanzierer gefunden. Wir teilen Ihnen gerne Ihren persönlichen Ansprechpartner mit. Dieser kommt auch zu Ihnen nach Hause.
Wir bringen Menschen zusammen und glücklich ans Ziel.
Haftungsausschluss & Rechtshinweis:
Sämtliche Angaben in diesem Exposé stammen von unserem Auftraggeber und/oder aus den Bauakten. Insbesondere die Angaben zum Baujahr der Immobilie und den Flächenangaben sind von Stennmanns Immobilienvermittlung GmbH nicht durch eigene Nachforschungen, durch Einsicht in die Bauakten oder durch eine eigene Flächenberechnung überprüft worden. Eine Gewähr für deren Richtigkeit sowie zum mängelfreien Zustand der Immobilie können wir nicht übernehmen. Daher erfolgt die Vermittlung der Immobilie unter Ausschluss jeglicher Sachmängelhaftung. Alle Angaben sind freibleibend. Zwischenvermittlung vorbehalten.
Dieser ist gültig bis 27.9.2035.
Endenergieverbrauch beträgt 176.70 kwh/(m²*a).
Wesentlicher Energieträger der Heizung ist Flüssiggas.
Das Baujahr des Objekts lt. Energieausweis ist 1899.
Die Energieeffizienzklasse ist F.
Neugierig geworden? Finden Sie doch heraus, ob dieses Landhaus mit zwei abgeschlossenen Wohnungen und viel Zubehör das richtige für Sie ist. Vereinbaren Sie gleich einen Besichtigungstermin über den Anfrage-Button im Immobilienportal oder unter vermittlung@stennmanns.de. Sie können uns auch telefonisch unter 02195 6899788 erreichen. Das Team von Stennmanns steht Ihnen gerne zur Verfügung.
Preisangaben:
Der Kaufpreis des Zweifamilienhaus beträgt EUR 489.500,00 € inkl. mehrerer Pkw-Stellplätze und drei Garagen.
Die monatlichen Grundabgaben betragen monatlich EUR 72,02 (EUR 864,25 p.a.)
Hinweis zur Maklerprovision:
Für den Käufer ist dieses Immobilien-Angebot provisionsfrei.
Verkäufer-Service:
Sie möchten gerne Ihre Immobilie verkaufen, die Vermarktung aber nicht selbst übernehmen, sondern einen erfahrenen Immobilienmakler mit der Vermittlung beauftragen?
Dann würden wir uns über Ihre Kontaktaufnahme unter 02195-6899788 bzw. unter 02191-8900310 oder unter vermittlung@stennmanns.de sehr freuen. Im unverbindlichen Erstgespräch zeigen wir Ihnen gerne den Mehrwert und Ihre Vorteile auf, die Sie mit der Beauftragung von Stennmanns Immobilienvermittlung GmbH erhalten.
Käufer-Service:
Wir unterstützen Sie gerne kostenlos bei Ihrer Finanzierung, bankenneutral und unabhängig, mit den besten Konditionen, die der Finanzmarkt zurzeit zu bieten hat. Ihr Vorteil: Sie erhalten ein individuell auf Ihre persönliche Lebenssituation abgestimmtes Finanzierungskonzept mit besten Konditionen und Betreuung aus einer Hand.
Hatten Sie bereits ein Gespräch mit Ihrer Hausbank und kennen Sie Ihren finanziellen Spielraum bei einer Immobilien-Finanzierung? Ihre Hausbank kann Ihnen nur dieses eine Finanzierungsangebot unterbreiten. Wenn Sie Interesse an einem unabhängigem und bankenneutralen Finanzierungsangebot haben, könnten wir Ihnen auch hier gerne weiterhelfen und einen unverbindlichen Beratungstermin für Sie arrangieren.
Stennmanns Immobilienvermittlung GmbH ist u.a. Kooperationspartner von Lars Denner, Baufinanzierungsberatung in Wuppertal, Kompass Finance KG in Remscheid sowie von Dr. Klein Privatkunden AG mit Niederlassung in Schwelm und Wuppertal.
Wenn Sie auf der Suche nach einer passenden Bau- oder Anschlussfinanzierung sind, haben Sie mit unseren Kooperationspartnern den idealen Finanzierer gefunden. Wir teilen Ihnen gerne Ihren persönlichen Ansprechpartner mit. Dieser kommt auch zu Ihnen nach Hause.
Wir bringen Menschen zusammen und glücklich ans Ziel.
Haftungsausschluss & Rechtshinweis:
Sämtliche Angaben in diesem Exposé stammen von unserem Auftraggeber und/oder aus den Bauakten. Insbesondere die Angaben zum Baujahr der Immobilie und den Flächenangaben sind von Stennmanns Immobilienvermittlung GmbH nicht durch eigene Nachforschungen, durch Einsicht in die Bauakten oder durch eine eigene Flächenberechnung überprüft worden. Eine Gewähr für deren Richtigkeit sowie zum mängelfreien Zustand der Immobilie können wir nicht übernehmen. Daher erfolgt die Vermittlung der Immobilie unter Ausschluss jeglicher Sachmängelhaftung. Alle Angaben sind freibleibend. Zwischenvermittlung vorbehalten.
Lage des Objektes
Das Zweifamilienhaus befindet sich an der Stadtgrenze Ennepetal zu Radevormwald, entlang der B483, in einer naturnahen, ländlich geprägten und daher kinder- und Familienfreundlichen Wohnlage. In nur ca. 10 Minuten gelangen Sie von hieraus mit dem Pkw in das Stadtzentrum von Radevormwald. In ca. 15 Minuten Fahrzeit sind Sie in der Ennepetaler Innenstadt. In der näheren Umgebung des Hauses und mit großem Abstand befinden sich nur wenige...
...Ein Lang-Exposé mit ausführlichen Angaben, Texten, Bildern und einem Grundriss finden Sie auf www.stennmanns.de.
...Ein Lang-Exposé mit ausführlichen Angaben, Texten, Bildern und einem Grundriss finden Sie auf www.stennmanns.de.
Anbieter kontaktieren
Anbieter
Stennmanns Immobilienvermittlung GmbH
Max-Planck-Straße 1
42477 Radevormwald
Kontakt
| Telefon | 004921956899788 |
| Fax | 004921959277555 |
| Website | www.stennmanns.de |
