Tolles Einfamilienhaus in Utzberg
440.000 €
Kaufpreis
167 m²
Wohnfläche
5
Zimmer
immobilien.de Nr.: 9271795
Objektnummer: UTZFA1
Preise & Kosten
| Kaufpreis | 440.000 € |
| Nebenkosten | keine Angabe |
Größe & Zustand
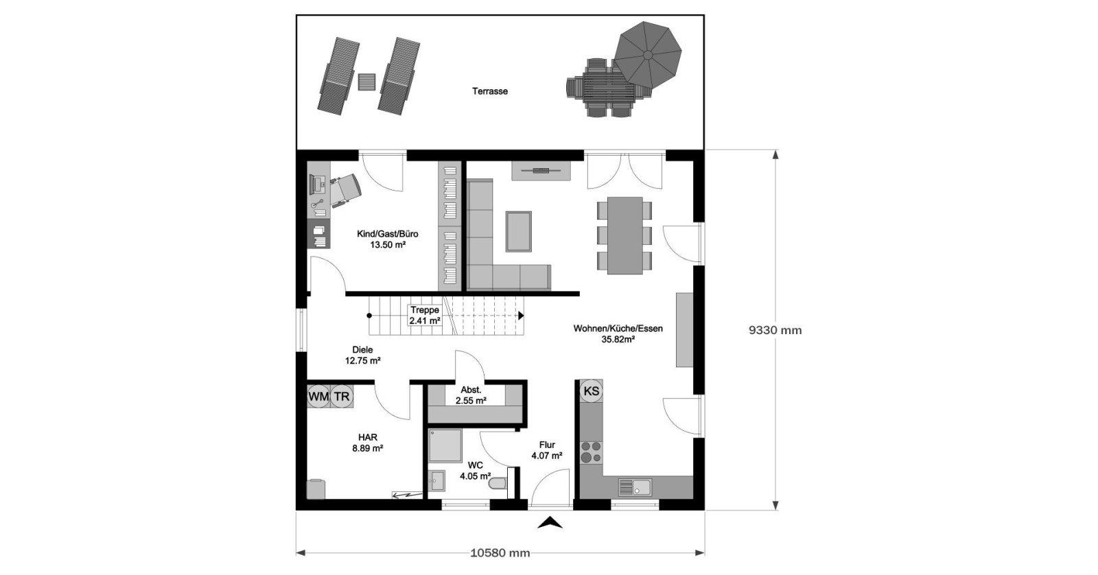
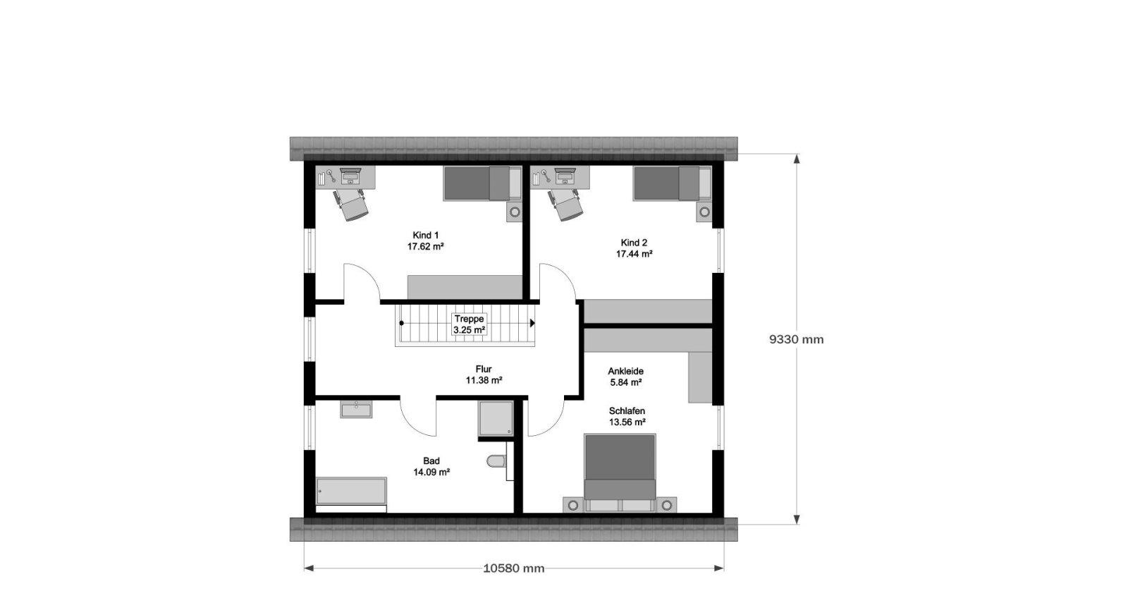
| Wohnfläche | 167 m² |
| Grundstücksfläche | 600 m² |
| Zimmer | 5 |
| Verfügbar ab | keine Angabe |
| Zustand | Projektiert |
Objektbeschreibung
Willkommen in Ihrem zukünftigen Traumhaus in Utzberg! Dieses individuell geplante Einfamilienhaus bietet Ihnen mit seinen 5 Zimmern und einer großzügigen Wohnfläche von 167 m² genügend Raum für die ganze Familie. Auf einem großzügigen Grundstück von 600 m² erstreckt sich das Haus über zwei Etagen und überzeugt durch ein durchdachtes Raumkonzept, das Ihnen sowohl Rückzugsmöglichkeiten als auch gesellige Bereiche bietet. Genießen Sie den Komfort von 3 Schlafzimmern, 2 modernen Badezimmern und einem zusätzlichen Gäste-WC. Bei STREIF haben Sie die Möglichkeit, Ihr Haus ganz nach Ihren Vorstellungen zu gestalten. Von der Wahl des Dachtyps, sei es Walmdach, Flachdach oder klassisches Satteldach, bis hin zu den Optionen für Keller und Geschosse - wir planen gemeinsam mit Ihnen Ihr perfektes Zuhause! Vor dem Bau steht eine ausführliche Beratung, in der wir Ihre Wünsche und Vorstellungen ermitteln, um den Grundriss zu entwickeln, der Ihren Anforderungen gerecht wird. Erst wenn Sie vollkommen zufrieden sind, starten wir mit der Umsetzung, die wir innerhalb weniger Monate realisieren.
Ausstattung
| Anzahl der Etagen im Haus | 2 |
| Bad | 2 |
| Terrassen | 2 |
Dieses Einfamilienhaus wird in der Ausbaustufe 3 - FastFertigPlus angeboten. Diese Ausbaustufe umfasst eine hochwertige Sanitär-Grundausstattung, während Sie die Möglichkeit haben, sich aktiv am Bau zu beteiligen. Die haustechnischen Gewerke wie Heizung, Lüftung, Sanitär und Estrich werden von erfahrenen Fachbetrieben erledigt, was Ihnen höchste Qualität und Sicherheit garantiert. Durch die Eigenleistung in Form einer Muskelhypothek sparen Sie Kosten und reduzieren Ihre Kreditlast.
Sonstige Informationen
Wir bieten Ihnen vier verschiedene Ausbaustufen, damit Sie Ihr Traumhaus nach Ihren Wünschen gestalten können. In der Ausbaustufe 3 - FastFertigPlus erhalten Sie eine Sanitär-Grundausstattung und die Möglichkeit, beim Bau aktiv mitzuwirken. Unser Ziel ist es, Ihnen ein schlüsselfertiges oder in der von Ihnen gewählten Ausbaustufe fertiggestelltes Haus zu übergeben, das Ihren Ansprüchen gerecht wird. Die Eigenleistung kann Ihnen helfen, die Baukosten zu optimieren und die finanzielle Belastung zu reduzieren.
Lage des Objektes
Das Einfamilienhaus befindet sich in Utzberg, einem attraktiven Standort, der eine hervorragende Infrastruktur bietet. Hier profitieren Sie von einer ruhigen und familienfreundlichen Umgebung, die gleichzeitig eine gute Anbindung an die umliegenden Städte gewährleistet. Einkaufsmöglichkeiten, Schulen und Freizeitmöglichkeiten sind in unmittelbarer Nähe und tragen zu einer hohen Lebensqualität bei. Die Natur rund um Gaberndorf lädt zu erholsamen Spaziergängen und Outdoor-Aktivitäten ein, was dieses Gebiet besonders lebenswert macht.
