Gehobener Wohntraum inkl. Grundstück + 10.000EUR KÜCHENGUTSCHEIN
439.995 €
Kaufpreis
168 m²
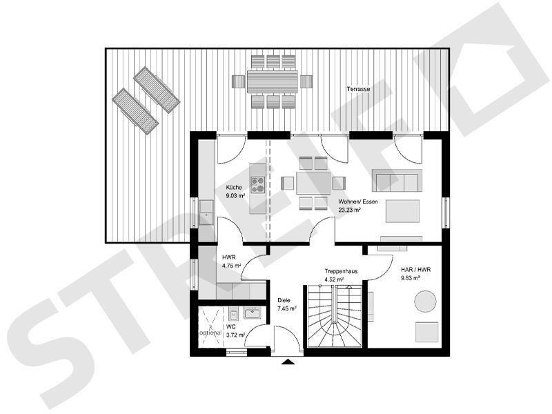
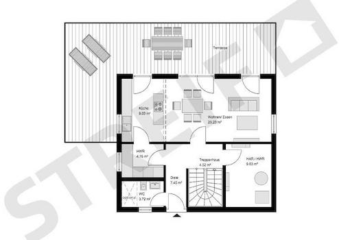
Wohnfläche
6
Zimmer
immobilien.de Nr.: 9270006
Objektnummer: EFHWARM2
Kaufpreis
| Kaufpreis | 439.995 € |
Wohnfläche, Grundstück & Bausubstanz
| Wohnfläche | 168 m² |
| Grundstücksfläche | 940 m² |
| Zimmer | 6 |
| Verfügbar ab | keine Angabe |
| Zustand | Projektiert |
Energie
| Energietyp | KfW-40 |
| Heizungsart | Zentralheizung |
| Energieträger/Befeuerung | Luft-Wärme-Pumpe |
Beschreibung der Immobilie
Willkommen in Ihrem neuen Traumhaus in Warmensteinach! Dieses individuell geplante Einfamilienhaus erfüllt all Ihre Wünsche und Vorstellungen. Auf großzügigen 168 m² Wohnfläche bietet es ausreichend Platz für die ganze Familie und überzeugt mit einem durchdachten Raumkonzept. Mit insgesamt 6 Zimmern, darunter 3 Schlafzimmer, einem Badezimmer und einem zusätzlichen Gäste-WC, finden Sie hier den idealen Rückzugsort für jeden Familienmitglied. Das moderne Design kombiniert mit einem komfortablen Lebensstil macht dieses Haus zu einem Ort, an dem Sie sich rundum wohlfühlen werden. Durch die zwei Etagen haben Sie die Flexibilität, die Sie für Ihr Familienleben benötigen. Der Bau erfolgt nach dem KFW40 Standard, was Ihnen nicht nur ein nachhaltiges Wohnen, sondern auch geringe Energiekosten garantiert.
Ausstattungsmerkmale
| Anzahl der Etagen im Haus | 2 |
| Bad | 1 |
Das Haus wird in der Ausbaustufe 3 - FastFertigPlus angeboten, was bedeutet, dass die Sanitär-Grundausstattung bereits enthalten ist. Sie können aktiv am Bau Ihres Hauses mitarbeiten und gleichzeitig die wichtigen haustechnischen Gewerke wie Heizungs-, Lüftungs-, Sanitärinstallationen und Estrich einem Fachbetrieb überlassen. Die Befeuerungsart erfolgt durch eine effiziente Wärmepumpe, die nicht nur umweltfreundlich ist, sondern auch für angenehme Temperaturen in Ihrem neuen Zuhause sorgt. Diese Technologie trägt dazu bei, die Energiekosten gering zu halten und gleichzeitig eine hohe Energieeffizienz zu gewährleisten. Die hochwertige Bauausführung und die Auswahl erstklassiger Materialien garantieren Ihnen Langlebigkeit und Komfort.
Sonstige Informationen
Mit STREIF haben Sie die Möglichkeit, zwischen vier verschiedenen Ausbaustufen zu wählen, sodass Sie diejenige auswählen können, die am besten zu Ihren Bedürfnissen passt. Die Standard-Ausbaustufe ist Fast-Fertig Plus, die für eine optimale Balance zwischen Eigenleistung und professioneller Ausführung sorgt. Bei einem ausführlichen Beratungsgespräch ermitteln wir gemeinsam Ihre spezifischen Wünsche und Vorstellungen, um Ihr individuelles Traumhaus zu realisieren. Wir begleiten Sie von der Planung bis zur schlüsselfertigen Übergabe, sodass Sie sich entspannt zurücklehnen können, während wir Ihr Zuhause innerhalb weniger Monate für Sie umsetzen.
Karte wird geladen...
Objektstandort
95485 Warmensteinach
Lage & Infrastruktur
Objektstandort
95485 Warmensteinach
Das Einfamilienhaus befindet sich in der malerischen Gemeinde Warmensteinach, umgeben von einer wunderschönen Naturlandschaft, die zu zahlreichen Freizeitaktivitäten einlädt. Die Lage bietet Ihnen eine hervorragende Anbindung an die umliegenden Städte und eine gute Infrastruktur mit Schulen, Einkaufsmöglichkeiten und Freizeitangeboten in unmittelbarer Nähe. Hier können Sie die Ruhe der Natur genießen und gleichzeitig von den Annehmlichkeiten des urbanen Lebens profitieren. Ideal für Naturliebhaber und Familien, die Wert auf ein harmonisches Wohnumfeld legen.
Kontaktanfrage senden
Über den Anbieter
STREIF Haus GmbH
Josef-Streif-Straße 1
54595 Weinsheim
Kontakt
| Mobil | +49 151 53746189 |
| Website | www.streif.de |
Ansprechpartner/in
Herr Justin Kroll