Familientraum inkl. Grundstück + 10.000EUR KÜCHENGUTSCHEIN
344.995 €
Kaufpreis
120 m²
Wohnfläche
5
Zimmer
immobilien.de Nr.: 9269993
Objektnummer: EFHWARM
Preise & Kosten
| Kaufpreis | 344.995 € |
| Nebenkosten | keine Angabe |
Größe & Zustand
| Wohnfläche | 120 m² |
| Grundstücksfläche | 550 m² |
| Zimmer | 5 |
| Verfügbar ab | keine Angabe |
| Zustand | Projektiert |
Energie
| Energietyp | KfW-40 |
| Heizungsart | Zentralheizung |
| Energieträger/Befeuerung | Luft-Wärme-Pumpe |
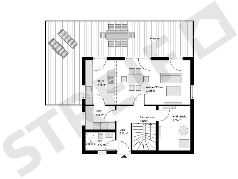
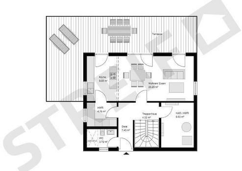
Objektbeschreibung
Willkommen in Ihrem neuen Traumhaus in Warmensteinach! Dieses wunderschöne Einfamilienhaus, projektiert nach Ihren individuellen Wünschen, bietet Ihnen alles, was Sie für ein komfortables und modernes Leben benötigen. Mit einer großzügigen Wohnfläche von 120 m² und einem durchdachten Raumkonzept, das 5 Zimmer, 3 Schlafzimmer, ein Badezimmer sowie ein zusätzliches Gäste-WC umfasst, genießen Sie hier viel Platz für die ganze Familie. Das Haus erstreckt sich über 2 Etagen und bietet Ihnen durch die Gestaltung mit einem Walmdach, Flachdach oder klassischen Satteldach zahlreiche architektonische Möglichkeiten. Durch die Verwendung einer effizienten Wärmepumpe als Befeuerungsart entsprechen Sie dem KFW40 Standard, was nicht nur umweltfreundlich ist, sondern auch Ihre Energiekosten nachhaltig senkt. Vor dem Bau Ihres Hauses steht eine ausführliche Beratung, in der wir Ihre Vorstellungen und Wünsche ermitteln. Anschließend planen wir Ihr Traumhaus maßgeschneidert, sodass es ganz genau Ihren Erwartungen entspricht. Nach Ihrer vollständigen Zufriedenheit mit dem entworfenen Grundriss setzen wir die Umsetzung innerhalb weniger Monate in die Tat um.
Ausstattung
| Anzahl der Etagen im Haus | 2 |
| Bad | 1 |
Dieses Einfamilienhaus überzeugt durch die Ausbaustufe "FastFertigPlus", die Ihnen eine Sanitär-Grundausstattung bietet. Hierbei können Sie aktiv mitarbeiten und Ihre Eigenleistung in Form einer Muskelhypothek einbringen. Die haustechnischen Gewerke wie Heizung, Lüftung, Sanitär und Estrich werden von erfahrenen Fachbetrieben erledigt, sodass Sie sich auf höchste Qualität verlassen können. Die Ausstattung ist nicht nur funktional, sondern auch hochwertig, um Ihnen maximalen Komfort zu garantieren. Zu den weiteren Highlights zählen die großzügigen Fenster, die viel Tageslicht hereinlassen, sowie die moderne Haustechnik, die Ihr Zuhause zukunftssicher macht.
Sonstige Informationen
Das Projekt umfasst die Ausbaustufe 3 - FastFertigPlus, die Ihnen eine umfassende Sanitär-Grundausstattung bietet. Neben der Standardausbaustufe haben Sie zudem die Möglichkeit, zwischen verschiedenen Ausbaustufen zu wählen, die Ihnen erlauben, Ihre Eigenleistung zu integrieren und somit Kosten zu sparen. STREIF bietet Ihnen die Option, Ihr Einfamilienhaus schlüsselfertig oder in der gewünschten Ausbaustufe zu übergeben, sodass Sie ganz nach Ihren Bedürfnissen und finanziellen Möglichkeiten entscheiden können.
Lage des Objektes
Das Einfamilienhaus befindet sich in der idyllischen Gemeinde Warmensteinach, die für ihre wunderschöne Natur und eine hohe Lebensqualität bekannt ist. Umgeben von malerischen Landschaften bietet dieser Standort nicht nur Ruhe und Erholung, sondern auch eine ausgezeichnete Anbindung an die Infrastruktur. Einkaufsmöglichkeiten, Schulen sowie Freizeitmöglichkeiten wie Wander- und Radwege sind in unmittelbarer Nähe. Ideal für Familien, die die Natur lieben und gleichzeitig die Vorzüge einer gut angebundenen Lage schätzen.
