Gehobener Wohntraum inkl. Grundstück + 10.000EUR KÜCHENGUTSCHEIN
529.995 €
Kaufpreis
168 m²
Wohnfläche
6
Zimmer
immobilien.de Nr.: 9269369
Objektnummer: EFHBAYR2
Preise & Kosten
| Kaufpreis | 529.995 € |
| Nebenkosten | keine Angabe |
Größe & Zustand
| Wohnfläche | 168 m² |
| Grundstücksfläche | 550 m² |
| Zimmer | 6 |
| Verfügbar ab | keine Angabe |
| Zustand | Projektiert |
Energie
| Energietyp | KfW-40 |
| Heizungsart | Zentralheizung |
| Energieträger/Befeuerung | Luft-Wärme-Pumpe |
Objektbeschreibung
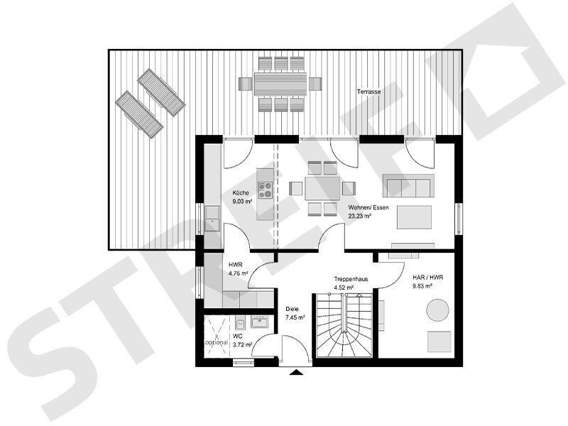
Willkommen in Ihrem zukünftigen Traumhaus in Bayreuth! Dieses großzügige Einfamilienhaus mit 6 Zimmern und einer Wohnfläche von 168 m² wird ganz nach Ihren individuellen Wünschen projektiert. Auf einem 550 m² großen Grundstück erstreckt sich das Haus über zwei Etagen und bietet Ihnen mit 3 Schlafzimmern, einem modernen Badezimmer und einem zusätzlichen Gäste-WC ausreichend Platz für die ganze Familie. Das durchdachte Baukonzept ermöglicht es Ihnen, aktiv an der Erstellung Ihres Hauses mitzuwirken, während die haustechnischen Gewerke von Fachbetrieben erledigt werden. Mit der Ausbaustufe "FastFertigPlus" genießen Sie eine hochwertige Sanitär-Grundausstattung und können sich auf ein Zuhause freuen, das sowohl funktional als auch stilvoll ist.
Ausstattung
| Anzahl der Etagen im Haus | 2 |
| Bad | 1 |
Das Einfamilienhaus wird mit einer innovativen Wärmepumpe beheizt, die nicht nur energieeffizient, sondern auch umweltfreundlich ist. Der Energietyp entspricht dem KFW40 Standard, was bedeutet, dass Ihr neues Zuhause besonders energiesparend ist und Ihnen hilft, die Nebenkosten zu senken. Die Ausbaustufe "FastFertigPlus" beinhaltet eine hochwertige Sanitär-Grundausstattung, sodass Sie schon beim Einzug auf moderne Badezimmereinrichtungen zurückgreifen können. Die bauliche Ausführung ist von höchster Qualität und sorgt für Langlebigkeit und Wertbeständigkeit.
Sonstige Informationen
In Zusammenarbeit mit STREIF haben Sie die Möglichkeit, zwischen verschiedenen Ausbaustufen zu wählen. Das hier angebotene Objekt umfasst die Ausbaustufe 3 - "FastFertigPlus", bei der Sie die Möglichkeit haben, Eigenleistungen in Form einer Muskelhypothek zu erbringen, um Kosten zu sparen. Diese Ausbaustufe bietet Ihnen eine solide Grundausstattung, während Sie die Kontrolle über weitere Details behalten. Vor dem Bau steht eine umfassende Beratung, um Ihre Vorstellungen und Wünsche zu ermitteln, gefolgt von einer maßgeschneiderten Planung Ihres Einfamilienhauses.
Lage des Objektes
Das Einfamilienhaus befindet sich in der schönen Stadt Bayreuth, die für ihre kulturellen Veranstaltungen und eine hohe Lebensqualität bekannt ist. Die Lage bietet eine hervorragende Infrastruktur mit Schulen, Einkaufsmöglichkeiten und Freizeitangeboten in unmittelbarer Nähe. Ob Parks, Sportanlagen oder kulturelle Highlights - in Bayreuth finden Sie alles, was das Herz begehrt. Zudem ist die Anbindung an öffentliche Verkehrsmittel und die Erreichbarkeit von umliegenden Städten optimal.
