Sanierte vermietete Wohnung mit moderner Heiztechnik Bonn
417.400 €
Kaufpreis
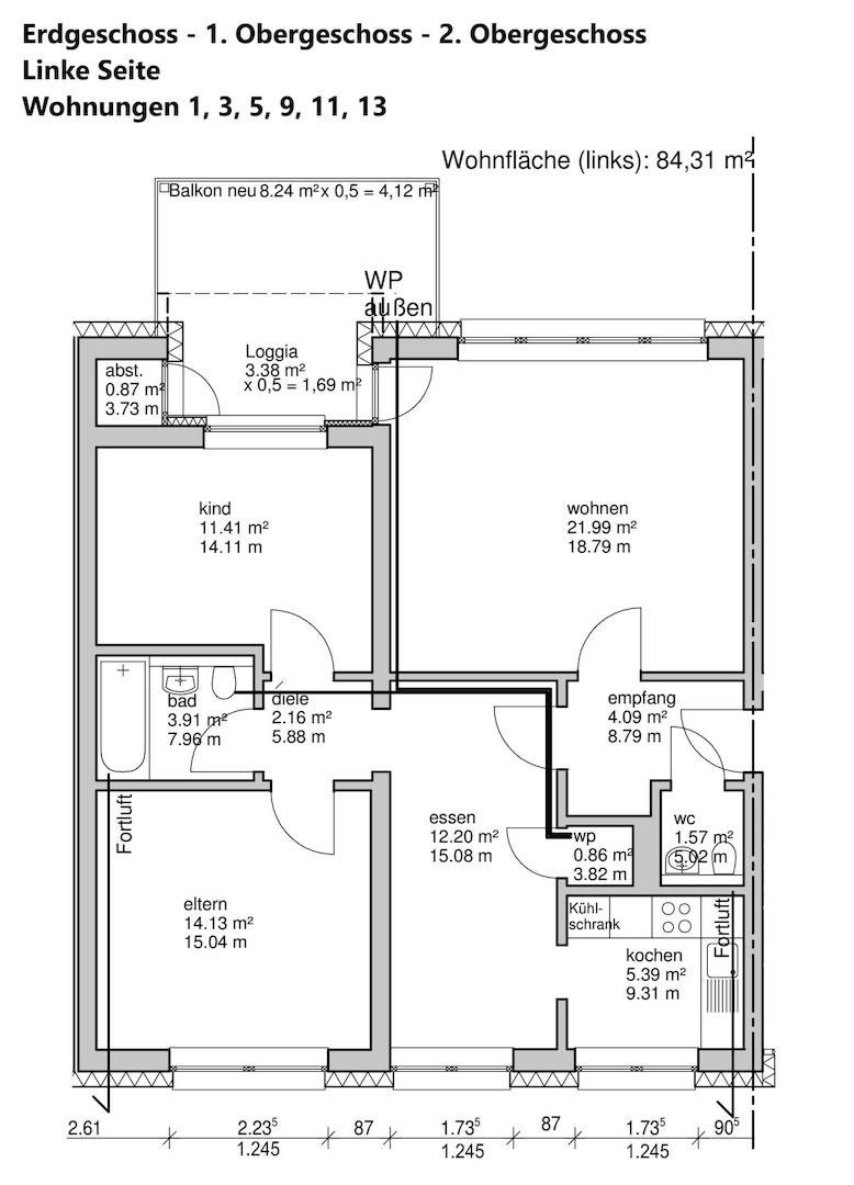
84,31 m²
Wohnfläche
3
Zimmer
immobilien.de Nr.: 9239510
Objektnummer: ETWBOV111
Kaufpreis
| Kaufpreis | 417.400 € |
Wohnfläche, Grundstück & Bausubstanz
| Wohnfläche | 84,31 m² |
| Fläche teilbar ab | 84,31 m² |
| Zimmer | 3 |
| Baujahr | 1974-2023 |
| Verfügbar ab | keine Angabe |
Energie
| Energieausweistyp | Bedarfsausweis |
| Ausstellungsdatum | 22. 05. 2024 |
| Gültig bis | 22.05.2034 |
| Baujahr (laut Energieausweis) | 1972 - 2023 |
| Energieeffizienzklasse | A+ |
| Energietyp | Neubaustandard |
| Endenergiebedarf | 26,30 |
| Heizungsart | Etagenheizung |
| Wesentlicher Energieträger | Luft/wasser-Wärmepumpe |
| Energieträger/Befeuerung | Luft-Wärme-Pumpe |
Beschreibung der Immobilie
Hohe Heizkosten ? – Nein Danke ! Vollständig sanierte gut aufgeteilte Eigentumswohnung mit moderner Heiztechnik im KFW 55 Energiesparhaus in gefragter Wohnlage in Bonn-Endenich
Umbau/Sanierung/Erweiterung und Aufstockung von 2 Gebäuden mit attraktiven Eigentumswohnungen mit moderner Technik in gefragter Wohnlage Bonn-Endenich mit guter Infrastruktur und viel Grün. Durch die hochwertige Außenisolierung, die 3-fach-Verglasung der Fenster und die moderne Beheizung mit wohnungsbezogenen Wärmepumpen in Verbindung mit Fußbodenheizung werden hier sehr niedrige Energiekosten bzw. Hausgeldkosten entstehen. Die Wärmepumpen haben auch für den Sommer eine Kühlfunktion zum Temperieren. Gleichermaßen erfolgt die Warmwasserbereitung über die Wärmepumpe entsprechend dem persönlichen Bedarf. Jeder Wohnungsnutzer kann mit seiner eigenen Wärmepumpe entsprechend den persönlichen Bedürfnissen heizen oder kühlen und rechnet seine Kosten direkt mit dem Versorger seiner Wahl ab. Hierdurch werden die Kosten eines Serviceunternehmens zur Heizkostenabrechnung gespart. Bei der Konzeption der Gebäude wurde besonderer Wert auf günstige Betriebs - und Folgekosten gelegt. Neben dem besonderen Heizsystem sind daher auch keine Aufzüge vorhanden. Der gute Energiestandard wird auch durch die Energieausweise mit der Klasse A + dokumentiert. Die Wohnungen wurden bis auf das Mauerwerk zurückgeführt. Das Dachgeschoß ist durch Aufstockung des vorhandenen Flachdachgebäudes vollständig neu entstanden. Alle Leitungen für Elektro, Heizung und Sanitär wurden vollständig erneuert. Gleichermaßen haben die Wohnungen einen neuen Estrich mit guten Schallschutzwerten erhalten. Alle Räume werden mit einer modernen Fußbodenheizung mit Einzelraumsteuerung entsprechend dem persönlichen Wohlbefinden durch die modernen Wärmepumpen vom Typ Daikin beheizt bzw. temperiert. Ebenso wird die Warmwasserversorgung durch die wohnungsbezogenen Wärmepumpen kostengünstig ausgeführt. Sie können bei der Versorgung der Wärmepumpen durch die vorhandenen 2 Stromzähler je Wohnung den günstigen Wärmepumpenstrom nutzen. Durch diese moderne Technik werden die Kosten eines Serviceanbieters für die Heizkostenabrechnungen erspart. Es ist eine gerechte Heizkostenzahlung garantiert. Ebenso wurden die Bodenbeläge als Vinylboden, Fliesen, Türen, Sanitärgegenstände und Malerarbeiten werden vollständig erneuert. Die großzügigen Balkone haben attraktive Glasgeländer erhalten, die der Wohnanlage eine schöne Optik geben.
Durch die hochwertige Sanierung und die interessante gefragte Lage ist eine hohe Wohnqualität gegeben. Zu jeder Wohnung gehört ein geräumiger Kellerraum. Ebenso sind je Haus ein Waschraum, ein Trockenraum sowie ein Fahrradraum mit separatem Zugang vorhanden.
Das Angebot bezieht sich auf die Wohnung 11 im 1. Obergeschoß des Hauses 11. Die Wohnung besteht aus dem attraktiven Wohnraum mit Zugang zum großzügigen Balkon. Von der zentralen Diele erreichen Sie das geräumige Elternschlafzimmer, das schönen Kinderzimmer/Büro, die Küche mit vorgelagertem Essplatz. Die Küche verfügt über eine Einbauküche. Das moderne Wannenbad, das Gäste-WC sowie der Abstellraum vervollständigen das Angebot.
Die Wohnfläche beträgt ca. 84,31 m².
Die Wohnung ist derzeit vermietet. Die Mieter bewohnen diese Wohnung seit Ende 2023 und haben von Mietvertrag von 28.12.2000 für eine andere Wohnung im Objekt entsprechend ergänzt. Eine Eigenbedarfskündigung ist entsprechend den gesetzlichen Bestimmungen möglich. Fragen Sie hier Ihren Anwalt.
Es besteht die Möglichkeit Fahrradboxen mit Stromanschluß für 6.000 EUR zu erwerben
Umbau/Sanierung/Erweiterung und Aufstockung von 2 Gebäuden mit attraktiven Eigentumswohnungen mit moderner Technik in gefragter Wohnlage Bonn-Endenich mit guter Infrastruktur und viel Grün. Durch die hochwertige Außenisolierung, die 3-fach-Verglasung der Fenster und die moderne Beheizung mit wohnungsbezogenen Wärmepumpen in Verbindung mit Fußbodenheizung werden hier sehr niedrige Energiekosten bzw. Hausgeldkosten entstehen. Die Wärmepumpen haben auch für den Sommer eine Kühlfunktion zum Temperieren. Gleichermaßen erfolgt die Warmwasserbereitung über die Wärmepumpe entsprechend dem persönlichen Bedarf. Jeder Wohnungsnutzer kann mit seiner eigenen Wärmepumpe entsprechend den persönlichen Bedürfnissen heizen oder kühlen und rechnet seine Kosten direkt mit dem Versorger seiner Wahl ab. Hierdurch werden die Kosten eines Serviceunternehmens zur Heizkostenabrechnung gespart. Bei der Konzeption der Gebäude wurde besonderer Wert auf günstige Betriebs - und Folgekosten gelegt. Neben dem besonderen Heizsystem sind daher auch keine Aufzüge vorhanden. Der gute Energiestandard wird auch durch die Energieausweise mit der Klasse A + dokumentiert. Die Wohnungen wurden bis auf das Mauerwerk zurückgeführt. Das Dachgeschoß ist durch Aufstockung des vorhandenen Flachdachgebäudes vollständig neu entstanden. Alle Leitungen für Elektro, Heizung und Sanitär wurden vollständig erneuert. Gleichermaßen haben die Wohnungen einen neuen Estrich mit guten Schallschutzwerten erhalten. Alle Räume werden mit einer modernen Fußbodenheizung mit Einzelraumsteuerung entsprechend dem persönlichen Wohlbefinden durch die modernen Wärmepumpen vom Typ Daikin beheizt bzw. temperiert. Ebenso wird die Warmwasserversorgung durch die wohnungsbezogenen Wärmepumpen kostengünstig ausgeführt. Sie können bei der Versorgung der Wärmepumpen durch die vorhandenen 2 Stromzähler je Wohnung den günstigen Wärmepumpenstrom nutzen. Durch diese moderne Technik werden die Kosten eines Serviceanbieters für die Heizkostenabrechnungen erspart. Es ist eine gerechte Heizkostenzahlung garantiert. Ebenso wurden die Bodenbeläge als Vinylboden, Fliesen, Türen, Sanitärgegenstände und Malerarbeiten werden vollständig erneuert. Die großzügigen Balkone haben attraktive Glasgeländer erhalten, die der Wohnanlage eine schöne Optik geben.
Durch die hochwertige Sanierung und die interessante gefragte Lage ist eine hohe Wohnqualität gegeben. Zu jeder Wohnung gehört ein geräumiger Kellerraum. Ebenso sind je Haus ein Waschraum, ein Trockenraum sowie ein Fahrradraum mit separatem Zugang vorhanden.
Das Angebot bezieht sich auf die Wohnung 11 im 1. Obergeschoß des Hauses 11. Die Wohnung besteht aus dem attraktiven Wohnraum mit Zugang zum großzügigen Balkon. Von der zentralen Diele erreichen Sie das geräumige Elternschlafzimmer, das schönen Kinderzimmer/Büro, die Küche mit vorgelagertem Essplatz. Die Küche verfügt über eine Einbauküche. Das moderne Wannenbad, das Gäste-WC sowie der Abstellraum vervollständigen das Angebot.
Die Wohnfläche beträgt ca. 84,31 m².
Die Wohnung ist derzeit vermietet. Die Mieter bewohnen diese Wohnung seit Ende 2023 und haben von Mietvertrag von 28.12.2000 für eine andere Wohnung im Objekt entsprechend ergänzt. Eine Eigenbedarfskündigung ist entsprechend den gesetzlichen Bestimmungen möglich. Fragen Sie hier Ihren Anwalt.
Es besteht die Möglichkeit Fahrradboxen mit Stromanschluß für 6.000 EUR zu erwerben
Ausstattungsmerkmale
| Küche | Einbauküche |
| Bad | 1 |
| Bad | Wanne |
| Boden | Fliesen |
Vollständig sanierte gut aufgeteilte Eigentumswohnung mit moderner Heiztechnik im KFW 55 Energiesparhaus in gefragter Wohnlage in Bonn-Endenich
Umbau/Sanierung/Erweiterung und Aufstockung von 2 Gebäuden mit attraktiven Eigentumswohnungen mit moderner Technik in gefragter Wohnlage Bonn-Endenich mit guter Infrastruktur und viel Grün. Durch die hochwertige Außenisolierung, die 3-fach-Verglasung der Fenster und die moderne Beheizung mit wohnungsbezogenen Wärmepumpen in Verbindung mit Fußbodenheizung werden hier sehr niedrige Energiekosten bzw. Hausgeldkosten entstehen. Die Wärmepumpen haben auch für den Sommer eine Kühlfunktion zum Temperieren. Gleichermaßen erfolgt die Warmwasserbereitung über die Wärmepumpe entsprechend dem persönlichen Bedarf. Jeder Wohnungsnutzer kann mit seiner eigenen Wärmepumpe entsprechend den persönlichen Bedürfnissen heizen oder kühlen und rechnet seine Kosten direkt mit dem Versorger seiner Wahl ab. Hierdurch werden die Kosten eines Serviceunternehmens zur Heizkostenabrechnung gespart. Bei der Konzeption der Gebäude wurde besonderer Wert auf günstige Betriebs - und Folgekosten gelegt. Neben dem besonderen Heizsystem sind daher auch keine Aufzüge vorhanden. Der gute Energiestandard wird auch durch die Energieausweise mit der Klasse A + dokumentiert. Die Wohnungen wurden bis auf das Mauerwerk zurückgeführt. Das Dachgeschoß ist durch Aufstockung des vorhandenen Flachdachgebäudes vollständig neu entstanden. Alle Leitungen für Elektro, Heizung und Sanitär wurden vollständig erneuert. Gleichermaßen haben die Wohnungen einen neuen Estrich mit guten Schallschutzwerten erhalten. Alle Räume werden mit einer modernen Fußbodenheizung mit Einzelraumsteuerung entsprechend dem persönlichen Wohlbefinden durch die modernen Wärmepumpen vom Typ Daikin beheizt bzw. temperiert. Ebenso wird die Warmwasserversorgung durch die wohnungsbezogenen Wärmepumpen kostengünstig ausgeführt. Sie können bei der Versorgung der Wärmepumpen durch die vorhandenen 2 Stromzähler je Wohnung den günstigen Wärmepumpenstrom nutzen. Durch diese moderne Technik werden die Kosten eines Serviceanbieters für die Heizkostenabrechnungen erspart. Es ist eine gerechte Heizkostenzahlung garantiert. Ebenso wurden die Bodenbeläge als Vinylboden, Fliesen, Türen, Sanitärgegenstände und Malerarbeiten werden vollständig erneuert. Die großzügigen Balkone haben attraktive Glasgeländer erhalten, die der Wohnanlage eine schöne Optik geben.
Durch die hochwertige Sanierung und die interessante gefragte Lage ist eine hohe Wohnqualität gegeben. Zu jeder Wohnung gehört ein geräumiger Kellerraum. Ebenso sind je Haus ein Waschraum, ein Trockenraum sowie ein Fahrradraum mit separatem Zugang vorhanden.
Das Angebot bezieht sich auf die Wohnung 11 im 1. Obergeschoß des Hauses 11. Die Wohnung besteht aus dem attraktiven Wohnraum mit Zugang zum großzügigen Balkon. Von der zentralen Diele erreichen Sie das geräumige Elternschlafzimmer, das schönen Kinderzimmer/Büro, die Küche mit vorgelagertem Essplatz. Die Küche verfügt über eine Einbauküche. Das moderne Wannenbad, das Gäste-WC sowie der Abstellraum vervollständigen das Angebot.
Die Wohnfläche beträgt ca. 84,31 m².
Die Wohnung ist derzeit vermietet. Die Mieter bewohnen diese Wohnung seit Ende 2023 und haben von Mietvertrag von 28.12.2000 für eine andere Wohnung im Objekt entsprechend ergänzt. Eine Eigenbedarfskündigung ist entsprechend den gesetzlichen Bestimmungen möglich. Fragen Sie hier Ihren Anwalt.
Es besteht die Möglichkeit Fahrradboxen mit Stromanschluß für 6.000 EUR zu erwerben
Umbau/Sanierung/Erweiterung und Aufstockung von 2 Gebäuden mit attraktiven Eigentumswohnungen mit moderner Technik in gefragter Wohnlage Bonn-Endenich mit guter Infrastruktur und viel Grün. Durch die hochwertige Außenisolierung, die 3-fach-Verglasung der Fenster und die moderne Beheizung mit wohnungsbezogenen Wärmepumpen in Verbindung mit Fußbodenheizung werden hier sehr niedrige Energiekosten bzw. Hausgeldkosten entstehen. Die Wärmepumpen haben auch für den Sommer eine Kühlfunktion zum Temperieren. Gleichermaßen erfolgt die Warmwasserbereitung über die Wärmepumpe entsprechend dem persönlichen Bedarf. Jeder Wohnungsnutzer kann mit seiner eigenen Wärmepumpe entsprechend den persönlichen Bedürfnissen heizen oder kühlen und rechnet seine Kosten direkt mit dem Versorger seiner Wahl ab. Hierdurch werden die Kosten eines Serviceunternehmens zur Heizkostenabrechnung gespart. Bei der Konzeption der Gebäude wurde besonderer Wert auf günstige Betriebs - und Folgekosten gelegt. Neben dem besonderen Heizsystem sind daher auch keine Aufzüge vorhanden. Der gute Energiestandard wird auch durch die Energieausweise mit der Klasse A + dokumentiert. Die Wohnungen wurden bis auf das Mauerwerk zurückgeführt. Das Dachgeschoß ist durch Aufstockung des vorhandenen Flachdachgebäudes vollständig neu entstanden. Alle Leitungen für Elektro, Heizung und Sanitär wurden vollständig erneuert. Gleichermaßen haben die Wohnungen einen neuen Estrich mit guten Schallschutzwerten erhalten. Alle Räume werden mit einer modernen Fußbodenheizung mit Einzelraumsteuerung entsprechend dem persönlichen Wohlbefinden durch die modernen Wärmepumpen vom Typ Daikin beheizt bzw. temperiert. Ebenso wird die Warmwasserversorgung durch die wohnungsbezogenen Wärmepumpen kostengünstig ausgeführt. Sie können bei der Versorgung der Wärmepumpen durch die vorhandenen 2 Stromzähler je Wohnung den günstigen Wärmepumpenstrom nutzen. Durch diese moderne Technik werden die Kosten eines Serviceanbieters für die Heizkostenabrechnungen erspart. Es ist eine gerechte Heizkostenzahlung garantiert. Ebenso wurden die Bodenbeläge als Vinylboden, Fliesen, Türen, Sanitärgegenstände und Malerarbeiten werden vollständig erneuert. Die großzügigen Balkone haben attraktive Glasgeländer erhalten, die der Wohnanlage eine schöne Optik geben.
Durch die hochwertige Sanierung und die interessante gefragte Lage ist eine hohe Wohnqualität gegeben. Zu jeder Wohnung gehört ein geräumiger Kellerraum. Ebenso sind je Haus ein Waschraum, ein Trockenraum sowie ein Fahrradraum mit separatem Zugang vorhanden.
Das Angebot bezieht sich auf die Wohnung 11 im 1. Obergeschoß des Hauses 11. Die Wohnung besteht aus dem attraktiven Wohnraum mit Zugang zum großzügigen Balkon. Von der zentralen Diele erreichen Sie das geräumige Elternschlafzimmer, das schönen Kinderzimmer/Büro, die Küche mit vorgelagertem Essplatz. Die Küche verfügt über eine Einbauküche. Das moderne Wannenbad, das Gäste-WC sowie der Abstellraum vervollständigen das Angebot.
Die Wohnfläche beträgt ca. 84,31 m².
Die Wohnung ist derzeit vermietet. Die Mieter bewohnen diese Wohnung seit Ende 2023 und haben von Mietvertrag von 28.12.2000 für eine andere Wohnung im Objekt entsprechend ergänzt. Eine Eigenbedarfskündigung ist entsprechend den gesetzlichen Bestimmungen möglich. Fragen Sie hier Ihren Anwalt.
Es besteht die Möglichkeit Fahrradboxen mit Stromanschluß für 6.000 EUR zu erwerben
Sonstige Informationen
Vereinbaren Sie einen Besichtigungstermin !
Der Energieausweis liegt vor.
Dieser wird dem Interessenten vor dem Besichtigungstermin mit dem Exposé zur Verfügung gestellt.
Gerne sind sind wir Ihnen bei der Gestaltung Ihrer Finanzierung behilflich.
Lassen Sie sich beraten!
Der Verkauf erfolgt für den Käufer provisionsfrei.
Weitere interessante Kauf- oder Mietangebote finden Sie unter www.scherf-immobilien.de
Der Energieausweis liegt vor.
Dieser wird dem Interessenten vor dem Besichtigungstermin mit dem Exposé zur Verfügung gestellt.
Gerne sind sind wir Ihnen bei der Gestaltung Ihrer Finanzierung behilflich.
Lassen Sie sich beraten!
Der Verkauf erfolgt für den Käufer provisionsfrei.
Weitere interessante Kauf- oder Mietangebote finden Sie unter www.scherf-immobilien.de
Karte wird geladen...
Objektstandort
53121 Bonn
Lage & Infrastruktur
Objektstandort
53121 Bonn
Bonn, Stadtteil Endenich. Es handelt sich um eine gefragte ruhige Wohnlage mit viel Grün und hohem Wohnwert. Die Endenicher "City" ist in wenigen Gehminuten erreichbar. Die beliebten Stadtteilzentren von Poppelsdorf und Endenich sowie der Venusberg sind fußläufig zu erreichen.
Bonn-Endenich liegt ca. 2 KM von der Bonner Innenstadt entfernt. Bonn-Endenich verfügt über gute Einkaufsmöglichkeiten sowie vielfältige Gastronomie und Freizeitmöglichkeiten. Ebenso ist eine sehr gute Anbindung an den öffentlichen Personennahverkehr gegeben. Mit den Anbindungen an die A 565 und B 56 ist Bonn-Endenich auch mit kurzen Wegen an zahlreiche Autobahnen angebunden.
Bonn-Endenich liegt ca. 2 KM von der Bonner Innenstadt entfernt. Bonn-Endenich verfügt über gute Einkaufsmöglichkeiten sowie vielfältige Gastronomie und Freizeitmöglichkeiten. Ebenso ist eine sehr gute Anbindung an den öffentlichen Personennahverkehr gegeben. Mit den Anbindungen an die A 565 und B 56 ist Bonn-Endenich auch mit kurzen Wegen an zahlreiche Autobahnen angebunden.
Kontaktanfrage senden
Über den Anbieter
Scherf Profi Immobilienservice GmbH
Paulinstraße 104
54292 Trier
Kontakt
| Telefon | 0651 97878-0 |
| Fax | 0651 97878-78 |
| Website | www.scherf-immobilien.de |
Ansprechpartner/in
Herr Norbert Scherf