Attraktive Maisonettewohnung im KFW 40 Energiesparhaus Stadtmitte - Hohe Steuervorteile sichern !
521.000 €
Kaufpreis
105,58 m²
Wohnfläche
3
Zimmer
immobilien.de Nr.: 9235879
Objektnummer: ETWKOAD109B
Preise & Kosten
| Kaufpreis | 521.000 € |
| Nebenkosten | keine Angabe |
Größe & Zustand
| Wohnfläche | 105,58 m² |
| Fläche teilbar ab | 105,58 m² |
| Zimmer | 3 |
| Baujahr | 2025 |
| Verfügbar ab | kurzfristig beziehbar |
| Zustand | Erstbezug |
Energie
| Energieausweistyp | Bedarfsausweis |
| Ausstellungsdatum | 27. 02. 2025 |
| Gültig bis | 26.02.2035 |
| Baujahr (laut Energieausweis) | 2025 |
| Energieeffizienzklasse | A+ |
| Energietyp | KfW-40 |
| Endenergiebedarf | 8,90 |
| Heizungsart | Fußbodenheizung |
| Wesentlicher Energieträger | Luft/wasser-Wärmepumpe |
| Energieträger/Befeuerung | Luft-Wärme-Pumpe |
Objektbeschreibung
Moderne helle altersgerechte Wohnung mit moderner Technik im KFW 40 Energiesparhaus in
zentraler Lage von Koblenz
Hohe Steuervorteile durch Neubauabschreibungen für Vermieter möglich !
Energiesparendes Bauen im KFW 40 Standard. Altengerechtes schönes Wohnen mit moderner kostengünstiger Heiztechnik in gefragter Lage im Koblenz-Lützel. In dieser exponierten Lage entstehen moderne attraktive Eigentumswohnungen von ca. 62 bis ca. 108 m² mit moderner Technik in altersgerechter Ausführung mit Lift. Elektrische Rollläden, schöne Fliesen und Sanitärausstattungen, hochwertige Wohnungseingangstüren, moderne 3-fach verglaste Fenster, eine gute Elektroausstattung, eine kontrollierte Wohnraumbelüftung mit Wärmerückgewinnung sowie attraktive Parkettböden werden ausgeführt. Bei der Konzeption des Objektes wurde besonders auf Energiesparendes Bauen geachtet, was durch den aufwendigen KFW 40 Standard dokumentiert wird (Energieklasse A +). Die Kombination von moderner Technik sowie hochwertiger Isolierung führt zu sehr günstigen Heizkosten bzw. Nebenkosten. Alle Wohnungen verfügen über schöne Balkone im ruhigen Innenbereich mit guter Besonnung . Jeder Wohnung ist ein Abstellraum im Erdgeschoss zugeordnet.
Geniesen Sie den Wohnkomfort eines modernen hellen überwiegend barrierefreien Gebäudes mit neuester Technik.
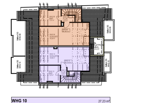
Das Angebot bezieht sich auf die Wohnung 9 im Dachgeschoß = 5.Obergeschoß sowie Galeriegeschoß . Sie gelangen über eine geräumige Diele mit Garderobe in die Wohnung. In der unteren Wohnebene gelangen Sie von der Diele in den hellen geräumigen Wohn/Eßbereich mit offener Küche von ca. 34 m² mit Ausgang auf Balkon 1/Dachterrasse von ca. 17 m² sowie den funktionalen Abstellraum. Von der Diele gelangen Sie ebenfalls in das Duschbad von ca. 6 m² sowie in das schöne Kinderzimmer/Büro von ca. 15 m² mit Ausgang auf den sonnigen Balkon 2. Über eine attraktive Treppe gelangen Sie in das Galeriegeschoß mit dem gut aufgeteilten Schlafzimmer von ca. 19 m² sowie dem Elternbad von ca. 8 m² - ausgestattet mit Wanne und Dusche-. Die Wohnung hat eine Wohnfläche von ca. 106 m². Der Wohnung ist ein Kellerraum zugeordnet.
Es besteht die Möglichkeit Außenstellplätze für 17.000 EUR sowie ein Carport mit Doppelparkanlage für 35.000 EUR zu erwerben.
Die Wohnung ist kurzfristig beziehbar
zentraler Lage von Koblenz
Hohe Steuervorteile durch Neubauabschreibungen für Vermieter möglich !
Energiesparendes Bauen im KFW 40 Standard. Altengerechtes schönes Wohnen mit moderner kostengünstiger Heiztechnik in gefragter Lage im Koblenz-Lützel. In dieser exponierten Lage entstehen moderne attraktive Eigentumswohnungen von ca. 62 bis ca. 108 m² mit moderner Technik in altersgerechter Ausführung mit Lift. Elektrische Rollläden, schöne Fliesen und Sanitärausstattungen, hochwertige Wohnungseingangstüren, moderne 3-fach verglaste Fenster, eine gute Elektroausstattung, eine kontrollierte Wohnraumbelüftung mit Wärmerückgewinnung sowie attraktive Parkettböden werden ausgeführt. Bei der Konzeption des Objektes wurde besonders auf Energiesparendes Bauen geachtet, was durch den aufwendigen KFW 40 Standard dokumentiert wird (Energieklasse A +). Die Kombination von moderner Technik sowie hochwertiger Isolierung führt zu sehr günstigen Heizkosten bzw. Nebenkosten. Alle Wohnungen verfügen über schöne Balkone im ruhigen Innenbereich mit guter Besonnung . Jeder Wohnung ist ein Abstellraum im Erdgeschoss zugeordnet.
Geniesen Sie den Wohnkomfort eines modernen hellen überwiegend barrierefreien Gebäudes mit neuester Technik.
Das Angebot bezieht sich auf die Wohnung 9 im Dachgeschoß = 5.Obergeschoß sowie Galeriegeschoß . Sie gelangen über eine geräumige Diele mit Garderobe in die Wohnung. In der unteren Wohnebene gelangen Sie von der Diele in den hellen geräumigen Wohn/Eßbereich mit offener Küche von ca. 34 m² mit Ausgang auf Balkon 1/Dachterrasse von ca. 17 m² sowie den funktionalen Abstellraum. Von der Diele gelangen Sie ebenfalls in das Duschbad von ca. 6 m² sowie in das schöne Kinderzimmer/Büro von ca. 15 m² mit Ausgang auf den sonnigen Balkon 2. Über eine attraktive Treppe gelangen Sie in das Galeriegeschoß mit dem gut aufgeteilten Schlafzimmer von ca. 19 m² sowie dem Elternbad von ca. 8 m² - ausgestattet mit Wanne und Dusche-. Die Wohnung hat eine Wohnfläche von ca. 106 m². Der Wohnung ist ein Kellerraum zugeordnet.
Es besteht die Möglichkeit Außenstellplätze für 17.000 EUR sowie ein Carport mit Doppelparkanlage für 35.000 EUR zu erwerben.
Die Wohnung ist kurzfristig beziehbar
Ausstattung
| Bad | 2 |
| Bad | Dusche, Wanne |
| Boden | Fliesen, Parkett |
Moderne helle altersgerechte Wohnung mit moderner Technik im KFW 40 Energiesparhaus in
zentraler Lage von Koblenz
Hohe Steuervorteile durch Neubauabschreibungen für Vermieter möglich !
Energiesparendes Bauen im KFW 40 Standard. Altengerechtes schönes Wohnen mit moderner kostengünstiger Heiztechnik in gefragter Lage im Koblenz-Lützel. In dieser exponierten Lage entstehen moderne attraktive Eigentumswohnungen von ca. 62 bis ca. 108 m² mit moderner Technik in altersgerechter Ausführung mit Lift. Elektrische Rollläden, schöne Fliesen und Sanitärausstattungen, hochwertige Wohnungseingangstüren, moderne 3-fach verglaste Fenster, eine gute Elektroausstattung, eine kontrollierte Wohnraumbelüftung mit Wärmerückgewinnung sowie attraktive Parkettböden werden ausgeführt. Bei der Konzeption des Objektes wurde besonders auf Energiesparendes Bauen geachtet, was durch den aufwendigen KFW 40 Standard dokumentiert wird (Energieklasse A +). Die Kombination von moderner Technik sowie hochwertiger Isolierung führt zu sehr günstigen Heizkosten bzw. Nebenkosten. Alle Wohnungen verfügen über schöne Balkone im ruhigen Innenbereich mit guter Besonnung . Jeder Wohnung ist ein Abstellraum im Erdgeschoss zugeordnet.
Geniesen Sie den Wohnkomfort eines modernen hellen überwiegend barrierefreien Gebäudes mit neuester Technik.
Das Angebot bezieht sich auf die Wohnung 9 im Dachgeschoß = 5.Obergeschoß sowie Galeriegeschoß . Sie gelangen über eine geräumige Diele mit Garderobe in die Wohnung. In der unteren Wohnebene gelangen Sie von der Diele in den hellen geräumigen Wohn/Eßbereich mit offener Küche von ca. 34 m² mit Ausgang auf Balkon 1/Dachterrasse von ca. 17 m² sowie den funktionalen Abstellraum. Von der Diele gelangen Sie ebenfalls in das Duschbad von ca. 6 m² sowie in das schöne Kinderzimmer/Büro von ca. 15 m² mit Ausgang auf den sonnigen Balkon 2. Über eine attraktive Treppe gelangen Sie in das Galeriegeschoß mit dem gut aufgeteilten Schlafzimmer von ca. 19 m² sowie dem Elternbad von ca. 8 m² - ausgestattet mit Wanne und Dusche-. Die Wohnung hat eine Wohnfläche von ca. 106 m². Der Wohnung ist ein Kellerraum zugeordnet.
Es besteht die Möglichkeit Außenstellplätze für 17.000 EUR sowie ein Carport mit Doppelparkanlage für 35.000 EUR zu erwerben.
Die Wohnung ist kurzfristig beziehbar
zentraler Lage von Koblenz
Hohe Steuervorteile durch Neubauabschreibungen für Vermieter möglich !
Energiesparendes Bauen im KFW 40 Standard. Altengerechtes schönes Wohnen mit moderner kostengünstiger Heiztechnik in gefragter Lage im Koblenz-Lützel. In dieser exponierten Lage entstehen moderne attraktive Eigentumswohnungen von ca. 62 bis ca. 108 m² mit moderner Technik in altersgerechter Ausführung mit Lift. Elektrische Rollläden, schöne Fliesen und Sanitärausstattungen, hochwertige Wohnungseingangstüren, moderne 3-fach verglaste Fenster, eine gute Elektroausstattung, eine kontrollierte Wohnraumbelüftung mit Wärmerückgewinnung sowie attraktive Parkettböden werden ausgeführt. Bei der Konzeption des Objektes wurde besonders auf Energiesparendes Bauen geachtet, was durch den aufwendigen KFW 40 Standard dokumentiert wird (Energieklasse A +). Die Kombination von moderner Technik sowie hochwertiger Isolierung führt zu sehr günstigen Heizkosten bzw. Nebenkosten. Alle Wohnungen verfügen über schöne Balkone im ruhigen Innenbereich mit guter Besonnung . Jeder Wohnung ist ein Abstellraum im Erdgeschoss zugeordnet.
Geniesen Sie den Wohnkomfort eines modernen hellen überwiegend barrierefreien Gebäudes mit neuester Technik.
Das Angebot bezieht sich auf die Wohnung 9 im Dachgeschoß = 5.Obergeschoß sowie Galeriegeschoß . Sie gelangen über eine geräumige Diele mit Garderobe in die Wohnung. In der unteren Wohnebene gelangen Sie von der Diele in den hellen geräumigen Wohn/Eßbereich mit offener Küche von ca. 34 m² mit Ausgang auf Balkon 1/Dachterrasse von ca. 17 m² sowie den funktionalen Abstellraum. Von der Diele gelangen Sie ebenfalls in das Duschbad von ca. 6 m² sowie in das schöne Kinderzimmer/Büro von ca. 15 m² mit Ausgang auf den sonnigen Balkon 2. Über eine attraktive Treppe gelangen Sie in das Galeriegeschoß mit dem gut aufgeteilten Schlafzimmer von ca. 19 m² sowie dem Elternbad von ca. 8 m² - ausgestattet mit Wanne und Dusche-. Die Wohnung hat eine Wohnfläche von ca. 106 m². Der Wohnung ist ein Kellerraum zugeordnet.
Es besteht die Möglichkeit Außenstellplätze für 17.000 EUR sowie ein Carport mit Doppelparkanlage für 35.000 EUR zu erwerben.
Die Wohnung ist kurzfristig beziehbar
Sonstige Informationen
Der Energieausweis liegt vor.
Dieser wird dem Interessenten vor dem Besichtigungstermin mit dem Exposé zur Verfügung gestellt.
Vereinbaren Sie einen Besichtigungstermin ! In Zusammenarbeit mit einem Finanzierungsvermittler sind wir Ihnen gerne bei der Gestaltung Ihrer Finanzierung behilflich. Die Zinsen können z.B. auf die Dauer von 10 oder 15 Jahren festgeschrieben werden. Hierdurch können sich Ihre monatlichen Raten nicht verändern !
Die KFW Darlehen können über die jeweils finanzierende Bank mit dem Sitz in Deutschland beantragt und abgewickelt werden. Die erforderliche Bestätigung des Energieberaters kann zeitnah erstellt werden.
Hinweis bei Vermietung: Die Wohnungen können bei einem Erwerb bis zum Jahr der Fertigstellung und einer Vermietung entsprechend den aktuellen Änderungen des Wirtschaftschancengesetzes mit einer degressiven Abschreibung von jährlich 5 % bezogen auf den jeweiligen Buchwert abgeschrieben werden. Hierdurch werden hohe Steuervorteile erzielt. Wir übernehmen weder eine steuerliche Beratung noch die Haftung für steuerliche Ziele. Sprechen Sie mit Ihrem Steuerberater. Dieser berät Sie gerne umfassend und fachgerecht.
Weitere interessante Kauf- oder Mietangebote finden Sie unter www.scherf-immobilien.de
Dieser wird dem Interessenten vor dem Besichtigungstermin mit dem Exposé zur Verfügung gestellt.
Vereinbaren Sie einen Besichtigungstermin ! In Zusammenarbeit mit einem Finanzierungsvermittler sind wir Ihnen gerne bei der Gestaltung Ihrer Finanzierung behilflich. Die Zinsen können z.B. auf die Dauer von 10 oder 15 Jahren festgeschrieben werden. Hierdurch können sich Ihre monatlichen Raten nicht verändern !
Die KFW Darlehen können über die jeweils finanzierende Bank mit dem Sitz in Deutschland beantragt und abgewickelt werden. Die erforderliche Bestätigung des Energieberaters kann zeitnah erstellt werden.
Hinweis bei Vermietung: Die Wohnungen können bei einem Erwerb bis zum Jahr der Fertigstellung und einer Vermietung entsprechend den aktuellen Änderungen des Wirtschaftschancengesetzes mit einer degressiven Abschreibung von jährlich 5 % bezogen auf den jeweiligen Buchwert abgeschrieben werden. Hierdurch werden hohe Steuervorteile erzielt. Wir übernehmen weder eine steuerliche Beratung noch die Haftung für steuerliche Ziele. Sprechen Sie mit Ihrem Steuerberater. Dieser berät Sie gerne umfassend und fachgerecht.
Weitere interessante Kauf- oder Mietangebote finden Sie unter www.scherf-immobilien.de
Lage des Objektes
Koblenz zentrale Stadtlage Alle Einrichtungen des täglichen Bedarfs sind auf kurzen Wegen erreichbar. Sie sind in wenigen Gehminuten an der Uferpromenade der Mosel, am Nahversorgel oder am Bahnhof. Ebenso ist die Koblenzer Altstadt mit ihrem ganzen Flair in wenigen Gehminuten erreichbar.
Das Objekt befindet sich in der Andernacher Straße
Das Objekt befindet sich in der Andernacher Straße
Anbieter kontaktieren
Anbieter
Scherf Profi Immobilienservice GmbH
Paulinstraße 104
54292 Trier
Kontakt
| Telefon | 0651 978780 |
| Website | www.scherf-immobilien.de |
