Neuanfang für ein Haus mit Charakter
549.000 €
Kaufpreis
129 m²
Wohnfläche
25 m²
Nutzfläche
5
Zimmer
immobilien.de Nr.: 9228823
Objektnummer: 24-8529
Dateien
Preise & Kosten
| Kaufpreis | 549.000 € |
| Nebenkosten | keine Angabe |
| Maklerprovision | 3,57 % |
Größe & Zustand
| Wohnfläche | 129 m² |
| Nutzfläche | 25 m² |
| Grundstücksfläche | 1.500 m² |
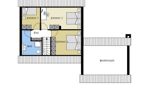
| Zimmer | 5 |
| Baujahr | 1956 |
| Verfügbar ab | nach Absprache |
Energie
| Energieausweistyp | Bedarfsausweis |
| Gültig bis | 2034-09-03 |
| Endenergiebedarf | 500,50 |
| Energieträger/Befeuerung | Gas |
Objektbeschreibung
Zum Verkauf steht ein sanierungsbedürftiges, fünf Zimmer Einfamilienhaus in Scharbeutz. Die Immobilie befindet sich in einer Wohnstraße, nur wenige Minuten vom Zentrum Scharbeutz und dem Strand entfernt.
Das ca. 129 m² große Einfamilienhaus bietet auf einem großzügigen Grundstück von 1.500 m² (Bodenrichtwert € 400/pro m²) vielfältige Nutzungsmöglichkeiten. Das Haus eignet sich hervorragend für Sanierungswillige, die ein Projekt in der Ostsee-Region suchen.
Im Kellergeschoss stehen weitere, ca. 25 m², als Nutzfläche zur Verfügung
Eine massive Garage sorgt für sicheres Abstellen ihres Fahrzeugs.
Der Charme des Hauses ist bereits jetzt sichtbar. Nutzen Sie die Chance nach Sanierungs- und Renovierungsmaßnahmen die Immobilie im neuen Glanz erstrahlen zu lassen.
Das wunderschön eingewachsene Grundstück bietet diverse Möglichkeiten für eine individuelle Außengestaltung. Die Westausrichtung optimale Voraussetzungen für sonnige Stunden im Freien.
Energieausweis:Bedarfsausweis 550,5 kWh(m²a), Gas, Bj. Haus 1956,Bj. Wärmeerzeuger 1998, Klasse H
Ihre Ansprechpartner für dieses Objekt sind:
Frank Hill/Katja-A. Kewitz
04531/508-75791 oder 803-75792
Mobil 0151 12212206
Das ca. 129 m² große Einfamilienhaus bietet auf einem großzügigen Grundstück von 1.500 m² (Bodenrichtwert € 400/pro m²) vielfältige Nutzungsmöglichkeiten. Das Haus eignet sich hervorragend für Sanierungswillige, die ein Projekt in der Ostsee-Region suchen.
Im Kellergeschoss stehen weitere, ca. 25 m², als Nutzfläche zur Verfügung
Eine massive Garage sorgt für sicheres Abstellen ihres Fahrzeugs.
Der Charme des Hauses ist bereits jetzt sichtbar. Nutzen Sie die Chance nach Sanierungs- und Renovierungsmaßnahmen die Immobilie im neuen Glanz erstrahlen zu lassen.
Das wunderschön eingewachsene Grundstück bietet diverse Möglichkeiten für eine individuelle Außengestaltung. Die Westausrichtung optimale Voraussetzungen für sonnige Stunden im Freien.
Energieausweis:Bedarfsausweis 550,5 kWh(m²a), Gas, Bj. Haus 1956,Bj. Wärmeerzeuger 1998, Klasse H
Ihre Ansprechpartner für dieses Objekt sind:
Frank Hill/Katja-A. Kewitz
04531/508-75791 oder 803-75792
Mobil 0151 12212206
Ausstattung
| Bad | Wanne, Fenster |
| Terrassen | 1 |
| Keller |
Sanierungsbedarf
West Terrasse
Gäste WC, Tageslichtbad
Garage
Keller
West Terrasse
Gäste WC, Tageslichtbad
Garage
Keller
Lage des Objektes
Im Süden der Lübecker Bucht, in direkter Nachbarschaft zu Timmendorfer Strand, liegt das sympathische und gleichzeitig lebendige Scharbeutz mit seinem sanft abfallenden Strand. Hier erlebt man den modernen Ostsee-Lifestyle in einer sehr entspannten Atmosphäre. Die neue Scharbeutzer Dünenmeile bietet jede Menge Flair und natürlich überall einen direkten Blick auf die Ostsee. Sie verwöhnt mit ansprechender Architektur, strandnaher Gastronomie und Boutiquen. Dazu gibt es einen grandiosen Weitblick über die Bucht.
Auch im Winter zeigt sich Scharbeutz bunt und lebendig, wenn hier Veranstaltungen rund um die Elemente "Feuer & Eis" und gemütlichem Budenzauber den Winter-Blues vertreiben.
Die historischen Hansestädte Lübeck (ca. 18 km und Hamburg ca. 65 km) sind über die A1 schnell zu erreichen.
Auch im Winter zeigt sich Scharbeutz bunt und lebendig, wenn hier Veranstaltungen rund um die Elemente "Feuer & Eis" und gemütlichem Budenzauber den Winter-Blues vertreiben.
Die historischen Hansestädte Lübeck (ca. 18 km und Hamburg ca. 65 km) sind über die A1 schnell zu erreichen.
Anbieter kontaktieren
Anbieter
SIG Holstein mbH & Co. KG
Hagenstraße 19
23843 Bad Oldesloe
Kontakt
| Telefon | 04531 508 75791 |
| Mobil | 0151 12212206 |
| Fax | 04531 508 77714 |
| Website | www.sig-holstein.de |
