AIGNER - Sonnig und effizient geschnitt - Gartentraum mit Südausrichtung!
1.700.000 €
Kaufpreis
124 m²
Wohnfläche
11 m²
Nutzfläche
5
Zimmer
immobilien.de Nr.: 9221569
Objektnummer: 42442
Preise & Kosten
| Kaufpreis | 1.700.000 € |
| Nebenkosten | keine Angabe |
| Stellplatz Garage Kaufpreis | 45.000 € |
Größe & Zustand
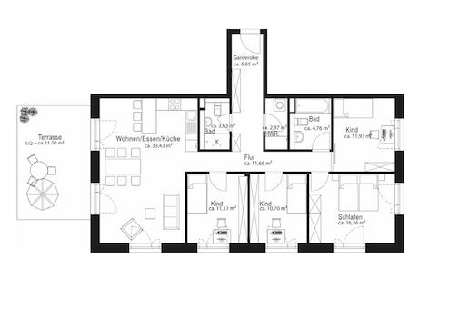
| Wohnfläche | 124 m² |
| Nutzfläche | 11 m² |
| Zimmer | 5 |
| Baujahr | 2027 |
| Verfügbar ab | Nach Rücksprache |
| Zustand | Erstbezug |
Objektbeschreibung
Eine stilvolle und ästhetische Architektur, eine gut durchdachte Grundrissplanung, dazu wunderbar ruhig und idyllisch im begehrten München-Obermenzing gelegen: Die hochwertigen 2 bis 5 Zimmer Neubau-Wohnungen werden die künftigen Bewohner begeistern. Denn hier wurde die zeitlos-moderne Formsprache im Außen mit einer konsequenten Klarheit im Inneren kombiniert. Die Bauweise erfüllt höchste Ansprüche an Nachhaltigkeit: Die sog. "KfW 40 NH QNG-Bauweise"* ist besonders klimafreundlich und energieeffizient und verbindet niedrigen Energieverbrauch mit ökologischer und sozialer Verantwortung. Für das perfekte Wohngefühl sorgt die komfortable Innenausstattung mit geöltem Eichen-Parkett in den Wohnräumen, Fußbodenheizung, Tageslichtbad mit Regendusche, hochwertigen Fließen sowie großzügigen Terrassen- bzw. Balkonflächen. Auch die Lichtfülle zu allen Tageszeiten ist bemerkenswert. Diese entsteht durch die großen, zum Teil bodentiefen Fensterfronten, die ein wunderbar helles Ambiente und schöne Blickachsen nach draußen erzeugen. Ein Hauswirtschaftsraum bzw. praktische Abstellkammer – je nach Wohneinheit – bietet eine praktische Raumreserve. Reizvolle Vor- und Rücksprünge verleihen dem Mehrfamilienhaus eine elegante Note und bildet eine optisch ansprechende Architektur, die sich harmonisch in die Umgebung einzufügen weiß. Durch die stilvolle Teilbemauerung, die die Fassade gestalterisch aufgreift und durch dezente Gittermatten unterbrochen wird, erhält das Anwesen einen äußerst exklusiven Charakter. Keine Frage: In diesen stilvollen Wohnungen – ein Teil davon ist barrierefrei – finden sowohl Singles, Paare als auch Familien mit Kindern ein Zuhause zum Wohlfühlen.
Der erste Bauabschnitt ist vsl. Ende 2027 fertig; die Fertigstellung erfolgt im Sommer 2028.
Der erste Bauabschnitt ist vsl. Ende 2027 fertig; die Fertigstellung erfolgt im Sommer 2028.
Ausstattung
| Bad | 2 |
| Fahrstuhl | |
| Garage/Stellplätze | 1 |
| Keller |
Zeitloses, elegantes Gebäude mit klassischen Stilelementen
Massive Ziegelbauweise nach KfW40 NH QNG
Variable Grundrisse für individuelle Wohnbedürfnisse
Bodentiefe, dreifachverglaste Fenster für natürlichen Lichteinfall
Marken-Sanitärausstattung und bodentiefe Dusche für entspanntes Wellness-Feeling
Großformatige Fliesen/Feinsteinzeug
Geöltes Eichen-Parkett mit Fußbodenheizung in allen Wohnbereichen
Hochwertige Aluminium-Rollläden
BUS-System auf Wunsch
Großzügige Terrassen- oder Balkonflächen
Abstellkammern mit Waschmaschinenanschluss
Erhöhter Schallschutz
Dezentrale Wohnraumbelüftung für ein gesundes Raumklima
Begrünte Dachflächen
Gegensprechanlage und Videosprechstelle mit Farbdisplay
Tiefgaragenstellplatz
Wallbox auf Wunsch
Photovoltaikanlage
Personenaufzug je Treppenhaus
Schön gestaltete Außenbereiche mit Grünflächen
Eigener Spielplatz für Familien mit Kindern
Massive Ziegelbauweise nach KfW40 NH QNG
Variable Grundrisse für individuelle Wohnbedürfnisse
Bodentiefe, dreifachverglaste Fenster für natürlichen Lichteinfall
Marken-Sanitärausstattung und bodentiefe Dusche für entspanntes Wellness-Feeling
Großformatige Fliesen/Feinsteinzeug
Geöltes Eichen-Parkett mit Fußbodenheizung in allen Wohnbereichen
Hochwertige Aluminium-Rollläden
BUS-System auf Wunsch
Großzügige Terrassen- oder Balkonflächen
Abstellkammern mit Waschmaschinenanschluss
Erhöhter Schallschutz
Dezentrale Wohnraumbelüftung für ein gesundes Raumklima
Begrünte Dachflächen
Gegensprechanlage und Videosprechstelle mit Farbdisplay
Tiefgaragenstellplatz
Wallbox auf Wunsch
Photovoltaikanlage
Personenaufzug je Treppenhaus
Schön gestaltete Außenbereiche mit Grünflächen
Eigener Spielplatz für Familien mit Kindern
Sonstige Informationen
Baujahr: 2027
Lage des Objektes
Urbanes Lebensgefühl trifft ruhige Wohnidylle: Der im Westen von München gelegene Stadtteil Obermenzing ist eine der attraktivsten Wohngegenden der Landeshauptstadt. Kein Wunder, hier verbinden sich alle Annehmlichkeiten der Stadt mit dem Gefühl, in einem naturnahen Vorort zu leben. Der natürlich gewachsene Ortskern des ehemals eigenständigen Ortes und die überwiegende Bebauung mit Stadtvillen, kleinen Mehrfamilien- und Einfamilienhäusern verleihen der gesamten Gegend ein elegantes und idyllisches Flair. Städtische Naherholungsgebiete wie der Nymphenburger Schlosspark, der Hartmannshofer Park oder die Würmauen sind in kurzer Zeit erreichbar und laden zu ausgedehnten Spaziergängen und sonnigen Stunden ein. Und wer vom spätgotischen Wasserschloss – wunderbar idyllisch direkt an der Würm gelegen – den Blick auf das östlich gelegene Schloss Nymphenburg wirft, fühlt sich an vergangene, glanzvolle Zeiten erinnert und vergisst beinhae, dass in nur wenigen Schritten eine perfekte Infrastruktur zu finden ist – mit allen Geschäften des täglichen Bedarfs, vielen Restaurants sowie Schulen, Kindergärten, Apotheken und Ärzten. An den überregionalen Verkehr ist Obermenzing durch die A8 München-Stuttgart sowie die Eschenrieder Spange zu allen Autobahnen optimal angebunden. Zudem bringen Sie die nahegelegene S-Bahn sowie die gut ausgebaute Bus-Infrastruktur schnell an den gewünschten Ort.
Wer hier im schönen Obermenzing lebt, darf sich wirklich glücklich schätzen!
Wer hier im schönen Obermenzing lebt, darf sich wirklich glücklich schätzen!
Anbieter kontaktieren
Kontakt
| Telefon | (089) 17 87 87 0 |
| Fax | (089) 17 87 87 88 |
| Website | www.aigner-immobilien.de |
