ZRG509 Bauträgergrundstück für Wohnen oder Gewerbe / Köfering
1.490.000 €
Kaufpreis
immobilien.de Nr.: 9200435
Objektnummer: ZRG 509
Preise & Kosten
| Kaufpreis | 1.490.000 € |
| Nebenkosten | keine Angabe |
| Maklerprovision | Ortsübliche Provision vom Käufer/Mieter nur im Erfolgsfalle |
Größe & Zustand
| Grundstücksfläche | 1.365 m² |
| Verfügbar ab | sofort |
Objektbeschreibung
Wir bieten in Köfering dieses Grundstück für eine Bauträgermaßnahme zum Kauf an. Es besteht über die Bundesstraße B 15 und die nahegelegene Autobahn A 93 eine gute Verkehrsanbindung. Mehrere Supermärkte, Apotheken, Ärzte, Kindergarten und Grundschule sind schnell erreichbar.
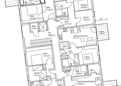
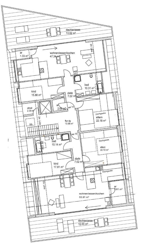
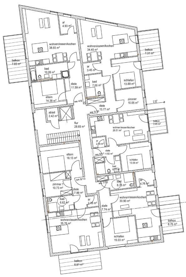
Das Grundstück ist erschlossen und unterliegt keinem Bauzwang. Ein Bebauungsplan ist vorhanden. Eine genehmigte Bauplanung für 15 Wohnungen mit ca. 1285 m² Wohnfläche und einer Gewerbeeinheit mit ca. 160 m² Nutzfläche bereits liegt vor. Es ist eine Tiefgarage mit 20 Stellplätzen und 11 Außenstellplätzen geplant. Eine genaue Bebauung ist mit dem Bauamt abzustimmen.
Das Grundstück ist erschlossen und unterliegt keinem Bauzwang. Ein Bebauungsplan ist vorhanden. Eine genehmigte Bauplanung für 15 Wohnungen mit ca. 1285 m² Wohnfläche und einer Gewerbeeinheit mit ca. 160 m² Nutzfläche bereits liegt vor. Es ist eine Tiefgarage mit 20 Stellplätzen und 11 Außenstellplätzen geplant. Eine genaue Bebauung ist mit dem Bauamt abzustimmen.
Sonstige Informationen
Um eine schnelle Bearbeitung zu gewähren benötigen wir Ihre Telefonnummer sowie Ihre komplette Adresse.
Anbieter
TRUMMER Immobilien GmbH & Co. KG
Nußbergerstr. 6
93059 Regensburg
Kontakt
| Telefon | 0941/447633 |
| Fax | 0941/41793 |
| Website | www.trummer.de |
