* Zuhause nach Plan - Doppelhaushälfte in Lünen, individuell gestaltbar *
538.000 €
Kaufpreis
125 m²
Wohnfläche
6
Zimmer
immobilien.de Nr.: 9157006
Objektnummer: Lün- DH-01-Kopie
Preise & Kosten
| Kaufpreis | 538.000 € |
| Nebenkosten | keine Angabe |
Größe & Zustand
| Wohnfläche | 125 m² |
| Grundstücksfläche | 439 m² |
| Zimmer | 6 |
| Verfügbar ab | keine Angabe |
| Zustand | Projektiert |
Energie
| Energietyp | KfW-40, KfW-55 |
| Heizungsart | Zentralheizung |
| Energieträger/Befeuerung | Luft-Wärme-Pumpe |
Objektbeschreibung
Die charmanten Doppelhaushälften in Lünen befinden sich derzeit in der Projektierungsphase und überzeugen durch modernen Wohnkomfort sowie eine flexible Planung nach Ihren individuellen Vorstellungen. Die Fertigstellung ist für das Jahr 2025 geplant.
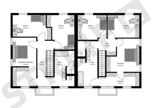
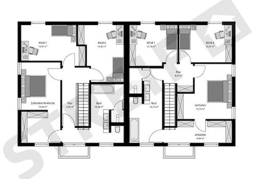
Die Wohnfläche der Doppelhaushälften beträgt 123 m² verteilt auf zwei Etagen mit optimal genutztem Raumkonzept. Die dazugehörigen Grundstücke haben Größen von 440 m².
Bitte beachten Sie, dass die dargestellten Fotos und Grundrisse lediglich Beispiele sind.
Mit einem Streifhaus erhalten Sie die Möglichkeit, Ihr Traumhaus unverbindlich und individuell zu planen - exakt nach Ihren Wünschen und Anforderungen.
Diese Doppelhaushälften bieten eine perfekte Kombination aus Flexibilität, Effizienz und moderner Architektur in einer attraktiven Lage von Rheine.
Die Wohnfläche der Doppelhaushälften beträgt 123 m² verteilt auf zwei Etagen mit optimal genutztem Raumkonzept. Die dazugehörigen Grundstücke haben Größen von 440 m².
Bitte beachten Sie, dass die dargestellten Fotos und Grundrisse lediglich Beispiele sind.
Mit einem Streifhaus erhalten Sie die Möglichkeit, Ihr Traumhaus unverbindlich und individuell zu planen - exakt nach Ihren Wünschen und Anforderungen.
Diese Doppelhaushälften bieten eine perfekte Kombination aus Flexibilität, Effizienz und moderner Architektur in einer attraktiven Lage von Rheine.
Ausstattung
| Anzahl der Etagen im Haus | 2 |
| Bad | 1 |
STREIF-Energiesparhäuser sind für die Effizienzhaus-Klasse 40* vorbereitet. (*In Abhängigkeit von Gebäudestandort, Gebäudeausrichtung, Fensterflächenanteile, Haustechnik usw. können zusätzliche oder abweichende Leistungen erforderlich werden, die im Zuge der Bauantragsbewertung/-erstellung bewertet werden.) Je nach gewünschter Grundriss- und Dachkonstruktion kann eine Ökobilanzierung KFWG möglich sein, die gegen Aufpreis für Ihr Haus erstellt werden kann. Für das Erreichen der Vorgaben des Qualitätssiegels Nachhaltiges Gebäude (QNG) für eine Ökobilanzierung wird zusätzlich eine Photovoltaik-Anlage mit Batteriespeicher benötigt. Mit dem Erfüllen dieser und weiterer Anforderungen wird Ihr Haus nach den neuen KfW-Förderrichtlinien für den Klimafreundlichen Neubau (KFN) in der Stufe KFWG förderfähig.
STREIF Leistungen sind MEHR WERT - schon im Grundpreis enthalten!
- 20-monatige Festpreisgarantie inkl. individuelle Grundrissgestaltung und Raumaufteilung
- Inkl. Fundamentplatte mit Grundleitungsanschlüssen und Frostschürze
- Inkl. STREIF-Luft-Luft-Wärmepumpen-Technologie mit integrierter Lüftungsanlage mit Wärmerückgewinnung
- Inkl. Haustür von KERA und Fenster von Porta/Kömmerling
- Inkl. Massivholz-Geschosstreppe aus eigener Produktion
- Inkl. Sanitärobjekte von Markenherstellern
- Inkl. Elektroinstallation u.v.m.
Die hohe Wertigkeit und Langlebigkeit eines STREIF-Energiespar-Hauses wird durch zahlreiche Auszeichnungen, Qualitäts- und Gütesiegel unabhängiger Institute und Verbände dokumentiert.
STREIF Leistungen sind MEHR WERT - schon im Grundpreis enthalten!
- 20-monatige Festpreisgarantie inkl. individuelle Grundrissgestaltung und Raumaufteilung
- Inkl. Fundamentplatte mit Grundleitungsanschlüssen und Frostschürze
- Inkl. STREIF-Luft-Luft-Wärmepumpen-Technologie mit integrierter Lüftungsanlage mit Wärmerückgewinnung
- Inkl. Haustür von KERA und Fenster von Porta/Kömmerling
- Inkl. Massivholz-Geschosstreppe aus eigener Produktion
- Inkl. Sanitärobjekte von Markenherstellern
- Inkl. Elektroinstallation u.v.m.
Die hohe Wertigkeit und Langlebigkeit eines STREIF-Energiespar-Hauses wird durch zahlreiche Auszeichnungen, Qualitäts- und Gütesiegel unabhängiger Institute und Verbände dokumentiert.
Sonstige Informationen
Vereinbaren Sie gerne einen persönlichen Termin mit mir zur individuellen Planung, Beratung und Besichtigung in unserem STREIF-Musterhauses in Kamen, gerne auch außerhalb der Öffnungszeiten oder auch bei Ihnen zuhause. Ich freue mich auf Ihre Kontaktaufnahme, um einen gemeinsamen Beratungstermin zu vereinbaren.
Michael Roth
STREIF-Bauberater in Kamen
Mobil: 0152/07869220
Mail: michael.roth@streif.de
Michael Roth
STREIF-Bauberater in Kamen
Mobil: 0152/07869220
Mail: michael.roth@streif.de
Lage des Objektes
Die Immobilie befindet sich in einer attraktiven Lage von Lünen. Die genauen Details zur Umgebung, Infrastruktur und den Vorzügen dieser Lage erhalten Sie direkt vom Anbieter.
Der Standort besticht durch seine exzellente Balance aus Naturnähe und Stadtnähe - eine absolute Seltenheit in dieser Qualität.
Der angegebene Preis umfasst sowohl das Haus als auch das Grundstück. Für weiterführende Informationen und eine persönliche Beratung stehen wir Ihnen gerne telefonisch zur Verfügung. Zögern Sie nicht, uns zu kontaktieren - wir freuen uns auf Ihren Anruf!
Ein perfekter Standort für Ihr neues Zuhause, der Ruhe, Natur und praktische Erreichbarkeit vereint.
Der Standort besticht durch seine exzellente Balance aus Naturnähe und Stadtnähe - eine absolute Seltenheit in dieser Qualität.
Der angegebene Preis umfasst sowohl das Haus als auch das Grundstück. Für weiterführende Informationen und eine persönliche Beratung stehen wir Ihnen gerne telefonisch zur Verfügung. Zögern Sie nicht, uns zu kontaktieren - wir freuen uns auf Ihren Anruf!
Ein perfekter Standort für Ihr neues Zuhause, der Ruhe, Natur und praktische Erreichbarkeit vereint.
Anbieter kontaktieren
Kontakt
| Telefon | 06551 12 00 |
| Mobil | +49 152 07869220 |
| Website | www.streif.de |
