Charmanter Altbau mit Potenzial: Ideal für Eigennutzer & Kapitalanleger
290.000 €
Kaufpreis
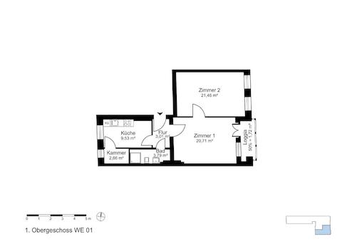
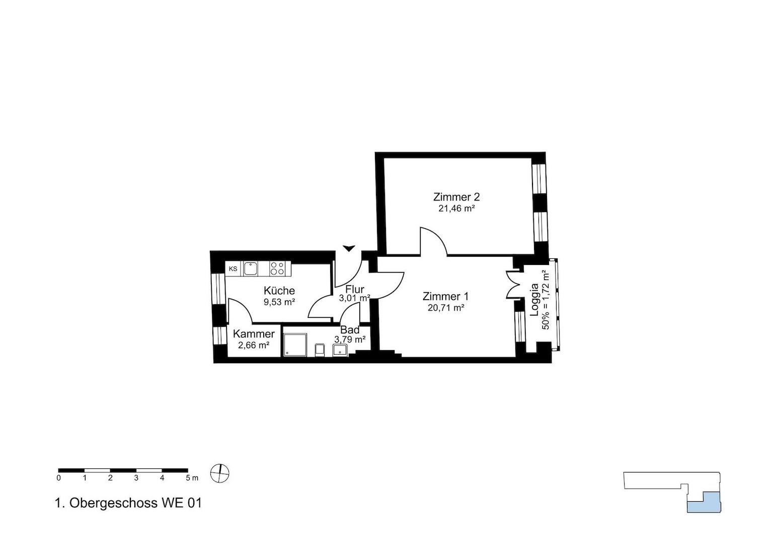
62,88 m²
Wohnfläche
2
Zimmer
immobilien.de Nr.: 9069110
Objektnummer: 5774/WE01
Preise & Kosten
| Kaufpreis | 290.000 € |
| Nebenkosten | keine Angabe |
| Kaufpreis pro m² | 4612 € |
| Hausgeld | 100 € |
Größe & Zustand
| Wohnfläche | 62,88 m² |
| Gesamtfläche | 62,88 m² |
| Zimmer | 2 |
| Baujahr | 1905 |
| Verfügbar ab | bezugsfrei zum 01.08.2025 |
| Zustand | Gepflegt |
Energie
| Energieausweistyp | Verbrauch |
| Ausstellungsdatum | 19. 12. 2023 |
| Gültig bis | 19.12.2033 |
| Energieeffizienzklasse | C |
| Energieverbrauchkennwert | 85,6 kWh/(m²*a) |
| Heizungsart | Etagenheizung |
| Wesentlicher Energieträger | Gas |
| Energieträger/Befeuerung | Gas |
Objektbeschreibung
Dieser charmante Altbau aus dem Jahr 1905 beherbergt 13 Wohneinheiten. Darunter 10 vermietete, eine bezugsfreie und zwei freiwerdende Einheiten, ideal für Eigennutzer und Kapitalanleger. Die Wohnflächen reichen von ca. 51 m² bis ca. 95 m², verteilt auf 1 - 3 Zimmer. Sie begeistern mit gepflegten Dielenböden sowie charmanten Holzkassettentüren. Großzügige Fenster fluten die Räume mit natürlichem Licht und schaffen eine einladende Atmosphäre. Einige Apartments sind mit Loggien, Abstellkammern und Tageslichtbädern ausgestattet.
Im Erdgeschoss ergänzt eine charmante Gewerbeeinheit das Angebot, mit einer Fläche von rund 56 m². Besonders hervorzuheben ist der unausgebaute Dachboden, der Potenzial für zwei weitere Wohneinheiten mit Flächen von ca. 45 m² und ca. 131 m² bietet.
Das gepflegte Gemeinschaftseigentum beeindruckt mit einem kunstvollen Eingangsbereich, dessen Wandfliesen mit floralen Jugendstil-Reliefs und Decken mit Stuckelementen verziert sind. Ein kürzlich neu verputzter Innenhof rundet das Angebot ab.
Die Wohnung ist derzeit vermietet und wird spätestens zum 01.08.2025 bezugsfrei – eine Eigennutzung ist ab diesem Zeitpunkt möglich.
Im Erdgeschoss ergänzt eine charmante Gewerbeeinheit das Angebot, mit einer Fläche von rund 56 m². Besonders hervorzuheben ist der unausgebaute Dachboden, der Potenzial für zwei weitere Wohneinheiten mit Flächen von ca. 45 m² und ca. 131 m² bietet.
Das gepflegte Gemeinschaftseigentum beeindruckt mit einem kunstvollen Eingangsbereich, dessen Wandfliesen mit floralen Jugendstil-Reliefs und Decken mit Stuckelementen verziert sind. Ein kürzlich neu verputzter Innenhof rundet das Angebot ab.
Die Wohnung ist derzeit vermietet und wird spätestens zum 01.08.2025 bezugsfrei – eine Eigennutzung ist ab diesem Zeitpunkt möglich.
Ausstattung
| Anzahl der Etagen im Haus | 5 |
| Inserat befindet sich im Stockwerk | 1 |
| Bad | 1 |
Lage des Objektes
Nahe dem grünen Volkspark Mariendorf - einer der schönsten Erholungsflächen im Süden Berlins - bietet diese Wohnlage weit mehr als nur ein angenehmes Wohnumfeld. Mariendorf ist bekannt für eine harmonische Mischung aus urbanem Leben und entspanntem Wohnen. In der Umgebung finden sich zahlreiche Einkaufsmöglichkeiten, darunter das nahegelegene Hafencenter, das alles für den täglichen Bedarf bietet. Die kulinarische Vielfalt wird durch eine Auswahl an Cafés und Restaurants abgerundet, die zum Verweilen einladen.
Zusätzliche Lebensqualität bieten die Sportmöglichkeiten im Volkspark Mariendorf sowie die Nähe zum Tempelhofer Feld, das nur etwa 4 Kilometer entfernt liegt und Raum für vielfältige Aktivitäten bietet. Auch die beliebte Einkaufsmeile Schloßstraße in Steglitz ist in nur etwa 6 Kilometern erreichbar. Die Anbindung an den öffentlichen Nahverkehr ist hervorragend: Die U-Bahn-Station Westphalweg liegt eine Gehminute entfernt und verbindet die Lage optimal mit der Berliner Innenstadt.
Zusätzliche Lebensqualität bieten die Sportmöglichkeiten im Volkspark Mariendorf sowie die Nähe zum Tempelhofer Feld, das nur etwa 4 Kilometer entfernt liegt und Raum für vielfältige Aktivitäten bietet. Auch die beliebte Einkaufsmeile Schloßstraße in Steglitz ist in nur etwa 6 Kilometern erreichbar. Die Anbindung an den öffentlichen Nahverkehr ist hervorragend: Die U-Bahn-Station Westphalweg liegt eine Gehminute entfernt und verbindet die Lage optimal mit der Berliner Innenstadt.
Anbieter kontaktieren
Anbieter
David Borck Immobiliengesellschaft mbH
Schlüterstr. 45
10707 Berlin
Kontakt
| Telefon | +49 30 887 742 50 |
| Website | www.david-borck.de |
