Provisionsfreie, bauträgerfreie Grundstücke direkt am "Freizeitbad Riff" vom Eigentümer
131.750 €
Kaufpreis
immobilien.de Nr.: 8818736
Objektnummer: 321157
Preise & Kosten
| Kaufpreis | 131.750 € |
| Nebenkosten | keine Angabe |
| Maklerprovision | keine Provision, courtagefrei |
Größe & Zustand
| Grundstücksfläche | 775 m² |
| Verfügbar ab | sofort |
Objektbeschreibung
-Nur noch 3 Grundstücke verfügbar-
Angeboten wird ein gesichert bebaubares und bauträgerfreies Grundstück in der schönen Kurstadt Bad Lausick südöstlich von Leipzig. Das Grundstück ist besonders geeignet für die Bebauung mit einem Einfamilienhaus - die Grundstücksfläche ermöglicht einen 1-2-geschossigen Hausbau mit einer Dachneigung bis 10°. Die Voraussetzungen der Nutzung Erneuerbarer Energien liegen vor. Die Erschließungsstraße ist bereits fertig errichtet und alle notwendigen Medien liegen an.
Was bieten wir:
- bebaubares Grundstück mit gültigem Bebauungsplan (nur Bauanzeige statt Bauantrag erforderlich)
- Erschließung Abwasser, Trinkwasser, Medien anliegend
- ohne Bauträgerbindung
- Grundstück direkt vom Eigentümer
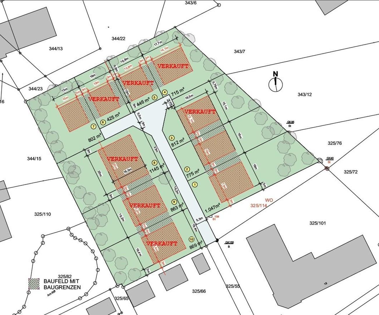
Bei dem hier angebotenen Grundstück handelt es sich um das Grundstück Nr. 2 im Lageplan.
Gerne können Sie uns auch zu einem der anderen noch nicht reservierten Grundstücke kontaktieren.
Angeboten wird ein gesichert bebaubares und bauträgerfreies Grundstück in der schönen Kurstadt Bad Lausick südöstlich von Leipzig. Das Grundstück ist besonders geeignet für die Bebauung mit einem Einfamilienhaus - die Grundstücksfläche ermöglicht einen 1-2-geschossigen Hausbau mit einer Dachneigung bis 10°. Die Voraussetzungen der Nutzung Erneuerbarer Energien liegen vor. Die Erschließungsstraße ist bereits fertig errichtet und alle notwendigen Medien liegen an.
Was bieten wir:
- bebaubares Grundstück mit gültigem Bebauungsplan (nur Bauanzeige statt Bauantrag erforderlich)
- Erschließung Abwasser, Trinkwasser, Medien anliegend
- ohne Bauträgerbindung
- Grundstück direkt vom Eigentümer
Bei dem hier angebotenen Grundstück handelt es sich um das Grundstück Nr. 2 im Lageplan.
Gerne können Sie uns auch zu einem der anderen noch nicht reservierten Grundstücke kontaktieren.
Sonstige Informationen
Alle Angaben auf diesen Seiten sind lediglich eine unverbindliche Vorabinformation. Im Speziellen geben die fotografischen, digitalisierten und zeichnerischen Darstellungen, deren farbliche Gestaltung, die Belichtungsverhältnisse und sonstige Gestaltungsdetails, wie z.B. der visualisierte Ausblick aus den Fenstern oder die Gartengestaltung ausschließlich die Sicht des Illustrators wieder und es handelt sich nicht um reale, sondern digitalisierte Visualisierungen und Fotomontagen; diese sind nicht verbindlich. Die verwendeten Fotos, digitalen Visualisierungen und Zeichnungen stellen lediglich Beispiele dar, die in dem Objekt noch nicht vorhanden sind, sondern so oder ähnlich realisiert werden können. Sie haben Beispielcharakter, es können Sonderausstattungen abgebildet sein und die spätere Ausführung kann im Detail abweichen. Abgebildete Einrichtungsgegenstände gehören nicht zum geschuldeten Ausstattungsumfang. Der geschuldete Leistungsumfang wird einzig und allein durch den Inhalt des notariellen Kaufvertrags und dessen Anlagen bestimmt.
Makleranfragen nicht erwünscht. Nach § 7 UWG sind unaufgeforderte Kontaktaufnahmen durch Makler ohne ausdrückliche Einwilligung des Empfängers verboten!
Makleranfragen nicht erwünscht. Nach § 7 UWG sind unaufgeforderte Kontaktaufnahmen durch Makler ohne ausdrückliche Einwilligung des Empfängers verboten!
Lage des Objektes
Die Stadt Bad Lausick liegt im Landkreis Leipzig, südöstlich der Großstadt Leipzig (25 km).
Die Bundesstraße 176 und die Bahnstrecke Chemnitz-Leipzig führen durch die Stadt Bad Lausick und gewährleisten eine optimale Anbindung. Über die nahe gelegene Autobahn erreichen Sie die umliegenden Regionen und auch die Metropole Leipzig in kürzester Zeit.
Das herrlich grüne Umfeld, die gute Infrastruktur, vielfältige Einkaufsmöglichkeiten sowie Schulen und Kindergärten sind Garantien dafür, dass man sich hier wohlfühlen kann.
Der Kurpark mit Freilichtbühne, der Colditzer-Forst oder auch das angrenzende Freizeitbad RIFF sind nur einige der begehrten Ausflugsziele und beliebt bei jung und alt.
Leben Sie dort, wo andere für kurze Zeit ihre Kur und Wellness genießen dürfen.
Infrastruktur (im Umkreis von 5 km):
Apotheke, Lebensmittel-Discount, Allgemeinmediziner, Kindergarten, Grundschule, Realschule, Öffentliche Verkehrsmittel
Die Bundesstraße 176 und die Bahnstrecke Chemnitz-Leipzig führen durch die Stadt Bad Lausick und gewährleisten eine optimale Anbindung. Über die nahe gelegene Autobahn erreichen Sie die umliegenden Regionen und auch die Metropole Leipzig in kürzester Zeit.
Das herrlich grüne Umfeld, die gute Infrastruktur, vielfältige Einkaufsmöglichkeiten sowie Schulen und Kindergärten sind Garantien dafür, dass man sich hier wohlfühlen kann.
Der Kurpark mit Freilichtbühne, der Colditzer-Forst oder auch das angrenzende Freizeitbad RIFF sind nur einige der begehrten Ausflugsziele und beliebt bei jung und alt.
Leben Sie dort, wo andere für kurze Zeit ihre Kur und Wellness genießen dürfen.
Infrastruktur (im Umkreis von 5 km):
Apotheke, Lebensmittel-Discount, Allgemeinmediziner, Kindergarten, Grundschule, Realschule, Öffentliche Verkehrsmittel
Anbieter kontaktieren
Kontakt
| Telefon | 034296 349810 |
| Fax | - |
| Website | www.ohne-makler.net |
