Sonnige Wohnung mit 4,5 Zimmer, Schreinerküche & Stellplätzen I Ideal für Anleger & Eigennutzer
430.000 €
Kaufpreis
148 m²
Wohnfläche
169 m²
Nutzfläche
4
Zimmer
immobilien.de Nr.: 8785040
Objektnummer: 131
Preise & Kosten
| Kaufpreis | 430.000 € |
| Nebenkosten | keine Angabe |
| Maklerprovision | 3,57 % inkl. MwSt. |
| Stellplatz Freiplatz Kaufpreis | 10.000 € |
Größe & Zustand
| Wohnfläche | 148 m² |
| Nutzfläche | 169 m² |
| Zimmer | 4 |
| Baujahr | 1988 |
| Verfügbar ab | keine Angabe |
| Zustand | Teil Vollrenoviert |
Energie
| Heizungsart | Zentralheizung |
| Energieträger/Befeuerung | Elektro |
Objektbeschreibung
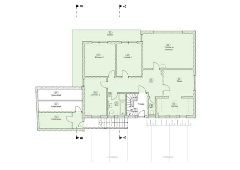
Die sonnige und geräumige Wohnung in 89331 Burgau bietet eine Wohnfläche von 148 Quadratmetern und ist Teil eines Mehrfamilienhauses mit nur drei Parteien. Die Wohnung wurde 1988 erbaut, 2018 umfassend saniert und 2024 renoviert. Sie verfügt über vier helle Zimmer mit separatem Balkonzugang, eine hochwertige Schreinerküche, ein modernes Bad sowie ein zusätzliches Gäste-WC. Der großzügige Süd-Balkon bietet einen herrlichen Blick über Burgau und sorgt für viel natürliches Licht in der Wohnung.
Dank der umfangreichen Renovierung und energetischen Optimierung im Jahr 2024 genießen Sie modernsten Wohnkomfort: eine Dämmung der Wände (Januar 2024), eine Brauchwasserwärmepumpe (Juni 2024) und eine Photovoltaik-Anlage (September 2024) tragen zu einer nachhaltigen und kostensparenden Energieversorgung bei. Die Heizung erfolgt über eine Kombination aus Brauchwasserwärmepumpe und modernen Flächenspeichern in Verbindung mit Photovoltaik. Zusätzlich verfügt die Wohnung über zwei Schwedenöfen, die besonders in der kalten Jahreszeit für behagliche Wärme und eine gemütliche Atmosphäre sorgen.
Diese helle und sonnige Wohnung mit großem Süd-Balkon ist ideal für Familien, die Wert auf modernen Komfort und nachhaltiges Wohnen legen.
Dank der umfangreichen Renovierung und energetischen Optimierung im Jahr 2024 genießen Sie modernsten Wohnkomfort: eine Dämmung der Wände (Januar 2024), eine Brauchwasserwärmepumpe (Juni 2024) und eine Photovoltaik-Anlage (September 2024) tragen zu einer nachhaltigen und kostensparenden Energieversorgung bei. Die Heizung erfolgt über eine Kombination aus Brauchwasserwärmepumpe und modernen Flächenspeichern in Verbindung mit Photovoltaik. Zusätzlich verfügt die Wohnung über zwei Schwedenöfen, die besonders in der kalten Jahreszeit für behagliche Wärme und eine gemütliche Atmosphäre sorgen.
Diese helle und sonnige Wohnung mit großem Süd-Balkon ist ideal für Familien, die Wert auf modernen Komfort und nachhaltiges Wohnen legen.
Ausstattung
| Inserat befindet sich im Stockwerk | 0 |
| Bad | 1 |
| Balkone | 1 |
Die hochwertige Schreinerküche ist mit Top-Geräten ausgestattet, darunter ein Bora-Kochfeld und ein Neff-Dampfgarer. Zur Wohnung gehören außerdem zwei Stellplätze und ein zusätzlicher Kellerraum, der für ausreichend Stauraum sorgt.
Sonstige Informationen
Die Wohnung ist aktuell vermietet. Die Mieteinnahmen belaufen sich auf 1.800 Euro Kaltmiete. Der Mietvertrag kann vom Käufer übernommen und die Wohnung damit als attraktive Kapitalanlage genutzt werden. Alternativ erlaubt der aktuelle Mietvertrag eine Kündigung mit Vorlauf von 3 Monaten, sodass auch einem Selbstbezug nichts im Weg steht.
Der Energieausweis liegt bei Besichtigung vor.
Haben wir Ihr Interesse geweckt? Dann kontaktieren Sie uns gerne, damit wir Ihre Fragen beantworten können.
Gerne vereinbaren wir auch einen Besichtigungstermin vor Ort mit Ihnen, bei dem wir das Objekt ausführlich vorstellen und Ihre Fragen beantworten können.
Der Energieausweis liegt bei Besichtigung vor.
Haben wir Ihr Interesse geweckt? Dann kontaktieren Sie uns gerne, damit wir Ihre Fragen beantworten können.
Gerne vereinbaren wir auch einen Besichtigungstermin vor Ort mit Ihnen, bei dem wir das Objekt ausführlich vorstellen und Ihre Fragen beantworten können.
Kontakt
| Telefon | 01712202112 |
| Fax | 08225 3375 |
| Website | www.immobilien-krumm.de |
