HH-Poppenbüttel, DHH mit Einzelhauscharakter & traumhaften Blick auf eine Pferdewiese - geplanter Neubau-KfW-40-DHH mit 4 Zimmern - inkl. Bauneben u. HA-Kosten
549.800 €
Kaufpreis
104 m²
Wohnfläche
33 m²
Nutzfläche
4
Zimmer
immobilien.de Nr.: 8751673
Objektnummer: KUPF_WE1_oST_V1
Preise & Kosten
| Kaufpreis | 549.800 € |
| Nebenkosten | keine Angabe |
Größe & Zustand
| Wohnfläche | 104 m² |
| Nutzfläche | 33 m² |
| Grundstücksfläche | 288 m² |
| Zimmer | 4 |
| Baujahr | 2025 |
| Verfügbar ab | 2025 |
Energie
| Energietyp | KfW-40 |
| Heizungsart | Fußbodenheizung |
| Energieträger/Befeuerung | Luft-Wärme-Pumpe |
Objektbeschreibung
geplante KfW-40-Doppelhaushälfte mit nachfolgenden Besonderheiten:
- Hauserstellung in Massivbauweise gemäß Baubeschreibung
- Baugenehmigung liegt vor !!
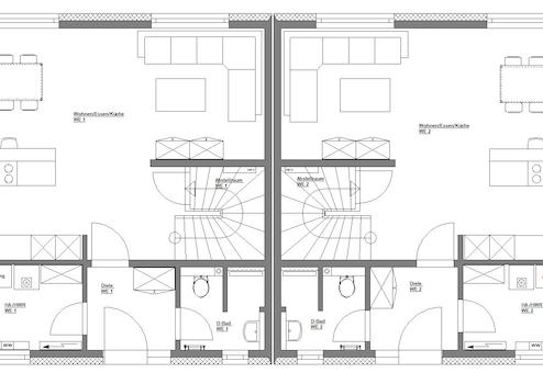
- ca. 104 m² Wohnfläche ohne Studio pro DHH
- 4 Zimmer
- ca. 288 m² und 274 m² Grundstücksanteile (inkl. anteiliger Zufahrt)
- KfW-Effizienzhaus 40 Ausführung (Förderprogramme 297, 298 oder 300 – ohne QNG)
- Luftwasserwärmepumpe inkl. Außengerät (deutsches Markenfabrikat)
- ca. 277 L Warmwasserspeicher für Brauchwasser
- zentrale Lüftungsanlage mit ca. 90% Wärmerückgewinnung
- Fußbodenheizung mit Einzelraumregelung in allen Geschossen
- 12 cm Untersohlendämmung
- hochwertige, weiße Putzfassade mit 18 cm WDVS inkl. zusätzlicher Schutzschicht gegen Witterungseinflüsse
- Sockel ca. 40 cm Höhe mit anthrazitfarbenen Buntsteinputz
- 50°/22° halbes Mansarddach - Eindeckung mit Tondachpfannen, Dachunterschläge in Kunststoff weiß
- 1,50 m hoher Drempel (OK Rohfußboden)
- zwei moderne Gauben zur Eingangsseite mit bodentiefen Fenstern - bietet viel Licht + eine optimale Ausnutzung im OG
- eine große Gaube über beide DHH mit bodentiefen Fenstern
- ca. 17 m² (ca. 32 m² Bodenfläche) ausbaufähiges Studio mit großzügigem, bodentiefem Giebelfenster – bietet Licht und zusätzlichen Raum für ein Gäste/Arbeitszimmer
- hochwertige Kunststoff-Fenster – außen anthrazit, innen weiß
- 3-fach Wärmeschutzverglasung Ug=0,5
- abschließbare Fenstergriffe
- einbruchhemmenden Sicherheitsbeschlägen (RC2) Pilzkopf
- hochwertige Hauseingangstür mit schmalem Seitenteil – außen anthrazit – innen weiß
- formschöne, geschlossene Massivholztreppe vom EG zum OG mit darunterliegendem Abstellraum-Treppe erhält einen Piano Schallschutz
- 2 Bäder mit hochwertiger Ausstattung, z.B.
- 1 Gäste Duschbad im EG mit einer Walk-In-Dusche, einem spülrandlosen WC sowie einem Waschbecken
- 1 Vollbad im OG mit einer 1,80 m großen Duo-Wanne, einer Walk-In-Dusche, einem Waschbecken sowie einem spülrandlosen WC
- 70 m² Fliesenfläche – Wert der Fliesen 30,-€ brutto/m²
- 5 Jahre Gewährleistung gem. BGB
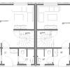
- individuelle Grundrissgestaltung – auf Wunsch ändern wir die Grundrisse – so wie Sie leben wollen
Sonstiges
Zu dem genannten Preis müssten Sie die Kosten für Maler- und Bodenbelagsarbeiten, Einbauküche, Außenanlage wie Pflasterarbeiten sowie Gartengestaltung, Photovoltaikanlage, Notar- und Grunderwerbssteuer in Ihr Budget mit einkalkulieren.
Die Angebote für die Bauneben- und Hausanschlusskosten liegen bereits vor. Bei der Organisation der Bauneben- und Hausanschlussleistungen stehen wir Ihnen gern zur Seite. Die Aufträge werden von Ihnen als Bauherr/Grundstückseigentümer direkt mit den entsprechenden Behörden bzw. Versorgern abgerechnet.
Gerne erstellen wir Ihnen einen bankprüffähigen Budgetplan.
Die beigefügten Grundrisse sind Vorschläge und können individuell nach Ihren Wohnwünschen verändert werden. Sprechen Sie uns gerne an.
Die in diesem Exposé gemachten Angaben beruhen auf Aussagen von Grundstückseigentümern, Maklern, Bauhandwerkern, Architekten etc.
Hierfür kann keine Gewähr übernommen werden
Dies gilt ebenfalls für Eingabefehler.
Die gemachten Angaben können sich auch während der Vertriebszeit noch ändern.
Dieses Exposé ist kein Kaufangebot an einen Interessenten/Käufer und dient nur der Erstinformation. Der Interessent/ Käufer hat keinen Rechtsanspruch auf die hier gemachten Angaben.
- Hauserstellung in Massivbauweise gemäß Baubeschreibung
- Baugenehmigung liegt vor !!
- ca. 104 m² Wohnfläche ohne Studio pro DHH
- 4 Zimmer
- ca. 288 m² und 274 m² Grundstücksanteile (inkl. anteiliger Zufahrt)
- KfW-Effizienzhaus 40 Ausführung (Förderprogramme 297, 298 oder 300 – ohne QNG)
- Luftwasserwärmepumpe inkl. Außengerät (deutsches Markenfabrikat)
- ca. 277 L Warmwasserspeicher für Brauchwasser
- zentrale Lüftungsanlage mit ca. 90% Wärmerückgewinnung
- Fußbodenheizung mit Einzelraumregelung in allen Geschossen
- 12 cm Untersohlendämmung
- hochwertige, weiße Putzfassade mit 18 cm WDVS inkl. zusätzlicher Schutzschicht gegen Witterungseinflüsse
- Sockel ca. 40 cm Höhe mit anthrazitfarbenen Buntsteinputz
- 50°/22° halbes Mansarddach - Eindeckung mit Tondachpfannen, Dachunterschläge in Kunststoff weiß
- 1,50 m hoher Drempel (OK Rohfußboden)
- zwei moderne Gauben zur Eingangsseite mit bodentiefen Fenstern - bietet viel Licht + eine optimale Ausnutzung im OG
- eine große Gaube über beide DHH mit bodentiefen Fenstern
- ca. 17 m² (ca. 32 m² Bodenfläche) ausbaufähiges Studio mit großzügigem, bodentiefem Giebelfenster – bietet Licht und zusätzlichen Raum für ein Gäste/Arbeitszimmer
- hochwertige Kunststoff-Fenster – außen anthrazit, innen weiß
- 3-fach Wärmeschutzverglasung Ug=0,5
- abschließbare Fenstergriffe
- einbruchhemmenden Sicherheitsbeschlägen (RC2) Pilzkopf
- hochwertige Hauseingangstür mit schmalem Seitenteil – außen anthrazit – innen weiß
- formschöne, geschlossene Massivholztreppe vom EG zum OG mit darunterliegendem Abstellraum-Treppe erhält einen Piano Schallschutz
- 2 Bäder mit hochwertiger Ausstattung, z.B.
- 1 Gäste Duschbad im EG mit einer Walk-In-Dusche, einem spülrandlosen WC sowie einem Waschbecken
- 1 Vollbad im OG mit einer 1,80 m großen Duo-Wanne, einer Walk-In-Dusche, einem Waschbecken sowie einem spülrandlosen WC
- 70 m² Fliesenfläche – Wert der Fliesen 30,-€ brutto/m²
- 5 Jahre Gewährleistung gem. BGB
- individuelle Grundrissgestaltung – auf Wunsch ändern wir die Grundrisse – so wie Sie leben wollen
Sonstiges
Zu dem genannten Preis müssten Sie die Kosten für Maler- und Bodenbelagsarbeiten, Einbauküche, Außenanlage wie Pflasterarbeiten sowie Gartengestaltung, Photovoltaikanlage, Notar- und Grunderwerbssteuer in Ihr Budget mit einkalkulieren.
Die Angebote für die Bauneben- und Hausanschlusskosten liegen bereits vor. Bei der Organisation der Bauneben- und Hausanschlussleistungen stehen wir Ihnen gern zur Seite. Die Aufträge werden von Ihnen als Bauherr/Grundstückseigentümer direkt mit den entsprechenden Behörden bzw. Versorgern abgerechnet.
Gerne erstellen wir Ihnen einen bankprüffähigen Budgetplan.
Die beigefügten Grundrisse sind Vorschläge und können individuell nach Ihren Wohnwünschen verändert werden. Sprechen Sie uns gerne an.
Die in diesem Exposé gemachten Angaben beruhen auf Aussagen von Grundstückseigentümern, Maklern, Bauhandwerkern, Architekten etc.
Hierfür kann keine Gewähr übernommen werden
Dies gilt ebenfalls für Eingabefehler.
Die gemachten Angaben können sich auch während der Vertriebszeit noch ändern.
Dieses Exposé ist kein Kaufangebot an einen Interessenten/Käufer und dient nur der Erstinformation. Der Interessent/ Käufer hat keinen Rechtsanspruch auf die hier gemachten Angaben.
Ausstattung
| Anzahl der Etagen im Haus | 3 |
| Küche | Offene Küche |
| Bad | 2 |
| Terrassen | 1 |
| Dachboden |
Sonstige Informationen
Der genannte Kaufpreis beinhaltet die Kosten für das Grundstück inkl. Courtage, die Herstellungskosten für das Haus gemäß Komfort-Baubeschreibung sowie der Bauneben- und Hausanschlusskosten.
FÖRDERUNG IN HAMBURG
Die IFB Hamburg bietet interessante Eigenheimdarlehen für Neubauten in Hamburg an.
derzeitige Förderkonditionen:
- das maximale Darlehensvolumen ist 150.000 €
- die Zinsbindung beträgt 15 Jahre
- der Zinssatz beträgt 2 %
Weitere Informationen erhalten Sie auf der Homepage der IFB Hamburg:
https://www.ifbhh.de/foerderprogramm/ifb-eigenheimdarlehen
KfW-Förderprogramme
Die Ausführung des Bauvorhabens erfolgt als KfW-Effizienzhauses 40 und entspricht den technischen Anforderungen des Förderprogramme 297, 298 oder 300 (ohne QNG).
Über die Konditionen und Ihre persönlichen Voraussetzungen informieren Sie sich gerne auf der Internetseite der KfW-Bank (klimafreundlicher Neubau).
FÖRDERUNG IN HAMBURG
Die IFB Hamburg bietet interessante Eigenheimdarlehen für Neubauten in Hamburg an.
derzeitige Förderkonditionen:
- das maximale Darlehensvolumen ist 150.000 €
- die Zinsbindung beträgt 15 Jahre
- der Zinssatz beträgt 2 %
Weitere Informationen erhalten Sie auf der Homepage der IFB Hamburg:
https://www.ifbhh.de/foerderprogramm/ifb-eigenheimdarlehen
KfW-Förderprogramme
Die Ausführung des Bauvorhabens erfolgt als KfW-Effizienzhauses 40 und entspricht den technischen Anforderungen des Förderprogramme 297, 298 oder 300 (ohne QNG).
Über die Konditionen und Ihre persönlichen Voraussetzungen informieren Sie sich gerne auf der Internetseite der KfW-Bank (klimafreundlicher Neubau).
Lage des Objektes
Die Lage
Hamburg-Poppenbüttel gehört zum begehrten Alstertal und liegt im Norden von Hamburg. Die junge Altersstruktur, die grüne Umgebung sowie die ideale Anbindung an öffentliche Verkehrsmittel sind beste Voraussetzungen für junge Familien mit Kindern.
Verkehrsverbindungen:
Die Haltestelle „Heimgarten“ (Linie 178) liegt ca. 3 Gehminuten vom Grundstück entfernt. Von dort gelangen Sie in ca. 10 Fahrminuten zu S-Bahn-Station Poppenbüttel (S1). In weiteren 20 Fahrminuten sind Sie in der Hamburger City. Mit dem PKW gelangen Sie über den Ring 3 in ca. 25 Minuten in die Hamburger Innenstadt.
Kitas und Schulen:
Durch die zentrale Lage im Alstertal haben Ihre Kinder eine vielfältige Auswahl an Schulen und Kindergärten. So befindet sich z.B. im Schulbergredder ein Kindergarten, sowie eine Grund- und Stadtteilschule. Eine weitere Kita ist fußläufig entfernt an der Harksheider Straße. Auch die Auswahl an Gymnasien im Umfeld, die mit dem Fahrrad oder dem Bus gut zu erreichen sind, ist groß (z.B. Heinrich-Heine-Gymnasium, Gymnasium Oberalster, Carl-von-Ossietzky Gymnasium)
Einkaufsmöglichkeiten:
Alle Einkaufsmöglichkeiten für den täglichen Bedarf, Ärzte, Apotheken und Banken sind im Umfeld gelegen (z.B. Harksheider Straße oder Poppenbütteler Markt). Für ausgiebige Shoppingtouren lädt ein Besuch im Alstertaler Einkaufszentrum ein.
Sport und Freizeitmöglichkeiten
Hamburg Poppenbüttel ist geprägt durch zahlreiche Grünflächen. Der Alsterwanderweg lädt zu langen Spaziergängen oder zum Radeln ein. Ein beliebter Stopp dabei ist die Poppenbütteler Schleuse. Insbesondere der nahe gelegene Kupferteich zieht immer wieder Freizeithungrige wie Reiter, Jogger oder Spaziergänger an. Dort gibt es neben zahlreichen Sitzgelegenheiten, auch einen Spielplatz sowie eine Hundewiese.
Das Grundstück befindet sich im schönen Stadtteil Hamburg-Poppenbüttel, in einer ruhigen Wohnstraße. Gegenüber vom Grundstück befindet sich eine große Pferdewiese.
Auf dem Grundstück entstehen im vorderen Teil zwei Doppelhaushälften mit Einzelhauscharakter durch getrennte Terrassen und im hinteren Teil ein Einfamilienhaus.
Hier können Ihre Kinder noch im Grünen aufwachsen
Zwecks Besichtigung des Grundstückes vereinbaren Sie einen Besichtigungstermin mit Herrn Thomas Behrens unter 0172- 432 11 98. Überzeugen Sie sich persönlich von der traumhaften Lage des Grundstückes.
Hamburg-Poppenbüttel gehört zum begehrten Alstertal und liegt im Norden von Hamburg. Die junge Altersstruktur, die grüne Umgebung sowie die ideale Anbindung an öffentliche Verkehrsmittel sind beste Voraussetzungen für junge Familien mit Kindern.
Verkehrsverbindungen:
Die Haltestelle „Heimgarten“ (Linie 178) liegt ca. 3 Gehminuten vom Grundstück entfernt. Von dort gelangen Sie in ca. 10 Fahrminuten zu S-Bahn-Station Poppenbüttel (S1). In weiteren 20 Fahrminuten sind Sie in der Hamburger City. Mit dem PKW gelangen Sie über den Ring 3 in ca. 25 Minuten in die Hamburger Innenstadt.
Kitas und Schulen:
Durch die zentrale Lage im Alstertal haben Ihre Kinder eine vielfältige Auswahl an Schulen und Kindergärten. So befindet sich z.B. im Schulbergredder ein Kindergarten, sowie eine Grund- und Stadtteilschule. Eine weitere Kita ist fußläufig entfernt an der Harksheider Straße. Auch die Auswahl an Gymnasien im Umfeld, die mit dem Fahrrad oder dem Bus gut zu erreichen sind, ist groß (z.B. Heinrich-Heine-Gymnasium, Gymnasium Oberalster, Carl-von-Ossietzky Gymnasium)
Einkaufsmöglichkeiten:
Alle Einkaufsmöglichkeiten für den täglichen Bedarf, Ärzte, Apotheken und Banken sind im Umfeld gelegen (z.B. Harksheider Straße oder Poppenbütteler Markt). Für ausgiebige Shoppingtouren lädt ein Besuch im Alstertaler Einkaufszentrum ein.
Sport und Freizeitmöglichkeiten
Hamburg Poppenbüttel ist geprägt durch zahlreiche Grünflächen. Der Alsterwanderweg lädt zu langen Spaziergängen oder zum Radeln ein. Ein beliebter Stopp dabei ist die Poppenbütteler Schleuse. Insbesondere der nahe gelegene Kupferteich zieht immer wieder Freizeithungrige wie Reiter, Jogger oder Spaziergänger an. Dort gibt es neben zahlreichen Sitzgelegenheiten, auch einen Spielplatz sowie eine Hundewiese.
Das Grundstück befindet sich im schönen Stadtteil Hamburg-Poppenbüttel, in einer ruhigen Wohnstraße. Gegenüber vom Grundstück befindet sich eine große Pferdewiese.
Auf dem Grundstück entstehen im vorderen Teil zwei Doppelhaushälften mit Einzelhauscharakter durch getrennte Terrassen und im hinteren Teil ein Einfamilienhaus.
Hier können Ihre Kinder noch im Grünen aufwachsen
Zwecks Besichtigung des Grundstückes vereinbaren Sie einen Besichtigungstermin mit Herrn Thomas Behrens unter 0172- 432 11 98. Überzeugen Sie sich persönlich von der traumhaften Lage des Grundstückes.
Anbieter kontaktieren
Kontakt
| Telefon | 04053894311 |
| Mobil | 01729111150 |
| Website | www.pro-haus.de |
