Grundstück in Top-Lage mit genehmigten Vorbescheid für 4 Wohneinheiten in Pfarrkirchen-Reichenberg
383.500 €
Kaufpreis
302 m²
Wohnfläche
5
Zimmer
immobilien.de Nr.: 8751619
Objektnummer: AOE__2024_2353
Preise & Kosten
| Kaufpreis | 383.500 € |
| Nebenkosten | keine Angabe |
| Maklerprovision | 3,57% Courtage jeweils für Verkäufer und Käufer |
Größe & Zustand
| Wohnfläche | 302 m² |
| Grundstücksfläche | 1.300 m² |
| Zimmer | 5 |
| Baujahr | 1984 |
| Verfügbar ab | keine Angabe |
Energie
| Energieausweistyp | Verbrauch |
| Ausstellungsdatum | 31. 12. 2020 |
| Gültig bis | 2030-12-31 |
| Baujahr (laut Energieausweis) | 1984 |
| Energieeffizienzklasse | F |
| Energieverbrauchkennwert | 199.70 kWh/(m²*a) |
| Wesentlicher Energieträger | Gas |
| Energieträger/Befeuerung | Gas |
Objektbeschreibung
ARCHITEKTENHAUS (derzeit vermietet)
• Baujahr 1984 - Exklusives Wohnen und Arbeiten
• Ideal für Wohnen/Geschäft/Mieteinnahmen
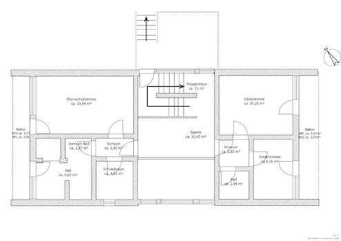
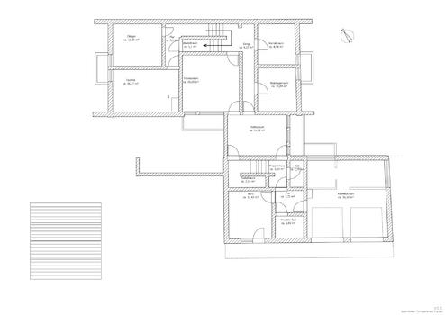
ERDGESCHOSS
• Schöne - gemütliche Einliegerwohnung
• Offener - vielseitiger Wohnraum mit Terrasse
• Sehr schöner Freisitz für gemütliche Stunden
OBERGESCHOSS
• Sehr schöner - großer Wohnraum mit Galerie
UNTERGESCHOSS
• Sehr großes - vielseitiges Untergeschoss
•• Wellness, Hobby, Weinlager, Gewerbe, usw..
GRUNDSTÜCK
• Eingewachsenes Grundstück im grünen – zentrale Lage
• Vielseitige Möglichkeiten am Gesamtgrundstück umsetzbar
• Grundstück für erweiterten Bau/Neubau
•• Nebengebäude / Doppelhaushälfte / Einfamilienhaus / Wohnungen
TOP - LAGE
• Das attraktivste Gebiet gehört zu Reichenberg
•• Einer der erhöhten, schönsten und teuersten Lagen
•• Sehr ruhig, aber trotzdem sehr zentrumsnah
Wenn Träume war werden.....
NEUBAU für eine großzügige Villa mit Swimmingpool
GENEHMIGTER VORBESCHEID FÜR DAS BESTANDSGEBÄUDE MIT 5 WOHNEINHEITEN
GENEHMIGTER VORBESCHEID FÜR EINEN NEUBAU MIT 4 WOHNEINHEITEN
PREIS BEZIEHT SICH NUR AUF DAS GRUNDSTÜCK OHNE IMMOBILIE
• Baujahr 1984 - Exklusives Wohnen und Arbeiten
• Ideal für Wohnen/Geschäft/Mieteinnahmen
ERDGESCHOSS
• Schöne - gemütliche Einliegerwohnung
• Offener - vielseitiger Wohnraum mit Terrasse
• Sehr schöner Freisitz für gemütliche Stunden
OBERGESCHOSS
• Sehr schöner - großer Wohnraum mit Galerie
UNTERGESCHOSS
• Sehr großes - vielseitiges Untergeschoss
•• Wellness, Hobby, Weinlager, Gewerbe, usw..
GRUNDSTÜCK
• Eingewachsenes Grundstück im grünen – zentrale Lage
• Vielseitige Möglichkeiten am Gesamtgrundstück umsetzbar
• Grundstück für erweiterten Bau/Neubau
•• Nebengebäude / Doppelhaushälfte / Einfamilienhaus / Wohnungen
TOP - LAGE
• Das attraktivste Gebiet gehört zu Reichenberg
•• Einer der erhöhten, schönsten und teuersten Lagen
•• Sehr ruhig, aber trotzdem sehr zentrumsnah
Wenn Träume war werden.....
NEUBAU für eine großzügige Villa mit Swimmingpool
GENEHMIGTER VORBESCHEID FÜR DAS BESTANDSGEBÄUDE MIT 5 WOHNEINHEITEN
GENEHMIGTER VORBESCHEID FÜR EINEN NEUBAU MIT 4 WOHNEINHEITEN
PREIS BEZIEHT SICH NUR AUF DAS GRUNDSTÜCK OHNE IMMOBILIE
Ausstattung
| Bad | 4 |
| Terrassen | 1 |
Sonstige Informationen
Es liegt ein Energieverbrauchsausweis vor.
Dieser ist gültig bis 31.12.2030.
Endenergieverbrauch beträgt 199.70 kwh/(m²*a).
Wesentlicher Energieträger der Heizung ist Gas.
Das Baujahr des Objekts lt. Energieausweis ist 1984.
Die Energieeffizienzklasse ist F.
Dieser ist gültig bis 31.12.2030.
Endenergieverbrauch beträgt 199.70 kwh/(m²*a).
Wesentlicher Energieträger der Heizung ist Gas.
Das Baujahr des Objekts lt. Energieausweis ist 1984.
Die Energieeffizienzklasse ist F.
Lage des Objektes
EXKLUSIV NUR BEI UNS!
Wir EuV Immobilien. GmbH mit unserem Büro in Pfarrkirchen bieten Ihnen exklusiv diese Architekten Villa mit großem Grundstück in Pfarrkirchen an.
KONTAKTIEREN SIE IHREN PERSÖNLICHEN BERATER
Robert Ausweger
Mobil: -+49 171 8657027
Telefon: +49 8561 91 85 066
Mail: robert.ausweger@remax.de
Mail: pfarrkirchen@ev-immo.de
Ob es der Besuch des Naturerholungs- und Lehrgebietes entlang der Rott ist, das alle Naturinteressen einladet, ein Stück die heimische Natur zu entdecken oder auch einen Einblick in die Artenvielfalt zu gewinnen. In Bad Griesbach, das nur ca. 25 km entfernt liegt, befindet sich eine der größten Golfanlagen Europas, bestehend aus sechs 18-Loch-Meisterschaftsplätzen, drei 9-Loch- und zwei 6-Loch-Plätzen sowie die größte Golfschule der Welt. Die Freizeitangebote in dem Kurort umfasst Radfahren, Wandern, Reiten, Tennis spielen im Tennisclub Bad Griesbach mit seinen sechs gepflegten Sandplätzen und Minigolfen, ein Hochseilgarten und 17 verschiedene Nordic Walking-Strecken stehen den Freizeitsportlern zur Auswahl.
Viele örtliche Vereine bieten ein sehr breites Spektrum an Freizeitaktivitäten an.
Ein Beispiel eines Vereines, der in Pfarrkirchen ansässig ist, ist die Altschützengesellschaft in Pfarrkirchen.
EINKAUFEN
Die Geschäfte für die Bedürfnisse des täglichen Bedarfs finden Sie in in Pfarrkirchen am Stadtplatz.
Verschiedene Firmen, wie zum Beispiel „WEKO-WOHNEN GMBH“ oder auch weitere Firmen, können Sie natürlich jederzeit Besuchen.Besondere weitere Firmen finden Sie natürlich auch in den Städten im Umkreis.
VERKEHR
Pfarrkirchen ist sehr verkehrsgünstig gelegen; direkt an der B388 die bis nach Passau reicht.
Es sind ca. 125 km in die Landeshauptstadt München, ca. 50 km nach Passau und ca. 85 km nach Salzburg. Ebenfalls haben Sie in Pfarrkirchen einen kleinen Flughafen, der hauptsächlich als Segelflughafen genutzt wird, jedoch können auch andere Flugzeuge aller Art bis 2.000 kg Höchstabfluggewicht landen und starten.
Den Flughafen München erreichen Sie in ca. 124 km, den Flughafen Linz und Salzburg in ca. 140 km und den „Airport“ Vilshofen in nur 34 Autominuten. Auch befinden sich in dem Ort ein Bahnhof.
Von hier aus haben Sie Anschlüsse nach Eggenfelden und Passau.
MEHR DAZU UND WEITER INFOS FINDEN SIE Z.B. UNTER:
• https://pfarrkirchen.de/
•https://de.wikipedia.org/wiki/Pfarrkirchn
• https://www.rottal-inn.de/
• https://de.wikipedia.org/wiki/Landkreis_Rottal-Inn
Wir EuV Immobilien. GmbH mit unserem Büro in Pfarrkirchen bieten Ihnen exklusiv diese Architekten Villa mit großem Grundstück in Pfarrkirchen an.
KONTAKTIEREN SIE IHREN PERSÖNLICHEN BERATER
Robert Ausweger
Mobil: -+49 171 8657027
Telefon: +49 8561 91 85 066
Mail: robert.ausweger@remax.de
Mail: pfarrkirchen@ev-immo.de
Ob es der Besuch des Naturerholungs- und Lehrgebietes entlang der Rott ist, das alle Naturinteressen einladet, ein Stück die heimische Natur zu entdecken oder auch einen Einblick in die Artenvielfalt zu gewinnen. In Bad Griesbach, das nur ca. 25 km entfernt liegt, befindet sich eine der größten Golfanlagen Europas, bestehend aus sechs 18-Loch-Meisterschaftsplätzen, drei 9-Loch- und zwei 6-Loch-Plätzen sowie die größte Golfschule der Welt. Die Freizeitangebote in dem Kurort umfasst Radfahren, Wandern, Reiten, Tennis spielen im Tennisclub Bad Griesbach mit seinen sechs gepflegten Sandplätzen und Minigolfen, ein Hochseilgarten und 17 verschiedene Nordic Walking-Strecken stehen den Freizeitsportlern zur Auswahl.
Viele örtliche Vereine bieten ein sehr breites Spektrum an Freizeitaktivitäten an.
Ein Beispiel eines Vereines, der in Pfarrkirchen ansässig ist, ist die Altschützengesellschaft in Pfarrkirchen.
EINKAUFEN
Die Geschäfte für die Bedürfnisse des täglichen Bedarfs finden Sie in in Pfarrkirchen am Stadtplatz.
Verschiedene Firmen, wie zum Beispiel „WEKO-WOHNEN GMBH“ oder auch weitere Firmen, können Sie natürlich jederzeit Besuchen.Besondere weitere Firmen finden Sie natürlich auch in den Städten im Umkreis.
VERKEHR
Pfarrkirchen ist sehr verkehrsgünstig gelegen; direkt an der B388 die bis nach Passau reicht.
Es sind ca. 125 km in die Landeshauptstadt München, ca. 50 km nach Passau und ca. 85 km nach Salzburg. Ebenfalls haben Sie in Pfarrkirchen einen kleinen Flughafen, der hauptsächlich als Segelflughafen genutzt wird, jedoch können auch andere Flugzeuge aller Art bis 2.000 kg Höchstabfluggewicht landen und starten.
Den Flughafen München erreichen Sie in ca. 124 km, den Flughafen Linz und Salzburg in ca. 140 km und den „Airport“ Vilshofen in nur 34 Autominuten. Auch befinden sich in dem Ort ein Bahnhof.
Von hier aus haben Sie Anschlüsse nach Eggenfelden und Passau.
MEHR DAZU UND WEITER INFOS FINDEN SIE Z.B. UNTER:
• https://pfarrkirchen.de/
•https://de.wikipedia.org/wiki/Pfarrkirchn
• https://www.rottal-inn.de/
• https://de.wikipedia.org/wiki/Landkreis_Rottal-Inn
Anbieter kontaktieren
Anbieter
EuV Immobilien.GmbH
Schwaibacher Straße 4
84364 Bad Birnbach - Asenham
Kontakt
| Telefon | 004985619185066 |
| Mobil | 00491718657027 |
