Pferde oder Kleinvieh zu Hause und wohnen in einem Vierkanthof?.....hier ist es möglich!
359.000 €
Kaufpreis
213 m²
Wohnfläche
515 m²
Nutzfläche
6
Zimmer
immobilien.de Nr.: 8676970
Preise & Kosten
| Kaufpreis | 359.000 € |
| Nebenkosten | keine Angabe |
Größe & Zustand
| Wohnfläche | 213 m² |
| Nutzfläche | 515 m² |
| Grundstücksfläche | 3.761 m² |
| Zimmer | 6 |
| Baujahr | 1855 |
| Verfügbar ab | keine Angabe |
Energie
| Heizungsart | Zentralheizung |
| Energieträger/Befeuerung | Öl |
Objektbeschreibung
Dieser wunderschöne Bauernhof befindet sich im Dorf Schierwaldenrath (Gemeinde Gangelt), etwa 6,5 km von der deutsch-niederländischen Grenze Saeffelen/Koningsbosch entfernt.
Diese Immobilie ist ein geschütztes Denkmal (Baujahr 1855) aufgrund ihres historischen und architektonischen Wertes. Sie repräsentiert einen charakteristischen Baustil der Region aus der Mitte des 19. Jahrhunderts, gekennzeichnet durch die Verwendung von hauptsächlich Ziegelstein mit Blausteinfensterbänken und Türrahmen. An der Vorderseite befindet sich ein Wohn-Stallhaus, wobei der Wohnbereich zwei Geschosse hat und vier Fensterachsen besitzt.
Das beschriebene Stallhaus (auf der linken Seite) wird zugunsten der jetzigen Eigentümer abgetrennt, wobei die Vierkantform erhalten bleibt.
Seit 2018 wurden verschiedene Restaurierungs- und Renovierungsarbeiten durchgeführt. So wurden unter anderem die Dächer des Haupthauses und der Scheunen erneuert, Kanalisation und Sicherungskästen mit Starkstromanschlüssen installiert und Vorbereitungen für die Verlegung neuer Wasserleitungen getroffen. Auf der Weide befinden sich eine Photovoltaikanlage mit 32 Solarmodulen in Feldaufstellung. Der Strom kann in großen Batterien mit einer Kapazität von 10 kWh gespeichert werden.
Die Wohnfläche beträgt ca. 213 m², der umbauter Raum ca. 2700 m³ und das Grundstück ist 3.761 m² groß.
Natürlich gibt es noch viel mehr darüber zu erzählen.....Interesse? Nehmen Sie gerne Kontakt mit uns auf!
Diese Immobilie ist ein geschütztes Denkmal (Baujahr 1855) aufgrund ihres historischen und architektonischen Wertes. Sie repräsentiert einen charakteristischen Baustil der Region aus der Mitte des 19. Jahrhunderts, gekennzeichnet durch die Verwendung von hauptsächlich Ziegelstein mit Blausteinfensterbänken und Türrahmen. An der Vorderseite befindet sich ein Wohn-Stallhaus, wobei der Wohnbereich zwei Geschosse hat und vier Fensterachsen besitzt.
Das beschriebene Stallhaus (auf der linken Seite) wird zugunsten der jetzigen Eigentümer abgetrennt, wobei die Vierkantform erhalten bleibt.
Seit 2018 wurden verschiedene Restaurierungs- und Renovierungsarbeiten durchgeführt. So wurden unter anderem die Dächer des Haupthauses und der Scheunen erneuert, Kanalisation und Sicherungskästen mit Starkstromanschlüssen installiert und Vorbereitungen für die Verlegung neuer Wasserleitungen getroffen. Auf der Weide befinden sich eine Photovoltaikanlage mit 32 Solarmodulen in Feldaufstellung. Der Strom kann in großen Batterien mit einer Kapazität von 10 kWh gespeichert werden.
Die Wohnfläche beträgt ca. 213 m², der umbauter Raum ca. 2700 m³ und das Grundstück ist 3.761 m² groß.
Natürlich gibt es noch viel mehr darüber zu erzählen.....Interesse? Nehmen Sie gerne Kontakt mit uns auf!
Ausstattung
| Küche | Einbauküche |
| Bad | 1 |
| Bad | Dusche, Fenster |
| Boden | Fliesen, Dielen |
| Garage/Stellplätze | 4 |
| Dachboden | |
| Keller |
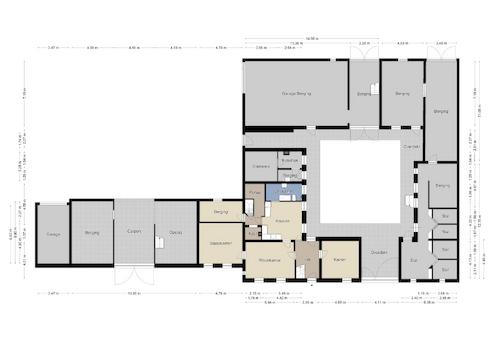
Souterrain:
Gewölbekeller, zwei Räume (5,29 x 4,76/4,53 m).
Erdgeschoss:
Wohnzimmer (5,44 x 4,13 m).
Schlafzimmer (4,79 x 4,50 m).
Zimmer (4,13 x 4,09 m).
Geschlossene Wohnküche (4,20 x 3,99 m) mit einfacher Einbauaufstellung inkl. Geräten.
Badezimmer (3,99 x 1,86 m) mit Dusche, WC, Waschtisch und Anschlüssen für Waschmaschine und Tockner.
Abstellraum (4,79 x 2,27 m).
Heizungsraum mit Abstellraum (3,28 x 4,42 m).
Flur.
Der komplett umschlossene Innenhof ist über die öffentliche Straße erreichbar (Durchgang an der Vorderseite und über die dahinterliegende Scheune).
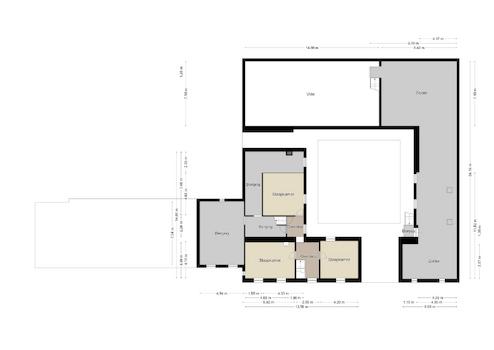
1. Obergeschoss:
Hauptschlafzimmer (5,82 x 3,99 m).
2. Schlafzimmer (4,53 x 4,69 m).
3. Schlafzimmer (4,66 x 4,53 m).
Abstellraum (7,04 x 4,94 m).
2. Abstellraum (4,55 x 2,26 m).
2. Obergeschoss:
Dachboden mit einer Grundfläche von ca. 104 m².
Scheunen, Ställe und Abstellräume:
Rund um den Innenhof befinden sich 5 Ställe, 4 Scheunen und ein Abstellraum mit einer Grundfläche von ca. 183 m².
Der Dachboden über den Scheunen und Ställen hat eine Bodenfläche von ca. 144 m².
Außenbereich:
Hauswiese ca. 2852 m² mit Obstbäumen, die über einen asphaltierten Feldweg erreichbar ist.
Garten (21,45 x 13,50 m) nicht angelegt.
In der Hauswiese befindet sich eine Photovoltaikanlage mit 32 Modulen in Feldaufstellung.
GUT ZU WISSEN:
• Wohnfläche ca. 213 m².
• Weitere Nutzflächen (Keller/Scheunen/Ställe/Dachböden) ca. 515 m².
• Grundstück ca. 3.761 m².
• Umbauter Raum ca. 2700 m³.
• Baujahr 1855 | 1718.
• Geeignet und erlaubt zur Pferdehaltung.
• Denkmalgeschützter Status für Außen- und Innenbereich.
• Authentischer Vierkanthof.
• 2019|2020 alle Dächer erneuert inkl. Verkleidung exkl. Regenwasserableitung.
• Photovoltaikanlage mit 32 Solarmodulen in Feldaufstellung.
• Akkus (Hausbatterie) zur Stromspeicherung 10 kWh.
• Das Wohnhaus muss vollständig restauriert werden unter Beibehaltung der geschützten Elemente.
• Wohnen mit Ruhe und Privatsphäre.
• Wunderschön am Rande eines Außenbereichs gelegen.
• Hauswiese ca. 2852 m² mit Möglichkeit zur Erweiterung (Pacht) um 4700 m².
• Kaufpreis € 359.000,-.
• Käuferprovision 1,95% zzgl. MwSt.
Gewölbekeller, zwei Räume (5,29 x 4,76/4,53 m).
Erdgeschoss:
Wohnzimmer (5,44 x 4,13 m).
Schlafzimmer (4,79 x 4,50 m).
Zimmer (4,13 x 4,09 m).
Geschlossene Wohnküche (4,20 x 3,99 m) mit einfacher Einbauaufstellung inkl. Geräten.
Badezimmer (3,99 x 1,86 m) mit Dusche, WC, Waschtisch und Anschlüssen für Waschmaschine und Tockner.
Abstellraum (4,79 x 2,27 m).
Heizungsraum mit Abstellraum (3,28 x 4,42 m).
Flur.
Der komplett umschlossene Innenhof ist über die öffentliche Straße erreichbar (Durchgang an der Vorderseite und über die dahinterliegende Scheune).
1. Obergeschoss:
Hauptschlafzimmer (5,82 x 3,99 m).
2. Schlafzimmer (4,53 x 4,69 m).
3. Schlafzimmer (4,66 x 4,53 m).
Abstellraum (7,04 x 4,94 m).
2. Abstellraum (4,55 x 2,26 m).
2. Obergeschoss:
Dachboden mit einer Grundfläche von ca. 104 m².
Scheunen, Ställe und Abstellräume:
Rund um den Innenhof befinden sich 5 Ställe, 4 Scheunen und ein Abstellraum mit einer Grundfläche von ca. 183 m².
Der Dachboden über den Scheunen und Ställen hat eine Bodenfläche von ca. 144 m².
Außenbereich:
Hauswiese ca. 2852 m² mit Obstbäumen, die über einen asphaltierten Feldweg erreichbar ist.
Garten (21,45 x 13,50 m) nicht angelegt.
In der Hauswiese befindet sich eine Photovoltaikanlage mit 32 Modulen in Feldaufstellung.
GUT ZU WISSEN:
• Wohnfläche ca. 213 m².
• Weitere Nutzflächen (Keller/Scheunen/Ställe/Dachböden) ca. 515 m².
• Grundstück ca. 3.761 m².
• Umbauter Raum ca. 2700 m³.
• Baujahr 1855 | 1718.
• Geeignet und erlaubt zur Pferdehaltung.
• Denkmalgeschützter Status für Außen- und Innenbereich.
• Authentischer Vierkanthof.
• 2019|2020 alle Dächer erneuert inkl. Verkleidung exkl. Regenwasserableitung.
• Photovoltaikanlage mit 32 Solarmodulen in Feldaufstellung.
• Akkus (Hausbatterie) zur Stromspeicherung 10 kWh.
• Das Wohnhaus muss vollständig restauriert werden unter Beibehaltung der geschützten Elemente.
• Wohnen mit Ruhe und Privatsphäre.
• Wunderschön am Rande eines Außenbereichs gelegen.
• Hauswiese ca. 2852 m² mit Möglichkeit zur Erweiterung (Pacht) um 4700 m².
• Kaufpreis € 359.000,-.
• Käuferprovision 1,95% zzgl. MwSt.
Sonstige Informationen
Denkmal.
