Traumhaft Wohnen in der Detmolder Innenstadt
499.900 €
Kaufpreis
143 m²
Wohnfläche
4
Zimmer
immobilien.de Nr.: 8524029
Objektnummer: VV240223
Preise & Kosten
| Kaufpreis | 499.900 € |
| Nebenkosten | keine Angabe |
Größe & Zustand
| Wohnfläche | 143 m² |
| Grundstücksfläche | 315 m² |
| Zimmer | 4 |
| Baujahr | 2025 |
| Verfügbar ab | keine Angabe |
| Zustand | Projektiert |
Energie
| Energieausweistyp | Bedarfsausweis |
| Energieeffizienzklasse | A+ |
| Energietyp | KfW-40 |
| Endenergiebedarf | 30.00 |
| Wesentlicher Energieträger | Strom |
| Energieträger/Befeuerung | Luft-Wärme-Pumpe |
Objektbeschreibung
STREIF-Entwurf Doppelhausentwurf 6 - modern und behaglich mit Erker und Zwerchgiebel
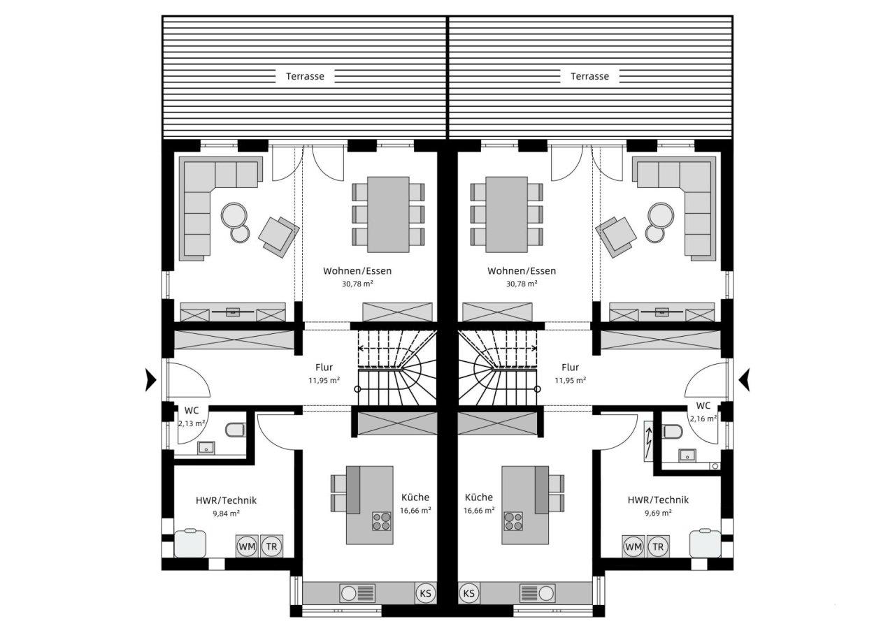
Dieser repräsentative Doppelhausentwurf mit Satteldach zeichnet sich durch seine besondere Gestaltung aus, die einen Zwerchgiebel mit Flachdach und einen Erker mit Flachdach einschließt. Das Highlight dieses Hauses ist zweifellos die Küche, die sich an der Vorderseite des Gebäudes befindet. Sie bietet nicht nur Fenster, die einen Blick in zwei Richtungen ermöglichen, sondern auch genügend Platz für einen Kochtisch in der Mitte. Die großzügige Fläche von 16 m² macht die Küche zu einem Ort, an dem man gerne Zeit verbringt, und das Übereckfenster sorgt dafür, dass Sie das Leben auf der Straße im Auge behalten können. Ein praktischer Hauswirtschafts- oder Haustechnikraum schließt sich nahtlos an die Küche an.
Der Wohn- und Essbereich erstreckt sich zur Gartenseite hin und wird dank fünf bodentiefer Fensterelemente mit natürlichem Licht durchflutet. Im Dachgeschoss setzt sich das durchdachte Design fort, mit einem bodentiefen Fenster in jedem Kinderzimmer, das durch den Zwerchgiebel ermöglicht wird. Der Elternbereich überzeugt mit einer separaten Ankleide, die den Komfort erhöht. Ein geräumiges Badezimmer rundet das gemütliche Dachgeschoss ab.
Die Gesamtnetto-Raumfläche beträgt 143 m², was dieses Haus zur idealen Wahl für eine vierköpfige Familie macht. Hier finden Sie ausreichend Platz und Komfort, um Ihr Zuhause zu genießen.
Preisangaben beziehen sich auf eine Doppelhaushälfte.
Dieser repräsentative Doppelhausentwurf mit Satteldach zeichnet sich durch seine besondere Gestaltung aus, die einen Zwerchgiebel mit Flachdach und einen Erker mit Flachdach einschließt. Das Highlight dieses Hauses ist zweifellos die Küche, die sich an der Vorderseite des Gebäudes befindet. Sie bietet nicht nur Fenster, die einen Blick in zwei Richtungen ermöglichen, sondern auch genügend Platz für einen Kochtisch in der Mitte. Die großzügige Fläche von 16 m² macht die Küche zu einem Ort, an dem man gerne Zeit verbringt, und das Übereckfenster sorgt dafür, dass Sie das Leben auf der Straße im Auge behalten können. Ein praktischer Hauswirtschafts- oder Haustechnikraum schließt sich nahtlos an die Küche an.
Der Wohn- und Essbereich erstreckt sich zur Gartenseite hin und wird dank fünf bodentiefer Fensterelemente mit natürlichem Licht durchflutet. Im Dachgeschoss setzt sich das durchdachte Design fort, mit einem bodentiefen Fenster in jedem Kinderzimmer, das durch den Zwerchgiebel ermöglicht wird. Der Elternbereich überzeugt mit einer separaten Ankleide, die den Komfort erhöht. Ein geräumiges Badezimmer rundet das gemütliche Dachgeschoss ab.
Die Gesamtnetto-Raumfläche beträgt 143 m², was dieses Haus zur idealen Wahl für eine vierköpfige Familie macht. Hier finden Sie ausreichend Platz und Komfort, um Ihr Zuhause zu genießen.
Preisangaben beziehen sich auf eine Doppelhaushälfte.
Ausstattung
| Anzahl der Etagen im Haus | 2 |
| Bad | 1 |
| Garten |
STREIF-Energiespar-Häuser sind für die Effizienzhaus-Klasse 40* vorbereitet. (*In Abhängigkeit von Gebäudestandort, Gebäudeausrichtung, Fensterflächenanteile, Haustechnik usw. können zusätzliche oder abweichende Leistungen erforderlich werden, die im Zuge der Bauantragsbewertung/-erstellung bewertet werden.)
Gegen Aufpreis erstellen wir eine Ökobilanzierung für Ihr Haus nach QNG durch. Für das Erreichen der Vorgaben des Qualitätssiegels Nachhaltiges Gebäude (QNG) für eine Ökobilanzierung wird zusätzlich eine Photovoltaik-Anlage mit Batteriespeicher benötigt. Mit dem Erfüllen dieser und weiterer Anforderungen wird Ihr Haus nach den neuen KfW-Förderrichtlinien für den Klimafreundlichen Neubau (KFN) förderfähig.
Die Außenwände im Passiv-Haus-Standard und eine sparsame Heiztechnik mit integrierter Wohnraumlüftung und Wärmerückgewinnung, garantieren einen geringen Energieverbrauch und ein fantastisches Raumklima, das insbesondere Allergiker aufatmen lässt.
STREIF Leistungen sind MEHR WERT - schon im Grundpreis enthalten!
- 16-monatige Festpreisgarantie
- Inkl. individuelle Grundrissgestaltung und Raumaufteilung
- Inkl. gedämmte Fundamentplatte
- Inkl. STREIF-Luft-Luft-Wärmepumpen-Technologie mit integrierter Lüftungsanlage mit Wärmerückgewinnung
- Inkl. Haustür von KERA und Fenster von Porta/Kömmerling
- Inkl. Sanitärobjekte von Markenherstellern
- Inkl. Massivholz-Geschosstreppe aus eigener Produktion (entfällt bei Bungalow)
- Inkl. Elektroinstallation u. v. m.
Die hohe Wertigkeit und Langlebigkeit eines STREIF-Energiespar-Hauses wird durch zahlreiche Auszeichnungen, Qualitäts- und Gütesiegel unabhängiger Institute und Verbände dokumentiert.
Der Angebotspreis ist inklusive Grundstück und bezieht sich auf die Standard-Ausbaustufe Fast-Fertig-Plus. Ihre Eigenleistungen: Spachtel-,Tapezier- und Malerarbeiten, Bodenbeläge, Innentüren.
Baunebenkosten fallen zuzüglich an.
Der Verkauf des Grundstücks erfolgt über einen unserer Netzwerkpartner.
Bilder können evtl. Anbauteile, Carports, Balkone, Gauben usw. zeigen, die nicht im Angebotspreis enthalten sind. Änderungen und Irrtümer vorbehalten.
Gegen Aufpreis erstellen wir eine Ökobilanzierung für Ihr Haus nach QNG durch. Für das Erreichen der Vorgaben des Qualitätssiegels Nachhaltiges Gebäude (QNG) für eine Ökobilanzierung wird zusätzlich eine Photovoltaik-Anlage mit Batteriespeicher benötigt. Mit dem Erfüllen dieser und weiterer Anforderungen wird Ihr Haus nach den neuen KfW-Förderrichtlinien für den Klimafreundlichen Neubau (KFN) förderfähig.
Die Außenwände im Passiv-Haus-Standard und eine sparsame Heiztechnik mit integrierter Wohnraumlüftung und Wärmerückgewinnung, garantieren einen geringen Energieverbrauch und ein fantastisches Raumklima, das insbesondere Allergiker aufatmen lässt.
STREIF Leistungen sind MEHR WERT - schon im Grundpreis enthalten!
- 16-monatige Festpreisgarantie
- Inkl. individuelle Grundrissgestaltung und Raumaufteilung
- Inkl. gedämmte Fundamentplatte
- Inkl. STREIF-Luft-Luft-Wärmepumpen-Technologie mit integrierter Lüftungsanlage mit Wärmerückgewinnung
- Inkl. Haustür von KERA und Fenster von Porta/Kömmerling
- Inkl. Sanitärobjekte von Markenherstellern
- Inkl. Massivholz-Geschosstreppe aus eigener Produktion (entfällt bei Bungalow)
- Inkl. Elektroinstallation u. v. m.
Die hohe Wertigkeit und Langlebigkeit eines STREIF-Energiespar-Hauses wird durch zahlreiche Auszeichnungen, Qualitäts- und Gütesiegel unabhängiger Institute und Verbände dokumentiert.
Der Angebotspreis ist inklusive Grundstück und bezieht sich auf die Standard-Ausbaustufe Fast-Fertig-Plus. Ihre Eigenleistungen: Spachtel-,Tapezier- und Malerarbeiten, Bodenbeläge, Innentüren.
Baunebenkosten fallen zuzüglich an.
Der Verkauf des Grundstücks erfolgt über einen unserer Netzwerkpartner.
Bilder können evtl. Anbauteile, Carports, Balkone, Gauben usw. zeigen, die nicht im Angebotspreis enthalten sind. Änderungen und Irrtümer vorbehalten.
Sonstige Informationen
STREIF Leistungen sind mehr wert - schon im Grundpreis! INDIVIDUELLE ARCHITEKTUR -persönliche Architekten-Planung inklusive -Fundamentplatte inklusive (Keller optional) -individuelle Grundrissgestaltung ohne Mehrpreis
UNSERE BAUWEISE -mehrschichtiger diffusionsvariabler Wandaufbau bis U Wert 0,10 W / m² * K - im Gefach (zwischen den Stielen) gemessen -hochstabile Innenwand und Konstruktion -Fenster gesamt: Uw-Wert 0,81 W/m² * K Glas der Fenster: Ug-Wert 0,6 W/m² * K -Haustür ab UD-Wert 0,64 W/m² * K -30 Jahre Garantie auf statisches Tragwerk -ausschließlich handgemacht in Deutschland INNOVATION -kontrollierte Be- und Entlüftung mit Wärmerückgewinnung bereits in der Grundausstattung -STREIF schadstoffarmer Innenraum - für Allergiker geeignet
UNSERE BAUWEISE -mehrschichtiger diffusionsvariabler Wandaufbau bis U Wert 0,10 W / m² * K - im Gefach (zwischen den Stielen) gemessen -hochstabile Innenwand und Konstruktion -Fenster gesamt: Uw-Wert 0,81 W/m² * K Glas der Fenster: Ug-Wert 0,6 W/m² * K -Haustür ab UD-Wert 0,64 W/m² * K -30 Jahre Garantie auf statisches Tragwerk -ausschließlich handgemacht in Deutschland INNOVATION -kontrollierte Be- und Entlüftung mit Wärmerückgewinnung bereits in der Grundausstattung -STREIF schadstoffarmer Innenraum - für Allergiker geeignet
Lage des Objektes
Willkommen in dem bezaubernden Detmold, einem Ort, der mit einem Hauch von Geschichte, Natur und einer warmen, einladenden Atmosphäre verzaubert. Die Straße auf dem sich das Grundstück befindet, ist ein lebendiges Band von Schönheit, das sich durch die charmante Stadt schlängelt und Besucher mit ihren pittoresken Wegen und historischen Gebäuden in den Bann zieht.
Detmold selbst ist eine Stadt voller kultureller Schätze und natürlicher Wunder. Von der atemberaubenden Architektur des Residenzschlosses bis hin zu den weitläufigen Grünflächen des Hermannsdenkmals bietet Detmold für jeden etwas. Die Stadt pulsiert mit Leben, sei es in den gemütlichen Cafés und Restaurants, den lebendigen Märkten oder den kulturellen Veranstaltungen, die das ganze Jahr über stattfinden.
Die Adresse unseres Angebotes ist nicht nur ein Ort zum Wohnen, sondern ein Ort, an dem man das Leben in seiner vollen Pracht genießen kann. Es ist ein Ort, an dem man sich sofort zu Hause fühlt und der einem das Gefühl gibt, Teil von etwas Besonderem zu sein.
Wenn Sie also auf der Suche nach einem Ort sind, der Sie mit seiner Schönheit verzaubert und Ihr Herz erwärmt, dann ist Detmold der perfekte Ort für Sie. Treten Sie ein und lassen Sie sich von dem Charme dieser einzigartigen Lage verführen.
Durch die zentral gelegene Innenstadt Lage, bietet sich eine gute Infrastruktur, somit sind alle wichtigen Dinge und öffentlichen Einrichtungen sehr gut erreichbar.
Detmold selbst ist eine Stadt voller kultureller Schätze und natürlicher Wunder. Von der atemberaubenden Architektur des Residenzschlosses bis hin zu den weitläufigen Grünflächen des Hermannsdenkmals bietet Detmold für jeden etwas. Die Stadt pulsiert mit Leben, sei es in den gemütlichen Cafés und Restaurants, den lebendigen Märkten oder den kulturellen Veranstaltungen, die das ganze Jahr über stattfinden.
Die Adresse unseres Angebotes ist nicht nur ein Ort zum Wohnen, sondern ein Ort, an dem man das Leben in seiner vollen Pracht genießen kann. Es ist ein Ort, an dem man sich sofort zu Hause fühlt und der einem das Gefühl gibt, Teil von etwas Besonderem zu sein.
Wenn Sie also auf der Suche nach einem Ort sind, der Sie mit seiner Schönheit verzaubert und Ihr Herz erwärmt, dann ist Detmold der perfekte Ort für Sie. Treten Sie ein und lassen Sie sich von dem Charme dieser einzigartigen Lage verführen.
Durch die zentral gelegene Innenstadt Lage, bietet sich eine gute Infrastruktur, somit sind alle wichtigen Dinge und öffentlichen Einrichtungen sehr gut erreichbar.
Anbieter kontaktieren
Kontakt
| Telefon | +49 511 99993897 |
| Mobil | +49 177 5668671 |
| Fax | +49 511 80904732 |
| Website | www.streif.de |
