Tiny House - Effizienzhaus 55 Neubau zwischen Wolfsburg und Gifhorn am Bernsteinsee
134.400 €
Kaufpreis
28 m²
Wohnfläche
1
Zimmer
immobilien.de Nr.: 8003593
Objektnummer: BG284633
Preise & Kosten
| Kaufpreis | 134.400 € |
| Nebenkosten | keine Angabe |
| Maklerprovision | provisionsfrei |
Größe & Zustand
| Wohnfläche | 28 m² |
| Grundstücksfläche | 450 m² |
| Zimmer | 1 |
| Baujahr | 2023 |
| Verfügbar ab | nach Vereinbarung |
| Zustand | Projektiert |
Energie
| Energieausweistyp | Bedarfsausweis |
| Gültig bis | 01.10.2032 |
| Energieeffizienzklasse | A+ |
| Endenergiebedarf | 21.80 |
| Heizungsart | Zentralheizung |
| Wesentlicher Energieträger | Pellet |
| Energieträger/Befeuerung | Elektro, Pellet |
Objektbeschreibung
Das Tiny House (Minihaus) ist ein vollwertiges EH-55 Wohngebäude mit ganz normalen Versorgungsleitungen für Strom, Wasser und Abwasser - alles im optimierten Kleinformat mit dem Vorteil der Mobilität. Das Tiny House verfügt über die Straßenzulassung sowie alle erforderlichen Unterlagen für eine Baugenehmigung und erfüllt die hohen Anforderungen des Gebäudeenergiegesetzes (GEG, vormals EnEV) als Effizienzhaus 55.
Das Tiny House hat aus statischen Gründen einen hochfesten Sicherheits-Stahlrahmen. Innen- und Außenverkleidung sind konsequent aus Holz gefertigt. Dazwischen sorgt eine moderne High-Tech Thermoisolierung für die erforderliche Umsetzung eines energieschonenden Beheizungskonzeptes. Thermopen- und sicherheitsverglaste Fenster runden die sehr gute Isolierung ab. Die elegante Dacheindeckung aus lackiertem Stahlblech und die innenliegenden Dachrinnen unterstreichen den edlen Gesamteindruck.
Die Beheizung erfolgt über die Infrarot - Deckenheizung sowie über einen elektronisch gesteuerte Pelletofen. Auf Wunsch steht zusätzlich auch eine Klimaanlage zur Verfügung. Die Tiny-Klimaanlage sorgt für Kühlung, Heizung, Belüftung und Entfeuchtung.
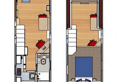
Eine speziell für das Haus designte platzoptimierte Möblierung bietet einerseits alle Voraussetzungen, die an ein Wohnhaus gestellt werden und auf der anderen Seite die nötige Bewegungsfreiheit, die den Innenraum gefühlt deutlich größer erscheinen lassen.
Eine moderne Einbauküche mit Elektrogeräten, ein komplettes Duschbad, Schlafzimmer, Gästeloft, Wohnbereich mit Sitzecke, Esstisch und Schreibtisch sowie reichlich Stauraum lassen kaum Wünsche offen.
Ihre individuellen Wünsche können bei Bedarf durch zahlreiche Sonderausstattungen realisiert werden!
Das Tiny House hat aus statischen Gründen einen hochfesten Sicherheits-Stahlrahmen. Innen- und Außenverkleidung sind konsequent aus Holz gefertigt. Dazwischen sorgt eine moderne High-Tech Thermoisolierung für die erforderliche Umsetzung eines energieschonenden Beheizungskonzeptes. Thermopen- und sicherheitsverglaste Fenster runden die sehr gute Isolierung ab. Die elegante Dacheindeckung aus lackiertem Stahlblech und die innenliegenden Dachrinnen unterstreichen den edlen Gesamteindruck.
Die Beheizung erfolgt über die Infrarot - Deckenheizung sowie über einen elektronisch gesteuerte Pelletofen. Auf Wunsch steht zusätzlich auch eine Klimaanlage zur Verfügung. Die Tiny-Klimaanlage sorgt für Kühlung, Heizung, Belüftung und Entfeuchtung.
Eine speziell für das Haus designte platzoptimierte Möblierung bietet einerseits alle Voraussetzungen, die an ein Wohnhaus gestellt werden und auf der anderen Seite die nötige Bewegungsfreiheit, die den Innenraum gefühlt deutlich größer erscheinen lassen.
Eine moderne Einbauküche mit Elektrogeräten, ein komplettes Duschbad, Schlafzimmer, Gästeloft, Wohnbereich mit Sitzecke, Esstisch und Schreibtisch sowie reichlich Stauraum lassen kaum Wünsche offen.
Ihre individuellen Wünsche können bei Bedarf durch zahlreiche Sonderausstattungen realisiert werden!
Ausstattung
| Küche | Einbauküche |
| Bad | 1 |
| Bad | Dusche, Fenster |
EH-55 Tiny House Neubau für 84.900.- Euro, Baugrundstück ca. 450 qm für 49.500.- Euro, Nebenkosten (Grunderwerbsteuer, Notar, Grundbuchamt, Baugenehmigung, Erschließung, Fundamente, Anlieferung) ca. 15.000.- Euro
Sonstige Informationen
Der Angebotspreis bezieht sich auf das Grundstück sowie das Tiny House (EH-55 Neubau) laut aktueller Bau- und Leistungsbeschreibung. Die Fotos und Abbildungen zeigen teilweise Sonderleistungen. Für den Käufer fällt keine zusätzliche Käuferprovision an. Das Angebot ist freibleibend und unverbindlich.
Lage des Objektes
Die Gemeinde Sassenburg hat ca. 12.400 Einwohner und liegt im Landkreis Gifhorn in Niedersachen. Unmittelbar am Elbe-Seitenkanal befindet sich in der Ortschaft Stüde der von Wäldern umgebene Bernsteinsee.
Das attraktive Natur- und Feriengebiet bietet Ihnen neben zahlreichen gastronomischen Einrichtungen und umfangreichen Freizeitaktivitäten ebenfalls ausgedehnte Wanderwege für Ihre Erholung. Der kristallklare See ist rund 15 Kilometer von Gifhorn und rund 20 Kilometer von Wolfsburg entfernt. Die Entfernung nach Braunschweig beträgt etwa 45 Kilometer.
Das attraktive Natur- und Feriengebiet bietet Ihnen neben zahlreichen gastronomischen Einrichtungen und umfangreichen Freizeitaktivitäten ebenfalls ausgedehnte Wanderwege für Ihre Erholung. Der kristallklare See ist rund 15 Kilometer von Gifhorn und rund 20 Kilometer von Wolfsburg entfernt. Die Entfernung nach Braunschweig beträgt etwa 45 Kilometer.
