Flexibel nutzbares Gewerbegrundstück in Toplage – direkt am Flughafen Leipzig/Halle

Wellerstrasse 18 04435 Schkeudtiz, Sachsen-Anhalt
Frei ab: nach Absprache
1.300.000 € Kaufpreis
Grundstücksfläche
20.000 m²

Kaufpreis

Kaufpreis 1.300.000 €
Maklerprovisionkeine Provision, courtagefrei

Wohnfläche, Grundstück & Bausubstanz

Grundstücksfläche20.000 m²
Verfügbar ab nach Absprache

Beschreibung der Immobilie

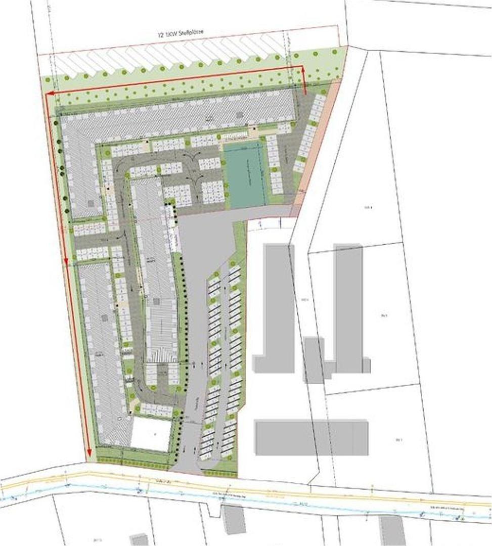
Direkt vom Eigentümer wird ein ca. 20.000 m² großes Gewerbegrundstück mit rechtskräftigem Bebauungsplan (B-Plan) in hervorragender Lage nahe dem Flughafen Leipzig/Halle angeboten.
Das Grundstück befindet sich in einem gewerblich geprägten Umfeld und bietet maximale Flexibilität für unterschiedlichste Nutzungskonzepte. Ob Logistik, Handwerkerhöfe, Dienstleistungszentren, Beherbergung oder andere gewerbliche Projekte – die Nutzung ist im Rahmen des bestehenden Bebauungsplans vielfältig möglich.
Ein konkretes Projekt wurde für das Grundstück bereits konzipiert, stellt jedoch keine Verpflichtung dar. Käufer haben die Möglichkeit, eigene Ideen und Konzepte zu realisieren.
Der rechtskräftige Bebauungsplan ermöglicht eine zeitnahe Umsetzung ohne langwierige Genehmigungsverfahren.
Bauparameter laut Bebauungsplan:
•Bruttogrundfläche (BGF): bis ca. 20.000 m²
•Grundflächenzahl (GRZ): 0,8
•Gebäudehöhe: ca. 13 bis 15 Meter
________________________________________
Zulässige Nutzungen gemäß § 8 BauNVO
Unter anderem möglich:
•Gewerbebetriebe aller Art
•Lagerhäuser und Lagerplätze
•Büro- und Verwaltungsgebäude
•Öffentliche Betriebe
•Tankstellen und Sportanlagen
•Hotel, Boardinghouse und vergleichbare Beherbergungskonzepte
•Handwerkerhöfe und logistiknahe Nutzungen
________________________________________
Besonderheiten
•Hohe Flexibilität in der Nutzung
•Sofortige Planbarkeit durch bestehenden B-Plan
•Attraktive Lage für Logistik und Gewerbe
•Ideal für Investoren, Projektentwickler und Unternehmen
Etwaige Visualisierungen dienen ausschließlich der Darstellung möglicher Bebauungsvarianten und sind unverbindlich.
Der Verkauf erfolgt im Rahmen eines Share Deals.
Preis: 65 €/m²

Karte wird geladen...
Wellerstrasse 18
04435 Schkeudtiz – Sachsen-Anhalt

Lage & Infrastruktur

Der Standort überzeugt durch eine erstklassige Verkehrsanbindung:
•ca. 2 km zum Flughafen Leipzig/Halle
•ca. 300 m zu zwei Autobahnachsen
•Anbindung an Bundesstraße
•Nähe zu wichtigen ICE- und IC-Knotenpunkten
Die Lage bietet eine hohe Drittverwendungsfähigkeit und nachhaltiges Nachfragepotenzial für verschiedenste gewerbliche Nutzungen.
Infrastruktur (im Umkreis von 5 km):
Apotheke, Lebensmittel-Discount, Allgemeinmediziner, Kindergarten, Grundschule, Hauptschule, Realschule, Gymnasium, Gesamtschule, Öffentliche Verkehrsmittel

Sonstige Informationen

Wir nehmen auch Vermittleranfragen gerne entgegen.

Für weitere Informationen oder zur Vereinbarung eines Besichtigungstermins stehen wir Ihnen gerne zur Verfügung.

Telefonisch erreichbar: Montag bis Freitag, 09:00 bis 18:00 Uhr
Telefon / WhatsApp: 0170 9848571
E-Mail: info(at)gpm.immobilien

Makleranfragen nicht erwünscht. Nach § 7 UWG sind unaufgeforderte Kontaktaufnahmen durch Makler ohne ausdrückliche Einwilligung des Empfängers verboten!

ohne-makler (OM) ist weder Anbieter noch Vermittler der Immobilie. OM betreibt eine Plattform für Immobilieneigentümer, die unter anderem die gleichzeitige Veröffentlichung einzelner Inserate auf mehreren Immobilienportalen ermöglicht. Die Inhalte dieser Inserate werden ausschließlich von Dritten verantwortet. Für die Richtigkeit, Vollständigkeit oder Rechtmäßigkeit der Angaben übernimmt OM keine Haftung. Hinweise auf mögliche Rechtsverstöße können jederzeit gemeldet werden und werden nach Prüfung umgehend bearbeitet.
Ansprechpartner/in: Privat von Peter Jugl
0170 9848571
OM PropTech GmbH
Humboldtstraße 25a, 21509 Glinde
0170 9848571

Weitere Angebote in Flughafen Leipzig/Halle